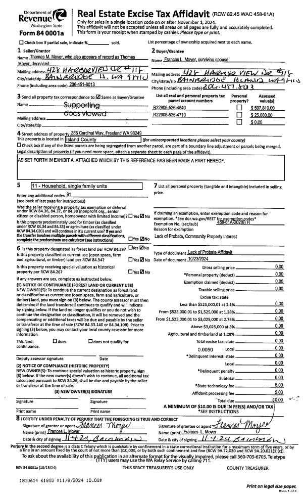
Property
Account |
| Property ID: | 173635 | Abbreviated Legal Description: | ADMIRALS COVE 3 LOTS 67 & 68 |
| Geographic ID: | S6010-03-00067-0 | Agent Code: | |
| Type: | Real | | |
| Tax Area: | 390 - APPRAISER-Cpvl Schl Dist, Special Dist, improved & less than 1 acre | Land Use Code | 11 |
| Open Space: | N | DFL | N |
| Historic Property: | N | Remodel Property: | N |
| Multi-Family Redevelopment: | N | | |
| Township: | | Section: | |
| Range: | |
Location |
| Address: | 1124 HALSEY DR COUPEVILLE, WA 98239 | Mapsco: | |
| Neighborhood: | Cycle 2 | Map ID: | 59 |
| Neighborhood CD: | 2 |
Owner |
| Name: | FLOOD, PAUL E | Owner ID: | 311983 |
| Mailing Address: | SIDNIE FLOOD 345 I AVE CORONADO, CA 92118 | % Ownership: | 100.0000000000% |
| | | Exemptions: | |
Taxes and Assessment Details
Values
| (+) Improvement Homesite Value: | + | $0 | |
| (+) Improvement Non-Homesite Value: | + | $547,609 | |
| (+) Land Homesite Value: | + | $0 | |
| (+) Land Non-Homesite Value: | + | $205,000 | |
| (+) Curr Use (HS): | + | $0 | $0 |
| (+) Curr Use (NHS): | + | $0 | $0 |
| | | -------------------------- | |
| (=) Market Value: | = | $752,609 | |
| (–) Productivity Loss: | – | $0 | |
| | | -------------------------- | |
| (=) Subtotal: | = | $752,609 | |
| (+) Senior Appraised Value: | + | $0 | |
| (+) Non-Senior Appraised Value: | + | $752,609 | |
| | | -------------------------- | |
| (=) Total Appraised Value: | = | $752,609 | |
| (–) Senior Exemption Loss: | – | $0 | |
| (–) Exemption Loss: | – | $0 | |
| | | -------------------------- | |
| (=) Taxable Value: | = | $752,609 | |
Taxing Jurisdiction
| Owner: | FLOOD, PAUL E | | |
| % Ownership: | 100.0000000000% | | |
| Total Value: | $752,609 | | |
| Tax Area: | 390 - APPRAISER-Cpvl Schl Dist, Special Dist, improved & less than 1 acre |
| CF | Conservation Futures | 0.0316035091 | $752,609 | $752,609 | $23.79 | | |
| CEM2 | Cemetery #2 | 0.0095056933 | $752,609 | $752,609 | $7.15 | | |
| FIRE5 | Fire & Rescue Dist #5 C Whidbey GEN | 1.2008080668 | $752,609 | $752,609 | $903.74 | | |
| FIRE5BOND | Fire & Rescue Dist #5 C Whidbey BOND | 0.1400090713 | $752,609 | $752,609 | $105.37 | | |
| HOBOND | Hospital BOND | 0.1910887512 | $752,609 | $752,609 | $143.82 | | |
| HOGEN | Hospital GEN | 0.3902502903 | $752,609 | $752,609 | $293.71 | | |
| CE | County Current Expense | 0.3708482477 | $752,609 | $752,609 | $279.10 | | |
| CR | County Roads | 0.4584763726 | $752,609 | $752,609 | $345.05 | | |
| ISLANDEMS | Hospital GEN (EMS) | 0.5000000000 | $752,609 | $752,609 | $376.30 | | |
| LIB | Library Sno-Isle GEN | 0.3153421757 | $752,609 | $752,609 | $237.33 | | |
| LIBCAP | Library Sno-Isle BOND (Cap Fac Imp Area) | 0.0543427938 | $752,609 | $752,609 | $40.90 | | |
| POCOUP | Port of Coupeville GEN | 0.1093371703 | $752,609 | $752,609 | $82.29 | | |
| POCOUPIDD | Port of Coupeville IDD | 0.3409740022 | $752,609 | $752,609 | $256.62 | | |
| COUPSDTECH | School 204 CP (TECH) | 0.7545480007 | $752,609 | $752,609 | $567.88 | | |
| SCH204MO | School 204 Enrichment | 0.6716186034 | $752,609 | $752,609 | $505.47 | | |
| ST | State School | 1.3035497053 | $752,609 | $752,609 | $981.06 | | |
| ST2 | State School Part 2 | 0.8169543533 | $752,609 | $752,609 | $614.85 | | |
| | Total Tax Rate: | 7.6592568070 | | | | | |
| | | | | Taxes w/Current Exemptions: | $5,764.43 | | |
| | | | | Taxes w/o Exemptions: | $5,764.43 | | |
Improvement / Building
| Improvement #1: | RESIDENTIAL | State Code: | Y | 3162.4 sqft | Value: | $547,609 |
| Bathrooms: | 2.5 | Bedrooms: | 3 | | Ceiling: | DRYWALL PAINTED | Exterior Wall/Cover: | CEMENT FIBER | | Floor Covering: | CERAMIC TILE/CPT 40-60 | Floor Structure: | SLAB ON GRADE | | Foundation: | CONCRETE | Heating: | RADIANT FLOOR | | Interior Finish: | DRYWALL PAINT | Plumbing Fixture Cnt: | 14 | | Roof Slope: | 8" IN 12" | Roof Structure/Cover: | BEAM ASPHALT |
|
| | Type | Description | Class CD | Sub Class CD | Year Built | Area |
| | BAS | BASE/MAIN FLOOR | 4 | 0 | 2005 | 1957.4 |
| | BIG | BUILT IN GARAGE | 4 | 0 | 2005 | 752.0 |
| | DWN | DOWNSTAIRS LIVING AREA | 4 | 0 | 2005 | 1205.0 |
| | OWP | OPEN WOOD PORCH W/STEPS | 4 | 0 | 2005 | 101.8 |
| | OWP | OPEN WOOD PORCH W/STEPS | 4 | 0 | 2005 | 428.8 |
Sketch
| No sketches available for this property. |
Property Image
Land
| 1 | 15 | SQ (12001-21780) | 0.3228 | 14061.17 | 0.00 | 0.00 | 1.00 | $205,000 | $0 |
Roll Value History
| 2026 | N/A | N/A | N/A | N/A | N/A |
| 2025 | $547,609 | $205,000 | $0 | $752,609 | $752,609 |
| 2024 | $515,984 | $195,000 | $0 | $710,984 | $710,984 |
| 2023 | $522,038 | $200,000 | $0 | $722,038 | $722,038 |
| 2022 | $478,181 | $190,000 | $0 | $668,181 | $668,181 |
| 2021 | $420,575 | $130,000 | $0 | $550,575 | $550,575 |
| 2020 | $409,507 | $110,000 | $0 | $519,507 | $519,507 |
| 2019 | $310,856 | $170,000 | $0 | $480,856 | $480,856 |
| 2018 | $335,703 | $140,000 | $0 | $475,703 | $475,703 |
| 2017 | $337,600 | $120,000 | $0 | $457,600 | $457,600 |
| 2016 | $341,395 | $85,000 | $0 | $426,395 | $170,558 |
| 2015 | $282,134 | $85,000 | $0 | $367,134 | $367,134 |
| 2014 | $285,235 | $85,000 | $0 | $370,235 | $370,235 |
| 2013 | $288,335 | $85,000 | $0 | $373,335 | $373,335 |
| 2012 | $253,701 | $79,398 | $0 | $333,099 | $333,099 |
| 2011 | $256,457 | $93,409 | $0 | $349,866 | $349,866 |
| 2010 | $261,818 | $93,409 | $0 | $355,227 | $355,227 |
| 2009 | $269,040 | $120,873 | $0 | $389,913 | $389,913 |
| 2008 | $272,705 | $120,000 | $0 | $392,705 | $392,705 |
| 2007 | $275,508 | $120,000 | $0 | $395,508 | $395,508 |
Deed and Sales History
| 1 | 04/10/2024 | WD | Warranty Deed | NEAL TTEE, GREG | FLOOD, PAUL E | | | $758,000.00 | 59662 | 4571269 |
| 2 | 04/23/2019 | QCD | Quit Claim Deed | NEAL, GREGORY R | NEAL TTEE, GREG | | | $0.00 | 38173 | 4461857 |
| 3 | 01/04/2016 | WD | Warranty Deed | DUNNAWAY, JAMES B | NEAL, GREGORY R | | | $435,000.00 | 22930 | 4393082 |
| 4 | 03/10/2003 | WD | Warranty Deed | WADDELL, JAMES E | DUNNAWAY, JAMES B | | | $35,000.00 | 31075 | 4051300 |
| 5 | 10/01/1992 | OTHER | Other - Misc. Documents | WADDELL, JAMES E | WADDELL, JAMES E | | | $0.00 | 65092 | 92019223 |
| 6 | 03/01/1992 | WD | Warranty Deed | MILLER, VICTOR O | WADDELL, JAMES E | | | $29,500.00 | 20890 | 92004503 |
| 7 | 03/01/1979 | OTHER | Other - Misc. Documents | Unknown | MILLER, VICTOR O | | | $9,600.00 | 91008 | 348627 |
Payout Agreement
| No payout information available.. |