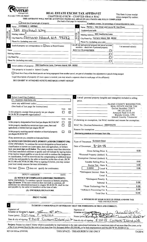
Property
Account |
| Property ID: | 17396 | Abbreviated Legal Description: | 57 - NE NW NW EX N300' OF E600' LY S OF HWY ALG N SIDE & W OF RD ALG E SIDE EX N40' FOR RD TGW EZ AF#277897 |
| Geographic ID: | R13209-479-0990 | Agent Code: | |
| Type: | Real | | |
| Tax Area: | 112 - APPRAISER-OH Schl Dist, outside OH, improved, greater than 1 acre | Land Use Code | 11 |
| Open Space: | N | DFL | N |
| Historic Property: | N | Remodel Property: | N |
| Multi-Family Redevelopment: | N | | |
| Township: | 32 | Section: | 09 |
| Range: | R1 |
Location |
| Address: | 1541 FORT NUGENT RD OAK HARBOR, WA 98277 | Mapsco: | |
| Neighborhood: | Cycle 1 | Map ID: | 114 |
| Neighborhood CD: | 1 |
Owner |
| Name: | COWAN, TROY GORDON | Owner ID: | 286210 |
| Mailing Address: | KELLI MICHELE COWAN 1541 FORT NUGENT RD OAK HARBOR, WA 98277 | % Ownership: | 100.0000000000% |
| | | Exemptions: | |
Taxes and Assessment Details
Values
| (+) Improvement Homesite Value: | + | $0 | |
| (+) Improvement Non-Homesite Value: | + | $567,555 | |
| (+) Land Homesite Value: | + | $0 | |
| (+) Land Non-Homesite Value: | + | $290,000 | |
| (+) Curr Use (HS): | + | $0 | $0 |
| (+) Curr Use (NHS): | + | $0 | $0 |
| | | -------------------------- | |
| (=) Market Value: | = | $857,555 | |
| (–) Productivity Loss: | – | $0 | |
| | | -------------------------- | |
| (=) Subtotal: | = | $857,555 | |
| (+) Senior Appraised Value: | + | $0 | |
| (+) Non-Senior Appraised Value: | + | $857,555 | |
| | | -------------------------- | |
| (=) Total Appraised Value: | = | $857,555 | |
| (–) Senior Exemption Loss: | – | $0 | |
| (–) Exemption Loss: | – | $0 | |
| | | -------------------------- | |
| (=) Taxable Value: | = | $857,555 | |
Taxing Jurisdiction
| Owner: | COWAN, TROY GORDON | | |
| % Ownership: | 100.0000000000% | | |
| Total Value: | $857,555 | | |
| Tax Area: | 112 - APPRAISER-OH Schl Dist, outside OH, improved, greater than 1 acre |
| CF | Conservation Futures | 0.0316035091 | $857,555 | $857,555 | $27.10 | | |
| CEM1 | Cemetery #1 | 0.0040320932 | $857,555 | $857,555 | $3.46 | | |
| FIRE2 | Fire & Rescue Dist #2 N Whidbey GEN | 0.5475949600 | $857,555 | $857,555 | $469.59 | | |
| HOBOND | Hospital BOND | 0.1910887512 | $857,555 | $857,555 | $163.87 | | |
| HOGEN | Hospital GEN | 0.3902502903 | $857,555 | $857,555 | $334.66 | | |
| CE | County Current Expense | 0.3708482477 | $857,555 | $857,555 | $318.02 | | |
| CR | County Roads | 0.4584763726 | $857,555 | $857,555 | $393.17 | | |
| ISLANDEMS | Hospital GEN (EMS) | 0.5000000000 | $857,555 | $857,555 | $428.78 | | |
| LIB | Library Sno-Isle GEN | 0.3153421757 | $857,555 | $857,555 | $270.42 | | |
| NWHIDPRMT | P & R N Whidbey GEN | 0.2004466701 | $857,555 | $857,555 | $171.89 | | |
| SCH201MO | School 201 Enrichment | 1.8559231640 | $857,555 | $857,555 | $1,591.56 | | |
| ST | State School | 1.3035497053 | $857,555 | $857,555 | $1,117.87 | | |
| ST2 | State School Part 2 | 0.8169543533 | $857,555 | $857,555 | $700.58 | | |
| | Total Tax Rate: | 6.9861102925 | | | | | |
| | | | | Taxes w/Current Exemptions: | $5,990.97 | | |
| | | | | Taxes w/o Exemptions: | $5,990.97 | | |
Improvement / Building
| Improvement #1: | RESIDENTIAL | State Code: | Y | 2320.0 sqft | Value: | $567,555 |
| Bathrooms: | 3 | Bedrooms: | 3 | | Ceiling: | DRYWALL PAINTED | Cooling: | HEAT PUMP/CONV/V | | Exterior Wall/Cover: | WOOD SIDING | Floor Covering: | CARPET/VINYL 60-40 | | Floor Structure: | WOOD W/SUBFLOOR | Foundation: | CONCRETE | | Interior Finish: | DRYWALL PAINT | Plumbing Fixture Cnt: | 12 | | Roof Slope: | 5" IN 12" | Roof Structure/Cover: | CJ ALUMINIUM HEAVY |
|
| | Type | Description | Class CD | Sub Class CD | Year Built | Area |
| | BAS | BASE/MAIN FLOOR | 4 | 0 | 1979 | 2320.0 |
| | AGR | ATTACHED GARAGE | 4 | 0 | 1979 | 528.0 |
| | OWP | OPEN WOOD PORCH W/STEPS | 4 | 0 | 1979 | 944.0 |
| | DGR | DETACHED GARAGE | 4 | 0 | 1979 | 1248.0 |
| | CPD | OPEN CARPORT DIRT FLOOR | 4 | 0 | 1979 | 312.0 |
| | OP3 | OPEN PORCH W/ROOF | 4 | 0 | 1979 | 120.0 |
| | ENP | ENCLOSED PORCH | 4 | 0 | 1979 | 312.0 |
Sketch
Property Image
Land
| 1 | 32 | AC (03.01-09.99) | 4.9500 | 0.00 | 0.00 | 0.00 | 1.00 | $290,000 | $0 |
Roll Value History
| 2026 | N/A | N/A | N/A | N/A | N/A |
| 2025 | $567,555 | $290,000 | $0 | $857,555 | $857,555 |
| 2024 | $574,059 | $260,000 | $0 | $834,059 | $834,059 |
| 2023 | $542,887 | $250,000 | $0 | $792,887 | $792,887 |
| 2022 | $497,222 | $220,000 | $0 | $717,222 | $717,222 |
| 2021 | $437,247 | $190,000 | $0 | $627,247 | $627,247 |
| 2020 | $424,885 | $140,000 | $0 | $564,885 | $564,885 |
| 2019 | $317,452 | $200,000 | $0 | $517,452 | $517,452 |
| 2018 | $284,145 | $170,000 | $0 | $454,145 | $454,145 |
| 2017 | $267,766 | $160,000 | $0 | $427,766 | $427,766 |
| 2016 | $270,908 | $160,000 | $0 | $430,908 | $430,908 |
| 2015 | $261,196 | $135,000 | $0 | $396,196 | $396,196 |
| 2014 | $264,256 | $135,000 | $0 | $399,256 | $399,256 |
| 2013 | $267,315 | $120,285 | $0 | $387,600 | $387,600 |
| 2012 | $270,375 | $120,285 | $0 | $390,660 | $390,660 |
| 2011 | $291,524 | $133,650 | $0 | $425,174 | $425,174 |
| 2010 | $293,234 | $133,650 | $0 | $426,884 | $426,884 |
| 2009 | $306,074 | $158,400 | $0 | $464,474 | $464,474 |
| 2008 | $315,384 | $134,719 | $0 | $450,103 | $450,103 |
| 2007 | $321,092 | $134,719 | $0 | $455,811 | $455,811 |
Deed and Sales History
| 1 | 07/13/2018 | WD | Warranty Deed | GORE, WANDA Z | COWAN, TROY GORDON | | | $539,000.00 | 35213 | 4448891 |
| 2 | 12/21/2004 | WD | Warranty Deed | SEABOLT, JAMES L | GORE, WANDA Z | | | $428,000.00 | 50023 | 4122310 |
| 3 | 05/01/1987 | WD | Warranty Deed | WALKER, MICHAEL L | SEABOLT, JAMES L | | | $124,500.00 | 71273 | 87006277 |
| 4 | 12/01/1982 | WD | Warranty Deed | SEABOLT, JAMES L | WALKER, MICHAEL L | | | $42,500.00 | 23167 | 404289 |
| 5 | 02/01/1981 | WD | Warranty Deed | MT, BAKER M | SEABOLT, JAMES L | | | $34,900.00 | 10576 | 379910 |
| 6 | 01/01/1981 | CD | DNU - Correction Deed | BANDY, THOMAS J | MT, BAKER M | | | $0.00 | 0 | 374367 |
| 7 | 03/01/1979 | OTHER | Other - Misc. Documents | Unknown | BANDY, THOMAS J | | | $22,950.00 | 91116 | 348999 |
Payout Agreement
| No payout information available.. |