Property
Account |
| Property ID: | 173966 | Abbreviated Legal Description: | ADMIRALS COVE 3 LOT 100 |
| Geographic ID: | S6010-03-00100-0 | Agent Code: | |
| Type: | Real | | |
| Tax Area: | 390 - APPRAISER-Cpvl Schl Dist, Special Dist, improved & less than 1 acre | Land Use Code | 11 |
| Open Space: | N | DFL | N |
| Historic Property: | N | Remodel Property: | N |
| Multi-Family Redevelopment: | N | | |
| Township: | | Section: | |
| Range: | |
Location |
| Address: | 144 FLETCHER PLACE COUPEVILLE, WA 98239 | Mapsco: | |
| Neighborhood: | Cycle 2 | Map ID: | 59 |
| Neighborhood CD: | 2 |
Owner |
| Name: | NGUYEN, KIM | Owner ID: | 290015 |
| Mailing Address: | 144 FLETCHER PL COUPEVILLE, WA 98239 | % Ownership: | 100.0000000000% |
| | | Exemptions: | |
Taxes and Assessment Details
Values
| (+) Improvement Homesite Value: | + | $0 | |
| (+) Improvement Non-Homesite Value: | + | $355,313 | |
| (+) Land Homesite Value: | + | $0 | |
| (+) Land Non-Homesite Value: | + | $205,000 | |
| (+) Curr Use (HS): | + | $0 | $0 |
| (+) Curr Use (NHS): | + | $0 | $0 |
| | | -------------------------- | |
| (=) Market Value: | = | $560,313 | |
| (–) Productivity Loss: | – | $0 | |
| | | -------------------------- | |
| (=) Subtotal: | = | $560,313 | |
| (+) Senior Appraised Value: | + | $0 | |
| (+) Non-Senior Appraised Value: | + | $560,313 | |
| | | -------------------------- | |
| (=) Total Appraised Value: | = | $560,313 | |
| (–) Senior Exemption Loss: | – | $0 | |
| (–) Exemption Loss: | – | $0 | |
| | | -------------------------- | |
| (=) Taxable Value: | = | $560,313 | |
Taxing Jurisdiction
| Owner: | NGUYEN, KIM | | |
| % Ownership: | 100.0000000000% | | |
| Total Value: | $560,313 | | |
| Tax Area: | 390 - APPRAISER-Cpvl Schl Dist, Special Dist, improved & less than 1 acre |
| CF | Conservation Futures | 0.0316035091 | $560,313 | $560,313 | $17.71 | | |
| CEM2 | Cemetery #2 | 0.0095056933 | $560,313 | $560,313 | $5.33 | | |
| FIRE5 | Fire & Rescue Dist #5 C Whidbey GEN | 1.2008080668 | $560,313 | $560,313 | $672.83 | | |
| FIRE5BOND | Fire & Rescue Dist #5 C Whidbey BOND | 0.1400090713 | $560,313 | $560,313 | $78.45 | | |
| HOBOND | Hospital BOND | 0.1910887512 | $560,313 | $560,313 | $107.07 | | |
| HOGEN | Hospital GEN | 0.3902502903 | $560,313 | $560,313 | $218.66 | | |
| CE | County Current Expense | 0.3708482477 | $560,313 | $560,313 | $207.79 | | |
| CR | County Roads | 0.4584763726 | $560,313 | $560,313 | $256.89 | | |
| ISLANDEMS | Hospital GEN (EMS) | 0.5000000000 | $560,313 | $560,313 | $280.16 | | |
| LIB | Library Sno-Isle GEN | 0.3153421757 | $560,313 | $560,313 | $176.69 | | |
| LIBCAP | Library Sno-Isle BOND (Cap Fac Imp Area) | 0.0543427938 | $560,313 | $560,313 | $30.45 | | |
| POCOUP | Port of Coupeville GEN | 0.1093371703 | $560,313 | $560,313 | $61.26 | | |
| POCOUPIDD | Port of Coupeville IDD | 0.3409740022 | $560,313 | $560,313 | $191.05 | | |
| COUPSDTECH | School 204 CP (TECH) | 0.7545480007 | $560,313 | $560,313 | $422.78 | | |
| SCH204MO | School 204 Enrichment | 0.6716186034 | $560,313 | $560,313 | $376.32 | | |
| ST | State School | 1.3035497053 | $560,313 | $560,313 | $730.40 | | |
| ST2 | State School Part 2 | 0.8169543533 | $560,313 | $560,313 | $457.75 | | |
| | Total Tax Rate: | 7.6592568070 | | | | | |
| | | | | Taxes w/Current Exemptions: | $4,291.59 | | |
| | | | | Taxes w/o Exemptions: | $4,291.59 | | |
Improvement / Building
| Improvement #1: | RESIDENTIAL | State Code: | Y | 1973.0 sqft | Value: | $355,313 |
| Bathrooms: | 2 | Bedrooms: | 3 | | Ceiling: | DRYWALL PAINTED | Cooling: | HEAT PUMP/CONV/V | | Exterior Wall/Cover: | CEMENT FIBER | Floor Covering: | CARPET/VINYL 20-80 | | Floor Structure: | WOOD W/SUBFLOOR | Foundation: | CONCRETE | | Interior Finish: | DRYWALL PAINT | Plumbing Fixture Cnt: | 11 | | Roof Slope: | 6" IN 12" | Roof Structure/Cover: | CJ ASPHALT |
|
| | Type | Description | Class CD | Sub Class CD | Year Built | Area |
| | BAS | BASE/MAIN FLOOR | 3 | 0 | 2018 | 1298.0 |
| | BIG | BUILT IN GARAGE | 3 | 0 | 2018 | 594.0 |
| | DWN | DOWNSTAIRS LIVING AREA | 3 | 0 | 2018 | 675.0 |
| | OWP | OPEN WOOD PORCH W/STEPS | 3 | 0 | 2018 | 24.0 |
| | OWP | OPEN WOOD PORCH W/STEPS | 3 | 0 | 2018 | 84.0 |
Sketch
| No sketches available for this property. |
Property Image
Land
| 1 | 13 | SQ (06001-08000) | 0.1666 | 7257.10 | 0.00 | 0.00 | 1.00 | $205,000 | $0 |
Roll Value History
| 2026 | N/A | N/A | N/A | N/A | N/A |
| 2025 | $355,313 | $205,000 | $0 | $560,313 | $560,313 |
| 2024 | $350,188 | $195,000 | $0 | $545,188 | $545,188 |
| 2023 | $353,013 | $200,000 | $0 | $553,013 | $553,013 |
| 2022 | $322,209 | $190,000 | $0 | $512,209 | $512,209 |
| 2021 | $282,411 | $130,000 | $0 | $412,411 | $412,411 |
| 2020 | $274,919 | $110,000 | $0 | $384,919 | $384,919 |
| 2019 | $212,598 | $170,000 | $0 | $382,598 | $382,598 |
| 2018 | $0 | $35,000 | $0 | $35,000 | $35,000 |
| 2017 | $0 | $30,000 | $0 | $30,000 | $30,000 |
| 2016 | $0 | $30,000 | $0 | $30,000 | $30,000 |
| 2015 | $0 | $30,000 | $0 | $30,000 | $30,000 |
| 2014 | $0 | $30,000 | $0 | $30,000 | $30,000 |
| 2013 | $0 | $30,000 | $0 | $30,000 | $30,000 |
| 2012 | $0 | $21,623 | $0 | $21,623 | $21,623 |
| 2011 | $0 | $21,623 | $0 | $21,623 | $21,623 |
| 2010 | $0 | $21,623 | $0 | $21,623 | $21,623 |
| 2009 | $0 | $45,000 | $0 | $45,000 | $45,000 |
| 2008 | $0 | $25,000 | $0 | $25,000 | $25,000 |
| 2007 | $0 | $35,000 | $0 | $35,000 | $35,000 |
Deed and Sales History
| 1 | 05/28/2019 | WD | Warranty Deed | RIEPMA & MOTTET CONSTRUCTION, LLC | NGUYEN, KIM | | | $390,000.00 | 38759 | 4464438 |
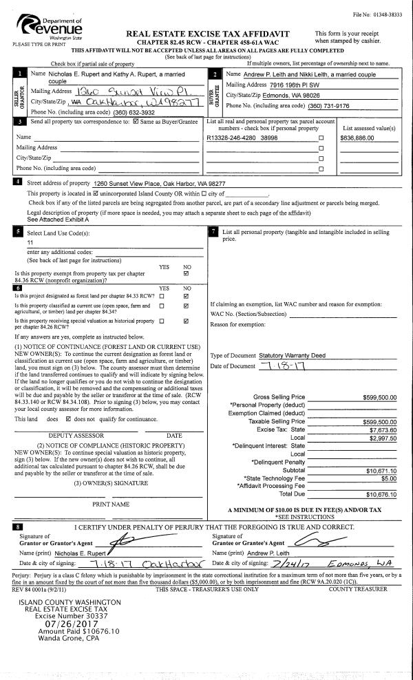
| 2 | 07/05/2017 | WD | Warranty Deed | JOHNSTONE, MARC W | RIEPMA & MOTTET CONSTRUCTION, LLC | | | $16,000.00 | 30348 | 4426958 |
| 3 | 01/21/2000 | QCD | Quit Claim Deed | JOHNSTONE, MARC W | JOHNSTONE, MARC W | | | $0.00 | 367 | 20001943 |
| 4 | 12/01/1987 | QCD | Quit Claim Deed | JOHNSTONE, KENNETH W | JOHNSTONE, MARC W | | | $0.00 | 80022 | 88000087 |
| 5 | 01/01/1900 | OTHER | Other - Misc. Documents | Unknown | JOHNSTONE, KENNETH W | | | $4,244.00 | 0 | 0 |
Payout Agreement
| No payout information available.. |