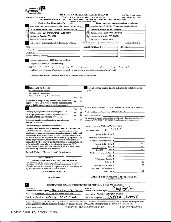
Property
Account |
| Property ID: | 174046 | Abbreviated Legal Description: | ADMIRALS COVE 3 LOT 108 |
| Geographic ID: | S6010-03-00108-0 | Agent Code: | |
| Type: | Real | | |
| Tax Area: | 330 - APPRAISER-Cpvl Schl Dist, Special Dist, improved & less than 1 acre | Land Use Code | 11 |
| Open Space: | N | DFL | N |
| Historic Property: | N | Remodel Property: | N |
| Multi-Family Redevelopment: | N | | |
| Township: | | Section: | |
| Range: | |
Location |
| Address: | 160 FLETCHER PLACE COUPEVILLE, WA 98239 | Mapsco: | |
| Neighborhood: | Cycle 2 | Map ID: | 59 |
| Neighborhood CD: | 2 |
Owner |
| Name: | PADILLA, VICTORIA | Owner ID: | 302258 |
| Mailing Address: | 160 FLETCHER PL COUPEVILLE, WA 98239 | % Ownership: | 100.0000000000% |
| | | Exemptions: | |
Taxes and Assessment Details
Values
| (+) Improvement Homesite Value: | + | $0 | |
| (+) Improvement Non-Homesite Value: | + | $279,117 | |
| (+) Land Homesite Value: | + | $0 | |
| (+) Land Non-Homesite Value: | + | $205,000 | |
| (+) Curr Use (HS): | + | $0 | $0 |
| (+) Curr Use (NHS): | + | $0 | $0 |
| | | -------------------------- | |
| (=) Market Value: | = | $484,117 | |
| (–) Productivity Loss: | – | $0 | |
| | | -------------------------- | |
| (=) Subtotal: | = | $484,117 | |
| (+) Senior Appraised Value: | + | $0 | |
| (+) Non-Senior Appraised Value: | + | $484,117 | |
| | | -------------------------- | |
| (=) Total Appraised Value: | = | $484,117 | |
| (–) Senior Exemption Loss: | – | $0 | |
| (–) Exemption Loss: | – | $0 | |
| | | -------------------------- | |
| (=) Taxable Value: | = | $484,117 | |
Taxing Jurisdiction
| Owner: | PADILLA, VICTORIA | | |
| % Ownership: | 100.0000000000% | | |
| Total Value: | $484,117 | | |
| Tax Area: | 330 - APPRAISER-Cpvl Schl Dist, Special Dist, improved & less than 1 acre |
| CF | Conservation Futures | 0.0316035091 | $484,117 | $484,117 | $15.30 | | |
| CEM2 | Cemetery #2 | 0.0095056933 | $484,117 | $484,117 | $4.60 | | |
| FIRE2 | Fire & Rescue Dist #2 N Whidbey GEN | 0.5475949600 | $484,117 | $484,117 | $265.10 | | |
| HOBOND | Hospital BOND | 0.1910887512 | $484,117 | $484,117 | $92.51 | | |
| HOGEN | Hospital GEN | 0.3902502903 | $484,117 | $484,117 | $188.93 | | |
| CE | County Current Expense | 0.3708482477 | $484,117 | $484,117 | $179.53 | | |
| CR | County Roads | 0.4584763726 | $484,117 | $484,117 | $221.96 | | |
| ISLANDEMS | Hospital GEN (EMS) | 0.5000000000 | $484,117 | $484,117 | $242.06 | | |
| LIB | Library Sno-Isle GEN | 0.3153421757 | $484,117 | $484,117 | $152.66 | | |
| LIBCAP | Library Sno-Isle BOND (Cap Fac Imp Area) | 0.0543427938 | $484,117 | $484,117 | $26.31 | | |
| POCOUP | Port of Coupeville GEN | 0.1093371703 | $484,117 | $484,117 | $52.93 | | |
| POCOUPIDD | Port of Coupeville IDD | 0.3409740022 | $484,117 | $484,117 | $165.07 | | |
| COUPSDTECH | School 204 CP (TECH) | 0.7545480007 | $484,117 | $484,117 | $365.29 | | |
| SCH204MO | School 204 Enrichment | 0.6716186034 | $484,117 | $484,117 | $325.14 | | |
| ST | State School | 1.3035497053 | $484,117 | $484,117 | $631.07 | | |
| ST2 | State School Part 2 | 0.8169543533 | $484,117 | $484,117 | $395.50 | | |
| | Total Tax Rate: | 6.8660346289 | | | | | |
| | | | | Taxes w/Current Exemptions: | $3,323.96 | | |
| | | | | Taxes w/o Exemptions: | $3,323.96 | | |
Improvement / Building
| Improvement #1: | RESIDENTIAL | State Code: | Y | 1596.0 sqft | Value: | $279,117 |
| Bathrooms: | 1.5 | Bedrooms: | 3 | | Ceiling: | DRYWALL PAINTED | Exterior Wall/Cover: | CEMENT FIBER | | Floor Covering: | CARPET/VINYL 20-80 | Floor Structure: | WOOD W/SUBFLOOR | | Foundation: | CONCRETE | Heating: | WALL HEAT ELECTRIC | | Interior Finish: | DRYWALL PAINT | Plumbing Fixture Cnt: | 8 | | Roof Slope: | 6" IN 12" | Roof Structure/Cover: | CJ ASPHALT |
|
| | Type | Description | Class CD | Sub Class CD | Year Built | Area |
| | BAS | BASE/MAIN FLOOR | 3 | 0 | 2016 | 660.0 |
| | UPS | UPPER STORY | 3 | 0 | 2016 | 936.0 |
| | BIG | BUILT IN GARAGE | 3 | 0 | 2016 | 432.0 |
| | OWC | OPEN WOOD PORCH W/STEPS/ROOF/C | 3 | 0 | 2016 | 110.0 |
Sketch
Property Image
Land
| 1 | 13 | SQ (06001-08000) | 0.1653 | 7200.47 | 0.00 | 0.00 | 1.00 | $205,000 | $0 |
Roll Value History
| 2026 | N/A | N/A | N/A | N/A | N/A |
| 2025 | $279,117 | $205,000 | $0 | $484,117 | $484,117 |
| 2024 | $276,849 | $195,000 | $0 | $471,849 | $471,849 |
| 2023 | $279,117 | $200,000 | $0 | $479,117 | $479,117 |
| 2022 | $254,789 | $190,000 | $0 | $444,789 | $444,789 |
| 2021 | $223,353 | $130,000 | $0 | $353,353 | $353,353 |
| 2020 | $216,961 | $110,000 | $0 | $326,961 | $326,961 |
| 2019 | $162,017 | $170,000 | $0 | $332,017 | $332,017 |
| 2018 | $167,078 | $140,000 | $0 | $307,078 | $307,078 |
| 2017 | $167,935 | $120,000 | $0 | $287,935 | $287,935 |
| 2016 | $91,793 | $30,000 | $0 | $121,793 | $121,793 |
| 2015 | $0 | $30,000 | $0 | $30,000 | $30,000 |
| 2014 | $0 | $30,000 | $0 | $30,000 | $30,000 |
| 2013 | $0 | $30,000 | $0 | $30,000 | $30,000 |
| 2012 | $0 | $41,515 | $0 | $41,515 | $41,515 |
| 2011 | $0 | $41,515 | $0 | $41,515 | $41,515 |
| 2010 | $0 | $41,515 | $0 | $41,515 | $41,515 |
| 2009 | $0 | $60,000 | $0 | $60,000 | $60,000 |
| 2008 | $0 | $37,000 | $0 | $37,000 | $37,000 |
| 2007 | $0 | $40,000 | $0 | $40,000 | $40,000 |
Deed and Sales History
| 1 | 11/23/2021 | QCD | Quit Claim Deed | GARCIA, NIKKI | PADILLA, VICTORIA | | | $0.00 | 51217 | 4535311 |
| 2 | 09/07/2018 | WD | Warranty Deed | MOTTET, BRADLEY J | GARCIA, NIKKI | | | $316,500.00 | 35831 | 4451442 |
| 3 | 05/24/2018 | QCD | Quit Claim Deed | MOTTET, BRADLEY J | MOTTET, BRADLEY J | | | $0.00 | 34522 | 4446167 |
| 4 | 02/02/2015 | WD | Warranty Deed | CARPER, BARBARA L | MOTTET, BRADLEY J | | | $30,000.00 | 18400 | 4372711 |
| 5 | 08/01/1988 | QCD | Quit Claim Deed | WAHTO, ALBERT O | CARPER, BARBARA L | | | $0.00 | 82870 | 88010746 |
| 6 | 01/01/1900 | OTHER | Other - Misc. Documents | Unknown | WAHTO, ALBERT O | | | $4,495.00 | 0 | 0 |
Payout Agreement
| No payout information available.. |