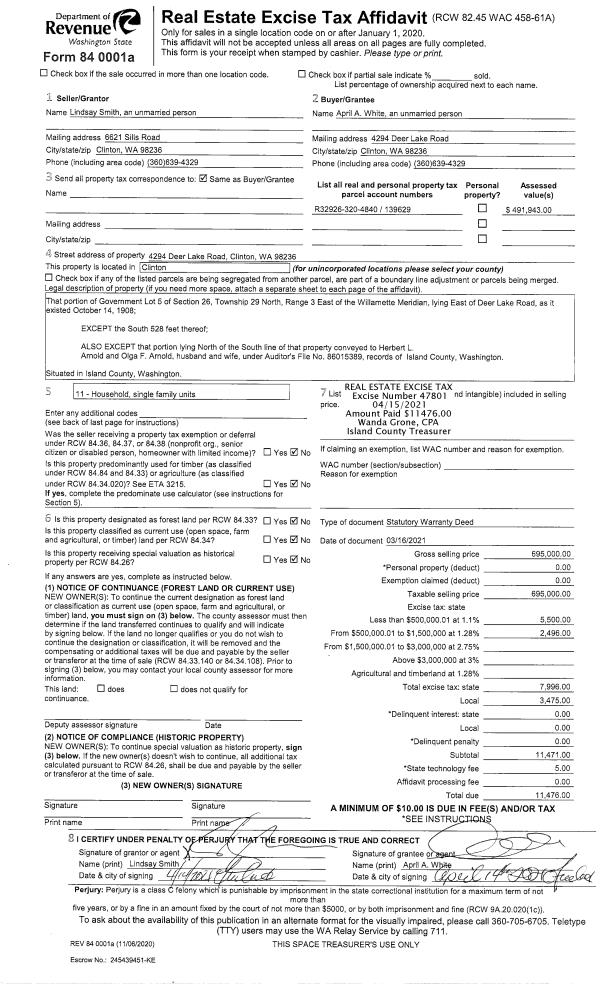
Property
Account |
| Property ID: | 174091 | Abbreviated Legal Description: | ADMIRALS COVE 3 LOT 113 |
| Geographic ID: | S6010-03-00113-0 | Agent Code: | |
| Type: | Real | | |
| Tax Area: | 390 - APPRAISER-Cpvl Schl Dist, Special Dist, improved & less than 1 acre | Land Use Code | 11 |
| Open Space: | N | DFL | N |
| Historic Property: | N | Remodel Property: | N |
| Multi-Family Redevelopment: | N | | |
| Township: | | Section: | |
| Range: | |
Location |
| Address: | 178 PERRY DR COUPEVILLE, WA 98239 | Mapsco: | |
| Neighborhood: | Cycle 2 | Map ID: | 59 |
| Neighborhood CD: | 2 |
Owner |
| Name: | JONES, ANGUS | Owner ID: | 297680 |
| Mailing Address: | 178 PERRY DR COUPEVILLE, WA 98239 | % Ownership: | 100.0000000000% |
| | | Exemptions: | |
Taxes and Assessment Details
Values
| (+) Improvement Homesite Value: | + | $0 | |
| (+) Improvement Non-Homesite Value: | + | $233,287 | |
| (+) Land Homesite Value: | + | $0 | |
| (+) Land Non-Homesite Value: | + | $185,000 | |
| (+) Curr Use (HS): | + | $0 | $0 |
| (+) Curr Use (NHS): | + | $0 | $0 |
| | | -------------------------- | |
| (=) Market Value: | = | $418,287 | |
| (–) Productivity Loss: | – | $0 | |
| | | -------------------------- | |
| (=) Subtotal: | = | $418,287 | |
| (+) Senior Appraised Value: | + | $0 | |
| (+) Non-Senior Appraised Value: | + | $418,287 | |
| | | -------------------------- | |
| (=) Total Appraised Value: | = | $418,287 | |
| (–) Senior Exemption Loss: | – | $0 | |
| (–) Exemption Loss: | – | $0 | |
| | | -------------------------- | |
| (=) Taxable Value: | = | $418,287 | |
Taxing Jurisdiction
| Owner: | JONES, ANGUS | | |
| % Ownership: | 100.0000000000% | | |
| Total Value: | $418,287 | | |
| Tax Area: | 390 - APPRAISER-Cpvl Schl Dist, Special Dist, improved & less than 1 acre |
| CF | Conservation Futures | 0.0316035091 | $418,287 | $418,287 | $13.22 | | |
| CEM2 | Cemetery #2 | 0.0095056933 | $418,287 | $418,287 | $3.98 | | |
| FIRE5 | Fire & Rescue Dist #5 C Whidbey GEN | 1.2008080668 | $418,287 | $418,287 | $502.28 | | |
| FIRE5BOND | Fire & Rescue Dist #5 C Whidbey BOND | 0.1400090713 | $418,287 | $418,287 | $58.56 | | |
| HOBOND | Hospital BOND | 0.1910887512 | $418,287 | $418,287 | $79.93 | | |
| HOGEN | Hospital GEN | 0.3902502903 | $418,287 | $418,287 | $163.24 | | |
| CE | County Current Expense | 0.3708482477 | $418,287 | $418,287 | $155.12 | | |
| CR | County Roads | 0.4584763726 | $418,287 | $418,287 | $191.77 | | |
| ISLANDEMS | Hospital GEN (EMS) | 0.5000000000 | $418,287 | $418,287 | $209.14 | | |
| LIB | Library Sno-Isle GEN | 0.3153421757 | $418,287 | $418,287 | $131.90 | | |
| LIBCAP | Library Sno-Isle BOND (Cap Fac Imp Area) | 0.0543427938 | $418,287 | $418,287 | $22.73 | | |
| POCOUP | Port of Coupeville GEN | 0.1093371703 | $418,287 | $418,287 | $45.73 | | |
| POCOUPIDD | Port of Coupeville IDD | 0.3409740022 | $418,287 | $418,287 | $142.62 | | |
| COUPSDTECH | School 204 CP (TECH) | 0.7545480007 | $418,287 | $418,287 | $315.62 | | |
| SCH204MO | School 204 Enrichment | 0.6716186034 | $418,287 | $418,287 | $280.93 | | |
| ST | State School | 1.3035497053 | $418,287 | $418,287 | $545.26 | | |
| ST2 | State School Part 2 | 0.8169543533 | $418,287 | $418,287 | $341.72 | | |
| | Total Tax Rate: | 7.6592568070 | | | | | |
| | | | | Taxes w/Current Exemptions: | $3,203.75 | | |
| | | | | Taxes w/o Exemptions: | $3,203.75 | | |
Improvement / Building
| Improvement #1: | RESIDENTIAL | State Code: | Y | 1228.0 sqft | Value: | $233,287 |
| Bathrooms: | 2 | Bedrooms: | 0 | | Ceiling: | DRYWALL PAINTED | Exterior Wall/Cover: | VINYL | | Floor Covering: | CARPET/VINYL 80-20 | Floor Structure: | WOOD W/SUBFLOOR | | Foundation: | CONCRETE | Heating: | WALL HEAT ELECTRIC | | Interior Finish: | DRYWALL PAINT | Plumbing Fixture Cnt: | 9 | | Roof Slope: | 5" IN 12" | Roof Structure/Cover: | CJ ASPHALT |
|
| | Type | Description | Class CD | Sub Class CD | Year Built | Area |
| | BAS | BASE/MAIN FLOOR | 3 | 0 | 1991 | 614.0 |
| | OP3 | OPEN PORCH W/ROOF | 3 | 0 | 1991 | 32.0 |
| | AGR | ATTACHED GARAGE | 3 | 0 | 1991 | 528.0 |
| | UPS | UPPER STORY | 3 | 0 | 1991 | 614.0 |
| | OWP | OPEN WOOD PORCH W/STEPS | 3 | 0 | 1991 | 32.0 |
| | OWC | OPEN WOOD PORCH W/STEPS/ROOF/C | 3 | 0 | 1991 | 32.0 |
Sketch
Property Image
Land
| 1 | 14 | SQ (08001-12000) | 0.2162 | 9417.67 | 0.00 | 0.00 | 1.00 | $185,000 | $0 |
Roll Value History
| 2026 | N/A | N/A | N/A | N/A | N/A |
| 2025 | $233,287 | $185,000 | $0 | $418,287 | $418,287 |
| 2024 | $236,089 | $175,000 | $0 | $411,089 | $411,089 |
| 2023 | $238,891 | $175,000 | $0 | $413,891 | $413,891 |
| 2022 | $218,850 | $160,000 | $0 | $378,850 | $378,850 |
| 2021 | $192,508 | $125,000 | $0 | $317,508 | $317,508 |
| 2020 | $174,420 | $100,000 | $0 | $274,420 | $274,420 |
| 2019 | $123,955 | $140,000 | $0 | $263,955 | $263,955 |
| 2018 | $121,350 | $115,000 | $0 | $236,350 | $236,350 |
| 2017 | $122,094 | $100,000 | $0 | $222,094 | $222,094 |
| 2016 | $123,582 | $65,000 | $0 | $188,582 | $188,582 |
| 2015 | $125,073 | $50,000 | $0 | $175,073 | $175,073 |
| 2014 | $126,561 | $50,000 | $0 | $176,561 | $176,561 |
| 2013 | $128,050 | $50,000 | $0 | $178,050 | $178,050 |
| 2012 | $118,036 | $55,380 | $0 | $173,416 | $173,416 |
| 2011 | $119,531 | $65,153 | $0 | $184,684 | $184,684 |
| 2010 | $125,322 | $65,153 | $0 | $190,475 | $190,475 |
| 2009 | $130,621 | $90,000 | $0 | $220,621 | $220,621 |
| 2008 | $132,141 | $90,000 | $0 | $222,141 | $222,141 |
| 2007 | $133,723 | $90,000 | $0 | $223,723 | $223,723 |
Deed and Sales History
| 1 | 01/04/2021 | WD | Warranty Deed | BRESE JTWROS, JAMES | JONES, ANGUS | | | $360,000.00 | 46510 | 4507600 |
| 2 | 12/22/2015 | SPWARDEED | Special Warranty Deed | BANK OF NEW YORK MELLON TRUST COMPANY | BRESE JTWROS, JAMES | | | $180,000.00 | 23067 | 4393680 |
| 3 | 07/16/2015 | TRUSTEED | Trustee's Deed | JENSEN, JILL C | BANK OF NEW YORK MELLON TRUST COMPANY | | | $0.00 | 20516 | 4382385 |
| 4 | 09/18/2006 | ESTSEPPROP | Establish Separate Property | JENSEN, JILL C | JENSEN, JILL C | | | $0.00 | 64062 | 418 |
| 5 | 09/18/2006 | WD | Warranty Deed | KING, BRADLEY | JENSEN, JILL C | | | $197,760.00 | 64061 | 4182349 |
| 6 | 11/26/2002 | WD | Warranty Deed | HOME BUYERS, EMERALD MOUNTAIN | KING, BRADLEY | | | $139,900.00 | 24886 | 4039751 |
| 7 | 11/27/2002 | WD | Warranty Deed | CROW, SCOTT F | HOME BUYERS, EMERALD MOUNTAIN | | | $112,289.00 | 24885 | 4039750 |
| 8 | 07/01/1991 | WD | Warranty Deed | BODIN, CONSTRUCTION | CROW, SCOTT F | | | $98,000.00 | 12382 | 91010241 |
| 9 | 09/01/1990 | WD | Warranty Deed | CHEESMAN, WILLIAM E | BODIN, CONSTRUCTION | | | $12,000.00 | 5834 | 90019697 |
| 10 | 01/01/1900 | OTHER | Other - Misc. Documents | Unknown | CHEESMAN, WILLIAM E | | | $4,250.00 | 0 | 0 |
Payout Agreement
| No payout information available.. |