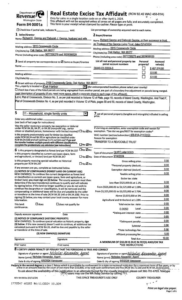
Property
Account |
| Property ID: | 174224 | Abbreviated Legal Description: | ADMIRALS COVE 3 LOT 126 |
| Geographic ID: | S6010-03-00126-0 | Agent Code: | |
| Type: | Real | | |
| Tax Area: | 390 - APPRAISER-Cpvl Schl Dist, Special Dist, improved & less than 1 acre | Land Use Code | 11 |
| Open Space: | N | DFL | N |
| Historic Property: | N | Remodel Property: | N |
| Multi-Family Redevelopment: | N | | |
| Township: | | Section: | |
| Range: | |
Location |
| Address: | 153 PERRY DR COUPEVILLE, WA 98239 | Mapsco: | |
| Neighborhood: | Cycle 2 | Map ID: | 59 |
| Neighborhood CD: | 2 |
Owner |
| Name: | KIRKPATRICK, MICHELE | Owner ID: | 310248 |
| Mailing Address: | 153 PERRY DR COUPEVILLE, WA 98239 | % Ownership: | 100.0000000000% |
| | | Exemptions: | |
Taxes and Assessment Details
Values
| (+) Improvement Homesite Value: | + | $0 | |
| (+) Improvement Non-Homesite Value: | + | $409,106 | |
| (+) Land Homesite Value: | + | $0 | |
| (+) Land Non-Homesite Value: | + | $205,000 | |
| (+) Curr Use (HS): | + | $0 | $0 |
| (+) Curr Use (NHS): | + | $0 | $0 |
| | | -------------------------- | |
| (=) Market Value: | = | $614,106 | |
| (–) Productivity Loss: | – | $0 | |
| | | -------------------------- | |
| (=) Subtotal: | = | $614,106 | |
| (+) Senior Appraised Value: | + | $0 | |
| (+) Non-Senior Appraised Value: | + | $614,106 | |
| | | -------------------------- | |
| (=) Total Appraised Value: | = | $614,106 | |
| (–) Senior Exemption Loss: | – | $0 | |
| (–) Exemption Loss: | – | $0 | |
| | | -------------------------- | |
| (=) Taxable Value: | = | $614,106 | |
Taxing Jurisdiction
| Owner: | KIRKPATRICK, MICHELE | | |
| % Ownership: | 100.0000000000% | | |
| Total Value: | $614,106 | | |
| Tax Area: | 390 - APPRAISER-Cpvl Schl Dist, Special Dist, improved & less than 1 acre |
| CF | Conservation Futures | 0.0316035091 | $614,106 | $614,106 | $19.41 | | |
| CEM2 | Cemetery #2 | 0.0095056933 | $614,106 | $614,106 | $5.84 | | |
| FIRE5 | Fire & Rescue Dist #5 C Whidbey GEN | 1.2008080668 | $614,106 | $614,106 | $737.42 | | |
| FIRE5BOND | Fire & Rescue Dist #5 C Whidbey BOND | 0.1400090713 | $614,106 | $614,106 | $85.98 | | |
| HOBOND | Hospital BOND | 0.1910887512 | $614,106 | $614,106 | $117.35 | | |
| HOGEN | Hospital GEN | 0.3902502903 | $614,106 | $614,106 | $239.66 | | |
| CE | County Current Expense | 0.3708482477 | $614,106 | $614,106 | $227.74 | | |
| CR | County Roads | 0.4584763726 | $614,106 | $614,106 | $281.55 | | |
| ISLANDEMS | Hospital GEN (EMS) | 0.5000000000 | $614,106 | $614,106 | $307.05 | | |
| LIB | Library Sno-Isle GEN | 0.3153421757 | $614,106 | $614,106 | $193.65 | | |
| LIBCAP | Library Sno-Isle BOND (Cap Fac Imp Area) | 0.0543427938 | $614,106 | $614,106 | $33.37 | | |
| POCOUP | Port of Coupeville GEN | 0.1093371703 | $614,106 | $614,106 | $67.14 | | |
| POCOUPIDD | Port of Coupeville IDD | 0.3409740022 | $614,106 | $614,106 | $209.39 | | |
| COUPSDTECH | School 204 CP (TECH) | 0.7545480007 | $614,106 | $614,106 | $463.37 | | |
| SCH204MO | School 204 Enrichment | 0.6716186034 | $614,106 | $614,106 | $412.45 | | |
| ST | State School | 1.3035497053 | $614,106 | $614,106 | $800.52 | | |
| ST2 | State School Part 2 | 0.8169543533 | $614,106 | $614,106 | $501.70 | | |
| | Total Tax Rate: | 7.6592568070 | | | | | |
| | | | | Taxes w/Current Exemptions: | $4,703.59 | | |
| | | | | Taxes w/o Exemptions: | $4,703.59 | | |
Improvement / Building
| Improvement #1: | RESIDENTIAL | State Code: | Y | 2658.0 sqft | Value: | $409,106 |
| Bathrooms: | 3.5 | Bedrooms: | 2 | | Ceiling: | DRYWALL PAINTED | Exterior Wall/Cover: | CEMENT FIBER | | Floor Covering: | CARPET/VINYL 80-20 | Floor Structure: | WOOD W/SUBFLOOR | | Foundation: | CONCRETE | Heating: | FHA GAS | | Interior Finish: | DRYWALL PAINT | Plumbing Fixture Cnt: | 18 | | Roof Slope: | 5" IN 12" | Roof Structure/Cover: | CJ ASPHALT |
|
| | Type | Description | Class CD | Sub Class CD | Year Built | Area |
| | BAS | BASE/MAIN FLOOR | 3 | 0 | 2005 | 1302.0 |
| | BIG | BUILT IN GARAGE | 3 | 0 | 2005 | 696.0 |
| | UPS | UPPER STORY | 3 | 0 | 2005 | 678.0 |
| | OWP | OPEN WOOD PORCH W/STEPS | 3 | 0 | 2005 | 267.0 |
| | OWP | OPEN WOOD PORCH W/STEPS | 3 | 0 | 2005 | 108.0 |
| | OWR | OPEN WOOD PORCH W/STEPS/ROOF | 3 | 0 | 2005 | 48.0 |
| | DWN | DOWNSTAIRS LIVING AREA | 3 | 0 | 2005 | 678.0 |
| | UTY | STORAGE/UTILITY | 3 | 0 | 2005 | 108.0 |
Sketch
Property Image
Land
| 1 | 14 | SQ (08001-12000) | 0.2387 | 10397.77 | 0.00 | 0.00 | 1.00 | $205,000 | $0 |
Roll Value History
| 2026 | N/A | N/A | N/A | N/A | N/A |
| 2025 | $409,106 | $205,000 | $0 | $614,106 | $614,106 |
| 2024 | $399,508 | $195,000 | $0 | $594,508 | $594,508 |
| 2023 | $404,308 | $200,000 | $0 | $604,308 | $604,308 |
| 2022 | $370,457 | $190,000 | $0 | $560,457 | $560,457 |
| 2021 | $325,909 | $130,000 | $0 | $455,909 | $455,909 |
| 2020 | $317,074 | $110,000 | $0 | $427,074 | $427,074 |
| 2019 | $243,886 | $170,000 | $0 | $413,886 | $413,886 |
| 2018 | $244,577 | $140,000 | $0 | $384,577 | $384,577 |
| 2017 | $245,481 | $120,000 | $0 | $365,481 | $365,481 |
| 2016 | $248,241 | $85,000 | $0 | $333,241 | $333,241 |
| 2015 | $235,750 | $75,000 | $0 | $310,750 | $310,750 |
| 2014 | $238,341 | $75,000 | $0 | $313,341 | $313,341 |
| 2013 | $240,932 | $75,000 | $0 | $315,932 | $315,932 |
| 2012 | $237,843 | $73,840 | $0 | $311,683 | $311,683 |
| 2011 | $240,428 | $86,871 | $0 | $327,299 | $327,299 |
| 2010 | $245,907 | $86,871 | $0 | $332,778 | $332,778 |
| 2009 | $253,517 | $120,000 | $0 | $373,517 | $373,517 |
| 2008 | $256,144 | $120,000 | $0 | $376,144 | $376,144 |
| 2007 | $258,784 | $120,000 | $0 | $378,784 | $378,784 |
Deed and Sales History
| 1 | 10/03/2023 | WD | Warranty Deed | STECKEL, RANDAL E | KIRKPATRICK, MICHELE | | | $620,000.00 | 58165 | 4565409 |
| 2 | 08/02/2010 | QCD | Quit Claim Deed | BARTHOLOMEW, LYDIA | STECKEL, RANDAL E | | | | 1969 | 4278593 |
| 3 | 06/04/2001 | WD | Warranty Deed | HEWITT, ROSEMARY B | BARTHOLOMEW, LYDIA | | | $27,500.00 | 12209 | 20034830 |
| 4 | 09/02/1999 | QCD | Quit Claim Deed | HEWITT, ROSEMARY B | HEWITT, ROSEMARY B | | | $0.00 | 93917 | 99021872 |
| 5 | 09/02/1999 | PRD | Personal Representatives Deed | HEWITT, JOHN C | HEWITT, ROSEMARY B | | | $0.00 | 93916 | 99021871 |
| 6 | 03/01/1991 | WD | Warranty Deed | REA, ROBERT A | HEWITT, JOHN C | | | $14,000.00 | 10863 | 91003744 |
| 7 | 08/01/1987 | WD | Warranty Deed | ZIRCON, HOLDINGS, L | REA, ROBERT A | | | $14,000.00 | 72477 | 87011357 |
| 8 | 09/01/1984 | QCD | Quit Claim Deed | TETERUD, LESLIE K | ZIRCON, HOLDINGS, L | | | $0.00 | 43425 | 84006025 |
| 9 | 09/01/1984 | QCD | Quit Claim Deed | ZIRCON, HOLDINGS, L | TETERUD, LESLIE K | | | $0.00 | 43424 | 84006026 |
| 10 | 08/01/1981 | EXECUTORD | Executor Deed | TETERUD, LESLIE K | ZIRCON, HOLDINGS, L | | | $10,500.00 | 12672 | 387279 |
| 11 | 01/01/1900 | OTHER | Other - Misc. Documents | Unknown | TETERUD, LESLIE K | | | $4,295.00 | 0 | 0 |
Payout Agreement
| No payout information available.. |