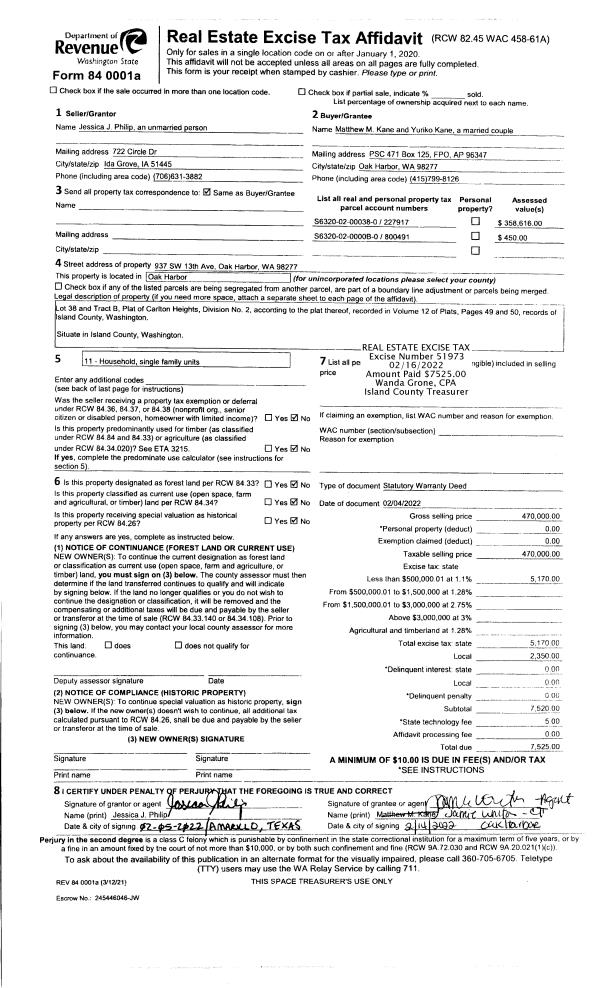
Property
Account |
| Property ID: | 174643 | Abbreviated Legal Description: | ADMIRALS COVE 3 LOTS 168 & 169 |
| Geographic ID: | S6010-03-00168-0 | Agent Code: | |
| Type: | Real | | |
| Tax Area: | 390 - APPRAISER-Cpvl Schl Dist, Special Dist, improved & less than 1 acre | Land Use Code | 11 |
| Open Space: | N | DFL | N |
| Historic Property: | N | Remodel Property: | N |
| Multi-Family Redevelopment: | N | | |
| Township: | | Section: | |
| Range: | |
Location |
| Address: | 1211 ADMIRALS DR COUPEVILLE, WA 98239 | Mapsco: | |
| Neighborhood: | Cycle 2 | Map ID: | 81 |
| Neighborhood CD: | 2 |
Owner |
| Name: | DRAKE, PAUL | Owner ID: | 302295 |
| Mailing Address: | 1211 ADMRINALS DR COUPEVILLE, WA 98239 | % Ownership: | 100.0000000000% |
| | | Exemptions: | |
Taxes and Assessment Details
Values
| (+) Improvement Homesite Value: | + | $0 | |
| (+) Improvement Non-Homesite Value: | + | $356,611 | |
| (+) Land Homesite Value: | + | $0 | |
| (+) Land Non-Homesite Value: | + | $205,000 | |
| (+) Curr Use (HS): | + | $0 | $0 |
| (+) Curr Use (NHS): | + | $0 | $0 |
| | | -------------------------- | |
| (=) Market Value: | = | $561,611 | |
| (–) Productivity Loss: | – | $0 | |
| | | -------------------------- | |
| (=) Subtotal: | = | $561,611 | |
| (+) Senior Appraised Value: | + | $0 | |
| (+) Non-Senior Appraised Value: | + | $561,611 | |
| | | -------------------------- | |
| (=) Total Appraised Value: | = | $561,611 | |
| (–) Senior Exemption Loss: | – | $0 | |
| (–) Exemption Loss: | – | $0 | |
| | | -------------------------- | |
| (=) Taxable Value: | = | $561,611 | |
Taxing Jurisdiction
| Owner: | DRAKE, PAUL | | |
| % Ownership: | 100.0000000000% | | |
| Total Value: | $561,611 | | |
| Tax Area: | 390 - APPRAISER-Cpvl Schl Dist, Special Dist, improved & less than 1 acre |
| CF | Conservation Futures | 0.0316035091 | $561,611 | $561,611 | $17.75 | | |
| CEM2 | Cemetery #2 | 0.0095056933 | $561,611 | $561,611 | $5.34 | | |
| FIRE5 | Fire & Rescue Dist #5 C Whidbey GEN | 1.2008080668 | $561,611 | $561,611 | $674.39 | | |
| FIRE5BOND | Fire & Rescue Dist #5 C Whidbey BOND | 0.1400090713 | $561,611 | $561,611 | $78.63 | | |
| HOBOND | Hospital BOND | 0.1910887512 | $561,611 | $561,611 | $107.32 | | |
| HOGEN | Hospital GEN | 0.3902502903 | $561,611 | $561,611 | $219.17 | | |
| CE | County Current Expense | 0.3708482477 | $561,611 | $561,611 | $208.27 | | |
| CR | County Roads | 0.4584763726 | $561,611 | $561,611 | $257.49 | | |
| ISLANDEMS | Hospital GEN (EMS) | 0.5000000000 | $561,611 | $561,611 | $280.81 | | |
| LIB | Library Sno-Isle GEN | 0.3153421757 | $561,611 | $561,611 | $177.10 | | |
| LIBCAP | Library Sno-Isle BOND (Cap Fac Imp Area) | 0.0543427938 | $561,611 | $561,611 | $30.52 | | |
| POCOUP | Port of Coupeville GEN | 0.1093371703 | $561,611 | $561,611 | $61.40 | | |
| POCOUPIDD | Port of Coupeville IDD | 0.3409740022 | $561,611 | $561,611 | $191.49 | | |
| COUPSDTECH | School 204 CP (TECH) | 0.7545480007 | $561,611 | $561,611 | $423.76 | | |
| SCH204MO | School 204 Enrichment | 0.6716186034 | $561,611 | $561,611 | $377.19 | | |
| ST | State School | 1.3035497053 | $561,611 | $561,611 | $732.09 | | |
| ST2 | State School Part 2 | 0.8169543533 | $561,611 | $561,611 | $458.81 | | |
| | Total Tax Rate: | 7.6592568070 | | | | | |
| | | | | Taxes w/Current Exemptions: | $4,301.53 | | |
| | | | | Taxes w/o Exemptions: | $4,301.53 | | |
Improvement / Building
| Improvement #1: | RESIDENTIAL | State Code: | Y | 2936.5 sqft | Value: | $356,611 |
| Bathrooms: | 3 | Bedrooms: | 2 | | Ceiling: | DRYWALL PAINTED | Exterior Wall/Cover: | PLY/HARDBOARD T-111 | | Floor Covering: | CARPET/VINYL 60-40 | Floor Structure: | WOOD W/SUBFLOOR | | Foundation: | CONCRETE | Heating: | BASEBOARD ELECTRIC | | Interior Finish: | DRYWALL PAINT | Plumbing Fixture Cnt: | 12 | | Roof Slope: | 4" IN 12" | Roof Structure/Cover: | BEAM ASPHALT |
|
| | Type | Description | Class CD | Sub Class CD | Year Built | Area |
| | BAS | BASE/MAIN FLOOR | 3 | 0 | 1980 | 1707.0 |
| | UB8 | BASEMENT UNFINISHED 8" | 3 | 0 | 1980 | 96.0 |
| | BIG | BUILT IN GARAGE | 3 | 0 | 1980 | 483.0 |
| | OWP | OPEN WOOD PORCH W/STEPS | 3 | 0 | 1980 | 90.0 |
| | OWP | OPEN WOOD PORCH W/STEPS | 3 | 0 | 1980 | 516.5 |
| | DWN | DOWNSTAIRS LIVING AREA | 3 | 0 | 1980 | 1229.5 |
Sketch
Property Image
Land
| 1 | 15 | SQ (12001-21780) | 0.4407 | 19196.89 | 0.00 | 0.00 | 1.00 | $205,000 | $0 |
Roll Value History
| 2026 | N/A | N/A | N/A | N/A | N/A |
| 2025 | $356,611 | $205,000 | $0 | $561,611 | $561,611 |
| 2024 | $349,514 | $195,000 | $0 | $544,514 | $544,514 |
| 2023 | $353,983 | $200,000 | $0 | $553,983 | $553,983 |
| 2022 | $324,585 | $190,000 | $0 | $514,585 | $514,585 |
| 2021 | $268,355 | $130,000 | $0 | $398,355 | $398,355 |
| 2020 | $262,029 | $110,000 | $0 | $372,029 | $372,029 |
| 2019 | $208,938 | $170,000 | $0 | $378,938 | $378,938 |
| 2018 | $209,135 | $140,000 | $0 | $349,135 | $349,135 |
| 2017 | $210,417 | $120,000 | $0 | $330,417 | $330,417 |
| 2016 | $212,982 | $85,000 | $0 | $297,982 | $297,982 |
| 2015 | $215,549 | $75,000 | $0 | $290,549 | $290,549 |
| 2014 | $218,116 | $75,000 | $0 | $293,116 | $293,116 |
| 2013 | $220,682 | $75,000 | $0 | $295,682 | $295,682 |
| 2012 | $151,406 | $79,398 | $0 | $230,804 | $230,804 |
| 2011 | $153,658 | $93,409 | $0 | $247,067 | $247,067 |
| 2010 | $164,939 | $93,409 | $0 | $258,348 | $258,348 |
| 2009 | $172,219 | $120,000 | $0 | $292,219 | $292,219 |
| 2008 | $174,502 | $120,000 | $0 | $294,502 | $294,502 |
| 2007 | $176,785 | $120,000 | $0 | $296,785 | $296,785 |
Deed and Sales History
| 1 | 12/09/2021 | WD | Warranty Deed | ROOKSTOOL, ROBERT J / LAURA M | DRAKE, PAUL | | | $525,000.00 | 51259 | 4535561 |
| 2 | 10/29/2002 | BLA | DNU - Boundary Line Adjustment | ROOKSTOOL, ROBERT J | ROOKSTOOL, ROBERT J/LAURA M | | | $0.00 | 69592 | 4034001 |
| 3 | 05/01/1994 | WD | Warranty Deed | HATCH, ROSCOE B | ROOKSTOOL, ROBERT J | | | $172,000.00 | 42358 | 94013330 |
| 4 | 01/01/1900 | OTHER | Other - Misc. Documents | Unknown | HATCH, ROSCOE B | | | $5,300.00 | 0 | 0 |
Payout Agreement
| No payout information available.. |