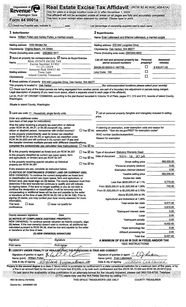
Property
Account |
| Property ID: | 17485 | Abbreviated Legal Description: | 22 - N300' OF E600' OF NW NW LY S OF FT NUGENT RD ALG N SIDE & W OF BOON RD ALG E SIDE EX N40' FOR RD |
| Geographic ID: | R13209-511-0990 | Agent Code: | |
| Type: | Real | | |
| Tax Area: | 112 - APPRAISER-OH Schl Dist, outside OH, improved, greater than 1 acre | Land Use Code | 11 |
| Open Space: | N | DFL | N |
| Historic Property: | N | Remodel Property: | N |
| Multi-Family Redevelopment: | N | | |
| Township: | 32 | Section: | 09 |
| Range: | R1 |
Location |
| Address: | 1527 FORT NUGENT RD OAK HARBOR, WA 98277 | Mapsco: | |
| Neighborhood: | Cycle 1 | Map ID: | 114 |
| Neighborhood CD: | 1 |
Owner |
| Name: | JACKSON, DAVID K | Owner ID: | 303524 |
| Mailing Address: | WHITNEY G JACKSON 1527 FORT NUGENT ROAD OAK HARBOR, WA 98277 | % Ownership: | 100.0000000000% |
| | | Exemptions: | |
Taxes and Assessment Details
Values
| (+) Improvement Homesite Value: | + | $0 | |
| (+) Improvement Non-Homesite Value: | + | $496,845 | |
| (+) Land Homesite Value: | + | $0 | |
| (+) Land Non-Homesite Value: | + | $290,000 | |
| (+) Curr Use (HS): | + | $0 | $0 |
| (+) Curr Use (NHS): | + | $0 | $0 |
| | | -------------------------- | |
| (=) Market Value: | = | $786,845 | |
| (–) Productivity Loss: | – | $0 | |
| | | -------------------------- | |
| (=) Subtotal: | = | $786,845 | |
| (+) Senior Appraised Value: | + | $0 | |
| (+) Non-Senior Appraised Value: | + | $786,845 | |
| | | -------------------------- | |
| (=) Total Appraised Value: | = | $786,845 | |
| (–) Senior Exemption Loss: | – | $0 | |
| (–) Exemption Loss: | – | $0 | |
| | | -------------------------- | |
| (=) Taxable Value: | = | $786,845 | |
Taxing Jurisdiction
| Owner: | JACKSON, DAVID K | | |
| % Ownership: | 100.0000000000% | | |
| Total Value: | $786,845 | | |
| Tax Area: | 112 - APPRAISER-OH Schl Dist, outside OH, improved, greater than 1 acre |
| CF | Conservation Futures | 0.0316035091 | $786,845 | $786,845 | $24.87 | | |
| CEM1 | Cemetery #1 | 0.0040320932 | $786,845 | $786,845 | $3.17 | | |
| FIRE2 | Fire & Rescue Dist #2 N Whidbey GEN | 0.5475949600 | $786,845 | $786,845 | $430.87 | | |
| HOBOND | Hospital BOND | 0.1910887512 | $786,845 | $786,845 | $150.36 | | |
| HOGEN | Hospital GEN | 0.3902502903 | $786,845 | $786,845 | $307.07 | | |
| CE | County Current Expense | 0.3708482477 | $786,845 | $786,845 | $291.80 | | |
| CR | County Roads | 0.4584763726 | $786,845 | $786,845 | $360.75 | | |
| ISLANDEMS | Hospital GEN (EMS) | 0.5000000000 | $786,845 | $786,845 | $393.42 | | |
| LIB | Library Sno-Isle GEN | 0.3153421757 | $786,845 | $786,845 | $248.13 | | |
| NWHIDPRMT | P & R N Whidbey GEN | 0.2004466701 | $786,845 | $786,845 | $157.72 | | |
| SCH201MO | School 201 Enrichment | 1.8559231640 | $786,845 | $786,845 | $1,460.32 | | |
| ST | State School | 1.3035497053 | $786,845 | $786,845 | $1,025.69 | | |
| ST2 | State School Part 2 | 0.8169543533 | $786,845 | $786,845 | $642.82 | | |
| | Total Tax Rate: | 6.9861102925 | | | | | |
| | | | | Taxes w/Current Exemptions: | $5,496.99 | | |
| | | | | Taxes w/o Exemptions: | $5,496.99 | | |
Improvement / Building
| Improvement #1: | RESIDENTIAL | State Code: | Y | 2320.0 sqft | Value: | $496,845 |
| Bathrooms: | 2.5 | Bedrooms: | 3 | | Ceiling: | DRYWALL PAINTED | Cooling: | HEAT PUMP/CONV/V | | Exterior Wall/Cover: | CEMENT FIBER | Floor Covering: | HARDWOOD/CARP 80-20 | | Floor Structure: | WOOD W/SUBFLOOR | Foundation: | CONCRETE | | Interior Finish: | DRYWALL PAINT | Plumbing Fixture Cnt: | 14 | | Roof Slope: | 6" IN 12" | Roof Structure/Cover: | CJ ASPHALT |
|
| | Type | Description | Class CD | Sub Class CD | Year Built | Area |
| | BAS | BASE/MAIN FLOOR | 3 | 0 | 2008 | 2320.0 |
| | AGR | ATTACHED GARAGE | 3 | 0 | 2008 | 528.0 |
| | OP1 | OPEN PORCH SLAB | 3 | 0 | 2008 | 220.0 |
| | DGR | DETACHED GARAGE | 3 | 0 | 2008 | 960.0 |
| | UTY | STORAGE/UTILITY | 3 | 0 | 2008 | 384.0 |
| | OWP | OPEN WOOD PORCH W/STEPS | 3 | 0 | 2008 | 270.0 |
Sketch
Property Image
Land
| 1 | 32 | AC (03.01-09.99) | 3.5000 | 0.00 | 0.00 | 0.00 | 1.00 | $290,000 | $0 |
Roll Value History
| 2026 | N/A | N/A | N/A | N/A | N/A |
| 2025 | $496,845 | $290,000 | $0 | $786,845 | $786,845 |
| 2024 | $501,020 | $260,000 | $0 | $761,020 | $761,020 |
| 2023 | $521,896 | $250,000 | $0 | $771,896 | $771,896 |
| 2022 | $399,493 | $220,000 | $0 | $619,493 | $619,493 |
| 2021 | $351,421 | $190,000 | $0 | $541,421 | $541,421 |
| 2020 | $342,857 | $140,000 | $0 | $482,857 | $482,857 |
| 2019 | $265,303 | $200,000 | $0 | $465,303 | $465,303 |
| 2018 | $266,046 | $170,000 | $0 | $436,046 | $436,046 |
| 2017 | $254,039 | $160,000 | $0 | $414,039 | $414,039 |
| 2016 | $256,572 | $160,000 | $0 | $416,572 | $416,572 |
| 2015 | $259,106 | $120,000 | $0 | $379,106 | $379,106 |
| 2014 | $261,639 | $120,000 | $0 | $381,639 | $381,639 |
| 2013 | $264,174 | $85,050 | $0 | $349,224 | $349,224 |
| 2012 | $266,707 | $85,050 | $0 | $351,757 | $351,757 |
| 2011 | $287,527 | $94,500 | $0 | $382,027 | $382,027 |
| 2010 | $283,780 | $94,500 | $0 | $378,280 | $378,280 |
| 2009 | $297,056 | $112,000 | $0 | $409,056 | $409,056 |
| 2008 | $98,070 | $109,368 | $0 | $207,438 | $207,438 |
| 2007 | $100,067 | $109,368 | $0 | $209,435 | $209,435 |
Deed and Sales History
| 1 | 03/01/2022 | WD | Warranty Deed | DEYOUNG, WILLIAM DOUGLAS | JACKSON, DAVID K | | | $725,000.00 | 52394 | 4541988 |
| 2 | 10/28/2013 | SPWARDEED | Special Warranty Deed | DEYOUNG, WILLIAM DOUGLAS | DEYOUNG, WILLIAM DOUGLAS | | | $0.00 | 13317 | 4350802 |
| 3 | 10/28/2013 | WD | Warranty Deed | KITSAP CREDIT UNION | DEYOUNG, WILLIAM DOUGLAS | | | $295,000.00 | 13263 | 4340541 |
| 4 | 02/22/2013 | TRUSTEED | Trustee's Deed | JONES, CHADWICK LEE | KITSAP CREDIT UNION | | | $248,000.00 | 10570 | 4334877 |
| 5 | 06/27/2005 | DECREE | Divorce Decree/Legal Separation | JONES, CHADWICK L | JONES, CHADWICK LEE | | | $0.00 | 5220 | 4150937 |
| 6 | 07/10/2003 | QCD | Quit Claim Deed | JONES, CHADWICK L | JONES, CHADWICK L | | | $0.00 | 32988 | 4066452 |
| 7 | 08/29/2000 | TRUSTEED | Trustee's Deed | BOYD REAL ESTATE INV. INC, | JONES, CHADWICK L | | | $50,000.00 | 3367 | 20015630 |
| 8 | 02/23/2000 | TRUSTEED | Trustee's Deed | LANNING, BILL | BOYD REAL ESTATE INV. INC, | | | $0.00 | 661 | 20003464 |
| 9 | 11/01/1994 | QCD | Quit Claim Deed | LANNING, VICTORIA M | LANNING, BILL | | | $0.00 | 44682 | 94023957 |
| 10 | 11/01/1994 | QCD | Quit Claim Deed | LANNING, TRACY D | LANNING, VICTORIA M | | | $0.00 | 44683 | 94023958 |
| 11 | 01/01/1991 | WD | Warranty Deed | NAFTS, ROGER H | LANNING, TRACY D | | | $33,000.00 | 10258 | 91001240 |
| 12 | 03/01/1977 | EXECUTORD | Executor Deed | CLARK, RICHARD A | NAFTS, ROGER H | | | $9,000.00 | 3272 | 374476 |
| 13 | 01/01/1900 | OTHER | Other - Misc. Documents | Unknown | CLARK, RICHARD A | | | $0.00 | 0 | 0 |
Payout Agreement
| No payout information available.. |