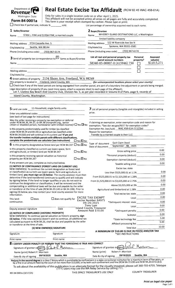
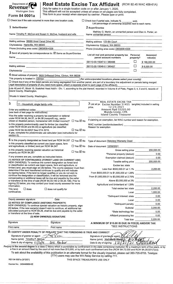
Property
Account |
| Property ID: | 17519 | Abbreviated Legal Description: | 135 - IN SW SE:BG SWCR SE E462'TPB N165' E90' S165' W90'TPB TGW & SUB TO EZ TR 22 UNREC WALKER HTS |
| Geographic ID: | R13210-008-3150 | Agent Code: | |
| Type: | Real | | |
| Tax Area: | 110 - APPRAISER-OH Schl Dist, outside OH, improved & 1 acre or less | Land Use Code | 11 |
| Open Space: | N | DFL | N |
| Historic Property: | N | Remodel Property: | N |
| Multi-Family Redevelopment: | N | | |
| Township: | 32 | Section: | 10 |
| Range: | R1 |
Location |
| Address: | 953 WALKER HEIGHTS PL OAK HARBOR, WA 98277 | Mapsco: | |
| Neighborhood: | Cycle 1 | Map ID: | 117 |
| Neighborhood CD: | 1 |
Owner |
| Name: | OSE PROPERTIES LLC | Owner ID: | 312026 |
| Mailing Address: | 8825 34TH AVE NW GRANITE FALLS, WA 98252 | % Ownership: | 100.0000000000% |
| | | Exemptions: | |
Taxes and Assessment Details
Values
| (+) Improvement Homesite Value: | + | $0 | |
| (+) Improvement Non-Homesite Value: | + | $328,569 | |
| (+) Land Homesite Value: | + | $0 | |
| (+) Land Non-Homesite Value: | + | $250,000 | |
| (+) Curr Use (HS): | + | $0 | $0 |
| (+) Curr Use (NHS): | + | $0 | $0 |
| | | -------------------------- | |
| (=) Market Value: | = | $578,569 | |
| (–) Productivity Loss: | – | $0 | |
| | | -------------------------- | |
| (=) Subtotal: | = | $578,569 | |
| (+) Senior Appraised Value: | + | $0 | |
| (+) Non-Senior Appraised Value: | + | $578,569 | |
| | | -------------------------- | |
| (=) Total Appraised Value: | = | $578,569 | |
| (–) Senior Exemption Loss: | – | $0 | |
| (–) Exemption Loss: | – | $0 | |
| | | -------------------------- | |
| (=) Taxable Value: | = | $578,569 | |
Taxing Jurisdiction
| Owner: | OSE PROPERTIES LLC | | |
| % Ownership: | 100.0000000000% | | |
| Total Value: | $578,569 | | |
| Tax Area: | 110 - APPRAISER-OH Schl Dist, outside OH, improved & 1 acre or less |
| CF | Conservation Futures | 0.0316035091 | $578,569 | $578,569 | $18.28 | | |
| CEM1 | Cemetery #1 | 0.0040320932 | $578,569 | $578,569 | $2.33 | | |
| FIRE2 | Fire & Rescue Dist #2 N Whidbey GEN | 0.5475949600 | $578,569 | $578,569 | $316.82 | | |
| HOBOND | Hospital BOND | 0.1910887512 | $578,569 | $578,569 | $110.56 | | |
| HOGEN | Hospital GEN | 0.3902502903 | $578,569 | $578,569 | $225.79 | | |
| CE | County Current Expense | 0.3708482477 | $578,569 | $578,569 | $214.56 | | |
| CR | County Roads | 0.4584763726 | $578,569 | $578,569 | $265.26 | | |
| ISLANDEMS | Hospital GEN (EMS) | 0.5000000000 | $578,569 | $578,569 | $289.28 | | |
| LIB | Library Sno-Isle GEN | 0.3153421757 | $578,569 | $578,569 | $182.45 | | |
| NWHIDPRMT | P & R N Whidbey GEN | 0.2004466701 | $578,569 | $578,569 | $115.97 | | |
| SCH201MO | School 201 Enrichment | 1.8559231640 | $578,569 | $578,569 | $1,073.78 | | |
| ST | State School | 1.3035497053 | $578,569 | $578,569 | $754.19 | | |
| ST2 | State School Part 2 | 0.8169543533 | $578,569 | $578,569 | $472.66 | | |
| | Total Tax Rate: | 6.9861102925 | | | | | |
| | | | | Taxes w/Current Exemptions: | $4,041.93 | | |
| | | | | Taxes w/o Exemptions: | $4,041.93 | | |
Improvement / Building
| Improvement #1: | RESIDENTIAL | State Code: | Y | 3702.0 sqft | Value: | $328,569 |
| Bathrooms: | 2.5 | Bedrooms: | 3 | | Ceiling: | DRY WALL SPRAYED | Exterior Wall/Cover: | CEMENT FIBER | | Floor Covering: | LAMINATE/LVP | Floor Structure: | WOOD W/SUBFLOOR | | Foundation: | CONCRETE | Heating: | HEAT PUMP | | Interior Finish: | DRYWALL PAINT | Plumbing Fixture Cnt: | 13 | | Roof Slope: | 6" IN 12" | Roof Structure/Cover: | CJ ASPHALT |
|
| | Type | Description | Class CD | Sub Class CD | Year Built | Area |
| | BAS | BASE/MAIN FLOOR | 3 | 0 | 2025 | 2366.7 |
| | UPS | UPPER STORY | 3 | 0 | 2025 | 1335.3 |
| | AGR | ATTACHED GARAGE | 3 | 0 | 2025 | 667.5 |
| | OWP | OPEN WOOD PORCH W/STEPS | 3 | 0 | 2025 | 0.0 |
| | OWR | OPEN WOOD PORCH W/STEPS/ROOF | 3 | 0 | 2025 | 0.0 |
Sketch
| No sketches available for this property. |
Property Image
Land
| 1 | 15 | SQ (12001-21780) | 0.3400 | 14810.40 | 0.00 | 0.00 | 1.00 | $250,000 | $0 |
Roll Value History
| 2026 | N/A | N/A | N/A | N/A | N/A |
| 2025 | $328,569 | $250,000 | $0 | $578,569 | $578,569 |
| 2024 | $0 | $130,000 | $0 | $130,000 | $130,000 |
| 2023 | $0 | $80,000 | $0 | $80,000 | $80,000 |
| 2022 | $0 | $80,000 | $0 | $80,000 | $80,000 |
| 2021 | $0 | $70,000 | $0 | $70,000 | $70,000 |
| 2020 | $0 | $60,000 | $0 | $60,000 | $60,000 |
| 2019 | $0 | $100,000 | $0 | $100,000 | $100,000 |
| 2018 | $0 | $75,000 | $0 | $75,000 | $75,000 |
| 2017 | $0 | $60,000 | $0 | $60,000 | $60,000 |
| 2016 | $0 | $60,000 | $0 | $60,000 | $60,000 |
| 2015 | $0 | $60,000 | $0 | $60,000 | $60,000 |
| 2014 | $0 | $60,000 | $0 | $60,000 | $60,000 |
| 2013 | $0 | $69,000 | $0 | $69,000 | $69,000 |
| 2012 | $0 | $69,000 | $0 | $69,000 | $69,000 |
| 2011 | $0 | $69,000 | $0 | $69,000 | $69,000 |
| 2010 | $0 | $69,000 | $0 | $69,000 | $69,000 |
| 2009 | $0 | $76,000 | $0 | $76,000 | $76,000 |
| 2008 | $0 | $25,250 | $0 | $25,250 | $25,250 |
| 2007 | $0 | $24,200 | $0 | $24,200 | $24,200 |
Deed and Sales History
| 1 | 04/16/2024 | WD | Warranty Deed | WALDRON, VINTON REN | OSE PROPERTIES LLC | | | $165,000.00 | 59692 | 4571408 |
| 2 | 05/05/2021 | WD | Warranty Deed | MCDONALD, LAURA L | WALDRON, VINTON REN | | | $115,000.00 | 48500 | 4520731 |
| 3 | 05/01/1996 | OTHER | Other - Misc. Documents | MCMANN, LAURA L | MCDONALD, LAURA L | | | $0.00 | 66900 | 0 |
| 4 | 10/01/1985 | OTHER | Other - Misc. Documents | WILLIAMSON, LAURA L | MCMANN, LAURA L | | | $0.00 | 61299 | 0 |
| 5 | 01/01/1900 | OTHER | Other - Misc. Documents | Unknown | WILLIAMSON, LAURA L | | | $0.00 | 0 | 0 |
Payout Agreement
| No payout information available.. |