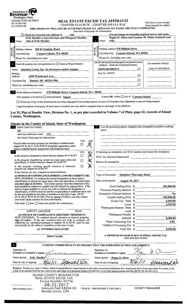
Property
Account |
| Property ID: | 175198 | Abbreviated Legal Description: | ADMIRALS COVE 5 LOT 3 |
| Geographic ID: | S6010-05-00003-0 | Agent Code: | |
| Type: | Real | | |
| Tax Area: | 390 - APPRAISER-Cpvl Schl Dist, Special Dist, improved & less than 1 acre | Land Use Code | 11 |
| Open Space: | N | DFL | N |
| Historic Property: | N | Remodel Property: | N |
| Multi-Family Redevelopment: | N | | |
| Township: | | Section: | |
| Range: | |
Location |
| Address: | 1273 RICKOVER DR COUPEVILLE, WA 98239 | Mapsco: | |
| Neighborhood: | Cycle 2 | Map ID: | 495 |
| Neighborhood CD: | 2 |
Owner |
| Name: | CHITTIM, CAMERON | Owner ID: | 301321 |
| Mailing Address: | BRITTANY BECK 1273 RICKOVER DR COUPEVILLE, WA 98239 | % Ownership: | 100.0000000000% |
| | | Exemptions: | |
Taxes and Assessment Details
Values
| (+) Improvement Homesite Value: | + | $0 | |
| (+) Improvement Non-Homesite Value: | + | $219,121 | |
| (+) Land Homesite Value: | + | $0 | |
| (+) Land Non-Homesite Value: | + | $185,000 | |
| (+) Curr Use (HS): | + | $0 | $0 |
| (+) Curr Use (NHS): | + | $0 | $0 |
| | | -------------------------- | |
| (=) Market Value: | = | $404,121 | |
| (–) Productivity Loss: | – | $0 | |
| | | -------------------------- | |
| (=) Subtotal: | = | $404,121 | |
| (+) Senior Appraised Value: | + | $0 | |
| (+) Non-Senior Appraised Value: | + | $404,121 | |
| | | -------------------------- | |
| (=) Total Appraised Value: | = | $404,121 | |
| (–) Senior Exemption Loss: | – | $0 | |
| (–) Exemption Loss: | – | $0 | |
| | | -------------------------- | |
| (=) Taxable Value: | = | $404,121 | |
Taxing Jurisdiction
| Owner: | CHITTIM, CAMERON | | |
| % Ownership: | 100.0000000000% | | |
| Total Value: | $404,121 | | |
| Tax Area: | 390 - APPRAISER-Cpvl Schl Dist, Special Dist, improved & less than 1 acre |
| CF | Conservation Futures | 0.0316035091 | $404,121 | $404,121 | $12.77 | | |
| CEM2 | Cemetery #2 | 0.0095056933 | $404,121 | $404,121 | $3.84 | | |
| FIRE5 | Fire & Rescue Dist #5 C Whidbey GEN | 1.2008080668 | $404,121 | $404,121 | $485.27 | | |
| FIRE5BOND | Fire & Rescue Dist #5 C Whidbey BOND | 0.1400090713 | $404,121 | $404,121 | $56.58 | | |
| HOBOND | Hospital BOND | 0.1910887512 | $404,121 | $404,121 | $77.22 | | |
| HOGEN | Hospital GEN | 0.3902502903 | $404,121 | $404,121 | $157.71 | | |
| CE | County Current Expense | 0.3708482477 | $404,121 | $404,121 | $149.87 | | |
| CR | County Roads | 0.4584763726 | $404,121 | $404,121 | $185.28 | | |
| ISLANDEMS | Hospital GEN (EMS) | 0.5000000000 | $404,121 | $404,121 | $202.06 | | |
| LIB | Library Sno-Isle GEN | 0.3153421757 | $404,121 | $404,121 | $127.44 | | |
| LIBCAP | Library Sno-Isle BOND (Cap Fac Imp Area) | 0.0543427938 | $404,121 | $404,121 | $21.96 | | |
| POCOUP | Port of Coupeville GEN | 0.1093371703 | $404,121 | $404,121 | $44.19 | | |
| POCOUPIDD | Port of Coupeville IDD | 0.3409740022 | $404,121 | $404,121 | $137.79 | | |
| COUPSDTECH | School 204 CP (TECH) | 0.7545480007 | $404,121 | $404,121 | $304.93 | | |
| SCH204MO | School 204 Enrichment | 0.6716186034 | $404,121 | $404,121 | $271.42 | | |
| ST | State School | 1.3035497053 | $404,121 | $404,121 | $526.79 | | |
| ST2 | State School Part 2 | 0.8169543533 | $404,121 | $404,121 | $330.15 | | |
| | Total Tax Rate: | 7.6592568070 | | | | | |
| | | | | Taxes w/Current Exemptions: | $3,095.27 | | |
| | | | | Taxes w/o Exemptions: | $3,095.27 | | |
Improvement / Building
| Improvement #1: | RESIDENTIAL | State Code: | Y | 1315.1 sqft | Value: | $219,121 |
| Bathrooms: | 2 | Bedrooms: | 2 | | Ceiling: | DRY WALL SPRAYED | Exterior Wall/Cover: | CEMENT FIBER | | Floor Covering: | CARPET/VINYL 80-20 | Floor Structure: | WOOD W/SUBFLOOR | | Foundation: | CONCRETE | Heating: | FHA GAS | | Interior Finish: | DRYWALL PAINT | Plumbing Fixture Cnt: | 9 | | Roof Slope: | 6" IN 12" | Roof Structure/Cover: | CJ ASPHALT |
|
| | Type | Description | Class CD | Sub Class CD | Year Built | Area |
| | BAS | BASE/MAIN FLOOR | 3 | 0 | 1998 | 1315.1 |
| | OWR | OPEN WOOD PORCH W/STEPS/ROOF | 3 | 0 | 1998 | 51.0 |
| | OWP | OPEN WOOD PORCH W/STEPS | 3 | 0 | 1998 | 120.0 |
Sketch
Property Image
Land
| 1 | 13 | SQ (06001-08000) | 0.1653 | 7200.47 | 0.00 | 0.00 | 1.00 | $185,000 | $0 |
Roll Value History
| 2026 | N/A | N/A | N/A | N/A | N/A |
| 2025 | $219,121 | $185,000 | $0 | $404,121 | $404,121 |
| 2024 | $224,464 | $175,000 | $0 | $399,464 | $399,464 |
| 2023 | $227,161 | $175,000 | $0 | $402,161 | $402,161 |
| 2022 | $208,143 | $160,000 | $0 | $368,143 | $368,143 |
| 2021 | $183,112 | $125,000 | $0 | $308,112 | $308,112 |
| 2020 | $178,144 | $100,000 | $0 | $278,144 | $278,144 |
| 2019 | $127,609 | $140,000 | $0 | $267,609 | $267,609 |
| 2018 | $125,078 | $115,000 | $0 | $240,078 | $240,078 |
| 2017 | $114,588 | $100,000 | $0 | $214,588 | $214,588 |
| 2016 | $115,986 | $65,000 | $0 | $180,986 | $180,986 |
| 2015 | $117,383 | $50,000 | $0 | $167,383 | $167,383 |
| 2014 | $118,781 | $50,000 | $0 | $168,781 | $168,781 |
| 2013 | $120,178 | $50,000 | $0 | $170,178 | $170,178 |
| 2012 | $89,090 | $49,227 | $0 | $138,317 | $138,317 |
| 2011 | $90,082 | $57,914 | $0 | $147,996 | $147,996 |
| 2010 | $92,060 | $57,914 | $0 | $149,974 | $149,974 |
| 2009 | $95,931 | $80,000 | $0 | $175,931 | $175,931 |
| 2008 | $97,024 | $80,000 | $0 | $177,024 | $177,024 |
| 2007 | $97,129 | $80,000 | $0 | $177,129 | $177,129 |
Deed and Sales History
| 1 | 09/17/2021 | WD | Warranty Deed | HALL, ANDREW J | CHITTIM, CAMERON | | | $370,000.00 | 50192 | 4530023 |
| 2 | 05/12/2017 | WD | Warranty Deed | CRAWFORD, CANDACE | HALL, ANDREW J | | | $265,400.00 | 29358 | 4422866 |
| 3 | 02/10/2010 | TRUSTEED | Trustee's Deed | SECRETARY OF VETERANS AFFAIRS, | CRAWFORD, CANDACE | | | $142,000.00 | 647 | 4270756 |
| 4 | 07/27/2009 | TRUSTEED | Trustee's Deed | WELLS FARGO BANK, | SECRETARY OF VETERANS AFFAIRS, | | | $154,228.00 | 91718 | 4257337 |
| 5 | 07/27/2009 | TRUSTEED | Trustee's Deed | FLETCHER, WILLIAM T | WELLS FARGO BANK, | | | $154,228.00 | 91717 | 4257336 |
| 6 | 08/09/2006 | WD | Warranty Deed | PLUHAR, ANTHONY T | FLETCHER, WILLIAM T | | | $209,400.00 | 63508 | 4179026 |
| 7 | 05/23/2003 | WD | Warranty Deed | LITTLEJOHN, DAWN L | PLUHAR, ANTHONY T | | | $145,000.00 | 32359 | 4061556 |
| 8 | 05/23/2003 | ESTSEPPROP | Establish Separate Property | WILSON, DAWN L | LITTLEJOHN, DAWN L | | | $0.00 | 32358 | 4061685 |
| 9 | 05/25/1999 | WD | Warranty Deed | SCHARNIKOW, HARRY J | WILSON, DAWN L | | | $110,000.00 | 92033 | 99012779 |
| 10 | 03/01/1998 | WD | Warranty Deed | SAUNDERS, MICHAEL/AUTUMN | SCHARNIKOW, HARRY J | | | $13,500.00 | 80877 | 98005038 |
| 11 | 03/01/1994 | WD | Warranty Deed | BERGUM, EVA F | SAUNDERS, MICHAEL/AUTUMN | | | $10,500.00 | 41187 | 94007490 |
| 12 | 01/01/1900 | OTHER | Other - Misc. Documents | Unknown | BERGUM, EVA F | | | $2,385.00 | 0 | 0 |
Payout Agreement
| No payout information available.. |