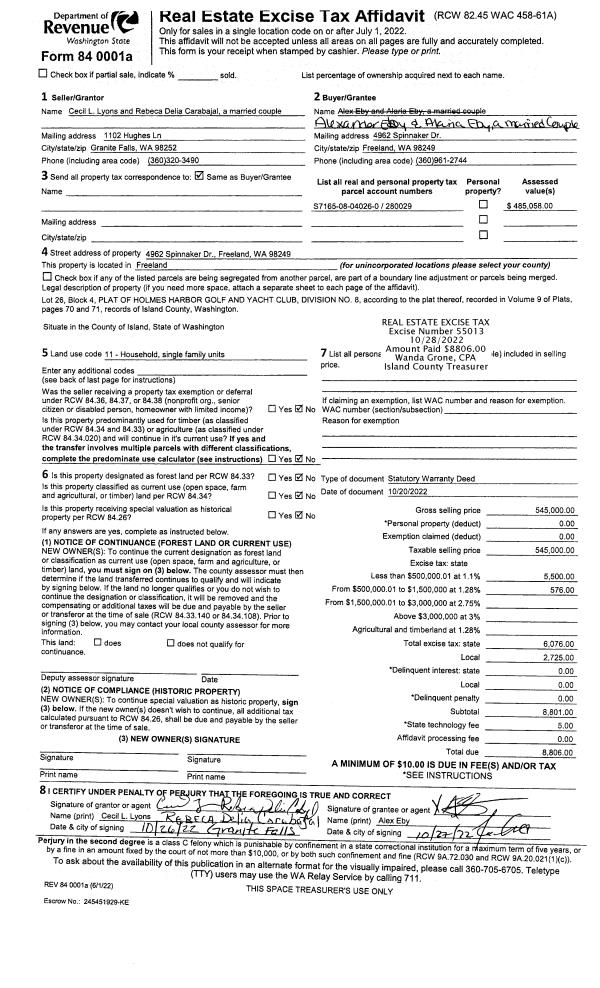
Property
Account |
| Property ID: | 175278 | Abbreviated Legal Description: | ADMIRALS COVE 5 LOT 11 |
| Geographic ID: | S6010-05-00011-0 | Agent Code: | |
| Type: | Real | | |
| Tax Area: | 390 - APPRAISER-Cpvl Schl Dist, Special Dist, improved & less than 1 acre | Land Use Code | 11 |
| Open Space: | N | DFL | N |
| Historic Property: | N | Remodel Property: | N |
| Multi-Family Redevelopment: | N | | |
| Township: | | Section: | |
| Range: | |
Location |
| Address: | 1247 RICKOVER DR COUPEVILLE, WA 98239 | Mapsco: | |
| Neighborhood: | Cycle 2 | Map ID: | 495 |
| Neighborhood CD: | 2 |
Owner |
| Name: | RUIZ SIORDIA, SOLEDAD | Owner ID: | 303378 |
| Mailing Address: | 1247 RICKOVER DR COUPEVILLE, WA 98239-4100 | % Ownership: | 100.0000000000% |
| | | Exemptions: | |
Taxes and Assessment Details
Values
| (+) Improvement Homesite Value: | + | $0 | |
| (+) Improvement Non-Homesite Value: | + | $351,637 | |
| (+) Land Homesite Value: | + | $0 | |
| (+) Land Non-Homesite Value: | + | $185,000 | |
| (+) Curr Use (HS): | + | $0 | $0 |
| (+) Curr Use (NHS): | + | $0 | $0 |
| | | -------------------------- | |
| (=) Market Value: | = | $536,637 | |
| (–) Productivity Loss: | – | $0 | |
| | | -------------------------- | |
| (=) Subtotal: | = | $536,637 | |
| (+) Senior Appraised Value: | + | $0 | |
| (+) Non-Senior Appraised Value: | + | $536,637 | |
| | | -------------------------- | |
| (=) Total Appraised Value: | = | $536,637 | |
| (–) Senior Exemption Loss: | – | $0 | |
| (–) Exemption Loss: | – | $0 | |
| | | -------------------------- | |
| (=) Taxable Value: | = | $536,637 | |
Taxing Jurisdiction
| Owner: | RUIZ SIORDIA, SOLEDAD | | |
| % Ownership: | 100.0000000000% | | |
| Total Value: | $536,637 | | |
| Tax Area: | 390 - APPRAISER-Cpvl Schl Dist, Special Dist, improved & less than 1 acre |
| CF | Conservation Futures | 0.0316035091 | $536,637 | $536,637 | $16.96 | | |
| CEM2 | Cemetery #2 | 0.0095056933 | $536,637 | $536,637 | $5.10 | | |
| FIRE5 | Fire & Rescue Dist #5 C Whidbey GEN | 1.2008080668 | $536,637 | $536,637 | $644.40 | | |
| FIRE5BOND | Fire & Rescue Dist #5 C Whidbey BOND | 0.1400090713 | $536,637 | $536,637 | $75.13 | | |
| HOBOND | Hospital BOND | 0.1910887512 | $536,637 | $536,637 | $102.55 | | |
| HOGEN | Hospital GEN | 0.3902502903 | $536,637 | $536,637 | $209.42 | | |
| CE | County Current Expense | 0.3708482477 | $536,637 | $536,637 | $199.01 | | |
| CR | County Roads | 0.4584763726 | $536,637 | $536,637 | $246.04 | | |
| ISLANDEMS | Hospital GEN (EMS) | 0.5000000000 | $536,637 | $536,637 | $268.32 | | |
| LIB | Library Sno-Isle GEN | 0.3153421757 | $536,637 | $536,637 | $169.22 | | |
| LIBCAP | Library Sno-Isle BOND (Cap Fac Imp Area) | 0.0543427938 | $536,637 | $536,637 | $29.16 | | |
| POCOUP | Port of Coupeville GEN | 0.1093371703 | $536,637 | $536,637 | $58.67 | | |
| POCOUPIDD | Port of Coupeville IDD | 0.3409740022 | $536,637 | $536,637 | $182.98 | | |
| COUPSDTECH | School 204 CP (TECH) | 0.7545480007 | $536,637 | $536,637 | $404.92 | | |
| SCH204MO | School 204 Enrichment | 0.6716186034 | $536,637 | $536,637 | $360.42 | | |
| ST | State School | 1.3035497053 | $536,637 | $536,637 | $699.53 | | |
| ST2 | State School Part 2 | 0.8169543533 | $536,637 | $536,637 | $438.41 | | |
| | Total Tax Rate: | 7.6592568070 | | | | | |
| | | | | Taxes w/Current Exemptions: | $4,110.24 | | |
| | | | | Taxes w/o Exemptions: | $4,110.24 | | |
Improvement / Building
| Improvement #1: | RESIDENTIAL | State Code: | Y | 1798.5 sqft | Value: | $351,637 |
| Bathrooms: | 2.5 | Bedrooms: | 3 | | Ceiling: | DRYWALL PAINTED | Cooling: | HEAT PUMP/CONV/V | | Exterior Wall/Cover: | CEMENT FIBER | Floor Covering: | CARPET/VINYL 60-40 | | Floor Structure: | WOOD W/SUBFLOOR | Foundation: | CONCRETE | | Interior Finish: | DRYWALL PAINT | Plumbing Fixture Cnt: | 11 | | Roof Slope: | 4" IN 12" | Roof Structure/Cover: | CJ ASPHALT |
|
| | Type | Description | Class CD | Sub Class CD | Year Built | Area |
| | BAS | BASE/MAIN FLOOR | 3 | 0 | 2022 | 794.5 |
| | UPS | UPPER STORY | 3 | 0 | 2022 | 1004.0 |
| | BIG | BUILT IN GARAGE | 3 | 0 | 2022 | 407.0 |
| | OWP | OPEN WOOD PORCH W/STEPS | 3 | 0 | 2022 | 96.0 |
| | OWR | OPEN WOOD PORCH W/STEPS/ROOF | 3 | 0 | 2022 | 24.0 |
Sketch
Property Image
Land
| 1 | 13 | SQ (06001-08000) | 0.1653 | 7200.47 | 0.00 | 0.00 | 1.00 | $185,000 | $0 |
Roll Value History
| 2026 | N/A | N/A | N/A | N/A | N/A |
| 2025 | $351,637 | $185,000 | $0 | $536,637 | $536,637 |
| 2024 | $355,330 | $175,000 | $0 | $530,330 | $530,330 |
| 2023 | $361,791 | $175,000 | $0 | $536,791 | $536,791 |
| 2022 | $328,225 | $160,000 | $0 | $488,225 | $488,225 |
| 2021 | $10,000 | $30,000 | $0 | $40,000 | $40,000 |
| 2020 | $0 | $7,000 | $0 | $7,000 | $7,000 |
| 2019 | $0 | $9,000 | $0 | $9,000 | $9,000 |
| 2018 | $0 | $5,000 | $0 | $5,000 | $5,000 |
| 2017 | $0 | $5,000 | $0 | $5,000 | $5,000 |
| 2016 | $0 | $5,000 | $0 | $5,000 | $5,000 |
| 2015 | $0 | $5,000 | $0 | $5,000 | $5,000 |
| 2014 | $0 | $5,000 | $0 | $5,000 | $5,000 |
| 2013 | $0 | $5,000 | $0 | $5,000 | $5,000 |
| 2012 | $0 | $5,984 | $0 | $5,984 | $5,984 |
| 2011 | $0 | $5,984 | $0 | $5,984 | $5,984 |
| 2010 | $0 | $5,984 | $0 | $5,984 | $5,984 |
| 2009 | $0 | $14,400 | $0 | $14,400 | $14,400 |
| 2008 | $0 | $8,000 | $0 | $8,000 | $8,000 |
| 2007 | $0 | $7,500 | $0 | $7,500 | $7,500 |
Deed and Sales History
| 1 | 02/28/2022 | WD | Warranty Deed | WALDRON CONSTRUCTION INC | RUIZ SIORDIA, SOLEDAD | | | $530,000.00 | 52210 | 4541080 |
| 2 | 11/24/2020 | WD | Warranty Deed | JOHNSON, GARY W | WALDRON CONSTRUCTION INC | | | $36,000.00 | 45938 | 4503828 |
| 3 | 10/01/1983 | QCD | Quit Claim Deed | JOHNSON, WILLIAM G | JOHNSON, GARY W | | | $0.00 | 33177 | 416824 |
| 4 | 01/01/1900 | OTHER | Other - Misc. Documents | Unknown | JOHNSON, WILLIAM G | | | $2,500.00 | 0 | 0 |
Payout Agreement
| No payout information available.. |