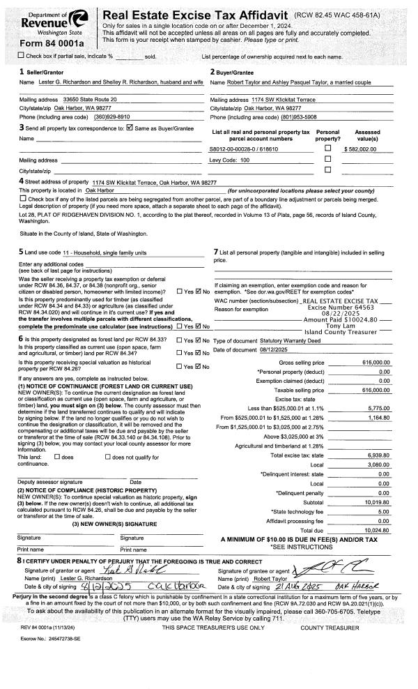
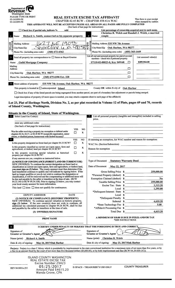
Property
Account |
| Property ID: | 175367 | Abbreviated Legal Description: | ADMIRALS COVE 5 LOT 20 TGW LOT 71 ADMIRALS COVE 7 COMB 8/95 PLA 254-95 AF#95012837 |
| Geographic ID: | S6010-05-00020-0 | Agent Code: | |
| Type: | Real | | |
| Tax Area: | 390 - APPRAISER-Cpvl Schl Dist, Special Dist, improved & less than 1 acre | Land Use Code | 11 |
| Open Space: | N | DFL | N |
| Historic Property: | N | Remodel Property: | N |
| Multi-Family Redevelopment: | N | | |
| Township: | | Section: | |
| Range: | |
Location |
| Address: | 1247 RUSSELL DR COUPEVILLE, WA 98239 | Mapsco: | |
| Neighborhood: | Cycle 2 | Map ID: | 495 |
| Neighborhood CD: | 2 |
Owner |
| Name: | RAYNER, MARTIN S | Owner ID: | 279012 |
| Mailing Address: | DENITA R RAYNER 1247 RUSSELL DR COUPEVILLE, WA 98239 | % Ownership: | 100.0000000000% |
| | | Exemptions: | |
Taxes and Assessment Details
Values
| (+) Improvement Homesite Value: | + | $0 | |
| (+) Improvement Non-Homesite Value: | + | $216,043 | |
| (+) Land Homesite Value: | + | $0 | |
| (+) Land Non-Homesite Value: | + | $185,000 | |
| (+) Curr Use (HS): | + | $0 | $0 |
| (+) Curr Use (NHS): | + | $0 | $0 |
| | | -------------------------- | |
| (=) Market Value: | = | $401,043 | |
| (–) Productivity Loss: | – | $0 | |
| | | -------------------------- | |
| (=) Subtotal: | = | $401,043 | |
| (+) Senior Appraised Value: | + | $0 | |
| (+) Non-Senior Appraised Value: | + | $401,043 | |
| | | -------------------------- | |
| (=) Total Appraised Value: | = | $401,043 | |
| (–) Senior Exemption Loss: | – | $0 | |
| (–) Exemption Loss: | – | $0 | |
| | | -------------------------- | |
| (=) Taxable Value: | = | $401,043 | |
Taxing Jurisdiction
| Owner: | RAYNER, MARTIN S | | |
| % Ownership: | 100.0000000000% | | |
| Total Value: | $401,043 | | |
| Tax Area: | 390 - APPRAISER-Cpvl Schl Dist, Special Dist, improved & less than 1 acre |
| CF | Conservation Futures | 0.0316035091 | $401,043 | $401,043 | $12.67 | | |
| CEM2 | Cemetery #2 | 0.0095056933 | $401,043 | $401,043 | $3.81 | | |
| FIRE5 | Fire & Rescue Dist #5 C Whidbey GEN | 1.2008080668 | $401,043 | $401,043 | $481.58 | | |
| FIRE5BOND | Fire & Rescue Dist #5 C Whidbey BOND | 0.1400090713 | $401,043 | $401,043 | $56.15 | | |
| HOBOND | Hospital BOND | 0.1910887512 | $401,043 | $401,043 | $76.63 | | |
| HOGEN | Hospital GEN | 0.3902502903 | $401,043 | $401,043 | $156.51 | | |
| CE | County Current Expense | 0.3708482477 | $401,043 | $401,043 | $148.73 | | |
| CR | County Roads | 0.4584763726 | $401,043 | $401,043 | $183.87 | | |
| ISLANDEMS | Hospital GEN (EMS) | 0.5000000000 | $401,043 | $401,043 | $200.52 | | |
| LIB | Library Sno-Isle GEN | 0.3153421757 | $401,043 | $401,043 | $126.47 | | |
| LIBCAP | Library Sno-Isle BOND (Cap Fac Imp Area) | 0.0543427938 | $401,043 | $401,043 | $21.79 | | |
| POCOUP | Port of Coupeville GEN | 0.1093371703 | $401,043 | $401,043 | $43.85 | | |
| POCOUPIDD | Port of Coupeville IDD | 0.3409740022 | $401,043 | $401,043 | $136.75 | | |
| COUPSDTECH | School 204 CP (TECH) | 0.7545480007 | $401,043 | $401,043 | $302.61 | | |
| SCH204MO | School 204 Enrichment | 0.6716186034 | $401,043 | $401,043 | $269.35 | | |
| ST | State School | 1.3035497053 | $401,043 | $401,043 | $522.78 | | |
| ST2 | State School Part 2 | 0.8169543533 | $401,043 | $401,043 | $327.63 | | |
| | Total Tax Rate: | 7.6592568070 | | | | | |
| | | | | Taxes w/Current Exemptions: | $3,071.70 | | |
| | | | | Taxes w/o Exemptions: | $3,071.70 | | |
Improvement / Building
| Improvement #1: | RESIDENTIAL | State Code: | Y | 1144.0 sqft | Value: | $216,043 |
| Bathrooms: | 1.5 | Bedrooms: | 2 | | Ceiling: | DRYWALL PAINTED | Cooling: | HEAT PUMP/CONV/V | | Exterior Wall/Cover: | PLY/HARDBOARD T-111 | Floor Covering: | CARPET/VINYL 20-80 | | Floor Structure: | WOOD W/SUBFLOOR | Foundation: | CONCRETE | | Interior Finish: | DRYWALL PAINT | Plumbing Fixture Cnt: | 8 | | Roof Slope: | 4" IN 12" | Roof Structure/Cover: | CJ ASPHALT |
|
| | Type | Description | Class CD | Sub Class CD | Year Built | Area |
| | BAS | BASE/MAIN FLOOR | 3 | 0 | 1992 | 1144.0 |
| | AGR | ATTACHED GARAGE | 3 | 0 | 1992 | 528.0 |
| | OWP | OPEN WOOD PORCH W/STEPS | 3 | 0 | 1992 | 40.0 |
Sketch
Property Image
Land
| 1 | 15 | SQ (12001-21780) | 0.3619 | 15764.36 | 0.00 | 0.00 | 1.00 | $185,000 | $0 |
Roll Value History
| 2026 | N/A | N/A | N/A | N/A | N/A |
| 2025 | $216,043 | $185,000 | $0 | $401,043 | $401,043 |
| 2024 | $211,736 | $175,000 | $0 | $386,736 | $386,736 |
| 2023 | $214,311 | $175,000 | $0 | $389,311 | $389,311 |
| 2022 | $196,391 | $160,000 | $0 | $356,391 | $356,391 |
| 2021 | $172,806 | $125,000 | $0 | $297,806 | $297,806 |
| 2020 | $168,094 | $100,000 | $0 | $268,094 | $268,094 |
| 2019 | $118,475 | $140,000 | $0 | $258,475 | $258,475 |
| 2018 | $116,974 | $115,000 | $0 | $231,974 | $231,974 |
| 2017 | $117,651 | $100,000 | $0 | $217,651 | $217,651 |
| 2016 | $112,815 | $65,000 | $0 | $177,815 | $177,815 |
| 2015 | $114,208 | $65,000 | $0 | $179,208 | $179,208 |
| 2014 | $117,145 | $50,000 | $0 | $167,145 | $167,145 |
| 2013 | $118,556 | $50,000 | $0 | $168,556 | $97,926 |
| 2012 | $121,136 | $52,932 | $0 | $174,068 | $97,926 |
| 2011 | $122,652 | $62,273 | $0 | $184,925 | $97,926 |
| 2010 | $128,005 | $62,273 | $0 | $190,278 | $97,926 |
| 2009 | $133,495 | $80,000 | $0 | $213,495 | $97,926 |
| 2008 | $135,508 | $79,584 | $0 | $215,092 | $215,092 |
| 2007 | $136,514 | $80,175 | $0 | $216,689 | $150,655 |
Deed and Sales History
| 1 | 03/20/2017 | WD | Warranty Deed | ZOBEL, ADRIANA | RAYNER, MARTIN S | | | $245,000.00 | 28505 | 4419156 |
| 2 | 05/14/2015 | WD | Warranty Deed | GRAY, MARGARET T | ZOBEL, ADRIANA | | | $200,000.00 | 19807 | 4379433 |
| 3 | 08/28/2002 | QCD | Quit Claim Deed | GRAY, MARGARET T | GRAY, MARGARET T | | | $0.00 | 23400 | 4029662 |
| 4 | 05/01/1996 | OTHER | Other - Misc. Documents | GRAY, MARGARET T | GRAY, MARGARET T | | | $0.00 | 66933 | 95012837 |
| 5 | 08/01/1995 | OTHER | Other - Misc. Documents | GRAY, MARGARET T | GRAY, MARGARET T | | | $0.00 | 66375 | 95012837 |
| 6 | 07/01/1995 | QCD | Quit Claim Deed | GRAY, MARGARET T | GRAY, MARGARET T | | | $0.00 | 52318 | 95010657 |
| 7 | 09/01/1992 | WD | Warranty Deed | GORDON, JOY F | GRAY, MARGARET T | | | $8,000.00 | 23924 | 92019066 |
| 8 | 11/01/1991 | OTHER | Other - Misc. Documents | GORDON, WILLIAM B | GORDON, JOY F | | | $0.00 | 64571 | 91017625 |
| 9 | 09/01/1978 | OTHER | Other - Misc. Documents | Unknown | GORDON, WILLIAM B | | | $3,600.00 | 84695 | 340243 |
Payout Agreement
| No payout information available.. |