Property
Account |
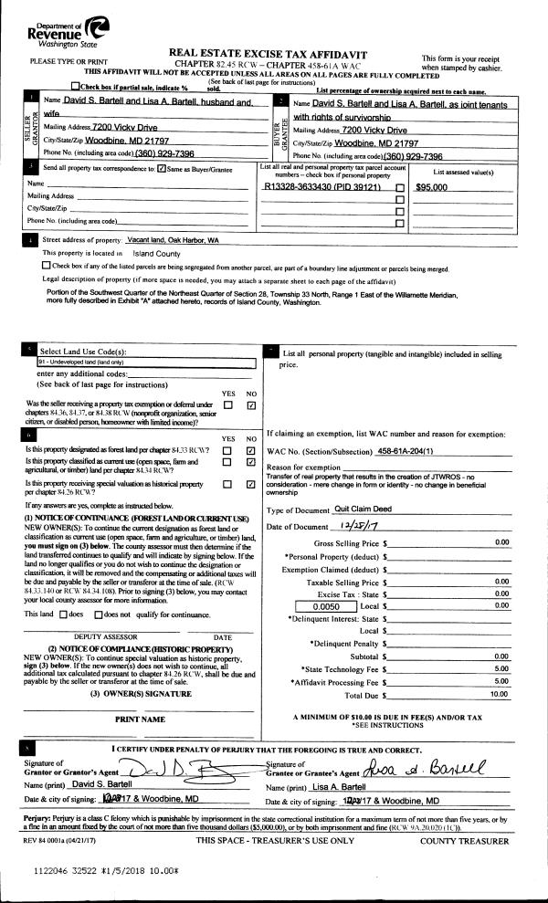
| Property ID: | 17546 | Abbreviated Legal Description: | 124 - S200' OF S/2 OF SE SW E OF ST HWY EX ST HWY |
| Geographic ID: | R13210-010-2400 | Agent Code: | |
| Type: | Real | | |
| Tax Area: | 119 - APPRAISER-OH Schl Dist, outside OH, vacant & 50 acres or less | Land Use Code | 91 |
| Open Space: | N | DFL | N |
| Historic Property: | N | Remodel Property: | N |
| Multi-Family Redevelopment: | N | | |
| Township: | 32 | Section: | 10 |
| Range: | R1 |
Location |
| Address: | | Mapsco: | |
| Neighborhood: | Cycle 1 | Map ID: | 116 |
| Neighborhood CD: | 1 |
Owner |
| Name: | PETE'S REAL ESTATE LLC | Owner ID: | 263407 |
| Mailing Address: | 406 COMMERCIAL AVE ANACORTES, WA 98221 | % Ownership: | 100.0000000000% |
| | | Exemptions: | |
Taxes and Assessment Details
Values
| (+) Improvement Homesite Value: | + | $0 | |
| (+) Improvement Non-Homesite Value: | + | $0 | |
| (+) Land Homesite Value: | + | $0 | |
| (+) Land Non-Homesite Value: | + | $120,000 | |
| (+) Curr Use (HS): | + | $0 | $0 |
| (+) Curr Use (NHS): | + | $0 | $0 |
| | | -------------------------- | |
| (=) Market Value: | = | $120,000 | |
| (–) Productivity Loss: | – | $0 | |
| | | -------------------------- | |
| (=) Subtotal: | = | $120,000 | |
| (+) Senior Appraised Value: | + | $0 | |
| (+) Non-Senior Appraised Value: | + | $120,000 | |
| | | -------------------------- | |
| (=) Total Appraised Value: | = | $120,000 | |
| (–) Senior Exemption Loss: | – | $0 | |
| (–) Exemption Loss: | – | $0 | |
| | | -------------------------- | |
| (=) Taxable Value: | = | $120,000 | |
Taxing Jurisdiction
| Owner: | PETE'S REAL ESTATE LLC | | |
| % Ownership: | 100.0000000000% | | |
| Total Value: | $120,000 | | |
| Tax Area: | 119 - APPRAISER-OH Schl Dist, outside OH, vacant & 50 acres or less |
| CF | Conservation Futures | 0.0316035091 | $120,000 | $120,000 | $3.79 | | |
| CEM1 | Cemetery #1 | 0.0040320932 | $120,000 | $120,000 | $0.48 | | |
| HOBOND | Hospital BOND | 0.1910887512 | $120,000 | $120,000 | $22.93 | | |
| HOGEN | Hospital GEN | 0.3902502903 | $120,000 | $120,000 | $46.83 | | |
| CE | County Current Expense | 0.3708482477 | $120,000 | $120,000 | $44.50 | | |
| CR | County Roads | 0.4584763726 | $120,000 | $120,000 | $55.02 | | |
| ISLANDEMS | Hospital GEN (EMS) | 0.5000000000 | $120,000 | $120,000 | $60.00 | | |
| LIB | Library Sno-Isle GEN | 0.3153421757 | $120,000 | $120,000 | $37.84 | | |
| NWHIDPRMT | P & R N Whidbey GEN | 0.2004466701 | $120,000 | $120,000 | $24.05 | | |
| SCH201MO | School 201 Enrichment | 1.8559231640 | $120,000 | $120,000 | $222.71 | | |
| ST | State School | 1.3035497053 | $120,000 | $120,000 | $156.43 | | |
| ST2 | State School Part 2 | 0.8169543533 | $120,000 | $120,000 | $98.03 | | |
| | Total Tax Rate: | 6.4385153325 | | | | | |
| | | | | Taxes w/Current Exemptions: | $772.61 | | |
| | | | | Taxes w/o Exemptions: | $772.61 | | |
Improvement / Building
Sketch
| No sketches available for this property. |
Property Image
Land
| 1 | 18 | AC (02.01-03.00) | 2.3400 | 101930.40 | 0.00 | 0.00 | 1.00 | $120,000 | $0 |
Roll Value History
| 2026 | N/A | N/A | N/A | N/A | N/A |
| 2025 | $0 | $120,000 | $0 | $120,000 | $120,000 |
| 2024 | $0 | $120,000 | $0 | $120,000 | $120,000 |
| 2023 | $0 | $110,000 | $0 | $110,000 | $110,000 |
| 2022 | $0 | $110,000 | $0 | $110,000 | $110,000 |
| 2021 | $0 | $100,000 | $0 | $100,000 | $100,000 |
| 2020 | $0 | $80,000 | $0 | $80,000 | $80,000 |
| 2019 | $0 | $100,000 | $0 | $100,000 | $100,000 |
| 2018 | $0 | $75,000 | $0 | $75,000 | $75,000 |
| 2017 | $0 | $75,000 | $0 | $75,000 | $75,000 |
| 2016 | $0 | $75,000 | $0 | $75,000 | $75,000 |
| 2015 | $0 | $60,000 | $0 | $60,000 | $60,000 |
| 2014 | $0 | $60,000 | $0 | $60,000 | $60,000 |
| 2013 | $0 | $80,000 | $0 | $80,000 | $80,000 |
| 2012 | $0 | $80,000 | $0 | $80,000 | $80,000 |
| 2011 | $0 | $80,000 | $0 | $80,000 | $80,000 |
| 2010 | $0 | $80,000 | $0 | $80,000 | $80,000 |
| 2009 | $0 | $79,000 | $0 | $79,000 | $79,000 |
| 2008 | $0 | $89,858 | $0 | $89,858 | $89,858 |
| 2007 | $0 | $91,737 | $0 | $91,737 | $91,737 |
Deed and Sales History
| 1 | 08/14/2013 | QCD | Quit Claim Deed | PETERSON, DONALD D | PETE'S REAL ESTATE LLC | | | $0.00 | 12406 | 4346361 |
| 2 | 03/12/2003 | WD | Warranty Deed | WERNECKE, TED S | PETERSON, DONALD D | | | $30,000.00 | 31078 | 4051305 |
| 3 | 04/01/1987 | OTHER | Other - Misc. Documents | WERNECKE, TED S | WERNECKE, TED S | | | $0.00 | 62114 | 0 |
| 4 | 09/01/1985 | REC | Real Estate Contract | WERNECKE, TED S | WERNECKE, TED S | | | $10,000.00 | 52815 | 85011157 |
| 5 | 09/01/1985 | WD | Warranty Deed | DEVRIES, GEORGE R | WERNECKE, TED S | | | $500.00 | 53041 | 85012077 |
| 6 | 01/01/1900 | OTHER | Other - Misc. Documents | Unknown | DEVRIES, GEORGE R | | | $0.00 | 0 | 0 |
Payout Agreement
| No payout information available.. |