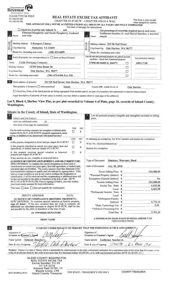
Property
Account |
| Property ID: | 175508 | Abbreviated Legal Description: | ADMIRALS COVE 5 LOT 34 |
| Geographic ID: | S6010-05-00034-0 | Agent Code: | |
| Type: | Real | | |
| Tax Area: | 390 - APPRAISER-Cpvl Schl Dist, Special Dist, improved & less than 1 acre | Land Use Code | 11 |
| Open Space: | N | DFL | N |
| Historic Property: | N | Remodel Property: | N |
| Multi-Family Redevelopment: | N | | |
| Township: | | Section: | |
| Range: | |
Location |
| Address: | 1220 RICKOVER DR COUPEVILLE, WA 98239 | Mapsco: | |
| Neighborhood: | Cycle 2 | Map ID: | 495 |
| Neighborhood CD: | 2 |
Owner |
| Name: | WATERBURY, LACHLAN | Owner ID: | 297004 |
| Mailing Address: | MOLLY WATERBURY 122O RICKOVER DR COUPEVILLE, WA 98239 | % Ownership: | 100.0000000000% |
| | | Exemptions: | |
Taxes and Assessment Details
Values
| (+) Improvement Homesite Value: | + | $0 | |
| (+) Improvement Non-Homesite Value: | + | $261,432 | |
| (+) Land Homesite Value: | + | $0 | |
| (+) Land Non-Homesite Value: | + | $185,000 | |
| (+) Curr Use (HS): | + | $0 | $0 |
| (+) Curr Use (NHS): | + | $0 | $0 |
| | | -------------------------- | |
| (=) Market Value: | = | $446,432 | |
| (–) Productivity Loss: | – | $0 | |
| | | -------------------------- | |
| (=) Subtotal: | = | $446,432 | |
| (+) Senior Appraised Value: | + | $0 | |
| (+) Non-Senior Appraised Value: | + | $446,432 | |
| | | -------------------------- | |
| (=) Total Appraised Value: | = | $446,432 | |
| (–) Senior Exemption Loss: | – | $0 | |
| (–) Exemption Loss: | – | $0 | |
| | | -------------------------- | |
| (=) Taxable Value: | = | $446,432 | |
Taxing Jurisdiction
| Owner: | WATERBURY, LACHLAN | | |
| % Ownership: | 100.0000000000% | | |
| Total Value: | $446,432 | | |
| Tax Area: | 390 - APPRAISER-Cpvl Schl Dist, Special Dist, improved & less than 1 acre |
| CF | Conservation Futures | 0.0316035091 | $446,432 | $446,432 | $14.11 | | |
| CEM2 | Cemetery #2 | 0.0095056933 | $446,432 | $446,432 | $4.24 | | |
| FIRE5 | Fire & Rescue Dist #5 C Whidbey GEN | 1.2008080668 | $446,432 | $446,432 | $536.08 | | |
| FIRE5BOND | Fire & Rescue Dist #5 C Whidbey BOND | 0.1400090713 | $446,432 | $446,432 | $62.50 | | |
| HOBOND | Hospital BOND | 0.1910887512 | $446,432 | $446,432 | $85.31 | | |
| HOGEN | Hospital GEN | 0.3902502903 | $446,432 | $446,432 | $174.22 | | |
| CE | County Current Expense | 0.3708482477 | $446,432 | $446,432 | $165.56 | | |
| CR | County Roads | 0.4584763726 | $446,432 | $446,432 | $204.68 | | |
| ISLANDEMS | Hospital GEN (EMS) | 0.5000000000 | $446,432 | $446,432 | $223.22 | | |
| LIB | Library Sno-Isle GEN | 0.3153421757 | $446,432 | $446,432 | $140.78 | | |
| LIBCAP | Library Sno-Isle BOND (Cap Fac Imp Area) | 0.0543427938 | $446,432 | $446,432 | $24.26 | | |
| POCOUP | Port of Coupeville GEN | 0.1093371703 | $446,432 | $446,432 | $48.81 | | |
| POCOUPIDD | Port of Coupeville IDD | 0.3409740022 | $446,432 | $446,432 | $152.22 | | |
| COUPSDTECH | School 204 CP (TECH) | 0.7545480007 | $446,432 | $446,432 | $336.85 | | |
| SCH204MO | School 204 Enrichment | 0.6716186034 | $446,432 | $446,432 | $299.83 | | |
| ST | State School | 1.3035497053 | $446,432 | $446,432 | $581.95 | | |
| ST2 | State School Part 2 | 0.8169543533 | $446,432 | $446,432 | $364.71 | | |
| | Total Tax Rate: | 7.6592568070 | | | | | |
| | | | | Taxes w/Current Exemptions: | $3,419.33 | | |
| | | | | Taxes w/o Exemptions: | $3,419.33 | | |
Improvement / Building
| Improvement #1: | RESIDENTIAL | State Code: | Y | 1410.0 sqft | Value: | $261,432 |
| Bathrooms: | 2.5 | Bedrooms: | 3 | | Ceiling: | DRYWALL PAINTED | Exterior Wall/Cover: | PLY/HARDBOARD T-111 | | Floor Covering: | CARPET/VINYL 80-20 | Floor Structure: | WOOD W/SUBFLOOR | | Foundation: | CONCRETE | Heating: | FHA GAS | | Interior Finish: | DRYWALL PAINT | Plumbing Fixture Cnt: | 12 | | Roof Slope: | 4" IN 12" | Roof Structure/Cover: | CJ ASPHALT |
|
| | Type | Description | Class CD | Sub Class CD | Year Built | Area |
| | BAS | BASE/MAIN FLOOR | 3 | 0 | 1995 | 693.0 |
| | OP4 | OPEN PORCH W/CEILING-ROOF | 3 | 0 | 1995 | 25.0 |
| | AGR | ATTACHED GARAGE | 3 | 0 | 1995 | 399.0 |
| | UPS | UPPER STORY | 3 | 0 | 1995 | 717.0 |
| | OWP | OPEN WOOD PORCH W/STEPS | 3 | 0 | 1995 | 110.0 |
Sketch
Property Image
Land
| 1 | 13 | SQ (06001-08000) | 0.1708 | 7440.05 | 0.00 | 0.00 | 1.00 | $185,000 | $0 |
Roll Value History
| 2026 | N/A | N/A | N/A | N/A | N/A |
| 2025 | $261,432 | $185,000 | $0 | $446,432 | $446,432 |
| 2024 | $264,499 | $175,000 | $0 | $439,499 | $439,499 |
| 2023 | $267,566 | $175,000 | $0 | $442,566 | $442,566 |
| 2022 | $245,052 | $160,000 | $0 | $405,052 | $405,052 |
| 2021 | $215,510 | $125,000 | $0 | $340,510 | $340,510 |
| 2020 | $189,473 | $100,000 | $0 | $289,473 | $289,473 |
| 2019 | $134,604 | $140,000 | $0 | $274,604 | $274,604 |
| 2018 | $131,775 | $115,000 | $0 | $246,775 | $246,775 |
| 2017 | $132,584 | $100,000 | $0 | $232,584 | $232,584 |
| 2016 | $134,201 | $65,000 | $0 | $199,201 | $199,201 |
| 2015 | $135,818 | $50,000 | $0 | $185,818 | $185,818 |
| 2014 | $137,434 | $50,000 | $0 | $187,434 | $187,434 |
| 2013 | $139,053 | $50,000 | $0 | $189,053 | $189,053 |
| 2012 | $130,977 | $49,227 | $0 | $180,204 | $180,204 |
| 2011 | $132,562 | $57,914 | $0 | $190,476 | $190,476 |
| 2010 | $137,450 | $57,914 | $0 | $195,364 | $195,364 |
| 2009 | $143,347 | $80,000 | $0 | $223,347 | $223,347 |
| 2008 | $145,057 | $80,000 | $0 | $225,057 | $225,057 |
| 2007 | $146,766 | $80,000 | $0 | $226,766 | $226,766 |
Deed and Sales History
| 1 | 11/24/2020 | WD | Warranty Deed | WRIGHT, DYASIA | WATERBURY, LACHLAN | | | $341,000.00 | 45955 | 4503945 |
| 2 | 05/02/2018 | WD | Warranty Deed | BAUMAN, ROBERT J | WRIGHT, DYASIA | | | $255,000.00 | 34021 | 4444052 |
| 3 | 03/17/2018 | QCD | Quit Claim Deed | BAUMAN, ROBERT J | BAUMAN, ROBERT J | | | $0.00 | 34020 | 4444051 |
| 4 | 01/15/2015 | WD | Warranty Deed | LANG, PATRICK J | BAUMAN, ROBERT J | | | $181,000.00 | 18304 | 4372168 |
| 5 | 10/01/1993 | WD | Warranty Deed | SWANSON, ANNA M | LANG, PATRICK J | | | $8,500.00 | 33977 | 93020773 |
| 6 | 06/01/1988 | OTHER | Other - Misc. Documents | SWANSON, ALVIN V | SWANSON, ANNA M | | | $0.00 | 62646 | 0 |
| 7 | 01/01/1900 | OTHER | Other - Misc. Documents | Unknown | SWANSON, ALVIN V | | | $3,050.00 | 0 | 0 |
Payout Agreement
| No payout information available.. |