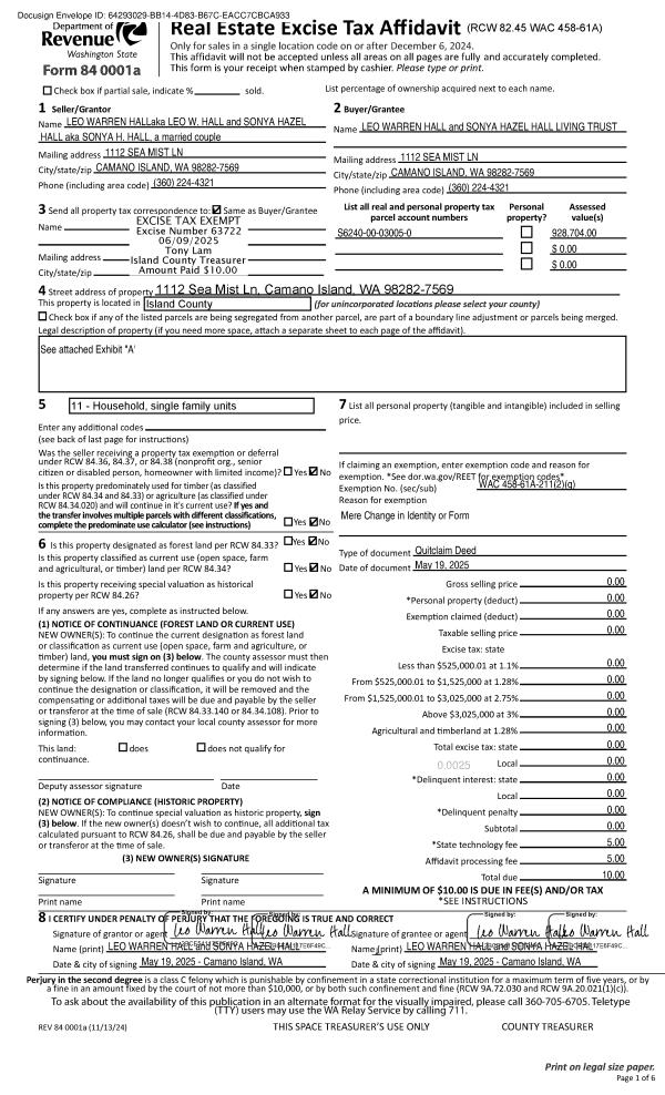
Property
Account |
| Property ID: | 175526 | Abbreviated Legal Description: | ADMIRALS COVE 5 LOT 36 |
| Geographic ID: | S6010-05-00036-0 | Agent Code: | |
| Type: | Real | | |
| Tax Area: | 390 - APPRAISER-Cpvl Schl Dist, Special Dist, improved & less than 1 acre | Land Use Code | 11 |
| Open Space: | N | DFL | N |
| Historic Property: | N | Remodel Property: | N |
| Multi-Family Redevelopment: | N | | |
| Township: | | Section: | |
| Range: | |
Location |
| Address: | 1226 RICKOVER DR COUPEVILLE, WA 98239 | Mapsco: | |
| Neighborhood: | Cycle 2 | Map ID: | 495 |
| Neighborhood CD: | 2 |
Owner |
| Name: | DAURT, MARCOS A | Owner ID: | 313961 |
| Mailing Address: | 1226 RICKOVER DR COUPEVILLE, WA 98239 | % Ownership: | 100.0000000000% |
| | | Exemptions: | |
Taxes and Assessment Details
Values
| (+) Improvement Homesite Value: | + | $0 | |
| (+) Improvement Non-Homesite Value: | + | $144,765 | |
| (+) Land Homesite Value: | + | $0 | |
| (+) Land Non-Homesite Value: | + | $185,000 | |
| (+) Curr Use (HS): | + | $0 | $0 |
| (+) Curr Use (NHS): | + | $0 | $0 |
| | | -------------------------- | |
| (=) Market Value: | = | $329,765 | |
| (–) Productivity Loss: | – | $0 | |
| | | -------------------------- | |
| (=) Subtotal: | = | $329,765 | |
| (+) Senior Appraised Value: | + | $0 | |
| (+) Non-Senior Appraised Value: | + | $329,765 | |
| | | -------------------------- | |
| (=) Total Appraised Value: | = | $329,765 | |
| (–) Senior Exemption Loss: | – | $0 | |
| (–) Exemption Loss: | – | $0 | |
| | | -------------------------- | |
| (=) Taxable Value: | = | $329,765 | |
Taxing Jurisdiction
| Owner: | DAURT, MARCOS A | | |
| % Ownership: | 100.0000000000% | | |
| Total Value: | $329,765 | | |
| Tax Area: | 390 - APPRAISER-Cpvl Schl Dist, Special Dist, improved & less than 1 acre |
| CF | Conservation Futures | 0.0316035091 | $329,765 | $329,765 | $10.42 | | |
| CEM2 | Cemetery #2 | 0.0095056933 | $329,765 | $329,765 | $3.13 | | |
| FIRE5 | Fire & Rescue Dist #5 C Whidbey GEN | 1.2008080668 | $329,765 | $329,765 | $395.98 | | |
| FIRE5BOND | Fire & Rescue Dist #5 C Whidbey BOND | 0.1400090713 | $329,765 | $329,765 | $46.17 | | |
| HOBOND | Hospital BOND | 0.1910887512 | $329,765 | $329,765 | $63.01 | | |
| HOGEN | Hospital GEN | 0.3902502903 | $329,765 | $329,765 | $128.69 | | |
| CE | County Current Expense | 0.3708482477 | $329,765 | $329,765 | $122.29 | | |
| CR | County Roads | 0.4584763726 | $329,765 | $329,765 | $151.19 | | |
| ISLANDEMS | Hospital GEN (EMS) | 0.5000000000 | $329,765 | $329,765 | $164.88 | | |
| LIB | Library Sno-Isle GEN | 0.3153421757 | $329,765 | $329,765 | $103.99 | | |
| LIBCAP | Library Sno-Isle BOND (Cap Fac Imp Area) | 0.0543427938 | $329,765 | $329,765 | $17.92 | | |
| POCOUP | Port of Coupeville GEN | 0.1093371703 | $329,765 | $329,765 | $36.06 | | |
| POCOUPIDD | Port of Coupeville IDD | 0.3409740022 | $329,765 | $329,765 | $112.44 | | |
| COUPSDTECH | School 204 CP (TECH) | 0.7545480007 | $329,765 | $329,765 | $248.82 | | |
| SCH204MO | School 204 Enrichment | 0.6716186034 | $329,765 | $329,765 | $221.48 | | |
| ST | State School | 1.3035497053 | $329,765 | $329,765 | $429.87 | | |
| ST2 | State School Part 2 | 0.8169543533 | $329,765 | $329,765 | $269.40 | | |
| | Total Tax Rate: | 7.6592568070 | | | | | |
| | | | | Taxes w/Current Exemptions: | $2,525.74 | | |
| | | | | Taxes w/o Exemptions: | $2,525.74 | | |
Improvement / Building
| Improvement #1: | MANUFACTURED HOME | State Code: | Y | 1344.0 sqft | Value: | $144,765 |
| Bathrooms: | 2 | Bedrooms: | 2 | | Ceiling: | PLASTER PAINTED | Cooling: | EVAP NO DUCT | | Exterior Wall/Cover: | VINYL | Floor Covering: | VINYL 100% | | Floor Structure: | SLAB ON GRADE | Foundation: | SLAB | | Heating: | FHA ELECTRIC | Interior Finish: | PLASTER | | Plumbing Fixture Cnt: | 9 | Roof Slope: | FLAT | | Roof Structure/Cover: | CJ ASPHALT |   |   |
|
Sketch
Property Image
Land
| 1 | 13 | SQ (06001-08000) | 0.1708 | 7440.05 | 0.00 | 0.00 | 1.00 | $185,000 | $0 |
Roll Value History
| 2026 | N/A | N/A | N/A | N/A | N/A |
| 2025 | $144,765 | $185,000 | $0 | $329,765 | $329,765 |
| 2024 | $154,305 | $175,000 | $0 | $329,305 | $329,305 |
| 2023 | $0 | $70,000 | $0 | $70,000 | $70,000 |
| 2022 | $0 | $40,000 | $0 | $40,000 | $40,000 |
| 2021 | $0 | $30,000 | $0 | $30,000 | $30,000 |
| 2020 | $0 | $25,000 | $0 | $25,000 | $25,000 |
| 2019 | $0 | $35,000 | $0 | $35,000 | $35,000 |
| 2018 | $0 | $35,000 | $0 | $35,000 | $35,000 |
| 2017 | $0 | $30,000 | $0 | $30,000 | $30,000 |
| 2016 | $0 | $30,000 | $0 | $30,000 | $30,000 |
| 2015 | $0 | $30,000 | $0 | $30,000 | $30,000 |
| 2014 | $0 | $30,000 | $0 | $30,000 | $30,000 |
| 2013 | $0 | $30,000 | $0 | $30,000 | $30,000 |
| 2012 | $0 | $21,623 | $0 | $21,623 | $21,623 |
| 2011 | $0 | $21,623 | $0 | $21,623 | $21,623 |
| 2010 | $0 | $21,623 | $0 | $21,623 | $21,623 |
| 2009 | $0 | $45,000 | $0 | $45,000 | $45,000 |
| 2008 | $0 | $25,000 | $0 | $25,000 | $25,000 |
| 2007 | $0 | $30,000 | $0 | $30,000 | $30,000 |
Deed and Sales History
| 1 | 09/18/2024 | WD | Warranty Deed | FEDERAU, EDUARD | DAURT, MARCOS A | | | $409,000.00 | 61349 | 4577380 |
| 2 | 07/10/2023 | WD | Warranty Deed | HALPIN, KATHLEEN E | FEDERAU, EDUARD | | | $45,000.00 | 57255 | 4562070 |
| 3 | 02/19/2015 | WD | Warranty Deed | WESSEL, CHARLES J | HALPIN, KATHLEEN E | | | $8,000.00 | 18543 | 4373575 |
| 4 | 08/01/1990 | QCD | Quit Claim Deed | WESSEL, CHARLES | WESSEL, CHARLES J | | | $0.00 | 4611 | 90015285 |
| 5 | 01/01/1900 | OTHER | Other - Misc. Documents | Unknown | WESSEL, CHARLES | | | $3,050.00 | 0 | 0 |
Payout Agreement
| No payout information available.. |