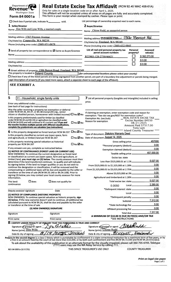
Property
Account |
| Property ID: | 175697 | Abbreviated Legal Description: | ADMIRALS COVE 5 LOT 53 |
| Geographic ID: | S6010-05-00053-0 | Agent Code: | |
| Type: | Real | | |
| Tax Area: | 390 - APPRAISER-Cpvl Schl Dist, Special Dist, improved & less than 1 acre | Land Use Code | 11 |
| Open Space: | N | DFL | N |
| Historic Property: | N | Remodel Property: | N |
| Multi-Family Redevelopment: | N | | |
| Township: | | Section: | |
| Range: | |
Location |
| Address: | 1261 DEWEY DR COUPEVILLE, WA 98239 | Mapsco: | |
| Neighborhood: | Cycle 2 | Map ID: | 495 |
| Neighborhood CD: | 2 |
Owner |
| Name: | ROGERS, ELKE JANE G | Owner ID: | 280976 |
| Mailing Address: | 1261 DEWEY DR COUPEVILLE, WA 98239 | % Ownership: | 100.0000000000% |
| | | Exemptions: | |
Taxes and Assessment Details
Values
| (+) Improvement Homesite Value: | + | $0 | |
| (+) Improvement Non-Homesite Value: | + | $287,791 | |
| (+) Land Homesite Value: | + | $0 | |
| (+) Land Non-Homesite Value: | + | $185,000 | |
| (+) Curr Use (HS): | + | $0 | $0 |
| (+) Curr Use (NHS): | + | $0 | $0 |
| | | -------------------------- | |
| (=) Market Value: | = | $472,791 | |
| (–) Productivity Loss: | – | $0 | |
| | | -------------------------- | |
| (=) Subtotal: | = | $472,791 | |
| (+) Senior Appraised Value: | + | $0 | |
| (+) Non-Senior Appraised Value: | + | $472,791 | |
| | | -------------------------- | |
| (=) Total Appraised Value: | = | $472,791 | |
| (–) Senior Exemption Loss: | – | $0 | |
| (–) Exemption Loss: | – | $0 | |
| | | -------------------------- | |
| (=) Taxable Value: | = | $472,791 | |
Taxing Jurisdiction
| Owner: | ROGERS, ELKE JANE G | | |
| % Ownership: | 100.0000000000% | | |
| Total Value: | $472,791 | | |
| Tax Area: | 390 - APPRAISER-Cpvl Schl Dist, Special Dist, improved & less than 1 acre |
| CF | Conservation Futures | 0.0316035091 | $472,791 | $472,791 | $14.94 | | |
| CEM2 | Cemetery #2 | 0.0095056933 | $472,791 | $472,791 | $4.49 | | |
| FIRE5 | Fire & Rescue Dist #5 C Whidbey GEN | 1.2008080668 | $472,791 | $472,791 | $567.73 | | |
| FIRE5BOND | Fire & Rescue Dist #5 C Whidbey BOND | 0.1400090713 | $472,791 | $472,791 | $66.20 | | |
| HOBOND | Hospital BOND | 0.1910887512 | $472,791 | $472,791 | $90.35 | | |
| HOGEN | Hospital GEN | 0.3902502903 | $472,791 | $472,791 | $184.51 | | |
| CE | County Current Expense | 0.3708482477 | $472,791 | $472,791 | $175.33 | | |
| CR | County Roads | 0.4584763726 | $472,791 | $472,791 | $216.76 | | |
| ISLANDEMS | Hospital GEN (EMS) | 0.5000000000 | $472,791 | $472,791 | $236.40 | | |
| LIB | Library Sno-Isle GEN | 0.3153421757 | $472,791 | $472,791 | $149.09 | | |
| LIBCAP | Library Sno-Isle BOND (Cap Fac Imp Area) | 0.0543427938 | $472,791 | $472,791 | $25.69 | | |
| POCOUP | Port of Coupeville GEN | 0.1093371703 | $472,791 | $472,791 | $51.69 | | |
| POCOUPIDD | Port of Coupeville IDD | 0.3409740022 | $472,791 | $472,791 | $161.21 | | |
| COUPSDTECH | School 204 CP (TECH) | 0.7545480007 | $472,791 | $472,791 | $356.74 | | |
| SCH204MO | School 204 Enrichment | 0.6716186034 | $472,791 | $472,791 | $317.54 | | |
| ST | State School | 1.3035497053 | $472,791 | $472,791 | $616.31 | | |
| ST2 | State School Part 2 | 0.8169543533 | $472,791 | $472,791 | $386.25 | | |
| | Total Tax Rate: | 7.6592568070 | | | | | |
| | | | | Taxes w/Current Exemptions: | $3,621.23 | | |
| | | | | Taxes w/o Exemptions: | $3,621.23 | | |
Improvement / Building
| Improvement #1: | RESIDENTIAL | State Code: | Y | 1607.0 sqft | Value: | $287,791 |
| Bathrooms: | 2.5 | Bedrooms: | 3 | | Ceiling: | DRYWALL PAINTED | Exterior Wall/Cover: | CEMENT FIBER | | Floor Covering: | CARPET/VINYL 80-20 | Floor Structure: | WOOD W/SUBFLOOR | | Foundation: | CONCRETE | Heating: | FHA GAS | | Interior Finish: | DRYWALL PAINT | Plumbing Fixture Cnt: | 11 | | Roof Slope: | 6" IN 12" | Roof Structure/Cover: | CJ ASPHALT |
|
| | Type | Description | Class CD | Sub Class CD | Year Built | Area |
| | BAS | BASE/MAIN FLOOR | 3 | 0 | 2006 | 781.0 |
| | AGR | ATTACHED GARAGE | 3 | 0 | 2006 | 484.0 |
| | UPS | UPPER STORY | 3 | 0 | 2006 | 826.0 |
| | OWC | OPEN WOOD PORCH W/STEPS/ROOF/C | 3 | 0 | 2006 | 56.0 |
Sketch
| No sketches available for this property. |
Property Image
Land
| 1 | 13 | SQ (06001-08000) | 0.1708 | 7440.05 | 0.00 | 0.00 | 1.00 | $185,000 | $0 |
Roll Value History
| 2026 | N/A | N/A | N/A | N/A | N/A |
| 2025 | $287,791 | $185,000 | $0 | $472,791 | $472,791 |
| 2024 | $292,651 | $175,000 | $0 | $467,651 | $467,651 |
| 2023 | $296,043 | $175,000 | $0 | $471,043 | $471,043 |
| 2022 | $271,153 | $160,000 | $0 | $431,153 | $431,153 |
| 2021 | $238,448 | $125,000 | $0 | $363,448 | $363,448 |
| 2020 | $231,259 | $100,000 | $0 | $331,259 | $331,259 |
| 2019 | $167,872 | $140,000 | $0 | $307,872 | $307,872 |
| 2018 | $168,333 | $115,000 | $0 | $283,333 | $283,333 |
| 2017 | $161,323 | $100,000 | $0 | $261,323 | $261,323 |
| 2016 | $163,114 | $65,000 | $0 | $228,114 | $228,114 |
| 2015 | $164,906 | $50,000 | $0 | $214,906 | $214,906 |
| 2014 | $166,701 | $50,000 | $0 | $216,701 | $216,701 |
| 2013 | $168,492 | $50,000 | $0 | $218,492 | $218,492 |
| 2012 | $156,619 | $49,227 | $0 | $205,846 | $205,846 |
| 2011 | $158,304 | $57,914 | $0 | $216,218 | $216,218 |
| 2010 | $165,636 | $57,914 | $0 | $223,550 | $223,550 |
| 2009 | $172,515 | $80,000 | $0 | $252,515 | $252,515 |
| 2008 | $174,370 | $80,000 | $0 | $254,370 | $254,370 |
| 2007 | $174,515 | $80,000 | $0 | $254,515 | $254,515 |
Deed and Sales History
| 1 | 07/18/2017 | WD | Warranty Deed | HELM, GERALD W | ROGERS, ELKE JANE G | | | $305,000.00 | 30228 | 4426464 |
| 2 | 12/01/2016 | CCOMPROP | Create Community Property | HELM, GERALD | HELM, GERALD W | | | $0.00 | 27212 | 4412888 |
| 3 | 07/22/2009 | ESTSEPPROP | Establish Separate Property | HELM, GERALD | HELM, GERALD | | | $0.00 | 91725 | 4257357 |
| 4 | 06/27/2006 | WD | Warranty Deed | ISLAND HERITAGE LLC, | HELM, GERALD | | | $264,000.00 | 62845 | 4174745 |
| 5 | 09/16/2005 | WD | Warranty Deed | BOXLEY, BONITA E | ISLAND HERITAGE LLC, | | | $29,000.00 | 54990 | 4149639 |
| 6 | 12/18/2000 | 5 | DNU - Marriage License/Name Change | GIFFORD, BONITA * | BOXLEY, BONITA E | | | $0.00 | 68897 | 0 |
| 7 | 08/01/1989 | QCD | Quit Claim Deed | DIXON, ANNE M | GIFFORD, BONITA * | | | $0.00 | 93994 | 89013265 |
| 8 | 05/01/1983 | OTHER | Other - Misc. Documents | DIXON, ALONZO G | DIXON, ANNE M | | | $0.00 | 59977 | 0 |
Payout Agreement
| No payout information available.. |