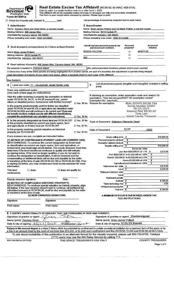
Property
Account |
| Property ID: | 175857 | Abbreviated Legal Description: | ADMIRALS COVE 5 LOT 69 |
| Geographic ID: | S6010-05-00069-0 | Agent Code: | |
| Type: | Real | | |
| Tax Area: | 390 - APPRAISER-Cpvl Schl Dist, Special Dist, improved & less than 1 acre | Land Use Code | 11 |
| Open Space: | N | DFL | N |
| Historic Property: | N | Remodel Property: | N |
| Multi-Family Redevelopment: | N | | |
| Township: | | Section: | |
| Range: | |
Location |
| Address: | 1214 DEWEY DR COUPEVILLE, WA 98239 | Mapsco: | |
| Neighborhood: | Cycle 2 | Map ID: | 81 |
| Neighborhood CD: | 2 |
Owner |
| Name: | CAMPBELL, NATHAN R | Owner ID: | 276755 |
| Mailing Address: | RACHEL E CAMPBELL 1214 DEWEY DR COUPEVILLE, WA 98239 | % Ownership: | 100.0000000000% |
| | | Exemptions: | |
Taxes and Assessment Details
Values
| (+) Improvement Homesite Value: | + | $0 | |
| (+) Improvement Non-Homesite Value: | + | $244,297 | |
| (+) Land Homesite Value: | + | $0 | |
| (+) Land Non-Homesite Value: | + | $185,000 | |
| (+) Curr Use (HS): | + | $0 | $0 |
| (+) Curr Use (NHS): | + | $0 | $0 |
| | | -------------------------- | |
| (=) Market Value: | = | $429,297 | |
| (–) Productivity Loss: | – | $0 | |
| | | -------------------------- | |
| (=) Subtotal: | = | $429,297 | |
| (+) Senior Appraised Value: | + | $0 | |
| (+) Non-Senior Appraised Value: | + | $429,297 | |
| | | -------------------------- | |
| (=) Total Appraised Value: | = | $429,297 | |
| (–) Senior Exemption Loss: | – | $0 | |
| (–) Exemption Loss: | – | $0 | |
| | | -------------------------- | |
| (=) Taxable Value: | = | $429,297 | |
Taxing Jurisdiction
| Owner: | CAMPBELL, NATHAN R | | |
| % Ownership: | 100.0000000000% | | |
| Total Value: | $429,297 | | |
| Tax Area: | 390 - APPRAISER-Cpvl Schl Dist, Special Dist, improved & less than 1 acre |
| CF | Conservation Futures | 0.0316035091 | $429,297 | $429,297 | $13.57 | | |
| CEM2 | Cemetery #2 | 0.0095056933 | $429,297 | $429,297 | $4.08 | | |
| FIRE5 | Fire & Rescue Dist #5 C Whidbey GEN | 1.2008080668 | $429,297 | $429,297 | $515.50 | | |
| FIRE5BOND | Fire & Rescue Dist #5 C Whidbey BOND | 0.1400090713 | $429,297 | $429,297 | $60.11 | | |
| HOBOND | Hospital BOND | 0.1910887512 | $429,297 | $429,297 | $82.03 | | |
| HOGEN | Hospital GEN | 0.3902502903 | $429,297 | $429,297 | $167.53 | | |
| CE | County Current Expense | 0.3708482477 | $429,297 | $429,297 | $159.20 | | |
| CR | County Roads | 0.4584763726 | $429,297 | $429,297 | $196.82 | | |
| ISLANDEMS | Hospital GEN (EMS) | 0.5000000000 | $429,297 | $429,297 | $214.65 | | |
| LIB | Library Sno-Isle GEN | 0.3153421757 | $429,297 | $429,297 | $135.38 | | |
| LIBCAP | Library Sno-Isle BOND (Cap Fac Imp Area) | 0.0543427938 | $429,297 | $429,297 | $23.33 | | |
| POCOUP | Port of Coupeville GEN | 0.1093371703 | $429,297 | $429,297 | $46.94 | | |
| POCOUPIDD | Port of Coupeville IDD | 0.3409740022 | $429,297 | $429,297 | $146.38 | | |
| COUPSDTECH | School 204 CP (TECH) | 0.7545480007 | $429,297 | $429,297 | $323.93 | | |
| SCH204MO | School 204 Enrichment | 0.6716186034 | $429,297 | $429,297 | $288.32 | | |
| ST | State School | 1.3035497053 | $429,297 | $429,297 | $559.61 | | |
| ST2 | State School Part 2 | 0.8169543533 | $429,297 | $429,297 | $350.72 | | |
| | Total Tax Rate: | 7.6592568070 | | | | | |
| | | | | Taxes w/Current Exemptions: | $3,288.10 | | |
| | | | | Taxes w/o Exemptions: | $3,288.10 | | |
Improvement / Building
| Improvement #1: | RESIDENTIAL | State Code: | Y | 1329.8 sqft | Value: | $244,297 |
| Bathrooms: | 2.5 | Bedrooms: | 3 | | Ceiling: | DRYWALL PAINTED | Exterior Wall/Cover: | PLY/HARDBOARD T-111 | | Floor Covering: | CARPET/VINYL 80-20 | Floor Structure: | WOOD W/SUBFLOOR | | Foundation: | CONCRETE | Heating: | FHA GAS | | Interior Finish: | DRYWALL PAINT | Plumbing Fixture Cnt: | 12 | | Roof Slope: | 4" IN 12" | Roof Structure/Cover: | CJ ASPHALT |
|
| | Type | Description | Class CD | Sub Class CD | Year Built | Area |
| | BAS | BASE/MAIN FLOOR | 3 | 0 | 1994 | 669.8 |
| | AGR | ATTACHED GARAGE | 3 | 0 | 1994 | 484.0 |
| | UPS | UPPER STORY | 3 | 0 | 1994 | 660.0 |
| | OWP | OPEN WOOD PORCH W/STEPS | 3 | 0 | 1994 | 205.1 |
| | OWC | OPEN WOOD PORCH W/STEPS/ROOF/C | 3 | 0 | 1994 | 52.0 |
Sketch
Property Image
Land
| 1 | 13 | SQ (06001-08000) | 0.1653 | 7200.47 | 0.00 | 0.00 | 1.00 | $185,000 | $0 |
Roll Value History
| 2026 | N/A | N/A | N/A | N/A | N/A |
| 2025 | $244,297 | $185,000 | $0 | $429,297 | $429,297 |
| 2024 | $247,380 | $175,000 | $0 | $422,380 | $422,380 |
| 2023 | $250,464 | $175,000 | $0 | $425,464 | $425,464 |
| 2022 | $229,593 | $160,000 | $0 | $389,593 | $389,593 |
| 2021 | $202,070 | $125,000 | $0 | $327,070 | $327,070 |
| 2020 | $196,193 | $100,000 | $0 | $296,193 | $296,193 |
| 2019 | $138,316 | $140,000 | $0 | $278,316 | $278,316 |
| 2018 | $135,477 | $115,000 | $0 | $250,477 | $250,477 |
| 2017 | $136,289 | $100,000 | $0 | $236,289 | $236,289 |
| 2016 | $128,175 | $65,000 | $0 | $193,175 | $193,175 |
| 2015 | $129,798 | $50,000 | $0 | $179,798 | $179,798 |
| 2014 | $131,422 | $50,000 | $0 | $181,422 | $181,422 |
| 2013 | $133,043 | $50,000 | $0 | $183,043 | $183,043 |
| 2012 | $133,713 | $49,227 | $0 | $182,940 | $182,940 |
| 2011 | $135,356 | $57,914 | $0 | $193,270 | $193,270 |
| 2010 | $140,431 | $57,914 | $0 | $198,345 | $198,345 |
| 2009 | $146,579 | $80,000 | $0 | $226,579 | $226,579 |
| 2008 | $148,475 | $80,000 | $0 | $228,475 | $228,475 |
| 2007 | $150,388 | $80,000 | $0 | $230,388 | $230,388 |
Deed and Sales History
| 1 | 09/12/2016 | WD | Warranty Deed | BROOKS, DIONNE | CAMPBELL, NATHAN R | | | $235,000.00 | 26101 | 4407233 |
| 2 | 07/08/2015 | DECREE | Divorce Decree/Legal Separation | TERRY, BRUCE L | BROOKS, DIONNE | | | $0.00 | 20480 | 4382183 |
| 3 | 03/31/2014 | WD | Warranty Deed | SECRETARY OF HOUSING & URBAN DEVELOPMENT | TERRY, BRUCE L | | | $133,000.00 | 14794 | 4357436 |
| 4 | 09/18/2012 | WD | Warranty Deed | ALASKA USA FEDERAL CREDIT UNION | SECRETARY OF HOUSING & URBAN DEVELOPMENT | | | $224,047.00 | 13147 | 4350027 |
| 5 | 08/21/2012 | TRUSTEED | Trustee's Deed | HICKS, KATHRYN R | ALASKA USA FEDERAL CREDIT UNION | | | $241,330.00 | 8646 | 4321807 |
| 6 | 05/31/2006 | WD | Warranty Deed | MENDENHALL, RONALD D | HICKS, KATHRYN R | | | $244,895.00 | 62461 | 4172374 |
| 7 | 09/01/1994 | WD | Warranty Deed | BODIN, ROBERT | MENDENHALL, RONALD D | | | $119,500.00 | 43823 | 94019919 |
| 8 | 11/01/1993 | WD | Warranty Deed | BROCK, MELODY R | BODIN, ROBERT | | | $11,400.00 | 34721 | 93024613 |
| 9 | 04/01/1991 | QCD | Quit Claim Deed | EYER, ROSA T | BROCK, MELODY R | | | $0.00 | 11445 | 91006105 |
| 10 | 10/01/1988 | OTHER | Other - Misc. Documents | BROC, MELODY R | EYER, ROSA T | | | $0.00 | 62906 | 88013511 |
| 11 | 10/01/1988 | QCD | Quit Claim Deed | EYER, JOHN H | BROC, MELODY R | | | $0.00 | 83377 | 88012624 |
| 12 | 01/01/1900 | OTHER | Other - Misc. Documents | Unknown | EYER, JOHN H | | | $4,500.00 | 0 | 0 |
Payout Agreement
| No payout information available.. |