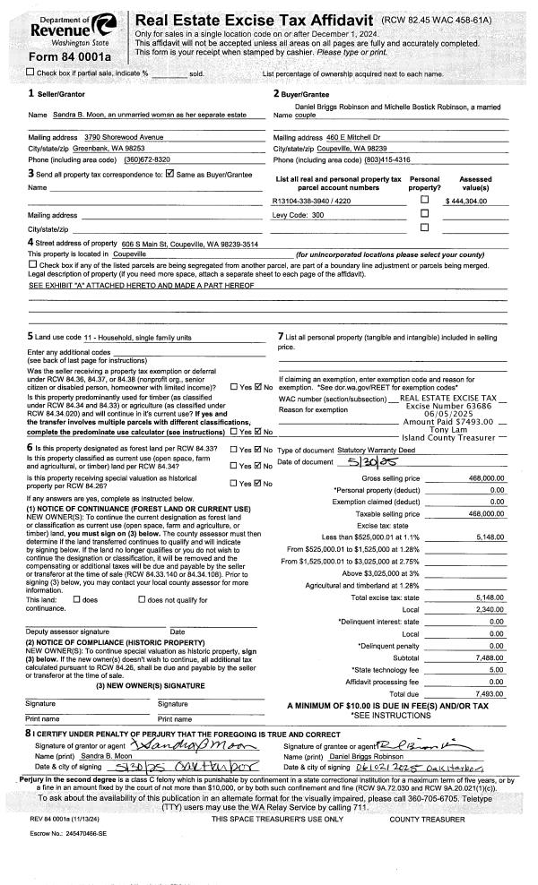
Property
Account |
| Property ID: | 176115 | Abbreviated Legal Description: | ADMIRALS COVE 5 LOT 95 |
| Geographic ID: | S6010-05-00095-0 | Agent Code: | |
| Type: | Real | | |
| Tax Area: | 390 - APPRAISER-Cpvl Schl Dist, Special Dist, improved & less than 1 acre | Land Use Code | 11 |
| Open Space: | N | DFL | N |
| Historic Property: | N | Remodel Property: | N |
| Multi-Family Redevelopment: | N | | |
| Township: | | Section: | |
| Range: | |
Location |
| Address: | 1227 LEAHY DR COUPEVILLE, WA 98239 | Mapsco: | |
| Neighborhood: | Cycle 2 | Map ID: | 81 |
| Neighborhood CD: | 2 |
Owner |
| Name: | ERICKSON, ROGER A | Owner ID: | 114504 |
| Mailing Address: | 1227 LEAHY DR COUPEVILLE, WA 98239-9726 | % Ownership: | 100.0000000000% |
| | | Exemptions: | SNR/DSBL |
Taxes and Assessment Details
Values
| (+) Improvement Homesite Value: | + | $185,175 | |
| (+) Improvement Non-Homesite Value: | + | $0 | |
| (+) Land Homesite Value: | + | $185,000 | |
| (+) Land Non-Homesite Value: | + | $0 | |
| (+) Curr Use (HS): | + | $0 | $0 |
| (+) Curr Use (NHS): | + | $0 | $0 |
| | | -------------------------- | |
| (=) Market Value: | = | $370,175 | |
| (–) Productivity Loss: | – | $0 | |
| | | -------------------------- | |
| (=) Subtotal: | = | $370,175 | |
| (+) Senior Appraised Value: | + | $357,868 | |
| (+) Non-Senior Appraised Value: | + | $0 | |
| | | -------------------------- | |
| (=) Total Appraised Value: | = | $357,868 | |
| (–) Senior Exemption Loss: | – | $0 | |
| (–) Exemption Loss: | – | $0 | |
| | | -------------------------- | |
| (=) Taxable Value: | = | $357,868 | |
Taxing Jurisdiction
| Owner: | ERICKSON, ROGER A | | |
| % Ownership: | 100.0000000000% | | |
| Total Value: | $370,175 | | |
| Tax Area: | 390 - APPRAISER-Cpvl Schl Dist, Special Dist, improved & less than 1 acre |
| CF | Conservation Futures | 0.0316035091 | $370,175 | $357,868 | $11.31 | | |
| CEM2 | Cemetery #2 | 0.0095056933 | $370,175 | $357,868 | $3.40 | | |
| FIRE5 | Fire & Rescue Dist #5 C Whidbey GEN | 1.2008080668 | $370,175 | $357,868 | $429.73 | | |
| FIRE5BOND | Fire & Rescue Dist #5 C Whidbey BOND | 0.0000000000 | $370,175 | $0 | $0.00 | | |
| HOBOND | Hospital BOND | 0.0000000000 | $370,175 | $0 | $0.00 | | |
| HOGEN | Hospital GEN | 0.3902502903 | $370,175 | $357,868 | $139.66 | | |
| CE | County Current Expense | 0.3708482477 | $370,175 | $357,868 | $132.71 | | |
| CR | County Roads | 0.4584763726 | $370,175 | $357,868 | $164.07 | | |
| ISLANDEMS | Hospital GEN (EMS) | 0.5000000000 | $370,175 | $357,868 | $178.93 | | |
| LIB | Library Sno-Isle GEN | 0.3153421757 | $370,175 | $357,868 | $112.85 | | |
| LIBCAP | Library Sno-Isle BOND (Cap Fac Imp Area) | 0.0000000000 | $370,175 | $0 | $0.00 | | |
| POCOUP | Port of Coupeville GEN | 0.1093371703 | $370,175 | $357,868 | $39.13 | | |
| POCOUPIDD | Port of Coupeville IDD | 0.3409740022 | $370,175 | $357,868 | $122.02 | | |
| COUPSDTECH | School 204 CP (TECH) | 0.0000000000 | $370,175 | $0 | $0.00 | | |
| SCH204MO | School 204 Enrichment | 0.0000000000 | $370,175 | $0 | $0.00 | | |
| ST | State School | 1.3035497053 | $370,175 | $357,868 | $466.50 | | |
| ST2 | State School Part 2 | 0.0000000000 | $370,175 | $0 | $0.00 | | |
| | Total Tax Rate: | 5.0306952333 | | | | | |
| | | | | Taxes w/Current Exemptions: | $1,800.31 | | |
| | | | | Taxes w/o Exemptions: | $2,835.28 | | |
Improvement / Building
| Improvement #1: | RESIDENTIAL | State Code: | Y | 976.0 sqft | Value: | $185,175 |
| Bathrooms: | 2 | Bedrooms: | 2 | | Ceiling: | DRYWALL PAINTED | Exterior Wall/Cover: | PLY/HARDBOARD T-111 | | Floor Covering: | CARPET/VINYL 80-20 | Floor Structure: | WOOD W/SUBFLOOR | | Foundation: | CONCRETE | Heating: | FHA GAS | | Interior Finish: | DRYWALL PAINT | Plumbing Fixture Cnt: | 9 | | Roof Slope: | 4" IN 12" | Roof Structure/Cover: | CJ ASPHALT |
|
| | Type | Description | Class CD | Sub Class CD | Year Built | Area |
| | BAS | BASE/MAIN FLOOR | 3 | 0 | 1998 | 976.0 |
| | AGR | ATTACHED GARAGE | 3 | 0 | 1998 | 308.0 |
Sketch
Property Image
Land
| 1 | 13 | SQ (06001-08000) | 0.1708 | 7440.05 | 0.00 | 0.00 | 1.00 | $185,000 | $0 |
Roll Value History
| 2026 | N/A | N/A | N/A | N/A | N/A |
| 2025 | $185,175 | $185,000 | $0 | $370,175 | $357,868 |
| 2024 | $180,561 | $175,000 | $0 | $355,561 | $355,561 |
| 2023 | $182,868 | $175,000 | $0 | $357,868 | $357,868 |
| 2022 | $167,684 | $160,000 | $0 | $327,684 | $327,684 |
| 2021 | $147,631 | $125,000 | $0 | $272,631 | $194,594 |
| 2020 | $143,331 | $100,000 | $0 | $243,331 | $194,594 |
| 2019 | $99,330 | $140,000 | $0 | $239,330 | $194,594 |
| 2018 | $100,236 | $115,000 | $0 | $215,236 | $167,080 |
| 2017 | $100,850 | $100,000 | $0 | $200,850 | $167,080 |
| 2016 | $102,080 | $65,000 | $0 | $167,080 | $167,080 |
| 2015 | $103,310 | $50,000 | $0 | $153,310 | $61,324 |
| 2014 | $104,540 | $50,000 | $0 | $154,540 | $61,816 |
| 2013 | $105,770 | $50,000 | $0 | $155,770 | $62,308 |
| 2012 | $104,254 | $49,227 | $0 | $153,481 | $61,392 |
| 2011 | $105,472 | $57,914 | $0 | $163,386 | $106,201 |
| 2010 | $108,690 | $57,914 | $0 | $166,604 | $108,293 |
| 2009 | $113,299 | $80,000 | $0 | $193,299 | $125,644 |
| 2008 | $114,594 | $80,000 | $0 | $194,594 | $126,486 |
| 2007 | $115,905 | $80,000 | $0 | $195,905 | $195,905 |
Deed and Sales History
| 1 | 01/08/2008 | QCD | Quit Claim Deed | ERICKSON, ROGER A | ERICKSON, ROGER A | | | $0.00 | 80166 | 4220220 |
| 2 | 11/30/2004 | ESTSEPPROP | Establish Separate Property | ERICKSON, ROGER A | ERICKSON, ROGER A | | | $0.00 | 45695 | 4120057 |
| 3 | 11/30/2004 | WD | Warranty Deed | JENZEN, KENNETH H | ERICKSON, ROGER A | | | $149,900.00 | 45694 | 4120056 |
| 4 | 12/01/1997 | WD | Warranty Deed | SCHARNIKOW, HARRY J | JENZEN, KENNETH H | | | $110,000.00 | 80040 | 98000208 |
| 5 | 05/01/1997 | WD | Warranty Deed | WEIS-CALHOUN, MARGARET | SCHARNIKOW, HARRY J | | | $12,000.00 | 71641 | 97007565 |
| 6 | 02/01/1992 | WD | Warranty Deed | DODDS, THOMAS T | WEIS-CALHOUN, MARGARET | | | $6,630.00 | 22109 | 92010067 |
| 7 | 12/01/1982 | QCD | Quit Claim Deed | DODDS, C T | DODDS, THOMAS T | | | $6,000.00 | 23125 | 404174 |
| 8 | 01/01/1900 | OTHER | Other - Misc. Documents | Unknown | DODDS, C T | | | $4,050.00 | 0 | 0 |
Payout Agreement
| No payout information available.. |