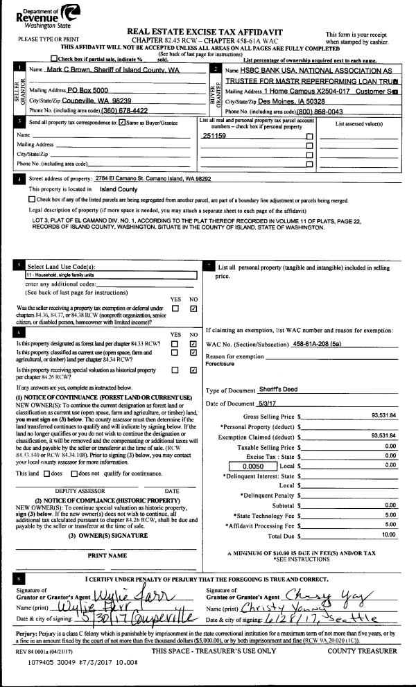
Property
Account |
| Property ID: | 176142 | Abbreviated Legal Description: | ADMIRALS COVE 5 LOT 98 |
| Geographic ID: | S6010-05-00098-0 | Agent Code: | |
| Type: | Real | | |
| Tax Area: | 390 - APPRAISER-Cpvl Schl Dist, Special Dist, improved & less than 1 acre | Land Use Code | 11 |
| Open Space: | N | DFL | N |
| Historic Property: | N | Remodel Property: | N |
| Multi-Family Redevelopment: | N | | |
| Township: | | Section: | |
| Range: | |
Location |
| Address: | 1215 LEAHY DR COUPEVILLE, WA 98239 | Mapsco: | |
| Neighborhood: | Cycle 2 | Map ID: | 81 |
| Neighborhood CD: | 2 |
Owner |
| Name: | MCCORMICK, JACQUELYN | Owner ID: | 299855 |
| Mailing Address: | JACOB MCCORMICK PO BOX 621 COUPEVILLE, WA 98236 | % Ownership: | 100.0000000000% |
| | | Exemptions: | |
Taxes and Assessment Details
Values
| (+) Improvement Homesite Value: | + | $0 | |
| (+) Improvement Non-Homesite Value: | + | $262,020 | |
| (+) Land Homesite Value: | + | $0 | |
| (+) Land Non-Homesite Value: | + | $185,000 | |
| (+) Curr Use (HS): | + | $0 | $0 |
| (+) Curr Use (NHS): | + | $0 | $0 |
| | | -------------------------- | |
| (=) Market Value: | = | $447,020 | |
| (–) Productivity Loss: | – | $0 | |
| | | -------------------------- | |
| (=) Subtotal: | = | $447,020 | |
| (+) Senior Appraised Value: | + | $0 | |
| (+) Non-Senior Appraised Value: | + | $447,020 | |
| | | -------------------------- | |
| (=) Total Appraised Value: | = | $447,020 | |
| (–) Senior Exemption Loss: | – | $0 | |
| (–) Exemption Loss: | – | $0 | |
| | | -------------------------- | |
| (=) Taxable Value: | = | $447,020 | |
Taxing Jurisdiction
| Owner: | MCCORMICK, JACQUELYN | | |
| % Ownership: | 100.0000000000% | | |
| Total Value: | $447,020 | | |
| Tax Area: | 390 - APPRAISER-Cpvl Schl Dist, Special Dist, improved & less than 1 acre |
| CF | Conservation Futures | 0.0316035091 | $447,020 | $447,020 | $14.13 | | |
| CEM2 | Cemetery #2 | 0.0095056933 | $447,020 | $447,020 | $4.25 | | |
| FIRE5 | Fire & Rescue Dist #5 C Whidbey GEN | 1.2008080668 | $447,020 | $447,020 | $536.79 | | |
| FIRE5BOND | Fire & Rescue Dist #5 C Whidbey BOND | 0.1400090713 | $447,020 | $447,020 | $62.59 | | |
| HOBOND | Hospital BOND | 0.1910887512 | $447,020 | $447,020 | $85.42 | | |
| HOGEN | Hospital GEN | 0.3902502903 | $447,020 | $447,020 | $174.45 | | |
| CE | County Current Expense | 0.3708482477 | $447,020 | $447,020 | $165.78 | | |
| CR | County Roads | 0.4584763726 | $447,020 | $447,020 | $204.95 | | |
| ISLANDEMS | Hospital GEN (EMS) | 0.5000000000 | $447,020 | $447,020 | $223.51 | | |
| LIB | Library Sno-Isle GEN | 0.3153421757 | $447,020 | $447,020 | $140.96 | | |
| LIBCAP | Library Sno-Isle BOND (Cap Fac Imp Area) | 0.0543427938 | $447,020 | $447,020 | $24.29 | | |
| POCOUP | Port of Coupeville GEN | 0.1093371703 | $447,020 | $447,020 | $48.88 | | |
| POCOUPIDD | Port of Coupeville IDD | 0.3409740022 | $447,020 | $447,020 | $152.42 | | |
| COUPSDTECH | School 204 CP (TECH) | 0.7545480007 | $447,020 | $447,020 | $337.30 | | |
| SCH204MO | School 204 Enrichment | 0.6716186034 | $447,020 | $447,020 | $300.23 | | |
| ST | State School | 1.3035497053 | $447,020 | $447,020 | $582.71 | | |
| ST2 | State School Part 2 | 0.8169543533 | $447,020 | $447,020 | $365.19 | | |
| | Total Tax Rate: | 7.6592568070 | | | | | |
| | | | | Taxes w/Current Exemptions: | $3,423.85 | | |
| | | | | Taxes w/o Exemptions: | $3,423.85 | | |
Improvement / Building
| Improvement #1: | RESIDENTIAL | State Code: | Y | 1386.0 sqft | Value: | $262,020 |
| Bathrooms: | 2.5 | Bedrooms: | 2 | | Ceiling: | DRYWALL PAINTED | Exterior Wall/Cover: | VINYL | | Floor Covering: | CERAMIC TILE/CPT 40-60 | Floor Structure: | WOOD W/SUBFLOOR | | Foundation: | CONCRETE | Heating: | WALL HEAT ELECTRIC | | Interior Finish: | DRYWALL PAINT | Plumbing Fixture Cnt: | 11 | | Roof Slope: | 4" IN 12" | Roof Structure/Cover: | CJ ASPHALT |
|
| | Type | Description | Class CD | Sub Class CD | Year Built | Area |
| | BAS | BASE/MAIN FLOOR | 3 | 0 | 2002 | 684.0 |
| | AGR | ATTACHED GARAGE | 3 | 0 | 2002 | 528.0 |
| | UPS | UPPER STORY | 3 | 0 | 2002 | 702.0 |
| | OWP | OPEN WOOD PORCH W/STEPS | 3 | 0 | 2002 | 306.0 |
| | OWC | OPEN WOOD PORCH W/STEPS/ROOF/C | 3 | 0 | 2002 | 84.0 |
Sketch
Property Image
Land
| 1 | 13 | SQ (06001-08000) | 0.1708 | 7440.05 | 0.00 | 0.00 | 1.00 | $185,000 | $0 |
Roll Value History
| 2026 | N/A | N/A | N/A | N/A | N/A |
| 2025 | $262,020 | $185,000 | $0 | $447,020 | $447,020 |
| 2024 | $265,075 | $175,000 | $0 | $440,075 | $440,075 |
| 2023 | $268,337 | $175,000 | $0 | $443,337 | $443,337 |
| 2022 | $245,932 | $160,000 | $0 | $405,932 | $405,932 |
| 2021 | $216,421 | $125,000 | $0 | $341,421 | $341,421 |
| 2020 | $210,403 | $100,000 | $0 | $310,403 | $310,403 |
| 2019 | $150,290 | $140,000 | $0 | $290,290 | $290,290 |
| 2018 | $150,727 | $115,000 | $0 | $265,727 | $265,727 |
| 2017 | $145,412 | $100,000 | $0 | $245,412 | $245,412 |
| 2016 | $147,082 | $65,000 | $0 | $212,082 | $212,082 |
| 2015 | $148,754 | $50,000 | $0 | $198,754 | $198,754 |
| 2014 | $150,426 | $50,000 | $0 | $200,426 | $200,426 |
| 2013 | $152,096 | $50,000 | $0 | $202,096 | $202,096 |
| 2012 | $147,224 | $49,227 | $0 | $196,451 | $196,451 |
| 2011 | $148,859 | $57,914 | $0 | $206,773 | $206,773 |
| 2010 | $157,601 | $57,914 | $0 | $215,515 | $215,515 |
| 2009 | $160,913 | $80,000 | $0 | $240,913 | $240,913 |
| 2008 | $164,508 | $80,000 | $0 | $244,508 | $244,508 |
| 2007 | $168,104 | $80,000 | $0 | $248,104 | $248,104 |
Deed and Sales History
| 1 | 06/17/2021 | WD | Warranty Deed | NAGEL, RANDALL RICHARD | MCCORMICK, JACQUELYN | | | $376,500.00 | 48757 | 4522236 |
| 2 | 06/06/2017 | WD | Warranty Deed | WORLEY JR, GERARD A | NAGEL, RANDALL RICHARD | | | $268,500.00 | 29610 | 4423796 |
| 3 | 04/22/2015 | CCOMPROP | Create Community Property | WORLEY JR, GERALD A | WORLEY JR, GERARD A | | | $0.00 | 19401 | 4377564 |
| 4 | 09/25/2010 | WD | Warranty Deed | GUSTAFSON, LARK A | WORLEY JR, GERALD A | | | $214,500.00 | 2412 | 4281846 |
| 5 | 04/15/2005 | QCD | Quit Claim Deed | GUSTAFSON, LARK A | GUSTAFSON, LARK A | | | $0.00 | 54201 | 4145500 |
| 6 | 04/15/2005 | 5 | DNU - Marriage License/Name Change | GUSTAFSON, LARK A | GUSTAFSON, LARK A | | | $0.00 | 51720 | 4132099 |
| 7 | 05/14/2002 | WD | Warranty Deed | MACH, DELBERT J | GUSTAFSON, LARK A | | | $149,900.00 | 22037 | 4021500 |
| 8 | 09/13/2001 | WD | Warranty Deed | LEHNHOFF, LOREN A | MACH, DELBERT J | | | $17,000.00 | 13666 | 20043689 |
| 9 | 06/01/1979 | EXECUTORD | Executor Deed | FRANK, WALTER T | LEHNHOFF, LOREN A | | | $6,500.00 | 93130 | 354743 |
| 10 | 01/01/1900 | OTHER | Other - Misc. Documents | Unknown | FRANK, WALTER T | | | $0.00 | 0 | 0 |
Payout Agreement
| No payout information available.. |