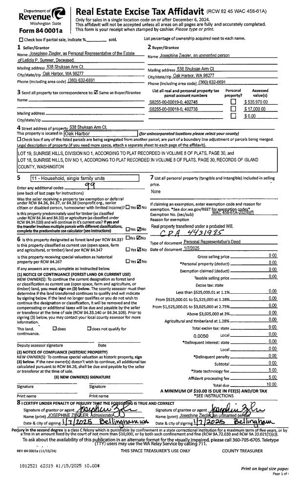
Property
Account |
| Property ID: | 176179 | Abbreviated Legal Description: | ADMIRALS COVE 5 LOT 101 |
| Geographic ID: | S6010-05-00101-0 | Agent Code: | |
| Type: | Real | | |
| Tax Area: | 390 - APPRAISER-Cpvl Schl Dist, Special Dist, improved & less than 1 acre | Land Use Code | 11 |
| Open Space: | N | DFL | N |
| Historic Property: | N | Remodel Property: | N |
| Multi-Family Redevelopment: | N | | |
| Township: | | Section: | |
| Range: | |
Location |
| Address: | 1203 BYRD DR COUPEVILLE, WA 98239 | Mapsco: | |
| Neighborhood: | Cycle 2 | Map ID: | 81 |
| Neighborhood CD: | 2 |
Owner |
| Name: | MILLER, TIMOTHY | Owner ID: | 313036 |
| Mailing Address: | HOLLY RAE MILLER 1203 BYRD DR COUPEVILLE, WA 98239 | % Ownership: | 100.0000000000% |
| | | Exemptions: | |
Taxes and Assessment Details
Values
| (+) Improvement Homesite Value: | + | $0 | |
| (+) Improvement Non-Homesite Value: | + | $380,909 | |
| (+) Land Homesite Value: | + | $0 | |
| (+) Land Non-Homesite Value: | + | $185,000 | |
| (+) Curr Use (HS): | + | $0 | $0 |
| (+) Curr Use (NHS): | + | $0 | $0 |
| | | -------------------------- | |
| (=) Market Value: | = | $565,909 | |
| (–) Productivity Loss: | – | $0 | |
| | | -------------------------- | |
| (=) Subtotal: | = | $565,909 | |
| (+) Senior Appraised Value: | + | $0 | |
| (+) Non-Senior Appraised Value: | + | $565,909 | |
| | | -------------------------- | |
| (=) Total Appraised Value: | = | $565,909 | |
| (–) Senior Exemption Loss: | – | $0 | |
| (–) Exemption Loss: | – | $0 | |
| | | -------------------------- | |
| (=) Taxable Value: | = | $565,909 | |
Taxing Jurisdiction
| Owner: | MILLER, TIMOTHY | | |
| % Ownership: | 100.0000000000% | | |
| Total Value: | $565,909 | | |
| Tax Area: | 390 - APPRAISER-Cpvl Schl Dist, Special Dist, improved & less than 1 acre |
| CF | Conservation Futures | 0.0316035091 | $565,909 | $565,909 | $17.88 | | |
| CEM2 | Cemetery #2 | 0.0095056933 | $565,909 | $565,909 | $5.38 | | |
| FIRE5 | Fire & Rescue Dist #5 C Whidbey GEN | 1.2008080668 | $565,909 | $565,909 | $679.55 | | |
| FIRE5BOND | Fire & Rescue Dist #5 C Whidbey BOND | 0.1400090713 | $565,909 | $565,909 | $79.23 | | |
| HOBOND | Hospital BOND | 0.1910887512 | $565,909 | $565,909 | $108.14 | | |
| HOGEN | Hospital GEN | 0.3902502903 | $565,909 | $565,909 | $220.85 | | |
| CE | County Current Expense | 0.3708482477 | $565,909 | $565,909 | $209.87 | | |
| CR | County Roads | 0.4584763726 | $565,909 | $565,909 | $259.46 | | |
| ISLANDEMS | Hospital GEN (EMS) | 0.5000000000 | $565,909 | $565,909 | $282.95 | | |
| LIB | Library Sno-Isle GEN | 0.3153421757 | $565,909 | $565,909 | $178.45 | | |
| LIBCAP | Library Sno-Isle BOND (Cap Fac Imp Area) | 0.0543427938 | $565,909 | $565,909 | $30.75 | | |
| POCOUP | Port of Coupeville GEN | 0.1093371703 | $565,909 | $565,909 | $61.87 | | |
| POCOUPIDD | Port of Coupeville IDD | 0.3409740022 | $565,909 | $565,909 | $192.96 | | |
| COUPSDTECH | School 204 CP (TECH) | 0.7545480007 | $565,909 | $565,909 | $427.01 | | |
| SCH204MO | School 204 Enrichment | 0.6716186034 | $565,909 | $565,909 | $380.08 | | |
| ST | State School | 1.3035497053 | $565,909 | $565,909 | $737.69 | | |
| ST2 | State School Part 2 | 0.8169543533 | $565,909 | $565,909 | $462.32 | | |
| | Total Tax Rate: | 7.6592568070 | | | | | |
| | | | | Taxes w/Current Exemptions: | $4,334.44 | | |
| | | | | Taxes w/o Exemptions: | $4,334.44 | | |
Improvement / Building
| Improvement #1: | RESIDENTIAL | State Code: | Y | 2185.6 sqft | Value: | $380,909 |
| Bathrooms: | 2.5 | Bedrooms: | 3 | | Ceiling: | DRYWALL PAINTED | Cooling: | HEAT PUMP/CONV/V | | Exterior Wall/Cover: | CEMENT FIBER | Floor Covering: | CARPET/VINYL 60-40 | | Floor Structure: | WOOD W/SUBFLOOR | Foundation: | CONCRETE | | Interior Finish: | DRYWALL PAINT | Plumbing Fixture Cnt: | 13 | | Roof Slope: | 3" IN 12" | Roof Structure/Cover: | CJ ASPHALT |
|
| | Type | Description | Class CD | Sub Class CD | Year Built | Area |
| | BAS | BASE/MAIN FLOOR | 3 | 0 | 2023 | 944.7 |
| | UPS | UPPER STORY | 3 | 0 | 2023 | 1240.9 |
| | BIG | BUILT IN GARAGE | 3 | 0 | 2023 | 729.7 |
| | OP4 | OPEN PORCH W/CEILING-ROOF | 3 | 0 | 2023 | 69.4 |
Sketch
Property Image
Land
| 1 | 13 | SQ (06001-08000) | 0.2161 | 9413.32 | 0.00 | 0.00 | 1.00 | $185,000 | $0 |
Roll Value History
| 2026 | N/A | N/A | N/A | N/A | N/A |
| 2025 | $380,909 | $185,000 | $0 | $565,909 | $565,909 |
| 2024 | $387,835 | $175,000 | $0 | $562,835 | $562,835 |
| 2023 | $13,065 | $70,000 | $0 | $83,065 | $83,065 |
| 2022 | $0 | $40,000 | $0 | $40,000 | $40,000 |
| 2021 | $0 | $30,000 | $0 | $30,000 | $30,000 |
| 2020 | $0 | $25,000 | $0 | $25,000 | $25,000 |
| 2019 | $0 | $35,000 | $0 | $35,000 | $35,000 |
| 2018 | $0 | $35,000 | $0 | $35,000 | $35,000 |
| 2017 | $0 | $30,000 | $0 | $30,000 | $30,000 |
| 2016 | $0 | $30,000 | $0 | $30,000 | $30,000 |
| 2015 | $0 | $30,000 | $0 | $30,000 | $30,000 |
| 2014 | $0 | $30,000 | $0 | $30,000 | $30,000 |
| 2013 | $0 | $30,000 | $0 | $30,000 | $30,000 |
| 2012 | $0 | $21,623 | $0 | $21,623 | $21,623 |
| 2011 | $0 | $21,623 | $0 | $21,623 | $21,623 |
| 2010 | $0 | $21,623 | $0 | $21,623 | $21,623 |
| 2009 | $0 | $45,000 | $0 | $45,000 | $45,000 |
| 2008 | $0 | $25,000 | $0 | $25,000 | $25,000 |
| 2007 | $0 | $30,000 | $0 | $30,000 | $30,000 |
Deed and Sales History
| 1 | 06/27/2024 | WD | Warranty Deed | MOFFETT, JAMES | MILLER, TIMOTHY | | | $550,000.00 | 60553 | 4574214 |
| 2 | 08/17/2022 | WD | Warranty Deed | BARTHOLOMEW TTEE, LYDIA | MOFFETT, JAMES | | | $92,000.00 | 54281 | 4550168 |
| 3 | 10/28/2021 | QCD | Quit Claim Deed | BARTHOLOMEW MD, LYDIA | BARTHOLOMEW TTEE, LYDIA | | | $0.00 | 51002 | 4534218 |
| 4 | 03/10/2021 | WD | Warranty Deed | MEYER, TODD W | BARTHOLOMEW MD, LYDIA | | | $56,950.00 | 47355 | 4513628 |
| 5 | 10/21/2004 | WD | Warranty Deed | SHANNON, MICHAEL F | MEYER, TODD W | | | $26,300.00 | 45112 | 4116841 |
| 6 | 09/01/1992 | WD | Warranty Deed | WIETLISPACH, CARMEN K | SHANNON, MICHAEL F | | | $18,000.00 | 23660 | 92017655 |
| 7 | 02/01/1986 | REC | Real Estate Contract | KING, ANNABELLE L | WIETLISPACH, CARMEN K | | | $7,500.00 | 60367 | 86001864 |
| 8 | 01/01/1900 | OTHER | Other - Misc. Documents | Unknown | KING, ANNABELLE L | | | $3,695.00 | 0 | 0 |
Payout Agreement
| No payout information available.. |