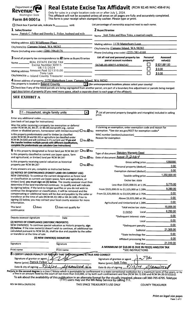
Property
Account |
| Property ID: | 176552 | Abbreviated Legal Description: | ADMIRALS COVE 6 LOT 29 EX PT LOT 29 DESC: BG NWCR LOT 29 SELY TO NECR LOT 29 SLY ALG ELY LN LOT 29 2' NWLY TP ON WLY LN LOT 29 8' S43*W FR TPB N43*E8' TPB |
| Geographic ID: | S6010-06-00029-0 | Agent Code: | |
| Type: | Real | | |
| Tax Area: | 390 - APPRAISER-Cpvl Schl Dist, Special Dist, improved & less than 1 acre | Land Use Code | 11 |
| Open Space: | N | DFL | N |
| Historic Property: | N | Remodel Property: | N |
| Multi-Family Redevelopment: | N | | |
| Township: | | Section: | |
| Range: | |
Location |
| Address: | 1126 DEWEY DR COUPEVILLE, WA 98239 | Mapsco: | |
| Neighborhood: | Cycle 2 | Map ID: | 59 |
| Neighborhood CD: | 2 |
Owner |
| Name: | WERTZ, CHRISTINA MARIE | Owner ID: | 311359 |
| Mailing Address: | 1126 DEWEY DR COUPEVILLE, WA 98239 | % Ownership: | 100.0000000000% |
| | | Exemptions: | |
Taxes and Assessment Details
Values
| (+) Improvement Homesite Value: | + | $0 | |
| (+) Improvement Non-Homesite Value: | + | $254,516 | |
| (+) Land Homesite Value: | + | $0 | |
| (+) Land Non-Homesite Value: | + | $185,000 | |
| (+) Curr Use (HS): | + | $0 | $0 |
| (+) Curr Use (NHS): | + | $0 | $0 |
| | | -------------------------- | |
| (=) Market Value: | = | $439,516 | |
| (–) Productivity Loss: | – | $0 | |
| | | -------------------------- | |
| (=) Subtotal: | = | $439,516 | |
| (+) Senior Appraised Value: | + | $0 | |
| (+) Non-Senior Appraised Value: | + | $439,516 | |
| | | -------------------------- | |
| (=) Total Appraised Value: | = | $439,516 | |
| (–) Senior Exemption Loss: | – | $0 | |
| (–) Exemption Loss: | – | $0 | |
| | | -------------------------- | |
| (=) Taxable Value: | = | $439,516 | |
Taxing Jurisdiction
| Owner: | WERTZ, CHRISTINA MARIE | | |
| % Ownership: | 100.0000000000% | | |
| Total Value: | $439,516 | | |
| Tax Area: | 390 - APPRAISER-Cpvl Schl Dist, Special Dist, improved & less than 1 acre |
| CF | Conservation Futures | 0.0316035091 | $439,516 | $439,516 | $13.89 | | |
| CEM2 | Cemetery #2 | 0.0095056933 | $439,516 | $439,516 | $4.18 | | |
| FIRE5 | Fire & Rescue Dist #5 C Whidbey GEN | 1.2008080668 | $439,516 | $439,516 | $527.77 | | |
| FIRE5BOND | Fire & Rescue Dist #5 C Whidbey BOND | 0.1400090713 | $439,516 | $439,516 | $61.54 | | |
| HOBOND | Hospital BOND | 0.1910887512 | $439,516 | $439,516 | $83.99 | | |
| HOGEN | Hospital GEN | 0.3902502903 | $439,516 | $439,516 | $171.52 | | |
| CE | County Current Expense | 0.3708482477 | $439,516 | $439,516 | $162.99 | | |
| CR | County Roads | 0.4584763726 | $439,516 | $439,516 | $201.51 | | |
| ISLANDEMS | Hospital GEN (EMS) | 0.5000000000 | $439,516 | $439,516 | $219.76 | | |
| LIB | Library Sno-Isle GEN | 0.3153421757 | $439,516 | $439,516 | $138.60 | | |
| LIBCAP | Library Sno-Isle BOND (Cap Fac Imp Area) | 0.0543427938 | $439,516 | $439,516 | $23.88 | | |
| POCOUP | Port of Coupeville GEN | 0.1093371703 | $439,516 | $439,516 | $48.06 | | |
| POCOUPIDD | Port of Coupeville IDD | 0.3409740022 | $439,516 | $439,516 | $149.86 | | |
| COUPSDTECH | School 204 CP (TECH) | 0.7545480007 | $439,516 | $439,516 | $331.64 | | |
| SCH204MO | School 204 Enrichment | 0.6716186034 | $439,516 | $439,516 | $295.19 | | |
| ST | State School | 1.3035497053 | $439,516 | $439,516 | $572.93 | | |
| ST2 | State School Part 2 | 0.8169543533 | $439,516 | $439,516 | $359.06 | | |
| | Total Tax Rate: | 7.6592568070 | | | | | |
| | | | | Taxes w/Current Exemptions: | $3,366.37 | | |
| | | | | Taxes w/o Exemptions: | $3,366.37 | | |
Improvement / Building
| Improvement #1: | RESIDENTIAL | State Code: | Y | 1744.0 sqft | Value: | $254,516 |
| Bathrooms: | 3 | Bedrooms: | 2 | | Ceiling: | DRYWALL PAINTED | Exterior Wall/Cover: | CEMENT FIBER | | Floor Covering: | CARPET/VINYL 20-80 | Floor Structure: | WOOD W/SUBFLOOR | | Foundation: | CONCRETE | Heating: | FHA GAS | | Interior Finish: | DRYWALL PAINT | Plumbing Fixture Cnt: | 12 | | Roof Slope: | 4" IN 12" | Roof Structure/Cover: | CJ ASPHALT |
|
| | Type | Description | Class CD | Sub Class CD | Year Built | Area |
| | BAS | BASE/MAIN FLOOR | 3 | 0 | 1992 | 1072.0 |
| | BIG | BUILT IN GARAGE | 3 | 0 | 1992 | 400.0 |
| | OWP | OPEN WOOD PORCH W/STEPS | 3 | 0 | 1992 | 80.0 |
| | OWP | OPEN WOOD PORCH W/STEPS | 3 | 0 | 1992 | 136.0 |
| | OWP | OPEN WOOD PORCH W/STEPS | 3 | 0 | 1992 | 72.0 |
| | DWN | DOWNSTAIRS LIVING AREA | 3 | 0 | 1992 | 672.0 |
Sketch
Property Image
Land
| 1 | 13 | SQ (06001-08000) | 0.1806 | 7866.94 | 0.00 | 0.00 | 1.00 | $185,000 | $0 |
Roll Value History
| 2026 | N/A | N/A | N/A | N/A | N/A |
| 2025 | $254,516 | $185,000 | $0 | $439,516 | $439,516 |
| 2024 | $249,193 | $175,000 | $0 | $424,193 | $424,193 |
| 2023 | $252,460 | $175,000 | $0 | $427,460 | $427,460 |
| 2022 | $231,566 | $160,000 | $0 | $391,566 | $391,566 |
| 2021 | $203,936 | $125,000 | $0 | $328,936 | $328,936 |
| 2020 | $198,573 | $100,000 | $0 | $298,573 | $298,573 |
| 2019 | $145,022 | $140,000 | $0 | $285,022 | $285,022 |
| 2018 | $141,910 | $115,000 | $0 | $256,910 | $256,910 |
| 2017 | $142,031 | $100,000 | $0 | $242,031 | $242,031 |
| 2016 | $143,763 | $65,000 | $0 | $208,763 | $208,763 |
| 2015 | $145,494 | $50,000 | $0 | $195,494 | $195,494 |
| 2014 | $147,227 | $50,000 | $0 | $197,227 | $197,227 |
| 2013 | $148,958 | $50,000 | $0 | $198,958 | $198,958 |
| 2012 | $134,459 | $61,533 | $0 | $195,992 | $195,992 |
| 2011 | $136,161 | $72,392 | $0 | $208,553 | $208,553 |
| 2010 | $140,854 | $72,392 | $0 | $213,246 | $213,246 |
| 2009 | $146,915 | $100,000 | $0 | $246,915 | $246,915 |
| 2008 | $148,638 | $100,000 | $0 | $248,638 | $248,638 |
| 2007 | $150,400 | $100,000 | $0 | $250,400 | $250,400 |
Deed and Sales History
| 1 | 01/31/2024 | PRD | Personal Representatives Deed | ESTATE OF RANDALL BRYAN WHITE | WERTZ, CHRISTINA MARIE | | | $0.00 | 59136 | 4569095 |
| 2 | 04/24/2018 | WD | Warranty Deed | SCHREIBER, TAMMY L | WHITE, RANDALL B | | | $250,000.00 | 33828 | 4443297 |
| 3 | 05/31/2011 | WD | Warranty Deed | NEWSHAM, GARY G | SCHREIBER, TAMMY L | | | $187,500.00 | 4614 | 4296261 |
| 4 | 10/04/2004 | DECREE | Divorce Decree/Legal Separation | NEWSHAM, GARY G | NEWSHAM, GARY G | | | $0.00 | 45119 | 4116853 |
| 5 | 11/01/1995 | WD | Warranty Deed | REUTER, ELAINE J | NEWSHAM, GARY G | | | $124,500.00 | 54210 | 95019402 |
| 6 | 05/01/1994 | OTHER | Other - Misc. Documents | REUTER, EUGENE G | REUTER, ELAINE J | | | $0.00 | 65876 | 0 |
| 7 | 04/01/1992 | WD | Warranty Deed | BODIN, ROBERT C | REUTER, EUGENE G | | | $98,500.00 | 21494 | 92007211 |
| 8 | 02/01/1992 | OTHER | Other - Misc. Documents | BODIN, ROBERT C | BODIN, ROBERT C | | | $0.00 | 64675 | 92000997 |
| 9 | 12/01/1991 | WD | Warranty Deed | DUNN, WALLACE T | BODIN, ROBERT C | | | $9,000.00 | 14365 | 91019038 |
| 10 | 01/01/1900 | OTHER | Other - Misc. Documents | Unknown | DUNN, WALLACE T | | | $2,750.00 | 0 | 0 |
Payout Agreement
| No payout information available.. |