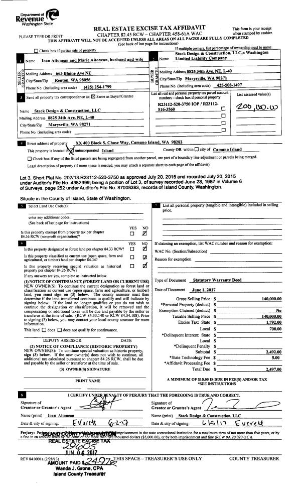
Property
Account |
| Property ID: | 176561 | Abbreviated Legal Description: | ADMIRALS COVE 6 LOT 30 |
| Geographic ID: | S6010-06-00030-0 | Agent Code: | |
| Type: | Real | | |
| Tax Area: | 390 - APPRAISER-Cpvl Schl Dist, Special Dist, improved & less than 1 acre | Land Use Code | 11 |
| Open Space: | N | DFL | N |
| Historic Property: | N | Remodel Property: | N |
| Multi-Family Redevelopment: | N | | |
| Township: | | Section: | |
| Range: | |
Location |
| Address: | 1134 DEWEY DR COUPEVILLE, WA 98239 | Mapsco: | |
| Neighborhood: | Cycle 2 | Map ID: | 59 |
| Neighborhood CD: | 2 |
Owner |
| Name: | WERTZ, CHRISTINA M | Owner ID: | 286059 |
| Mailing Address: | 1134 DEWEY DR COUPEVILLE, WA 98239 | % Ownership: | 100.0000000000% |
| | | Exemptions: | |
Taxes and Assessment Details
Values
| (+) Improvement Homesite Value: | + | $0 | |
| (+) Improvement Non-Homesite Value: | + | $196,228 | |
| (+) Land Homesite Value: | + | $0 | |
| (+) Land Non-Homesite Value: | + | $185,000 | |
| (+) Curr Use (HS): | + | $0 | $0 |
| (+) Curr Use (NHS): | + | $0 | $0 |
| | | -------------------------- | |
| (=) Market Value: | = | $381,228 | |
| (–) Productivity Loss: | – | $0 | |
| | | -------------------------- | |
| (=) Subtotal: | = | $381,228 | |
| (+) Senior Appraised Value: | + | $0 | |
| (+) Non-Senior Appraised Value: | + | $381,228 | |
| | | -------------------------- | |
| (=) Total Appraised Value: | = | $381,228 | |
| (–) Senior Exemption Loss: | – | $0 | |
| (–) Exemption Loss: | – | $0 | |
| | | -------------------------- | |
| (=) Taxable Value: | = | $381,228 | |
Taxing Jurisdiction
| Owner: | WERTZ, CHRISTINA M | | |
| % Ownership: | 100.0000000000% | | |
| Total Value: | $381,228 | | |
| Tax Area: | 390 - APPRAISER-Cpvl Schl Dist, Special Dist, improved & less than 1 acre |
| CF | Conservation Futures | 0.0316035091 | $381,228 | $381,228 | $12.05 | | |
| CEM2 | Cemetery #2 | 0.0095056933 | $381,228 | $381,228 | $3.62 | | |
| FIRE5 | Fire & Rescue Dist #5 C Whidbey GEN | 1.2008080668 | $381,228 | $381,228 | $457.78 | | |
| FIRE5BOND | Fire & Rescue Dist #5 C Whidbey BOND | 0.1400090713 | $381,228 | $381,228 | $53.38 | | |
| HOBOND | Hospital BOND | 0.1910887512 | $381,228 | $381,228 | $72.85 | | |
| HOGEN | Hospital GEN | 0.3902502903 | $381,228 | $381,228 | $148.77 | | |
| CE | County Current Expense | 0.3708482477 | $381,228 | $381,228 | $141.38 | | |
| CR | County Roads | 0.4584763726 | $381,228 | $381,228 | $174.78 | | |
| ISLANDEMS | Hospital GEN (EMS) | 0.5000000000 | $381,228 | $381,228 | $190.61 | | |
| LIB | Library Sno-Isle GEN | 0.3153421757 | $381,228 | $381,228 | $120.22 | | |
| LIBCAP | Library Sno-Isle BOND (Cap Fac Imp Area) | 0.0543427938 | $381,228 | $381,228 | $20.72 | | |
| POCOUP | Port of Coupeville GEN | 0.1093371703 | $381,228 | $381,228 | $41.68 | | |
| POCOUPIDD | Port of Coupeville IDD | 0.3409740022 | $381,228 | $381,228 | $129.99 | | |
| COUPSDTECH | School 204 CP (TECH) | 0.7545480007 | $381,228 | $381,228 | $287.65 | | |
| SCH204MO | School 204 Enrichment | 0.6716186034 | $381,228 | $381,228 | $256.04 | | |
| ST | State School | 1.3035497053 | $381,228 | $381,228 | $496.95 | | |
| ST2 | State School Part 2 | 0.8169543533 | $381,228 | $381,228 | $311.45 | | |
| | Total Tax Rate: | 7.6592568070 | | | | | |
| | | | | Taxes w/Current Exemptions: | $2,919.92 | | |
| | | | | Taxes w/o Exemptions: | $2,919.92 | | |
Improvement / Building
| Improvement #1: | RESIDENTIAL | State Code: | Y | 1056.0 sqft | Value: | $196,228 |
| Bathrooms: | 1 | Bedrooms: | 3 | | Ceiling: | DRYWALL PAINTED | Cooling: | HEAT PUMP/CONV/V | | Exterior Wall/Cover: | CEMENT FIBER | Floor Covering: | CARPET/VINYL 60-40 | | Floor Structure: | WOOD W/SUBFLOOR | Foundation: | CONCRETE | | Interior Finish: | DRYWALL PAINT | Plumbing Fixture Cnt: | 6 | | Roof Slope: | 5" IN 12" | Roof Structure/Cover: | CJ ASPHALT |
|
Sketch
Property Image
Land
| 1 | 13 | SQ (06001-08000) | 0.2022 | 8807.83 | 0.00 | 0.00 | 1.00 | $185,000 | $0 |
Roll Value History
| 2026 | N/A | N/A | N/A | N/A | N/A |
| 2025 | $196,228 | $185,000 | $0 | $381,228 | $381,228 |
| 2024 | $193,088 | $175,000 | $0 | $368,088 | $368,088 |
| 2023 | $194,658 | $175,000 | $0 | $369,658 | $369,658 |
| 2022 | $177,685 | $160,000 | $0 | $337,685 | $337,685 |
| 2021 | $155,745 | $125,000 | $0 | $280,745 | $280,745 |
| 2020 | $151,187 | $100,000 | $0 | $251,187 | $251,187 |
| 2019 | $109,915 | $140,000 | $0 | $249,915 | $249,915 |
| 2018 | $110,195 | $115,000 | $0 | $225,195 | $225,195 |
| 2017 | $60,456 | $30,000 | $0 | $90,456 | $90,456 |
| 2016 | $0 | $30,000 | $0 | $30,000 | $30,000 |
| 2015 | $0 | $30,000 | $0 | $30,000 | $30,000 |
| 2014 | $0 | $30,000 | $0 | $30,000 | $30,000 |
| 2013 | $0 | $30,000 | $0 | $30,000 | $30,000 |
| 2012 | $0 | $29,407 | $0 | $29,407 | $29,407 |
| 2011 | $0 | $29,407 | $0 | $29,407 | $29,407 |
| 2010 | $0 | $29,407 | $0 | $29,407 | $29,407 |
| 2009 | $0 | $45,000 | $0 | $45,000 | $45,000 |
| 2008 | $0 | $25,000 | $0 | $25,000 | $25,000 |
| 2007 | $0 | $35,000 | $0 | $35,000 | $35,000 |
Deed and Sales History
| 1 | 05/01/2018 | QCD | Quit Claim Deed | WERTZ, ARDUS R | WERTZ, CHRISTINA M | | | $0.00 | 34097 | 4448256 |
| 2 | 06/16/2016 | WD | Warranty Deed | SCHREIBER, JOHN | WERTZ, ARDUS R | | | $29,000.00 | 24920 | 4401824 |
| 3 | 08/20/2015 | WD | Warranty Deed | PEDERSON, MARY M | SCHREIBER, JOHN | | | $24,000.00 | 21397 | 4386144 |
| 4 | 03/27/2012 | QCD | Quit Claim Deed | GORDON, ROBERTA WALSH | PEDERSON, MARY M | | | $0.00 | 7660 | 4315384 |
| 5 | 10/31/2012 | TOD | Transfer On Death Deed | GORDON, JOHN F | GORDON, ROBERTA WALSH | | | | 82530 | |
| 6 | 01/01/1900 | OTHER | Other - Misc. Documents | Unknown | GORDON, JOHN F | | | $3,950.00 | 0 | 0 |
Payout Agreement
| No payout information available.. |