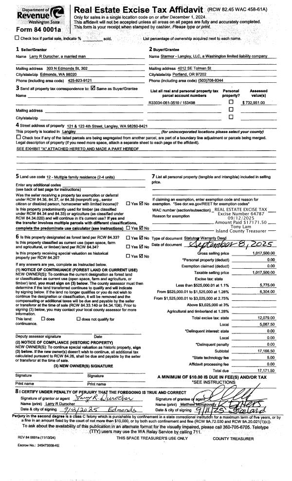
Property
Account |
| Property ID: | 176605 | Abbreviated Legal Description: | ADMIRALS COVE 6 LOT 34 |
| Geographic ID: | S6010-06-00034-0 | Agent Code: | |
| Type: | Real | | |
| Tax Area: | 390 - APPRAISER-Cpvl Schl Dist, Special Dist, improved & less than 1 acre | Land Use Code | 11 |
| Open Space: | N | DFL | N |
| Historic Property: | N | Remodel Property: | N |
| Multi-Family Redevelopment: | N | | |
| Township: | | Section: | |
| Range: | |
Location |
| Address: | 1115 CHADWICK CT COUPEVILLE, WA 98239 | Mapsco: | |
| Neighborhood: | Cycle 2 | Map ID: | 59 |
| Neighborhood CD: | 2 |
Owner |
| Name: | MEEK, JAMES A | Owner ID: | 266364 |
| Mailing Address: | AUDREY I MEEK 1115 CHADWICK COURT COUPEVILLE, WA 98239 | % Ownership: | 100.0000000000% |
| | | Exemptions: | |
Taxes and Assessment Details
Values
| (+) Improvement Homesite Value: | + | $0 | |
| (+) Improvement Non-Homesite Value: | + | $292,232 | |
| (+) Land Homesite Value: | + | $0 | |
| (+) Land Non-Homesite Value: | + | $185,000 | |
| (+) Curr Use (HS): | + | $0 | $0 |
| (+) Curr Use (NHS): | + | $0 | $0 |
| | | -------------------------- | |
| (=) Market Value: | = | $477,232 | |
| (–) Productivity Loss: | – | $0 | |
| | | -------------------------- | |
| (=) Subtotal: | = | $477,232 | |
| (+) Senior Appraised Value: | + | $0 | |
| (+) Non-Senior Appraised Value: | + | $477,232 | |
| | | -------------------------- | |
| (=) Total Appraised Value: | = | $477,232 | |
| (–) Senior Exemption Loss: | – | $0 | |
| (–) Exemption Loss: | – | $0 | |
| | | -------------------------- | |
| (=) Taxable Value: | = | $477,232 | |
Taxing Jurisdiction
| Owner: | MEEK, JAMES A | | |
| % Ownership: | 100.0000000000% | | |
| Total Value: | $477,232 | | |
| Tax Area: | 390 - APPRAISER-Cpvl Schl Dist, Special Dist, improved & less than 1 acre |
| CF | Conservation Futures | 0.0316035091 | $477,232 | $477,232 | $15.08 | | |
| CEM2 | Cemetery #2 | 0.0095056933 | $477,232 | $477,232 | $4.54 | | |
| FIRE5 | Fire & Rescue Dist #5 C Whidbey GEN | 1.2008080668 | $477,232 | $477,232 | $573.06 | | |
| FIRE5BOND | Fire & Rescue Dist #5 C Whidbey BOND | 0.1400090713 | $477,232 | $477,232 | $66.82 | | |
| HOBOND | Hospital BOND | 0.1910887512 | $477,232 | $477,232 | $91.19 | | |
| HOGEN | Hospital GEN | 0.3902502903 | $477,232 | $477,232 | $186.24 | | |
| CE | County Current Expense | 0.3708482477 | $477,232 | $477,232 | $176.98 | | |
| CR | County Roads | 0.4584763726 | $477,232 | $477,232 | $218.80 | | |
| ISLANDEMS | Hospital GEN (EMS) | 0.5000000000 | $477,232 | $477,232 | $238.62 | | |
| LIB | Library Sno-Isle GEN | 0.3153421757 | $477,232 | $477,232 | $150.49 | | |
| LIBCAP | Library Sno-Isle BOND (Cap Fac Imp Area) | 0.0543427938 | $477,232 | $477,232 | $25.93 | | |
| POCOUP | Port of Coupeville GEN | 0.1093371703 | $477,232 | $477,232 | $52.18 | | |
| POCOUPIDD | Port of Coupeville IDD | 0.3409740022 | $477,232 | $477,232 | $162.72 | | |
| COUPSDTECH | School 204 CP (TECH) | 0.7545480007 | $477,232 | $477,232 | $360.09 | | |
| SCH204MO | School 204 Enrichment | 0.6716186034 | $477,232 | $477,232 | $320.52 | | |
| ST | State School | 1.3035497053 | $477,232 | $477,232 | $622.10 | | |
| ST2 | State School Part 2 | 0.8169543533 | $477,232 | $477,232 | $389.88 | | |
| | Total Tax Rate: | 7.6592568070 | | | | | |
| | | | | Taxes w/Current Exemptions: | $3,655.24 | | |
| | | | | Taxes w/o Exemptions: | $3,655.24 | | |
Improvement / Building
| Improvement #1: | RESIDENTIAL | State Code: | Y | 1530.0 sqft | Value: | $292,232 |
| Bathrooms: | 2.5 | Bedrooms: | 2 | | Ceiling: | DRYWALL PAINTED | Exterior Wall/Cover: | PLY/HARDBOARD T-111 | | Floor Covering: | CARPET/VINYL 80-20 | Floor Structure: | WOOD W/SUBFLOOR | | Foundation: | CONCRETE | Heating: | FHA GAS | | Interior Finish: | DRYWALL PAINT | Plumbing Fixture Cnt: | 12 | | Roof Slope: | 8" IN 12" | Roof Structure/Cover: | CJ ASPHALT |
|
| | Type | Description | Class CD | Sub Class CD | Year Built | Area |
| | BAS | BASE/MAIN FLOOR | 3 | 0 | 2004 | 762.0 |
| | AGR | ATTACHED GARAGE | 3 | 0 | 2004 | 456.0 |
| | UPS | UPPER STORY | 3 | 0 | 2004 | 768.0 |
| | OWP | OPEN WOOD PORCH W/STEPS | 3 | 0 | 2004 | 309.5 |
| | OWR | OPEN WOOD PORCH W/STEPS/ROOF | 3 | 0 | 2004 | 120.0 |
Sketch
Property Image
Land
| 1 | 14 | SQ (08001-12000) | 0.2030 | 8842.68 | 0.00 | 0.00 | 1.00 | $185,000 | $0 |
Roll Value History
| 2026 | N/A | N/A | N/A | N/A | N/A |
| 2025 | $292,232 | $185,000 | $0 | $477,232 | $477,232 |
| 2024 | $288,804 | $175,000 | $0 | $463,804 | $463,804 |
| 2023 | $292,232 | $175,000 | $0 | $467,232 | $467,232 |
| 2022 | $267,734 | $160,000 | $0 | $427,734 | $427,734 |
| 2021 | $235,499 | $125,000 | $0 | $360,499 | $360,499 |
| 2020 | $228,829 | $100,000 | $0 | $328,829 | $328,829 |
| 2019 | $164,038 | $140,000 | $0 | $304,038 | $304,038 |
| 2018 | $163,964 | $140,000 | $0 | $303,964 | $303,964 |
| 2017 | $164,901 | $120,000 | $0 | $284,901 | $94,868 |
| 2016 | $166,775 | $75,000 | $0 | $241,775 | $94,868 |
| 2015 | $168,648 | $65,000 | $0 | $233,648 | $93,459 |
| 2014 | $170,522 | $65,000 | $0 | $235,522 | $94,209 |
| 2013 | $172,396 | $65,000 | $0 | $237,396 | $94,868 |
| 2012 | $163,029 | $61,533 | $0 | $224,562 | $89,825 |
| 2011 | $164,777 | $72,392 | $0 | $237,169 | $94,868 |
| 2010 | $170,713 | $72,392 | $0 | $243,105 | $243,105 |
| 2009 | $179,691 | $100,000 | $0 | $279,691 | $279,691 |
| 2008 | $180,038 | $100,000 | $0 | $280,038 | $280,038 |
| 2007 | $182,132 | $100,000 | $0 | $282,132 | $282,132 |
Deed and Sales History
| 1 | 06/27/2014 | WD | Warranty Deed | MCKEE, CHARLES F | MEEK, JAMES A | | | $217,500.00 | 15911 | 4361885 |
| 2 | 12/07/2011 | SPWARDEED | Special Warranty Deed | FEDERAL NATIONAL MORTGAGE ASSOCIATION | MCKEE, CHARLES F | | | $171,000.00 | 6346 | 4306086 |
| 3 | 04/05/2011 | TRUSTEED | Trustee's Deed | BOREN JTWROS, LEROY M | FEDERAL NATIONAL MORTGAGE ASSOCIATION | | | $229,958.00 | 4152 | 4293815 |
| 4 | 11/03/2004 | WD | Warranty Deed | RIMKUS, J S | BOREN JTWROS, LEROY M | | | $201,000.00 | 45286 | 4117683 |
| 5 | 01/01/1900 | OTHER | Other - Misc. Documents | ISLAND HERITAGE LLC, | RIMKUS, J S | | | $4,500.00 | 0 | 0 |
| 6 | 05/13/2004 | WD | Warranty Deed | Unknown | ISLAND HERITAGE LLC, | | | $20,000.00 | 42164 | 4101429 |
Payout Agreement
| No payout information available.. |