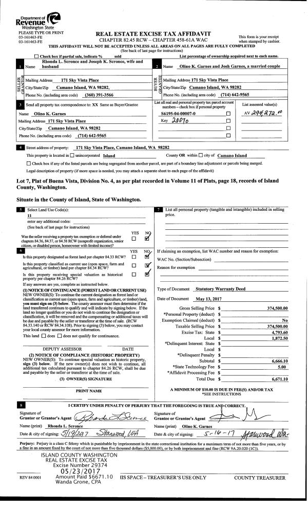
Property
Account |
| Property ID: | 176669 | Abbreviated Legal Description: | ADMIRALS COVE 6 LOT 40 |
| Geographic ID: | S6010-06-00040-0 | Agent Code: | |
| Type: | Real | | |
| Tax Area: | 390 - APPRAISER-Cpvl Schl Dist, Special Dist, improved & less than 1 acre | Land Use Code | 11 |
| Open Space: | N | DFL | N |
| Historic Property: | N | Remodel Property: | N |
| Multi-Family Redevelopment: | N | | |
| Township: | | Section: | |
| Range: | |
Location |
| Address: | 1114 CHADWICK CT COUPEVILLE, WA 98239 | Mapsco: | |
| Neighborhood: | Cycle 2 | Map ID: | 59 |
| Neighborhood CD: | 2 |
Owner |
| Name: | DRISCOLL, PATRICK R | Owner ID: | 279330 |
| Mailing Address: | DRISCOLL, LAURA Y 1114 CHADWICK COURT COUPEVILLE, WA 98239 | % Ownership: | 100.0000000000% |
| | | Exemptions: | |
Taxes and Assessment Details
Values
| (+) Improvement Homesite Value: | + | $0 | |
| (+) Improvement Non-Homesite Value: | + | $236,709 | |
| (+) Land Homesite Value: | + | $0 | |
| (+) Land Non-Homesite Value: | + | $185,000 | |
| (+) Curr Use (HS): | + | $0 | $0 |
| (+) Curr Use (NHS): | + | $0 | $0 |
| | | -------------------------- | |
| (=) Market Value: | = | $421,709 | |
| (–) Productivity Loss: | – | $0 | |
| | | -------------------------- | |
| (=) Subtotal: | = | $421,709 | |
| (+) Senior Appraised Value: | + | $0 | |
| (+) Non-Senior Appraised Value: | + | $421,709 | |
| | | -------------------------- | |
| (=) Total Appraised Value: | = | $421,709 | |
| (–) Senior Exemption Loss: | – | $0 | |
| (–) Exemption Loss: | – | $0 | |
| | | -------------------------- | |
| (=) Taxable Value: | = | $421,709 | |
Taxing Jurisdiction
| Owner: | DRISCOLL, PATRICK R | | |
| % Ownership: | 100.0000000000% | | |
| Total Value: | $421,709 | | |
| Tax Area: | 390 - APPRAISER-Cpvl Schl Dist, Special Dist, improved & less than 1 acre |
| CF | Conservation Futures | 0.0316035091 | $421,709 | $421,709 | $13.33 | | |
| CEM2 | Cemetery #2 | 0.0095056933 | $421,709 | $421,709 | $4.01 | | |
| FIRE5 | Fire & Rescue Dist #5 C Whidbey GEN | 1.2008080668 | $421,709 | $421,709 | $506.39 | | |
| FIRE5BOND | Fire & Rescue Dist #5 C Whidbey BOND | 0.1400090713 | $421,709 | $421,709 | $59.04 | | |
| HOBOND | Hospital BOND | 0.1910887512 | $421,709 | $421,709 | $80.58 | | |
| HOGEN | Hospital GEN | 0.3902502903 | $421,709 | $421,709 | $164.57 | | |
| CE | County Current Expense | 0.3708482477 | $421,709 | $421,709 | $156.39 | | |
| CR | County Roads | 0.4584763726 | $421,709 | $421,709 | $193.34 | | |
| ISLANDEMS | Hospital GEN (EMS) | 0.5000000000 | $421,709 | $421,709 | $210.85 | | |
| LIB | Library Sno-Isle GEN | 0.3153421757 | $421,709 | $421,709 | $132.98 | | |
| LIBCAP | Library Sno-Isle BOND (Cap Fac Imp Area) | 0.0543427938 | $421,709 | $421,709 | $22.92 | | |
| POCOUP | Port of Coupeville GEN | 0.1093371703 | $421,709 | $421,709 | $46.11 | | |
| POCOUPIDD | Port of Coupeville IDD | 0.3409740022 | $421,709 | $421,709 | $143.79 | | |
| COUPSDTECH | School 204 CP (TECH) | 0.7545480007 | $421,709 | $421,709 | $318.20 | | |
| SCH204MO | School 204 Enrichment | 0.6716186034 | $421,709 | $421,709 | $283.23 | | |
| ST | State School | 1.3035497053 | $421,709 | $421,709 | $549.72 | | |
| ST2 | State School Part 2 | 0.8169543533 | $421,709 | $421,709 | $344.52 | | |
| | Total Tax Rate: | 7.6592568070 | | | | | |
| | | | | Taxes w/Current Exemptions: | $3,229.97 | | |
| | | | | Taxes w/o Exemptions: | $3,229.97 | | |
Improvement / Building
| Improvement #1: | RESIDENTIAL | State Code: | Y | 1352.0 sqft | Value: | $236,709 |
| Bathrooms: | 2.5 | Bedrooms: | 3 | | Ceiling: | DRY WALL SPRAYED | Exterior Wall/Cover: | PLY/HARDBOARD T-111 | | Floor Covering: | CARPET/VINYL 80-20 | Floor Structure: | WOOD W/SUBFLOOR | | Foundation: | CONCRETE | Heating: | FHA GAS | | Interior Finish: | DRYWALL PAINT | Plumbing Fixture Cnt: | 13 | | Roof Slope: | 6" IN 12" | Roof Structure/Cover: | CJ ASPHALT |
|
| | Type | Description | Class CD | Sub Class CD | Year Built | Area |
| | BAS | BASE/MAIN FLOOR | 3 | 0 | 2000 | 676.0 |
| | AGR | ATTACHED GARAGE | 3 | 0 | 2000 | 322.0 |
| | UPS | UPPER STORY | 3 | 0 | 2000 | 676.0 |
| | OWP | OPEN WOOD PORCH W/STEPS | 3 | 0 | 2000 | 264.0 |
| | OWC | OPEN WOOD PORCH W/STEPS/ROOF/C | 3 | 0 | 2000 | 104.0 |
Sketch
Property Image
Land
| 1 | 13 | SQ (06001-08000) | 0.1886 | 8215.42 | 0.00 | 0.00 | 1.00 | $185,000 | $0 |
Roll Value History
| 2026 | N/A | N/A | N/A | N/A | N/A |
| 2025 | $236,709 | $185,000 | $0 | $421,709 | $421,709 |
| 2024 | $245,248 | $175,000 | $0 | $420,248 | $420,248 |
| 2023 | $248,303 | $175,000 | $0 | $423,303 | $423,303 |
| 2022 | $227,611 | $160,000 | $0 | $387,611 | $387,611 |
| 2021 | $200,322 | $125,000 | $0 | $325,322 | $325,322 |
| 2020 | $194,385 | $100,000 | $0 | $294,385 | $294,385 |
| 2019 | $136,666 | $140,000 | $0 | $276,666 | $276,666 |
| 2018 | $137,425 | $115,000 | $0 | $252,425 | $252,425 |
| 2017 | $138,229 | $100,000 | $0 | $238,229 | $238,229 |
| 2016 | $139,837 | $65,000 | $0 | $204,837 | $204,837 |
| 2015 | $141,444 | $50,000 | $0 | $191,444 | $191,444 |
| 2014 | $143,051 | $50,000 | $0 | $193,051 | $193,051 |
| 2013 | $144,658 | $50,000 | $0 | $194,658 | $50,849 |
| 2012 | $128,349 | $49,227 | $0 | $177,576 | $50,849 |
| 2011 | $129,799 | $57,914 | $0 | $187,713 | $50,849 |
| 2010 | $134,679 | $57,914 | $0 | $192,593 | $50,849 |
| 2009 | $141,012 | $79,319 | $0 | $220,331 | $50,848 |
| 2008 | $142,010 | $79,881 | $0 | $221,891 | $50,848 |
| 2007 | $142,079 | $79,920 | $0 | $221,999 | $50,848 |
Deed and Sales History
| 1 | 04/06/2017 | BARGSLD | Bargain And Sale Deed | FEDERAL NATIONAL MORTGAGE ASSOCIATION | DRISCOLL, PATRICK R | | | $234,000.00 | 28779 | 4420293 |
| 2 | 09/26/2016 | SHERIFFD | Sheriff Deed | SCHUEMANN, GEORGE S | FEDERAL NATIONAL MORTGAGE ASSOCIATION | | | $0.00 | 26443 | 4408785 |
| 3 | 04/25/2000 | WD | Warranty Deed | Unknown | SHUEMANN, GEORGE S | | | $133,500.00 | 1538 | 20007470 |
| 4 | 11/23/1998 | WD | Warranty Deed | RAINS, RANDALL J | EAST BAY CONSTRUCTION, | | | $20,000.00 | 84726 | 98025922 |
| 5 | 07/01/1993 | WD | Warranty Deed | SCHWALD, MAX E | RAINS, RANDALL J | | | $16,500.00 | 32603 | 93013450 |
| 6 | 06/01/1978 | OTHER | Other - Misc. Documents | SHUEMANN, GEORGE S | SCHWALD, MAX E | | | $6,500.00 | 82725 | 334416 |
Payout Agreement
| No payout information available.. |