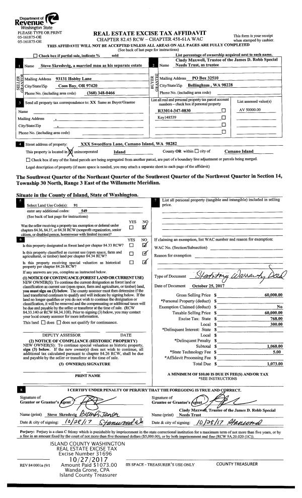
Property
Account |
| Property ID: | 176954 | Abbreviated Legal Description: | ADMIRALS COVE 6 LOT 69 |
| Geographic ID: | S6010-06-00069-0 | Agent Code: | |
| Type: | Real | | |
| Tax Area: | 390 - APPRAISER-Cpvl Schl Dist, Special Dist, improved & less than 1 acre | Land Use Code | 11 |
| Open Space: | N | DFL | N |
| Historic Property: | N | Remodel Property: | N |
| Multi-Family Redevelopment: | N | | |
| Township: | | Section: | |
| Range: | |
Location |
| Address: | 87 CHAMBERS CT COUPEVILLE, WA 98239 | Mapsco: | |
| Neighborhood: | Cycle 2 | Map ID: | 59 |
| Neighborhood CD: | 2 |
Owner |
| Name: | WIDDICOMBE, BRETT | Owner ID: | 307116 |
| Mailing Address: | 87 CHAMBERS CT COUPEVILLE, WA 98239 | % Ownership: | 100.0000000000% |
| | | Exemptions: | |
Taxes and Assessment Details
Values
| (+) Improvement Homesite Value: | + | $0 | |
| (+) Improvement Non-Homesite Value: | + | $452,500 | |
| (+) Land Homesite Value: | + | $0 | |
| (+) Land Non-Homesite Value: | + | $205,000 | |
| (+) Curr Use (HS): | + | $0 | $0 |
| (+) Curr Use (NHS): | + | $0 | $0 |
| | | -------------------------- | |
| (=) Market Value: | = | $657,500 | |
| (–) Productivity Loss: | – | $0 | |
| | | -------------------------- | |
| (=) Subtotal: | = | $657,500 | |
| (+) Senior Appraised Value: | + | $0 | |
| (+) Non-Senior Appraised Value: | + | $657,500 | |
| | | -------------------------- | |
| (=) Total Appraised Value: | = | $657,500 | |
| (–) Senior Exemption Loss: | – | $0 | |
| (–) Exemption Loss: | – | $0 | |
| | | -------------------------- | |
| (=) Taxable Value: | = | $657,500 | |
Taxing Jurisdiction
| Owner: | WIDDICOMBE, BRETT | | |
| % Ownership: | 100.0000000000% | | |
| Total Value: | $657,500 | | |
| Tax Area: | 390 - APPRAISER-Cpvl Schl Dist, Special Dist, improved & less than 1 acre |
| CF | Conservation Futures | 0.0316035091 | $657,500 | $657,500 | $20.78 | | |
| CEM2 | Cemetery #2 | 0.0095056933 | $657,500 | $657,500 | $6.25 | | |
| FIRE5 | Fire & Rescue Dist #5 C Whidbey GEN | 1.2008080668 | $657,500 | $657,500 | $789.53 | | |
| FIRE5BOND | Fire & Rescue Dist #5 C Whidbey BOND | 0.1400090713 | $657,500 | $657,500 | $92.06 | | |
| HOBOND | Hospital BOND | 0.1910887512 | $657,500 | $657,500 | $125.64 | | |
| HOGEN | Hospital GEN | 0.3902502903 | $657,500 | $657,500 | $256.59 | | |
| CE | County Current Expense | 0.3708482477 | $657,500 | $657,500 | $243.83 | | |
| CR | County Roads | 0.4584763726 | $657,500 | $657,500 | $301.45 | | |
| ISLANDEMS | Hospital GEN (EMS) | 0.5000000000 | $657,500 | $657,500 | $328.75 | | |
| LIB | Library Sno-Isle GEN | 0.3153421757 | $657,500 | $657,500 | $207.34 | | |
| LIBCAP | Library Sno-Isle BOND (Cap Fac Imp Area) | 0.0543427938 | $657,500 | $657,500 | $35.73 | | |
| POCOUP | Port of Coupeville GEN | 0.1093371703 | $657,500 | $657,500 | $71.89 | | |
| POCOUPIDD | Port of Coupeville IDD | 0.3409740022 | $657,500 | $657,500 | $224.19 | | |
| COUPSDTECH | School 204 CP (TECH) | 0.7545480007 | $657,500 | $657,500 | $496.12 | | |
| SCH204MO | School 204 Enrichment | 0.6716186034 | $657,500 | $657,500 | $441.59 | | |
| ST | State School | 1.3035497053 | $657,500 | $657,500 | $857.08 | | |
| ST2 | State School Part 2 | 0.8169543533 | $657,500 | $657,500 | $537.15 | | |
| | Total Tax Rate: | 7.6592568070 | | | | | |
| | | | | Taxes w/Current Exemptions: | $5,035.97 | | |
| | | | | Taxes w/o Exemptions: | $5,035.97 | | |
Improvement / Building
| Improvement #1: | RESIDENTIAL | State Code: | Y | 3202.0 sqft | Value: | $452,500 |
| Bathrooms: | 2.5 | Bedrooms: | 3 | | Ceiling: | TONGUE & GROOVE | Cooling: | HEAT PUMP/CONV/V | | Exterior Wall/Cover: | WOOD SIDING | Floor Covering: | CERAMIC TILE/CPT 40-60 | | Floor Structure: | WOOD W/SUBFLOOR | Foundation: | CONCRETE | | Interior Finish: | DRYWALL PAINT | Plumbing Fixture Cnt: | 13 | | Roof Slope: | 4" IN 12" | Roof Structure/Cover: | BEAM ASPHALT |
|
| | Type | Description | Class CD | Sub Class CD | Year Built | Area |
| | BAS | BASE/MAIN FLOOR | 4 | 0 | 1980 | 1522.0 |
| | DWN | DOWNSTAIRS LIVING AREA | 4 | 0 | 1980 | 1216.0 |
| | UPS | UPPER STORY | 4 | 0 | 1980 | 288.0 |
| | OWP | OPEN WOOD PORCH W/STEPS | 4 | 0 | 1980 | 126.0 |
| | OWP | OPEN WOOD PORCH W/STEPS | 4 | 0 | 1980 | 464.0 |
| | OWR | OPEN WOOD PORCH W/STEPS/ROOF | 4 | 0 | 1980 | 35.0 |
| | LOF | LOFT | 4 | 0 | 1980 | 176.0 |
Sketch
Property Image
Land
| 1 | 14 | SQ (08001-12000) | 0.1909 | 8315.60 | 0.00 | 0.00 | 1.00 | $205,000 | $0 |
Roll Value History
| 2026 | N/A | N/A | N/A | N/A | N/A |
| 2025 | $452,500 | $205,000 | $0 | $657,500 | $657,500 |
| 2024 | $465,937 | $195,000 | $0 | $660,937 | $660,937 |
| 2023 | $472,213 | $200,000 | $0 | $672,213 | $672,213 |
| 2022 | $433,278 | $190,000 | $0 | $623,278 | $623,278 |
| 2021 | $381,710 | $130,000 | $0 | $511,710 | $511,710 |
| 2020 | $372,879 | $110,000 | $0 | $482,879 | $482,879 |
| 2019 | $293,674 | $170,000 | $0 | $463,674 | $463,674 |
| 2018 | $280,507 | $140,000 | $0 | $420,507 | $420,507 |
| 2017 | $282,318 | $120,000 | $0 | $402,318 | $402,318 |
| 2016 | $285,936 | $75,000 | $0 | $360,936 | $360,936 |
| 2015 | $263,505 | $75,000 | $0 | $338,505 | $338,505 |
| 2014 | $266,800 | $75,000 | $0 | $341,800 | $341,800 |
| 2013 | $270,093 | $75,000 | $0 | $345,093 | $345,093 |
| 2012 | $163,022 | $73,840 | $0 | $236,862 | $236,862 |
| 2011 | $165,324 | $86,871 | $0 | $252,195 | $252,195 |
| 2010 | $178,876 | $86,871 | $0 | $265,747 | $265,747 |
| 2009 | $186,642 | $120,000 | $0 | $306,642 | $306,642 |
| 2008 | $196,027 | $120,000 | $0 | $316,027 | $316,027 |
| 2007 | $196,127 | $120,000 | $0 | $316,127 | $316,127 |
Deed and Sales History
| 1 | 06/03/2022 | WD | Warranty Deed | SAXAUER, HOWARD J | WIDDICOMBE, BRETT | | | $657,000.00 | 53399 | 4546439 |
| 2 | 12/13/2016 | SPLTDWARDE | Special Limited Warranty Deed | BANK OF NEW YORK MELLON TRUST COMPANY | SAXAUER, HOWARD J | | | $334,900.00 | 27771 | 4415365 |
| 3 | 01/06/2016 | TRUSTEED | Trustee's Deed | SIEMION, MICHAEL W | BANK OF NEW YORK MELLON TRUST COMPANY | | | $0.00 | 22784 | 4392293 |
| 4 | 10/01/1978 | OTHER | Other - Misc. Documents | Unknown | SIEMION, MICHAEL W | | | $7,800.00 | 85778 | 343650 |
Payout Agreement
| No payout information available.. |