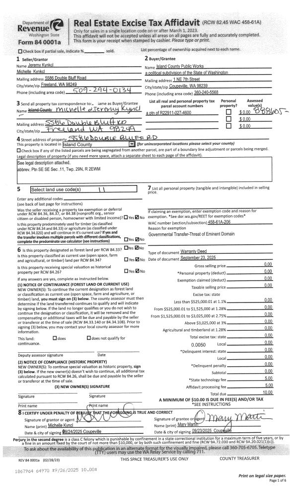
Property
Account |
| Property ID: | 177169 | Abbreviated Legal Description: | ADMIRALS COVE 6 LOT 91 EX SWLY 26' PLA 1-94 V13 PLATS P130 AF#95012340 |
| Geographic ID: | S6010-06-00091-0 | Agent Code: | |
| Type: | Real | | |
| Tax Area: | 390 - APPRAISER-Cpvl Schl Dist, Special Dist, improved & less than 1 acre | Land Use Code | 11 |
| Open Space: | N | DFL | N |
| Historic Property: | N | Remodel Property: | N |
| Multi-Family Redevelopment: | N | | |
| Township: | | Section: | |
| Range: | |
Location |
| Address: | 1198 LEAHY DR COUPEVILLE, WA 98239 | Mapsco: | |
| Neighborhood: | Cycle 2 | Map ID: | 59 |
| Neighborhood CD: | 2 |
Owner |
| Name: | LIGGITT, CHARLES EDDIE | Owner ID: | 299074 |
| Mailing Address: | HEIDI HEATHER HAMMER 1198 LEAHY DR COUPEVILLE, WA 98239 | % Ownership: | 100.0000000000% |
| | | Exemptions: | |
Taxes and Assessment Details
Values
| (+) Improvement Homesite Value: | + | $0 | |
| (+) Improvement Non-Homesite Value: | + | $553,732 | |
| (+) Land Homesite Value: | + | $0 | |
| (+) Land Non-Homesite Value: | + | $185,000 | |
| (+) Curr Use (HS): | + | $0 | $0 |
| (+) Curr Use (NHS): | + | $0 | $0 |
| | | -------------------------- | |
| (=) Market Value: | = | $738,732 | |
| (–) Productivity Loss: | – | $0 | |
| | | -------------------------- | |
| (=) Subtotal: | = | $738,732 | |
| (+) Senior Appraised Value: | + | $0 | |
| (+) Non-Senior Appraised Value: | + | $738,732 | |
| | | -------------------------- | |
| (=) Total Appraised Value: | = | $738,732 | |
| (–) Senior Exemption Loss: | – | $0 | |
| (–) Exemption Loss: | – | $0 | |
| | | -------------------------- | |
| (=) Taxable Value: | = | $738,732 | |
Taxing Jurisdiction
| Owner: | LIGGITT, CHARLES EDDIE | | |
| % Ownership: | 100.0000000000% | | |
| Total Value: | $738,732 | | |
| Tax Area: | 390 - APPRAISER-Cpvl Schl Dist, Special Dist, improved & less than 1 acre |
| CF | Conservation Futures | 0.0316035091 | $738,732 | $738,732 | $23.35 | | |
| CEM2 | Cemetery #2 | 0.0095056933 | $738,732 | $738,732 | $7.02 | | |
| FIRE5 | Fire & Rescue Dist #5 C Whidbey GEN | 1.2008080668 | $738,732 | $738,732 | $887.08 | | |
| FIRE5BOND | Fire & Rescue Dist #5 C Whidbey BOND | 0.1400090713 | $738,732 | $738,732 | $103.43 | | |
| HOBOND | Hospital BOND | 0.1910887512 | $738,732 | $738,732 | $141.16 | | |
| HOGEN | Hospital GEN | 0.3902502903 | $738,732 | $738,732 | $288.29 | | |
| CE | County Current Expense | 0.3708482477 | $738,732 | $738,732 | $273.96 | | |
| CR | County Roads | 0.4584763726 | $738,732 | $738,732 | $338.69 | | |
| ISLANDEMS | Hospital GEN (EMS) | 0.5000000000 | $738,732 | $738,732 | $369.37 | | |
| LIB | Library Sno-Isle GEN | 0.3153421757 | $738,732 | $738,732 | $232.95 | | |
| LIBCAP | Library Sno-Isle BOND (Cap Fac Imp Area) | 0.0543427938 | $738,732 | $738,732 | $40.14 | | |
| POCOUP | Port of Coupeville GEN | 0.1093371703 | $738,732 | $738,732 | $80.77 | | |
| POCOUPIDD | Port of Coupeville IDD | 0.3409740022 | $738,732 | $738,732 | $251.89 | | |
| COUPSDTECH | School 204 CP (TECH) | 0.7545480007 | $738,732 | $738,732 | $557.41 | | |
| SCH204MO | School 204 Enrichment | 0.6716186034 | $738,732 | $738,732 | $496.15 | | |
| ST | State School | 1.3035497053 | $738,732 | $738,732 | $962.97 | | |
| ST2 | State School Part 2 | 0.8169543533 | $738,732 | $738,732 | $603.51 | | |
| | Total Tax Rate: | 7.6592568070 | | | | | |
| | | | | Taxes w/Current Exemptions: | $5,658.14 | | |
| | | | | Taxes w/o Exemptions: | $5,658.14 | | |
Improvement / Building
| Improvement #1: | RESIDENTIAL | State Code: | Y | 2434.0 sqft | Value: | $553,732 |
| Bathrooms: | 2.5 | Bedrooms: | 3 | | Ceiling: | DRYWALL PAINTED | Cooling: | HEAT PUMP/CONV/V | | Exterior Wall/Cover: | CEMENT FIBER | Floor Covering: | HARDWOOD/CARP 80-20 | | Floor Structure: | WOOD W/SUBFLOOR | Foundation: | CONCRETE | | Interior Finish: | DRYWALL PAINT | Plumbing Fixture Cnt: | 14 | | Roof Slope: | 12" IN 12" | Roof Structure/Cover: | CJ ASPHALT |
|
| | Type | Description | Class CD | Sub Class CD | Year Built | Area |
| | BAS | BASE/MAIN FLOOR | 4 | 0 | 2004 | 1854.0 |
| | AGR | ATTACHED GARAGE | 4 | 0 | 2004 | 432.0 |
| | UPS | UPPER STORY | 4 | 0 | 2004 | 580.0 |
| | ENP | ENCLOSED PORCH | 4 | 0 | 2004 | 180.0 |
| | OWC | OPEN WOOD PORCH W/STEPS/ROOF/C | 4 | 0 | 2004 | 143.0 |
Sketch
Property Image
Land
| 1 | 15 | SQ (12001-21780) | 0.3434 | 14958.50 | 0.00 | 0.00 | 1.00 | $185,000 | $0 |
Roll Value History
| 2026 | N/A | N/A | N/A | N/A | N/A |
| 2025 | $553,732 | $185,000 | $0 | $738,732 | $738,732 |
| 2024 | $547,385 | $175,000 | $0 | $722,385 | $722,385 |
| 2023 | $553,732 | $175,000 | $0 | $728,732 | $728,732 |
| 2022 | $507,155 | $160,000 | $0 | $667,155 | $667,155 |
| 2021 | $445,989 | $125,000 | $0 | $570,989 | $570,989 |
| 2020 | $433,232 | $100,000 | $0 | $533,232 | $533,232 |
| 2019 | $322,669 | $140,000 | $0 | $462,669 | $462,669 |
| 2018 | $323,552 | $115,000 | $0 | $438,552 | $438,552 |
| 2017 | $325,320 | $100,000 | $0 | $425,320 | $425,320 |
| 2016 | $328,856 | $65,000 | $0 | $393,856 | $393,856 |
| 2015 | $289,166 | $65,000 | $0 | $354,166 | $354,166 |
| 2014 | $292,343 | $50,000 | $0 | $342,343 | $342,343 |
| 2013 | $295,520 | $50,000 | $0 | $345,520 | $345,520 |
| 2012 | $290,542 | $59,548 | $0 | $350,090 | $350,090 |
| 2011 | $293,712 | $70,057 | $0 | $363,769 | $363,769 |
| 2010 | $300,437 | $70,057 | $0 | $370,494 | $370,494 |
| 2009 | $313,687 | $90,000 | $0 | $403,687 | $403,687 |
| 2008 | $311,696 | $90,000 | $0 | $401,696 | $401,696 |
| 2007 | $315,174 | $90,000 | $0 | $405,174 | $405,174 |
Deed and Sales History
| 1 | 04/19/2021 | WD | Warranty Deed | POLLI, FREDERICK RICHARD | LIGGITT, CHARLES EDDIE | | | $565,000.00 | 47967 | 4517597 |
| 2 | 10/27/2020 | WD | Warranty Deed | BENNETT, DEWEY W | POLLI, FREDERICK RICHARD | | | $520,000.00 | 45483 | 4501009 |
| 3 | 08/10/2015 | WD | Warranty Deed | ASKINS, DANIEL A | BENNETT, DEWEY W | | | $360,000.00 | 20903 | 4384022 |
| 4 | 05/21/2014 | WD | Warranty Deed | WHEELER, RONALD L | ASKINS, DANIEL A | | | $377,500.00 | 15501 | 4360301 |
| 5 | 10/12/2000 | WD | Warranty Deed | PAGEAU, LEONARD A | WHEELER, RONALD L | | | $29,000.00 | 3991 | 20018326 |
| 6 | 08/01/1995 | OTHER | Other - Misc. Documents | PAGEAU, LEONARD A | PAGEAU, LEONARD A | | | $0.00 | 66615 | 95012340 |
| 7 | 01/01/1900 | OTHER | Other - Misc. Documents | Unknown | PAGEAU, LEONARD A | | | $8,500.00 | 0 | 0 |
Payout Agreement
| No payout information available.. |