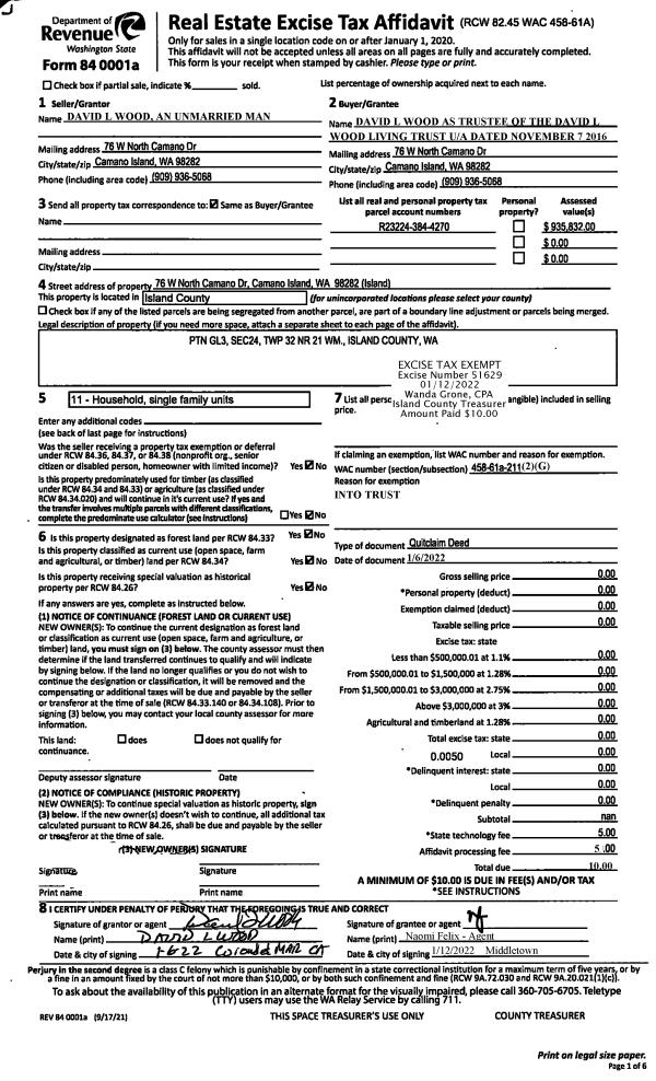
Property
Account |
| Property ID: | 177221 | Abbreviated Legal Description: | ADMIRALS COVE 6 LOTS 97 & 98 |
| Geographic ID: | S6010-06-00097-0 | Agent Code: | |
| Type: | Real | | |
| Tax Area: | 390 - APPRAISER-Cpvl Schl Dist, Special Dist, improved & less than 1 acre | Land Use Code | 11 |
| Open Space: | N | DFL | N |
| Historic Property: | N | Remodel Property: | N |
| Multi-Family Redevelopment: | N | | |
| Township: | | Section: | |
| Range: | |
Location |
| Address: | 1173 LEAHY DR COUPEVILLE, WA 98239 | Mapsco: | |
| Neighborhood: | Cycle 2 | Map ID: | 59 |
| Neighborhood CD: | 2 |
Owner |
| Name: | HINES, JANET M | Owner ID: | 301668 |
| Mailing Address: | 1173 LEAHY DR COUPEVILLE, WA 98239 | % Ownership: | 100.0000000000% |
| | | Exemptions: | SNR/DSBL |
Taxes and Assessment Details
Values
| (+) Improvement Homesite Value: | + | $336,763 | |
| (+) Improvement Non-Homesite Value: | + | $0 | |
| (+) Land Homesite Value: | + | $205,000 | |
| (+) Land Non-Homesite Value: | + | $0 | |
| (+) Curr Use (HS): | + | $0 | $0 |
| (+) Curr Use (NHS): | + | $0 | $0 |
| | | -------------------------- | |
| (=) Market Value: | = | $541,763 | |
| (–) Productivity Loss: | – | $0 | |
| | | -------------------------- | |
| (=) Subtotal: | = | $541,763 | |
| (+) Senior Appraised Value: | + | $395,194 | |
| (+) Non-Senior Appraised Value: | + | $0 | |
| | | -------------------------- | |
| (=) Total Appraised Value: | = | $395,194 | |
| (–) Senior Exemption Loss: | – | $237,116 | |
| (–) Exemption Loss: | – | $0 | |
| | | -------------------------- | |
| (=) Taxable Value: | = | $158,078 | |
Taxing Jurisdiction
| Owner: | HINES, JANET M | | |
| % Ownership: | 100.0000000000% | | |
| Total Value: | $541,763 | | |
| Tax Area: | 390 - APPRAISER-Cpvl Schl Dist, Special Dist, improved & less than 1 acre |
| CF | Conservation Futures | 0.0316035091 | $541,763 | $158,078 | $5.00 | | |
| CEM2 | Cemetery #2 | 0.0095056933 | $541,763 | $158,078 | $1.50 | | |
| FIRE5 | Fire & Rescue Dist #5 C Whidbey GEN | 1.2008080668 | $541,763 | $158,078 | $189.82 | | |
| FIRE5BOND | Fire & Rescue Dist #5 C Whidbey BOND | 0.0000000000 | $541,763 | $0 | $0.00 | | |
| HOBOND | Hospital BOND | 0.0000000000 | $541,763 | $0 | $0.00 | | |
| HOGEN | Hospital GEN | 0.3902502903 | $541,763 | $158,078 | $61.69 | | |
| CE | County Current Expense | 0.3708482477 | $541,763 | $158,078 | $58.62 | | |
| CR | County Roads | 0.4584763726 | $541,763 | $158,078 | $72.48 | | |
| ISLANDEMS | Hospital GEN (EMS) | 0.5000000000 | $541,763 | $158,078 | $79.04 | | |
| LIB | Library Sno-Isle GEN | 0.3153421757 | $541,763 | $158,078 | $49.85 | | |
| LIBCAP | Library Sno-Isle BOND (Cap Fac Imp Area) | 0.0000000000 | $541,763 | $0 | $0.00 | | |
| POCOUP | Port of Coupeville GEN | 0.1093371703 | $541,763 | $158,078 | $17.28 | | |
| POCOUPIDD | Port of Coupeville IDD | 0.3409740022 | $541,763 | $158,078 | $53.90 | | |
| COUPSDTECH | School 204 CP (TECH) | 0.0000000000 | $541,763 | $0 | $0.00 | | |
| SCH204MO | School 204 Enrichment | 0.0000000000 | $541,763 | $0 | $0.00 | | |
| ST | State School | 1.3035497053 | $541,763 | $158,078 | $206.06 | | |
| ST2 | State School Part 2 | 0.0000000000 | $541,763 | $0 | $0.00 | | |
| | Total Tax Rate: | 5.0306952333 | | | | | |
| | | | | Taxes w/Current Exemptions: | $795.24 | | |
| | | | | Taxes w/o Exemptions: | $4,149.49 | | |
Improvement / Building
| Improvement #1: | RESIDENTIAL | State Code: | Y | 2904.0 sqft | Value: | $336,763 |
| Bathrooms: | 2 | Bedrooms: | 2 | | Ceiling: | DRYWALL PAINTED | Exterior Wall/Cover: | WOOD SIDING | | Floor Covering: | HARDWOOD/CARP 80-20 | Floor Structure: | WOOD W/SUBFLOOR | | Foundation: | CONCRETE | Heating: | HEAT PUMP | | Interior Finish: | DRYWALL PAINT | Plumbing Fixture Cnt: | 9 | | Roof Slope: | 4" IN 12" | Roof Structure/Cover: | CJ ASPHALT |
|
| | Type | Description | Class CD | Sub Class CD | Year Built | Area |
| | BAS | BASE/MAIN FLOOR | 3 | 0 | 1978 | 1500.0 |
| | DWN | DOWNSTAIRS LIVING AREA | 3 | 0 | 1978 | 1404.0 |
| | OWP | OPEN WOOD PORCH W/STEPS | 3 | 0 | 1978 | 44.0 |
| | AGR | ATTACHED GARAGE | 3 | 0 | 1978 | 431.0 |
| | OWP | OPEN WOOD PORCH W/STEPS | 3 | 0 | 1978 | 526.0 |
Sketch
Property Image
Land
| 1 | 15 | SQ (12001-21780) | 0.3500 | 15246.00 | 0.00 | 0.00 | 1.00 | $205,000 | $0 |
Roll Value History
| 2026 | N/A | N/A | N/A | N/A | N/A |
| 2025 | $336,763 | $205,000 | $0 | $541,763 | $158,078 |
| 2024 | $328,160 | $195,000 | $0 | $523,160 | $156,405 |
| 2023 | $332,581 | $200,000 | $0 | $532,581 | $156,405 |
| 2022 | $305,158 | $190,000 | $0 | $495,158 | $156,405 |
| 2021 | $288,051 | $130,000 | $0 | $418,051 | $156,405 |
| 2020 | $281,012 | $110,000 | $0 | $391,012 | $156,405 |
| 2019 | $205,108 | $170,000 | $0 | $375,108 | $375,108 |
| 2018 | $184,830 | $140,000 | $0 | $324,830 | $324,830 |
| 2017 | $186,087 | $120,000 | $0 | $306,087 | $306,087 |
| 2016 | $188,602 | $75,000 | $0 | $263,602 | $263,602 |
| 2015 | $189,973 | $65,000 | $0 | $254,973 | $254,973 |
| 2014 | $192,473 | $65,000 | $0 | $257,473 | $257,473 |
| 2013 | $194,973 | $65,000 | $0 | $259,973 | $259,973 |
| 2012 | $170,485 | $66,165 | $0 | $236,650 | $236,650 |
| 2011 | $172,969 | $77,841 | $0 | $250,810 | $250,810 |
| 2010 | $186,378 | $77,841 | $0 | $264,219 | $264,219 |
| 2009 | $194,632 | $100,000 | $0 | $294,632 | $294,632 |
| 2008 | $197,215 | $100,000 | $0 | $297,215 | $297,215 |
| 2007 | $199,870 | $100,000 | $0 | $299,870 | $299,870 |
Deed and Sales History
| 1 | 10/01/2021 | PRD | Personal Representatives Deed | BETTINGER, THEODORE | HINES, JANET M | | | $0.00 | 50308 | 4530573 |
| 2 | 11/18/2014 | QCD | Quit Claim Deed | HINES, JANET M | BETTINGER, THEODORE | | | $0.00 | 18294 | 4372118 |
| 3 | 10/20/2014 | MARRCERT | DNU - Marriage Certificate | BETTINGER, JANET M | HINES, JANET M | | | | 84998 | |
| 4 | 01/23/2001 | WD | Warranty Deed | ANDERSON, JACK M | BETTINGER, JANET M | | | $139,900.00 | 10236 | 20024054 |
| 5 | 04/01/1997 | BLA | DNU - Boundary Line Adjustment | ANDERSON, JACK M | ANDERSON, JACK M | | | $0.00 | 67331 | 97002584 |
| 6 | 09/01/1968 | EXECUTORD | Executor Deed | Unknown | ANDERSON, JACK M | | | $4,500.00 | 32685 | 0 |
Payout Agreement
| No payout information available.. |