Property
Account |
| Property ID: | 177454 | Abbreviated Legal Description: | ADMIRALS COVE 6 LOT 120 |
| Geographic ID: | S6010-06-00120-0 | Agent Code: | |
| Type: | Real | | |
| Tax Area: | 390 - APPRAISER-Cpvl Schl Dist, Special Dist, improved & less than 1 acre | Land Use Code | 11 |
| Open Space: | N | DFL | N |
| Historic Property: | N | Remodel Property: | N |
| Multi-Family Redevelopment: | N | | |
| Township: | | Section: | |
| Range: | |
Location |
| Address: | 1174 LOCKWOOD DR COUPEVILLE, WA 98239 | Mapsco: | |
| Neighborhood: | Cycle 2 | Map ID: | 59 |
| Neighborhood CD: | 2 |
Owner |
| Name: | SEMBRANO, EDWARD ANTHONY | Owner ID: | 311181 |
| Mailing Address: | ASHLEYLAURA K SEMBRANO 1174 LOCKWOOD DR COUPEVILLE, WA 98239 | % Ownership: | 100.0000000000% |
| | | Exemptions: | |
Taxes and Assessment Details
Values
| (+) Improvement Homesite Value: | + | $0 | |
| (+) Improvement Non-Homesite Value: | + | $306,846 | |
| (+) Land Homesite Value: | + | $0 | |
| (+) Land Non-Homesite Value: | + | $185,000 | |
| (+) Curr Use (HS): | + | $0 | $0 |
| (+) Curr Use (NHS): | + | $0 | $0 |
| | | -------------------------- | |
| (=) Market Value: | = | $491,846 | |
| (–) Productivity Loss: | – | $0 | |
| | | -------------------------- | |
| (=) Subtotal: | = | $491,846 | |
| (+) Senior Appraised Value: | + | $0 | |
| (+) Non-Senior Appraised Value: | + | $491,846 | |
| | | -------------------------- | |
| (=) Total Appraised Value: | = | $491,846 | |
| (–) Senior Exemption Loss: | – | $0 | |
| (–) Exemption Loss: | – | $0 | |
| | | -------------------------- | |
| (=) Taxable Value: | = | $491,846 | |
Taxing Jurisdiction
| Owner: | SEMBRANO, EDWARD ANTHONY | | |
| % Ownership: | 100.0000000000% | | |
| Total Value: | $491,846 | | |
| Tax Area: | 390 - APPRAISER-Cpvl Schl Dist, Special Dist, improved & less than 1 acre |
| CF | Conservation Futures | 0.0316035091 | $491,846 | $491,846 | $15.54 | | |
| CEM2 | Cemetery #2 | 0.0095056933 | $491,846 | $491,846 | $4.68 | | |
| FIRE5 | Fire & Rescue Dist #5 C Whidbey GEN | 1.2008080668 | $491,846 | $491,846 | $590.61 | | |
| FIRE5BOND | Fire & Rescue Dist #5 C Whidbey BOND | 0.1400090713 | $491,846 | $491,846 | $68.86 | | |
| HOBOND | Hospital BOND | 0.1910887512 | $491,846 | $491,846 | $93.99 | | |
| HOGEN | Hospital GEN | 0.3902502903 | $491,846 | $491,846 | $191.94 | | |
| CE | County Current Expense | 0.3708482477 | $491,846 | $491,846 | $182.40 | | |
| CR | County Roads | 0.4584763726 | $491,846 | $491,846 | $225.50 | | |
| ISLANDEMS | Hospital GEN (EMS) | 0.5000000000 | $491,846 | $491,846 | $245.92 | | |
| LIB | Library Sno-Isle GEN | 0.3153421757 | $491,846 | $491,846 | $155.10 | | |
| LIBCAP | Library Sno-Isle BOND (Cap Fac Imp Area) | 0.0543427938 | $491,846 | $491,846 | $26.73 | | |
| POCOUP | Port of Coupeville GEN | 0.1093371703 | $491,846 | $491,846 | $53.78 | | |
| POCOUPIDD | Port of Coupeville IDD | 0.3409740022 | $491,846 | $491,846 | $167.71 | | |
| COUPSDTECH | School 204 CP (TECH) | 0.7545480007 | $491,846 | $491,846 | $371.12 | | |
| SCH204MO | School 204 Enrichment | 0.6716186034 | $491,846 | $491,846 | $330.33 | | |
| ST | State School | 1.3035497053 | $491,846 | $491,846 | $641.15 | | |
| ST2 | State School Part 2 | 0.8169543533 | $491,846 | $491,846 | $401.82 | | |
| | Total Tax Rate: | 7.6592568070 | | | | | |
| | | | | Taxes w/Current Exemptions: | $3,767.18 | | |
| | | | | Taxes w/o Exemptions: | $3,767.18 | | |
Improvement / Building
| Improvement #1: | RESIDENTIAL | State Code: | Y | 1260.0 sqft | Value: | $306,846 |
| Bathrooms: | 2.5 | Bedrooms: | 2 | | Ceiling: | DRYWALL PAINTED | Exterior Wall/Cover: | VINYL | | Floor Covering: | TILE CERAMIC | Floor Structure: | SLAB ON GRADE | | Foundation: | CONCRETE | Heating: | FHA GAS | | Interior Finish: | DRYWALL PAINT | Plumbing Fixture Cnt: | 12 | | Roof Slope: | 5" IN 12" | Roof Structure/Cover: | CJ ASPHALT |
|
| | Type | Description | Class CD | Sub Class CD | Year Built | Area |
| | BAS | BASE/MAIN FLOOR | 3 | 0 | 2012 | 1260.0 |
| | BIG | BUILT IN GARAGE | 3 | 0 | 2012 | 1200.0 |
| | OWP | OPEN WOOD PORCH W/STEPS | 3 | 0 | 2012 | 160.0 |
Sketch
| No sketches available for this property. |
Property Image
Land
| 1 | 14 | SQ (08001-12000) | 0.2193 | 9552.71 | 0.00 | 0.00 | 1.00 | $185,000 | $0 |
Roll Value History
| 2026 | N/A | N/A | N/A | N/A | N/A |
| 2025 | $306,846 | $185,000 | $0 | $491,846 | $491,846 |
| 2024 | $310,362 | $175,000 | $0 | $485,362 | $485,362 |
| 2023 | $313,879 | $175,000 | $0 | $488,879 | $488,879 |
| 2022 | $286,611 | $160,000 | $0 | $446,611 | $446,611 |
| 2021 | $251,438 | $125,000 | $0 | $376,438 | $376,438 |
| 2020 | $243,112 | $100,000 | $0 | $343,112 | $343,112 |
| 2019 | $172,306 | $140,000 | $0 | $312,306 | $312,306 |
| 2018 | $173,664 | $115,000 | $0 | $288,664 | $288,664 |
| 2017 | $174,594 | $100,000 | $0 | $274,594 | $274,594 |
| 2016 | $176,450 | $65,000 | $0 | $241,450 | $241,450 |
| 2015 | $178,308 | $65,000 | $0 | $243,308 | $243,308 |
| 2014 | $180,165 | $65,000 | $0 | $245,165 | $245,165 |
| 2013 | $182,023 | $65,000 | $0 | $247,023 | $247,023 |
| 2012 | $166,774 | $53,380 | $0 | $220,154 | $220,154 |
| 2011 | $0 | $29,407 | $0 | $29,407 | $29,407 |
| 2010 | $0 | $29,407 | $0 | $29,407 | $29,407 |
| 2009 | $0 | $37,000 | $0 | $37,000 | $37,000 |
| 2008 | $0 | $37,000 | $0 | $37,000 | $37,000 |
| 2007 | $0 | $35,000 | $0 | $35,000 | $35,000 |
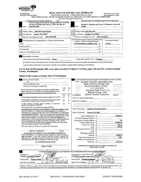
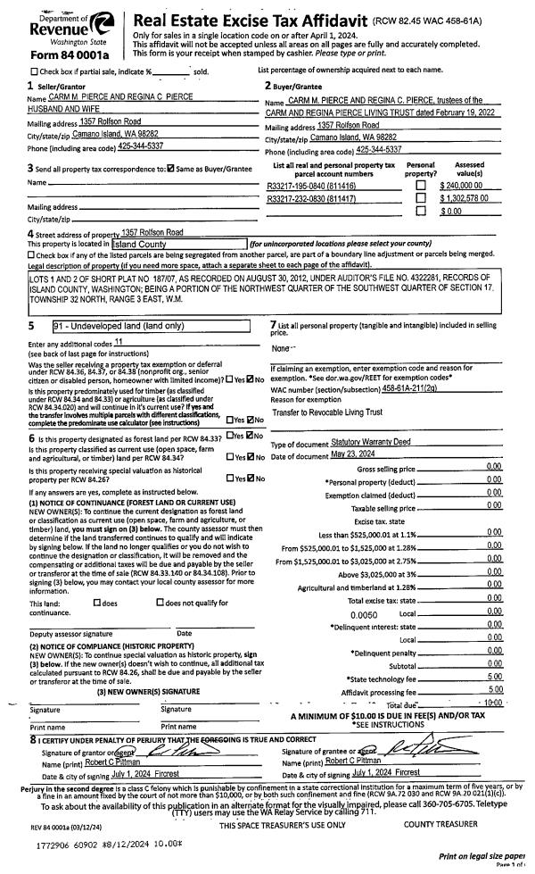
Deed and Sales History
| 1 | 01/08/2024 | WD | Warranty Deed | MELSHEIMER TRUSTEE, ROBERT F | SEMBRANO, EDWARD ANTHONY | | | $442,000.00 | 58987 | 4568497 |
| 2 | 02/09/2012 | QCD | Quit Claim Deed | MELSHEIMER, ROBERT FRITZ | MELSHEIMER TRUSTEE, ROBERT F | | | $0.00 | 6907 | 4310171 |
| 3 | 09/26/2011 | QCD | Quit Claim Deed | BELL JTWROS, JOHN S | MELSHEIMER, ROBERT FRITZ | | | $30,000.00 | 5671 | 4301996 |
| 4 | 01/08/2005 | QCD | Quit Claim Deed | KOSKY, ROSEMARIE & | BELL, JOHN S | | | $0.00 | 50413 | 4124591 |
| 5 | 10/01/1996 | QCD | Quit Claim Deed | BELL, JOHN S | KOSKY, ROSEMARIE & | | | $0.00 | 63787 | 96018347 |
| 6 | 07/01/1993 | WD | Warranty Deed | WOOD, WILBOUR G | BELL, JOHN S | | | $23,000.00 | 32837 | 93014586 |
| 7 | 06/01/1991 | WD | Warranty Deed | WOOD, WILBOUR G | WOOD, WILBOUR G | | | $0.00 | 12112 | 91008940 |
| 8 | 07/01/1990 | WD | Warranty Deed | ZION, GEORGE A | WOOD, WILBOUR G | | | $10,000.00 | 4187 | 90013729 |
| 9 | 01/01/1900 | OTHER | Other - Misc. Documents | Unknown | ZION, GEORGE A | | | $4,750.00 | 0 | 0 |
Payout Agreement
| No payout information available.. |