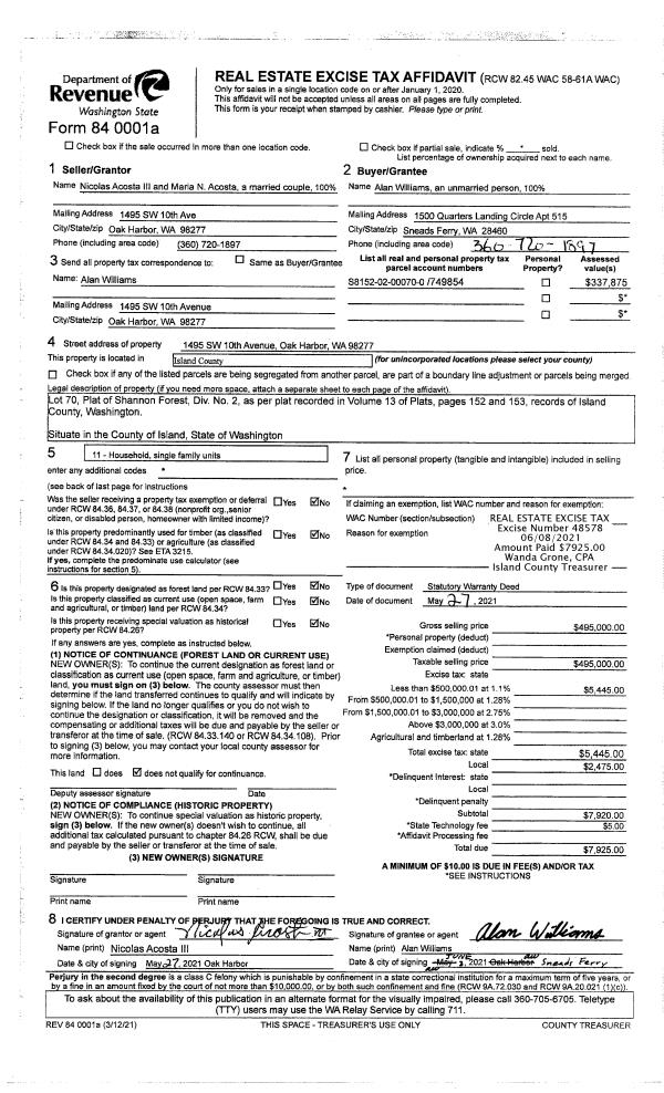
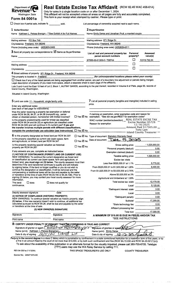
Property
Account |
| Property ID: | 177873 | Abbreviated Legal Description: | ADMIRALS COVE 7 LOT 15 |
| Geographic ID: | S6010-07-00015-0 | Agent Code: | |
| Type: | Real | | |
| Tax Area: | 390 - APPRAISER-Cpvl Schl Dist, Special Dist, improved & less than 1 acre | Land Use Code | 11 |
| Open Space: | N | DFL | N |
| Historic Property: | N | Remodel Property: | N |
| Multi-Family Redevelopment: | N | | |
| Township: | | Section: | |
| Range: | |
Location |
| Address: | 1264 MITSCHER DR COUPEVILLE, WA 98239 | Mapsco: | |
| Neighborhood: | Cycle 2 | Map ID: | 495 |
| Neighborhood CD: | 2 |
Owner |
| Name: | DEVINE, CAMRYN CHRISTINA | Owner ID: | 314180 |
| Mailing Address: | MAXWELL ANTHONY DEVINE 1921 83RD DR NE LAKE STEVENS, WA 98258 | % Ownership: | 100.0000000000% |
| | | Exemptions: | |
Taxes and Assessment Details
Values
| (+) Improvement Homesite Value: | + | $0 | |
| (+) Improvement Non-Homesite Value: | + | $275,208 | |
| (+) Land Homesite Value: | + | $0 | |
| (+) Land Non-Homesite Value: | + | $185,000 | |
| (+) Curr Use (HS): | + | $0 | $0 |
| (+) Curr Use (NHS): | + | $0 | $0 |
| | | -------------------------- | |
| (=) Market Value: | = | $460,208 | |
| (–) Productivity Loss: | – | $0 | |
| | | -------------------------- | |
| (=) Subtotal: | = | $460,208 | |
| (+) Senior Appraised Value: | + | $0 | |
| (+) Non-Senior Appraised Value: | + | $460,208 | |
| | | -------------------------- | |
| (=) Total Appraised Value: | = | $460,208 | |
| (–) Senior Exemption Loss: | – | $0 | |
| (–) Exemption Loss: | – | $0 | |
| | | -------------------------- | |
| (=) Taxable Value: | = | $460,208 | |
Taxing Jurisdiction
| Owner: | DEVINE, CAMRYN CHRISTINA | | |
| % Ownership: | 100.0000000000% | | |
| Total Value: | $460,208 | | |
| Tax Area: | 390 - APPRAISER-Cpvl Schl Dist, Special Dist, improved & less than 1 acre |
| CF | Conservation Futures | 0.0316035091 | $460,208 | $460,208 | $14.54 | | |
| CEM2 | Cemetery #2 | 0.0095056933 | $460,208 | $460,208 | $4.37 | | |
| FIRE5 | Fire & Rescue Dist #5 C Whidbey GEN | 1.2008080668 | $460,208 | $460,208 | $552.62 | | |
| FIRE5BOND | Fire & Rescue Dist #5 C Whidbey BOND | 0.1400090713 | $460,208 | $460,208 | $64.43 | | |
| HOBOND | Hospital BOND | 0.1910887512 | $460,208 | $460,208 | $87.94 | | |
| HOGEN | Hospital GEN | 0.3902502903 | $460,208 | $460,208 | $179.60 | | |
| CE | County Current Expense | 0.3708482477 | $460,208 | $460,208 | $170.67 | | |
| CR | County Roads | 0.4584763726 | $460,208 | $460,208 | $210.99 | | |
| ISLANDEMS | Hospital GEN (EMS) | 0.5000000000 | $460,208 | $460,208 | $230.10 | | |
| LIB | Library Sno-Isle GEN | 0.3153421757 | $460,208 | $460,208 | $145.12 | | |
| LIBCAP | Library Sno-Isle BOND (Cap Fac Imp Area) | 0.0543427938 | $460,208 | $460,208 | $25.01 | | |
| POCOUP | Port of Coupeville GEN | 0.1093371703 | $460,208 | $460,208 | $50.32 | | |
| POCOUPIDD | Port of Coupeville IDD | 0.3409740022 | $460,208 | $460,208 | $156.92 | | |
| COUPSDTECH | School 204 CP (TECH) | 0.7545480007 | $460,208 | $460,208 | $347.25 | | |
| SCH204MO | School 204 Enrichment | 0.6716186034 | $460,208 | $460,208 | $309.08 | | |
| ST | State School | 1.3035497053 | $460,208 | $460,208 | $599.90 | | |
| ST2 | State School Part 2 | 0.8169543533 | $460,208 | $460,208 | $375.97 | | |
| | Total Tax Rate: | 7.6592568070 | | | | | |
| | | | | Taxes w/Current Exemptions: | $3,524.83 | | |
| | | | | Taxes w/o Exemptions: | $3,524.83 | | |
Improvement / Building
| Improvement #1: | RESIDENTIAL | State Code: | Y | 1393.0 sqft | Value: | $275,208 |
| Bathrooms: | 2 | Bedrooms: | 3 | | Ceiling: | DRYWALL PAINTED | Exterior Wall/Cover: | VINYL | | Floor Covering: | CERAMIC TILE/CPT 40-60 | Floor Structure: | SLAB ON GRADE | | Foundation: | CONCRETE | Heating: | FHA GAS | | Interior Finish: | DRYWALL PAINT | Plumbing Fixture Cnt: | 10 | | Roof Slope: | 6" IN 12" | Roof Structure/Cover: | CJ ASPHALT |
|
| | Type | Description | Class CD | Sub Class CD | Year Built | Area |
| | BAS | BASE/MAIN FLOOR | 3 | 0 | 2009 | 1393.0 |
| | OP3 | OPEN PORCH W/ROOF | 3 | 0 | 2009 | 73.0 |
| | AGR | ATTACHED GARAGE | 3 | 0 | 2009 | 380.0 |
Sketch
Property Image
Land
| 1 | 13 | SQ (06001-08000) | 0.1743 | 7592.51 | 0.00 | 0.00 | 1.00 | $185,000 | $0 |
Roll Value History
| 2026 | N/A | N/A | N/A | N/A | N/A |
| 2025 | $275,208 | $185,000 | $0 | $460,208 | $460,208 |
| 2024 | $262,873 | $175,000 | $0 | $437,873 | $437,873 |
| 2023 | $265,957 | $175,000 | $0 | $440,957 | $440,957 |
| 2022 | $243,619 | $160,000 | $0 | $403,619 | $403,619 |
| 2021 | $214,269 | $125,000 | $0 | $339,269 | $339,269 |
| 2020 | $208,346 | $100,000 | $0 | $308,346 | $308,346 |
| 2019 | $149,445 | $140,000 | $0 | $289,445 | $289,445 |
| 2018 | $147,691 | $115,000 | $0 | $262,691 | $86,056 |
| 2017 | $148,507 | $100,000 | $0 | $248,507 | $86,056 |
| 2016 | $150,140 | $65,000 | $0 | $215,140 | $86,056 |
| 2015 | $151,772 | $50,000 | $0 | $201,772 | $201,772 |
| 2014 | $153,404 | $50,000 | $0 | $203,404 | $203,404 |
| 2013 | $155,034 | $50,000 | $0 | $205,034 | $205,034 |
| 2012 | $161,832 | $42,500 | $0 | $204,332 | $204,332 |
| 2011 | $163,518 | $50,000 | $0 | $213,518 | $213,518 |
| 2010 | $163,973 | $21,623 | $0 | $185,596 | $185,596 |
| 2009 | $0 | $45,000 | $0 | $45,000 | $45,000 |
| 2008 | $0 | $25,000 | $0 | $25,000 | $25,000 |
| 2007 | $0 | $30,000 | $0 | $30,000 | $30,000 |
Deed and Sales History
| 1 | 10/04/2024 | WD | Warranty Deed | ALVARADO, SASUKE ABEL | DEVINE, CAMRYN CHRISTINA | | | $485,000.00 | 61533 | 4578108 |
| 2 | 03/23/2021 | WD | Warranty Deed | SCELZI, FRANK | ALVARADO, SASUKE ABEL | | | $385,000.00 | 47684 | 4515928 |
| 3 | 01/29/2021 | WD | Warranty Deed | JOSLIN, JULIE ANN | SCELZI, FRANK | | | $230,000.00 | 46773 | 4509648 |
| 4 | 05/27/2010 | WD | Warranty Deed | OMEGA HOME CONSTRUCTION LLC, | JOSLIN, JULIE ANN | | | $239,000.00 | 1367 | 4275010 |
| 5 | 11/18/2009 | WD | Warranty Deed | MCDONALD, DARLA M | OMEGA HOME CONSTRUCTION LLC, | | | $25,000.00 | 92886 | 4264232 |
| 6 | 11/01/1983 | QCD | Quit Claim Deed | MCDONALD, KEITH I | MCDONALD, DARLA M | | | $0.00 | 33475 | 417991 |
| 7 | 01/01/1900 | OTHER | Other - Misc. Documents | Unknown | MCDONALD, KEITH I | | | $3,049.00 | 0 | 0 |
Payout Agreement
| No payout information available.. |