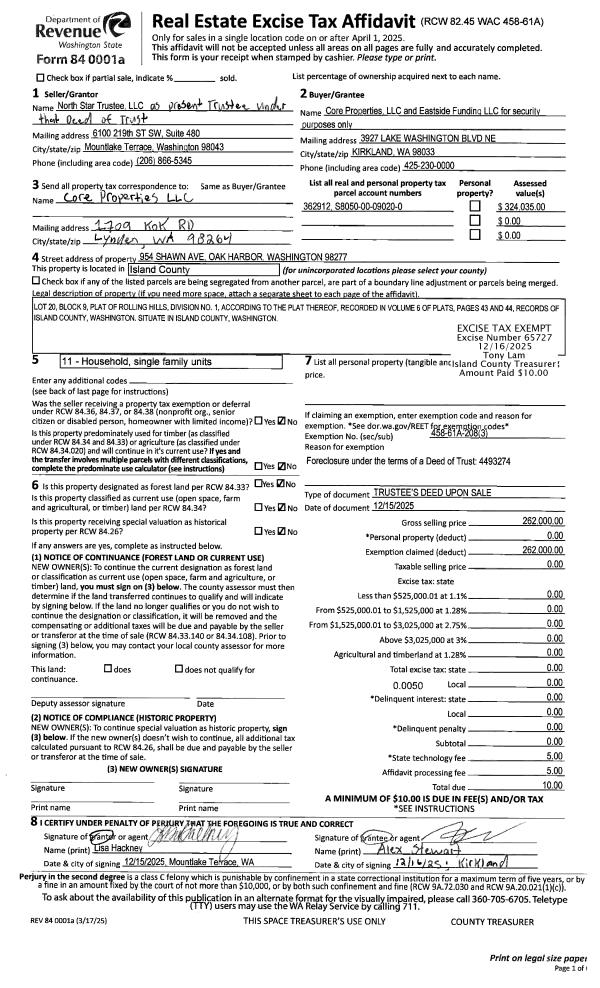
Property
Account |
| Property ID: | 177908 | Abbreviated Legal Description: | Admirals Cove - 7,s Lot 18,s Blk 0;s LOT A LOT COMB AF#4477691s |
| Geographic ID: | S6010-07-00018-0 | Agent Code: | |
| Type: | Real | | |
| Tax Area: | 390 - APPRAISER-Cpvl Schl Dist, Special Dist, improved & less than 1 acre | Land Use Code | 11 |
| Open Space: | N | DFL | N |
| Historic Property: | N | Remodel Property: | N |
| Multi-Family Redevelopment: | N | | |
| Township: | | Section: | |
| Range: | |
Location |
| Address: | 1276 MITSCHER DR COUPEVILLE, WA 98239 | Mapsco: | |
| Neighborhood: | Cycle 2 | Map ID: | 495 |
| Neighborhood CD: | 2 |
Owner |
| Name: | LINDSEY, COLBY S | Owner ID: | 276131 |
| Mailing Address: | CARLA M LINDSEY 1276 MITSCHER DR COUPEVILLE, WA 98239 | % Ownership: | 100.0000000000% |
| | | Exemptions: | |
Taxes and Assessment Details
Values
| (+) Improvement Homesite Value: | + | $0 | |
| (+) Improvement Non-Homesite Value: | + | $299,607 | |
| (+) Land Homesite Value: | + | $0 | |
| (+) Land Non-Homesite Value: | + | $185,000 | |
| (+) Curr Use (HS): | + | $0 | $0 |
| (+) Curr Use (NHS): | + | $0 | $0 |
| | | -------------------------- | |
| (=) Market Value: | = | $484,607 | |
| (–) Productivity Loss: | – | $0 | |
| | | -------------------------- | |
| (=) Subtotal: | = | $484,607 | |
| (+) Senior Appraised Value: | + | $0 | |
| (+) Non-Senior Appraised Value: | + | $484,607 | |
| | | -------------------------- | |
| (=) Total Appraised Value: | = | $484,607 | |
| (–) Senior Exemption Loss: | – | $0 | |
| (–) Exemption Loss: | – | $0 | |
| | | -------------------------- | |
| (=) Taxable Value: | = | $484,607 | |
Taxing Jurisdiction
| Owner: | LINDSEY, COLBY S | | |
| % Ownership: | 100.0000000000% | | |
| Total Value: | $484,607 | | |
| Tax Area: | 390 - APPRAISER-Cpvl Schl Dist, Special Dist, improved & less than 1 acre |
| CF | Conservation Futures | 0.0316035091 | $484,607 | $484,607 | $15.32 | | |
| CEM2 | Cemetery #2 | 0.0095056933 | $484,607 | $484,607 | $4.61 | | |
| FIRE5 | Fire & Rescue Dist #5 C Whidbey GEN | 1.2008080668 | $484,607 | $484,607 | $581.92 | | |
| FIRE5BOND | Fire & Rescue Dist #5 C Whidbey BOND | 0.1400090713 | $484,607 | $484,607 | $67.85 | | |
| HOBOND | Hospital BOND | 0.1910887512 | $484,607 | $484,607 | $92.60 | | |
| HOGEN | Hospital GEN | 0.3902502903 | $484,607 | $484,607 | $189.12 | | |
| CE | County Current Expense | 0.3708482477 | $484,607 | $484,607 | $179.72 | | |
| CR | County Roads | 0.4584763726 | $484,607 | $484,607 | $222.18 | | |
| ISLANDEMS | Hospital GEN (EMS) | 0.5000000000 | $484,607 | $484,607 | $242.30 | | |
| LIB | Library Sno-Isle GEN | 0.3153421757 | $484,607 | $484,607 | $152.82 | | |
| LIBCAP | Library Sno-Isle BOND (Cap Fac Imp Area) | 0.0543427938 | $484,607 | $484,607 | $26.33 | | |
| POCOUP | Port of Coupeville GEN | 0.1093371703 | $484,607 | $484,607 | $52.99 | | |
| POCOUPIDD | Port of Coupeville IDD | 0.3409740022 | $484,607 | $484,607 | $165.24 | | |
| COUPSDTECH | School 204 CP (TECH) | 0.7545480007 | $484,607 | $484,607 | $365.66 | | |
| SCH204MO | School 204 Enrichment | 0.6716186034 | $484,607 | $484,607 | $325.47 | | |
| ST | State School | 1.3035497053 | $484,607 | $484,607 | $631.71 | | |
| ST2 | State School Part 2 | 0.8169543533 | $484,607 | $484,607 | $395.90 | | |
| | Total Tax Rate: | 7.6592568070 | | | | | |
| | | | | Taxes w/Current Exemptions: | $3,711.74 | | |
| | | | | Taxes w/o Exemptions: | $3,711.74 | | |
Improvement / Building
| Improvement #1: | RESIDENTIAL | State Code: | A1 | 1422.1 sqft | Value: | $299,607 |
| Bathrooms: | 2 | Bedrooms: | 2 | | Ceiling: | DRYWALL PAINTED | Exterior Wall/Cover: | VINYL | | Floor Covering: | CERAMIC TILE/HWD 40/60 | Floor Structure: | SLAB ON GRADE | | Foundation: | CONCRETE | Heating: | FHA GAS | | Interior Finish: | DRYWALL PAINT | Plumbing Fixture Cnt: | 10 | | Roof Slope: | 6" IN 12" | Roof Structure/Cover: | CJ ASPHALT |
|
| | Type | Description | Class CD | Sub Class CD | Year Built | Area |
| | BAS | BASE/MAIN FLOOR | 3 | 0 | 2011 | 1422.1 |
| | AGR | ATTACHED GARAGE | 3 | 0 | 2011 | 390.0 |
| | OP3 | OPEN PORCH W/ROOF | 3 | 0 | 2011 | 28.0 |
| | OWP | OPEN WOOD PORCH W/STEPS | 3 | 0 | 2011 | 256.0 |
Sketch
Property Image
Land
| 1 | 15 | SQ (12001-21780) | 0.3500 | 15246.00 | 0.00 | 0.00 | 1.00 | $185,000 | $0 |
Roll Value History
| 2026 | N/A | N/A | N/A | N/A | N/A |
| 2025 | $299,607 | $185,000 | $0 | $484,607 | $484,607 |
| 2024 | $291,192 | $175,000 | $0 | $466,192 | $466,192 |
| 2023 | $294,492 | $175,000 | $0 | $469,492 | $469,492 |
| 2022 | $268,910 | $160,000 | $0 | $428,910 | $428,910 |
| 2021 | $235,910 | $125,000 | $0 | $360,910 | $360,910 |
| 2020 | $228,673 | $100,000 | $0 | $328,673 | $328,673 |
| 2019 | $166,086 | $175,000 | $0 | $341,086 | $341,086 |
| 2018 | $160,584 | $115,000 | $0 | $275,584 | $275,584 |
| 2017 | $161,443 | $100,000 | $0 | $261,443 | $261,443 |
| 2016 | $163,160 | $65,000 | $0 | $228,160 | $228,160 |
| 2015 | $164,879 | $50,000 | $0 | $214,879 | $214,879 |
| 2014 | $166,595 | $50,000 | $0 | $216,595 | $216,595 |
| 2013 | $168,313 | $50,000 | $0 | $218,313 | $218,313 |
| 2012 | $162,819 | $17,000 | $0 | $179,819 | $179,819 |
| 2011 | $166,141 | $20,000 | $0 | $186,141 | $186,141 |
| 2010 | $0 | $20,000 | $0 | $20,000 | $20,000 |
| 2009 | $0 | $14,400 | $0 | $14,400 | $14,400 |
| 2008 | $0 | $8,000 | $0 | $8,000 | $8,000 |
| 2007 | $0 | $7,500 | $0 | $7,500 | $7,500 |
Deed and Sales History
| 1 | 12/17/2019 | QCD | Quit Claim Deed | LINDSEY, COLBY S | LINDSEY, COLBY S | | | $0.00 | 41496 | 4477686 |
| 2 | 07/18/2016 | CCOMPROP | Create Community Property | LINDSEY, COLBY S | LINDSEY, COLBY S | | | $0.00 | 25338 | 4403623 |
| 3 | 05/08/2012 | WD | Warranty Deed | OMEGA HOME CONSTRUCTION LLC | LINDSEY, COLBY S | | | $228,000.00 | 7681 | 4315578 |
| 4 | 04/06/2010 | WD | Warranty Deed | HARTWICH, DOUGLAS | OMEGA HOME CONSTRUCTION LLC, | | | $25,000.00 | 859 | 4272152 |
| 5 | 01/01/1900 | QCD | Quit Claim Deed | Unknown | HARTWICH, DOUGLAS | | | $0.00 | 0 | 0 |
Payout Agreement
| No payout information available.. |