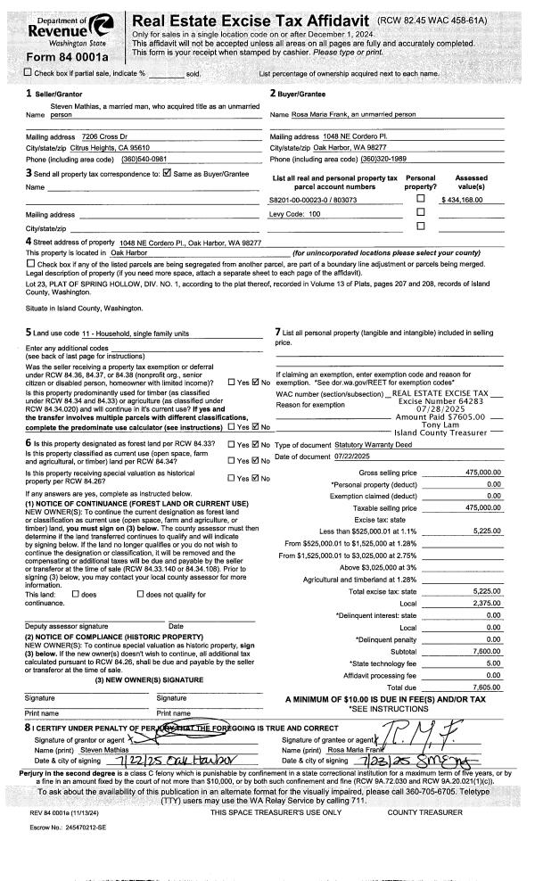
Property
Account |
| Property ID: | 178284 | Abbreviated Legal Description: | ADMIRALS COVE 7 LOT 56 |
| Geographic ID: | S6010-07-00056-0 | Agent Code: | |
| Type: | Real | | |
| Tax Area: | 390 - APPRAISER-Cpvl Schl Dist, Special Dist, improved & less than 1 acre | Land Use Code | 11 |
| Open Space: | N | DFL | N |
| Historic Property: | N | Remodel Property: | N |
| Multi-Family Redevelopment: | N | | |
| Township: | | Section: | |
| Range: | |
Location |
| Address: | | Mapsco: | |
| Neighborhood: | Cycle 2 | Map ID: | 495 |
| Neighborhood CD: | 2 |
Owner |
| Name: | GRANSTROM, KRISTIAN | Owner ID: | 285251 |
| Mailing Address: | JEANINE GRANSTROM 9010 MARKET PL PMB 502 LAKE STEVENS, WA 98258 | % Ownership: | 100.0000000000% |
| | | Exemptions: | |
Taxes and Assessment Details
Values
| (+) Improvement Homesite Value: | + | $0 | |
| (+) Improvement Non-Homesite Value: | + | $325,623 | |
| (+) Land Homesite Value: | + | $0 | |
| (+) Land Non-Homesite Value: | + | $185,000 | |
| (+) Curr Use (HS): | + | $0 | $0 |
| (+) Curr Use (NHS): | + | $0 | $0 |
| | | -------------------------- | |
| (=) Market Value: | = | $510,623 | |
| (–) Productivity Loss: | – | $0 | |
| | | -------------------------- | |
| (=) Subtotal: | = | $510,623 | |
| (+) Senior Appraised Value: | + | $0 | |
| (+) Non-Senior Appraised Value: | + | $510,623 | |
| | | -------------------------- | |
| (=) Total Appraised Value: | = | $510,623 | |
| (–) Senior Exemption Loss: | – | $0 | |
| (–) Exemption Loss: | – | $0 | |
| | | -------------------------- | |
| (=) Taxable Value: | = | $510,623 | |
Taxing Jurisdiction
| Owner: | GRANSTROM, KRISTIAN | | |
| % Ownership: | 100.0000000000% | | |
| Total Value: | $510,623 | | |
| Tax Area: | 390 - APPRAISER-Cpvl Schl Dist, Special Dist, improved & less than 1 acre |
| CF | Conservation Futures | 0.0316035091 | $510,623 | $510,623 | $16.14 | | |
| CEM2 | Cemetery #2 | 0.0095056933 | $510,623 | $510,623 | $4.85 | | |
| FIRE5 | Fire & Rescue Dist #5 C Whidbey GEN | 1.2008080668 | $510,623 | $510,623 | $613.16 | | |
| FIRE5BOND | Fire & Rescue Dist #5 C Whidbey BOND | 0.1400090713 | $510,623 | $510,623 | $71.49 | | |
| HOBOND | Hospital BOND | 0.1910887512 | $510,623 | $510,623 | $97.57 | | |
| HOGEN | Hospital GEN | 0.3902502903 | $510,623 | $510,623 | $199.27 | | |
| CE | County Current Expense | 0.3708482477 | $510,623 | $510,623 | $189.36 | | |
| CR | County Roads | 0.4584763726 | $510,623 | $510,623 | $234.11 | | |
| ISLANDEMS | Hospital GEN (EMS) | 0.5000000000 | $510,623 | $510,623 | $255.31 | | |
| LIB | Library Sno-Isle GEN | 0.3153421757 | $510,623 | $510,623 | $161.02 | | |
| LIBCAP | Library Sno-Isle BOND (Cap Fac Imp Area) | 0.0543427938 | $510,623 | $510,623 | $27.75 | | |
| POCOUP | Port of Coupeville GEN | 0.1093371703 | $510,623 | $510,623 | $55.83 | | |
| POCOUPIDD | Port of Coupeville IDD | 0.3409740022 | $510,623 | $510,623 | $174.11 | | |
| COUPSDTECH | School 204 CP (TECH) | 0.7545480007 | $510,623 | $510,623 | $385.29 | | |
| SCH204MO | School 204 Enrichment | 0.6716186034 | $510,623 | $510,623 | $342.94 | | |
| ST | State School | 1.3035497053 | $510,623 | $510,623 | $665.62 | | |
| ST2 | State School Part 2 | 0.8169543533 | $510,623 | $510,623 | $417.16 | | |
| | Total Tax Rate: | 7.6592568070 | | | | | |
| | | | | Taxes w/Current Exemptions: | $3,910.98 | | |
| | | | | Taxes w/o Exemptions: | $3,910.98 | | |
Improvement / Building
| Improvement #1: | RESIDENTIAL | State Code: | Y | 1485.2 sqft | Value: | $325,623 |
| Bathrooms: | 2.5 | Bedrooms: | 4 | | Ceiling: | DRYWALL PAINTED | Cooling: | HEAT PUMP/CONV/V | | Exterior Wall/Cover: | CEMENT FIBER | Floor Covering: | CARPET/VINYL 60-40 | | Floor Structure: | WOOD W/SUBFLOOR | Foundation: | CONCRETE | | Interior Finish: | DRYWALL PAINT | Plumbing Fixture Cnt: | 12 | | Roof Slope: | 6" IN 12" | Roof Structure/Cover: | CJ ASPHALT |
|
| | Type | Description | Class CD | Sub Class CD | Year Built | Area |
| | BAS | BASE/MAIN FLOOR | 3 | 0 | 2023 | 559.8 |
| | UPS | UPPER STORY | 3 | 0 | 2023 | 925.4 |
| | BIG | BUILT IN GARAGE | 3 | 0 | 2023 | 457.0 |
| | OWC | OPEN WOOD PORCH W/STEPS/ROOF/C | 3 | 0 | 2023 | 43.9 |
| | OWP | OPEN WOOD PORCH W/STEPS | 3 | 0 | 2023 | 100.0 |
Sketch
Property Image
Land
| 1 | 13 | SQ (06001-08000) | 0.1763 | 7679.63 | 0.00 | 0.00 | 1.00 | $185,000 | $0 |
Roll Value History
| 2026 | N/A | N/A | N/A | N/A | N/A |
| 2025 | $325,623 | $185,000 | $0 | $510,623 | $510,623 |
| 2024 | $337,006 | $175,000 | $0 | $512,006 | $512,006 |
| 2023 | $224,433 | $70,000 | $0 | $294,433 | $294,433 |
| 2022 | $0 | $40,000 | $0 | $40,000 | $40,000 |
| 2021 | $0 | $30,000 | $0 | $30,000 | $30,000 |
| 2020 | $0 | $25,000 | $0 | $25,000 | $25,000 |
| 2019 | $0 | $35,000 | $0 | $35,000 | $35,000 |
| 2018 | $0 | $35,000 | $0 | $35,000 | $35,000 |
| 2017 | $0 | $30,000 | $0 | $30,000 | $30,000 |
| 2016 | $0 | $30,000 | $0 | $30,000 | $30,000 |
| 2015 | $0 | $30,000 | $0 | $30,000 | $30,000 |
| 2014 | $0 | $30,000 | $0 | $30,000 | $30,000 |
| 2013 | $0 | $30,000 | $0 | $30,000 | $30,000 |
| 2012 | $0 | $21,623 | $0 | $21,623 | $21,623 |
| 2011 | $0 | $21,623 | $0 | $21,623 | $21,623 |
| 2010 | $0 | $21,623 | $0 | $21,623 | $21,623 |
| 2009 | $0 | $45,000 | $0 | $45,000 | $45,000 |
| 2008 | $0 | $25,000 | $0 | $25,000 | $25,000 |
| 2007 | $0 | $30,000 | $0 | $30,000 | $30,000 |
Deed and Sales History
| 1 | 05/25/2018 | WD | Warranty Deed | TAYLOR, TERRY R | GRANSTROM, KRISTIAN | | | $22,000.00 | 34312 | 4445299 |
| 2 | 04/01/1990 | QCD | Quit Claim Deed | TAYLOR, GEORGE J | TAYLOR, TERRY R | | | $2,507.00 | 2234 | 90007282 |
| 3 | 01/01/1900 | OTHER | Other - Misc. Documents | Unknown | TAYLOR, GEORGE J | | | $0.00 | 0 | 0 |
Payout Agreement
| No payout information available.. |