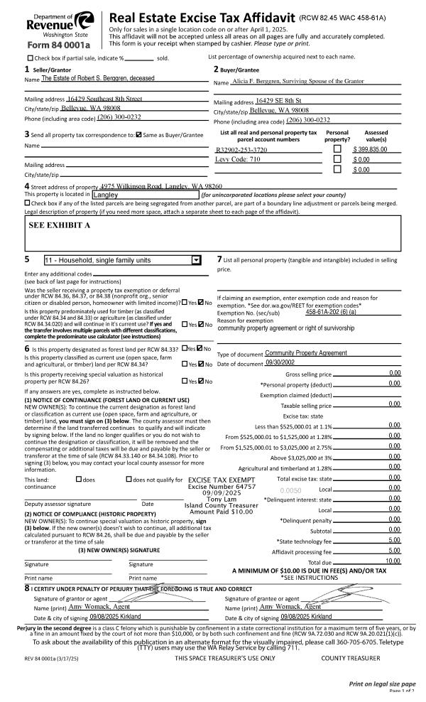
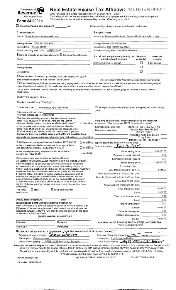
Property
Account |
| Property ID: | 178300 | Abbreviated Legal Description: | ADMIRALS COVE 7 LOTS 58 & 59 |
| Geographic ID: | S6010-07-00058-0 | Agent Code: | |
| Type: | Real | | |
| Tax Area: | 390 - APPRAISER-Cpvl Schl Dist, Special Dist, improved & less than 1 acre | Land Use Code | 11 |
| Open Space: | N | DFL | N |
| Historic Property: | N | Remodel Property: | N |
| Multi-Family Redevelopment: | N | | |
| Township: | | Section: | |
| Range: | |
Location |
| Address: | 1295 RUSSELL DR COUPEVILLE, WA 98239 | Mapsco: | |
| Neighborhood: | Cycle 2 | Map ID: | 495 |
| Neighborhood CD: | 2 |
Owner |
| Name: | PALLA, THOMAS | Owner ID: | 315162 |
| Mailing Address: | 1295 RUSSELL DR COUPEVILLE, WA 98239 | % Ownership: | 100.0000000000% |
| | | Exemptions: | |
Taxes and Assessment Details
Values
| (+) Improvement Homesite Value: | + | $0 | |
| (+) Improvement Non-Homesite Value: | + | $290,956 | |
| (+) Land Homesite Value: | + | $0 | |
| (+) Land Non-Homesite Value: | + | $185,000 | |
| (+) Curr Use (HS): | + | $0 | $0 |
| (+) Curr Use (NHS): | + | $0 | $0 |
| | | -------------------------- | |
| (=) Market Value: | = | $475,956 | |
| (–) Productivity Loss: | – | $0 | |
| | | -------------------------- | |
| (=) Subtotal: | = | $475,956 | |
| (+) Senior Appraised Value: | + | $0 | |
| (+) Non-Senior Appraised Value: | + | $475,956 | |
| | | -------------------------- | |
| (=) Total Appraised Value: | = | $475,956 | |
| (–) Senior Exemption Loss: | – | $0 | |
| (–) Exemption Loss: | – | $0 | |
| | | -------------------------- | |
| (=) Taxable Value: | = | $475,956 | |
Taxing Jurisdiction
| Owner: | PALLA, THOMAS | | |
| % Ownership: | 100.0000000000% | | |
| Total Value: | $475,956 | | |
| Tax Area: | 390 - APPRAISER-Cpvl Schl Dist, Special Dist, improved & less than 1 acre |
| CF | Conservation Futures | 0.0316035091 | $475,956 | $475,956 | $15.04 | | |
| CEM2 | Cemetery #2 | 0.0095056933 | $475,956 | $475,956 | $4.52 | | |
| FIRE5 | Fire & Rescue Dist #5 C Whidbey GEN | 1.2008080668 | $475,956 | $475,956 | $571.53 | | |
| FIRE5BOND | Fire & Rescue Dist #5 C Whidbey BOND | 0.1400090713 | $475,956 | $475,956 | $66.64 | | |
| HOBOND | Hospital BOND | 0.1910887512 | $475,956 | $475,956 | $90.95 | | |
| HOGEN | Hospital GEN | 0.3902502903 | $475,956 | $475,956 | $185.74 | | |
| CE | County Current Expense | 0.3708482477 | $475,956 | $475,956 | $176.51 | | |
| CR | County Roads | 0.4584763726 | $475,956 | $475,956 | $218.21 | | |
| ISLANDEMS | Hospital GEN (EMS) | 0.5000000000 | $475,956 | $475,956 | $237.98 | | |
| LIB | Library Sno-Isle GEN | 0.3153421757 | $475,956 | $475,956 | $150.09 | | |
| LIBCAP | Library Sno-Isle BOND (Cap Fac Imp Area) | 0.0543427938 | $475,956 | $475,956 | $25.86 | | |
| POCOUP | Port of Coupeville GEN | 0.1093371703 | $475,956 | $475,956 | $52.04 | | |
| POCOUPIDD | Port of Coupeville IDD | 0.3409740022 | $475,956 | $475,956 | $162.29 | | |
| COUPSDTECH | School 204 CP (TECH) | 0.7545480007 | $475,956 | $475,956 | $359.13 | | |
| SCH204MO | School 204 Enrichment | 0.6716186034 | $475,956 | $475,956 | $319.66 | | |
| ST | State School | 1.3035497053 | $475,956 | $475,956 | $620.43 | | |
| ST2 | State School Part 2 | 0.8169543533 | $475,956 | $475,956 | $388.83 | | |
| | Total Tax Rate: | 7.6592568070 | | | | | |
| | | | | Taxes w/Current Exemptions: | $3,645.45 | | |
| | | | | Taxes w/o Exemptions: | $3,645.45 | | |
Improvement / Building
| Improvement #1: | RESIDENTIAL | State Code: | Y | 1462.0 sqft | Value: | $290,956 |
| Bathrooms: | 2 | Bedrooms: | 2 | | Ceiling: | DRYWALL PAINTED | Exterior Wall/Cover: | CEMENT FIBER | | Floor Covering: | VINYL 100% | Floor Structure: | WOOD W/SUBFLOOR | | Foundation: | CONCRETE | Heating: | FHA GAS | | Interior Finish: | DRYWALL PAINT | Plumbing Fixture Cnt: | 11 | | Roof Slope: | 3" IN 12" | Roof Structure/Cover: | CJ ASPHALT |
|
| | Type | Description | Class CD | Sub Class CD | Year Built | Area |
| | BAS | BASE/MAIN FLOOR | 3 | 0 | 2004 | 1462.0 |
| | OP3 | OPEN PORCH W/ROOF | 3 | 0 | 2004 | 24.0 |
| | AGR | ATTACHED GARAGE | 3 | 0 | 2004 | 484.0 |
| | OWP | OPEN WOOD PORCH W/STEPS | 3 | 0 | 2004 | 160.0 |
Sketch
Property Image
Land
| 1 | 15 | SQ (12001-21780) | 0.3307 | 14405.29 | 0.00 | 0.00 | 1.00 | $185,000 | $0 |
Roll Value History
| 2026 | N/A | N/A | N/A | N/A | N/A |
| 2025 | $290,956 | $185,000 | $0 | $475,956 | $475,956 |
| 2024 | $277,835 | $175,000 | $0 | $452,835 | $452,835 |
| 2023 | $281,094 | $175,000 | $0 | $456,094 | $456,094 |
| 2022 | $257,485 | $160,000 | $0 | $417,485 | $417,485 |
| 2021 | $226,474 | $125,000 | $0 | $351,474 | $351,474 |
| 2020 | $220,066 | $100,000 | $0 | $320,066 | $320,066 |
| 2019 | $157,671 | $140,000 | $0 | $297,671 | $297,671 |
| 2018 | $160,682 | $115,000 | $0 | $275,682 | $275,682 |
| 2017 | $161,590 | $100,000 | $0 | $261,590 | $261,590 |
| 2016 | $163,405 | $65,000 | $0 | $228,405 | $228,405 |
| 2015 | $165,221 | $65,000 | $0 | $230,221 | $230,221 |
| 2014 | $167,036 | $50,000 | $0 | $217,036 | $217,036 |
| 2013 | $168,851 | $50,000 | $0 | $218,851 | $218,851 |
| 2012 | $180,221 | $52,932 | $0 | $233,153 | $233,153 |
| 2011 | $182,201 | $62,273 | $0 | $244,474 | $244,474 |
| 2010 | $187,591 | $62,273 | $0 | $249,864 | $249,864 |
| 2009 | $197,441 | $80,000 | $0 | $277,441 | $277,441 |
| 2008 | $197,586 | $80,000 | $0 | $277,586 | $277,586 |
| 2007 | $199,734 | $80,000 | $0 | $279,734 | $279,734 |
Deed and Sales History
| 1 | 01/14/2025 | WD | Warranty Deed | SEEFELD, RALPH L | PALLA, THOMAS | | | $455,000.00 | 62336 | 4581365 |
| 2 | 03/23/2004 | WD | Warranty Deed | WOLLIN, TYLER | SEEFELD, RALPH L | | | $179,900.00 | 41336 | 4096351 |
| 3 | 03/05/2003 | WD | Warranty Deed | CHRISTIAN SCIENCE SOCIETY, | WOLLIN, TYLER | | | $10,000.00 | 31014 | 4050789 |
| 4 | 12/24/2002 | BLA | DNU - Boundary Line Adjustment | CHRISTIAN, SCIENCE S | CHRISTIAN SCIENCE SOCIETY, | | | $0.00 | 69648 | 4025749 |
| 5 | 10/01/1995 | WD | Warranty Deed | KEAN, H G | CHRISTIAN, SCIENCE S | | | $0.00 | 60068 | 96000234 |
| 6 | 01/01/1900 | OTHER | Other - Misc. Documents | Unknown | KEAN, H G | | | $2,250.00 | 0 | 0 |
Payout Agreement
| No payout information available.. |