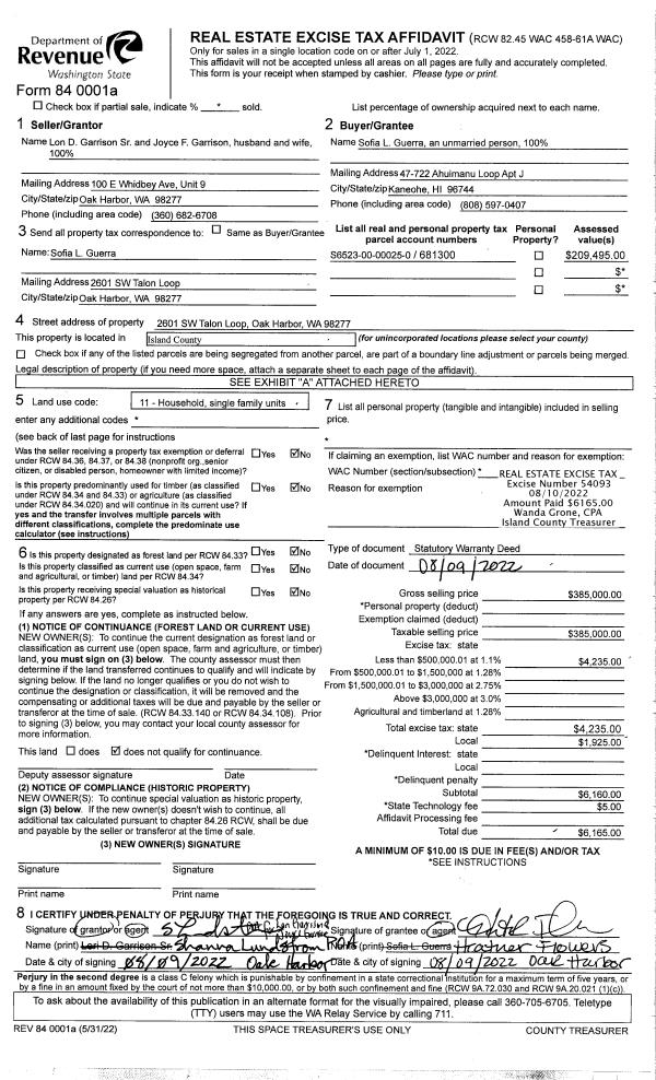
Property
Account |
| Property ID: | 178417 | Abbreviated Legal Description: | ADMIRALS COVE 7 LOTS 69 & 70 COMB 8/94 |
| Geographic ID: | S6010-07-00069-0 | Agent Code: | |
| Type: | Real | | |
| Tax Area: | 390 - APPRAISER-Cpvl Schl Dist, Special Dist, improved & less than 1 acre | Land Use Code | 11 |
| Open Space: | N | DFL | N |
| Historic Property: | N | Remodel Property: | N |
| Multi-Family Redevelopment: | N | | |
| Township: | | Section: | |
| Range: | |
Location |
| Address: | 1251 RUSSELL DR COUPEVILLE, WA 98239 | Mapsco: | |
| Neighborhood: | Cycle 2 | Map ID: | 495 |
| Neighborhood CD: | 2 |
Owner |
| Name: | JOHNSON, JULIAN DOUGLAS | Owner ID: | 302392 |
| Mailing Address: | TAMMY JEAN JOHNSON 1251 RUSSELL DR COUPEVILLE, WA 98239 | % Ownership: | 100.0000000000% |
| | | Exemptions: | |
Taxes and Assessment Details
Values
| (+) Improvement Homesite Value: | + | $0 | |
| (+) Improvement Non-Homesite Value: | + | $204,960 | |
| (+) Land Homesite Value: | + | $0 | |
| (+) Land Non-Homesite Value: | + | $185,000 | |
| (+) Curr Use (HS): | + | $0 | $0 |
| (+) Curr Use (NHS): | + | $0 | $0 |
| | | -------------------------- | |
| (=) Market Value: | = | $389,960 | |
| (–) Productivity Loss: | – | $0 | |
| | | -------------------------- | |
| (=) Subtotal: | = | $389,960 | |
| (+) Senior Appraised Value: | + | $0 | |
| (+) Non-Senior Appraised Value: | + | $389,960 | |
| | | -------------------------- | |
| (=) Total Appraised Value: | = | $389,960 | |
| (–) Senior Exemption Loss: | – | $0 | |
| (–) Exemption Loss: | – | $0 | |
| | | -------------------------- | |
| (=) Taxable Value: | = | $389,960 | |
Taxing Jurisdiction
| Owner: | JOHNSON, JULIAN DOUGLAS | | |
| % Ownership: | 100.0000000000% | | |
| Total Value: | $389,960 | | |
| Tax Area: | 390 - APPRAISER-Cpvl Schl Dist, Special Dist, improved & less than 1 acre |
| CF | Conservation Futures | 0.0316035091 | $389,960 | $389,960 | $12.32 | | |
| CEM2 | Cemetery #2 | 0.0095056933 | $389,960 | $389,960 | $3.71 | | |
| FIRE5 | Fire & Rescue Dist #5 C Whidbey GEN | 1.2008080668 | $389,960 | $389,960 | $468.27 | | |
| FIRE5BOND | Fire & Rescue Dist #5 C Whidbey BOND | 0.1400090713 | $389,960 | $389,960 | $54.60 | | |
| HOBOND | Hospital BOND | 0.1910887512 | $389,960 | $389,960 | $74.52 | | |
| HOGEN | Hospital GEN | 0.3902502903 | $389,960 | $389,960 | $152.18 | | |
| CE | County Current Expense | 0.3708482477 | $389,960 | $389,960 | $144.62 | | |
| CR | County Roads | 0.4584763726 | $389,960 | $389,960 | $178.79 | | |
| ISLANDEMS | Hospital GEN (EMS) | 0.5000000000 | $389,960 | $389,960 | $194.98 | | |
| LIB | Library Sno-Isle GEN | 0.3153421757 | $389,960 | $389,960 | $122.97 | | |
| LIBCAP | Library Sno-Isle BOND (Cap Fac Imp Area) | 0.0543427938 | $389,960 | $389,960 | $21.19 | | |
| POCOUP | Port of Coupeville GEN | 0.1093371703 | $389,960 | $389,960 | $42.64 | | |
| POCOUPIDD | Port of Coupeville IDD | 0.3409740022 | $389,960 | $389,960 | $132.97 | | |
| COUPSDTECH | School 204 CP (TECH) | 0.7545480007 | $389,960 | $389,960 | $294.24 | | |
| SCH204MO | School 204 Enrichment | 0.6716186034 | $389,960 | $389,960 | $261.90 | | |
| ST | State School | 1.3035497053 | $389,960 | $389,960 | $508.33 | | |
| ST2 | State School Part 2 | 0.8169543533 | $389,960 | $389,960 | $318.58 | | |
| | Total Tax Rate: | 7.6592568070 | | | | | |
| | | | | Taxes w/Current Exemptions: | $2,986.81 | | |
| | | | | Taxes w/o Exemptions: | $2,986.81 | | |
Improvement / Building
| Improvement #1: | RESIDENTIAL | State Code: | Y | 1102.5 sqft | Value: | $204,960 |
| Bathrooms: | 1 | Bedrooms: | 3 | | Ceiling: | DRYWALL PAINTED | Cooling: | HEAT PUMP/CONV/V | | Exterior Wall/Cover: | PLY/HARDBOARD T-111 | Floor Covering: | HARDWOOD/CARP 80-20 | | Floor Structure: | WOOD W/SUBFLOOR | Foundation: | CONCRETE | | Interior Finish: | DRYWALL PAINT | Plumbing Fixture Cnt: | 7 | | Roof Slope: | 4" IN 12" | Roof Structure/Cover: | CJ ASPHALT |
|
| | Type | Description | Class CD | Sub Class CD | Year Built | Area |
| | BAS | BASE/MAIN FLOOR | 3 | 0 | 1994 | 1102.5 |
| | AGR | ATTACHED GARAGE | 3 | 0 | 1994 | 192.0 |
Sketch
Property Image
Land
| 1 | 15 | SQ (12001-21780) | 0.3306 | 14400.94 | 0.00 | 0.00 | 1.00 | $185,000 | $0 |
Roll Value History
| 2026 | N/A | N/A | N/A | N/A | N/A |
| 2025 | $204,960 | $185,000 | $0 | $389,960 | $389,960 |
| 2024 | $204,960 | $175,000 | $0 | $379,960 | $379,960 |
| 2023 | $204,990 | $175,000 | $0 | $379,990 | $379,990 |
| 2022 | $187,830 | $160,000 | $0 | $347,830 | $347,830 |
| 2021 | $165,243 | $125,000 | $0 | $290,243 | $290,243 |
| 2020 | $160,914 | $100,000 | $0 | $260,914 | $260,914 |
| 2019 | $101,395 | $140,000 | $0 | $241,395 | $241,395 |
| 2018 | $100,318 | $115,000 | $0 | $215,318 | $215,318 |
| 2017 | $100,949 | $100,000 | $0 | $200,949 | $200,949 |
| 2016 | $102,211 | $65,000 | $0 | $167,211 | $167,211 |
| 2015 | $103,473 | $65,000 | $0 | $168,473 | $168,473 |
| 2014 | $104,734 | $50,000 | $0 | $154,734 | $154,734 |
| 2013 | $105,996 | $50,000 | $0 | $155,996 | $155,996 |
| 2012 | $112,737 | $52,932 | $0 | $165,669 | $165,669 |
| 2011 | $114,113 | $62,273 | $0 | $176,386 | $176,386 |
| 2010 | $118,197 | $62,273 | $0 | $180,470 | $180,470 |
| 2009 | $120,467 | $80,000 | $0 | $200,467 | $200,467 |
| 2008 | $124,724 | $80,000 | $0 | $204,724 | $204,724 |
| 2007 | $126,206 | $80,000 | $0 | $206,206 | $206,206 |
Deed and Sales History
| 1 | 12/14/2021 | WD | Warranty Deed | JACOBI, CATHERINE ANNE | JOHNSON, JULIAN DOUGLAS | | | $380,000.00 | 51371 | 4536172 |
| 2 | 05/16/2019 | WD | Warranty Deed | HEATON JTWROS, SCOTT T | JACOBI, CATHERINE ANNE | | | $275,000.00 | 38635 | 4463907 |
| 3 | 11/04/2009 | QCD | Quit Claim Deed | HEATON, SCOTT T | HEATON JTWROS, SCOTT T | | | $0.00 | 92830 | 4263927 |
| 4 | 09/01/1997 | WD | Warranty Deed | LEE, CLARK D | HEATON, SCOTT T | | | $114,900.00 | 73192 | 97015052 |
| 5 | 11/01/1994 | WD | Warranty Deed | POLLARD, FELIX G | LEE, CLARK D | | | $99,500.00 | 44748 | 94024275 |
| 6 | 08/01/1994 | OTHER | Other - Misc. Documents | ISLAND, PACIFIC C | POLLARD, FELIX G | | | $0.00 | 66021 | 94017998 |
| 7 | 08/01/1994 | WD | Warranty Deed | POLLARD, FELIX G | ISLAND, PACIFIC C | | | $23,000.00 | 43373 | 94017948 |
| 8 | 01/01/1900 | OTHER | Other - Misc. Documents | Unknown | POLLARD, FELIX G | | | $6,500.00 | 0 | 0 |
Payout Agreement
| No payout information available.. |