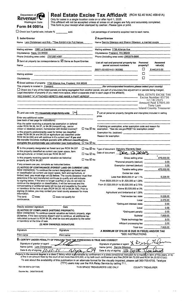
Property
Account |
| Property ID: | 178453 | Abbreviated Legal Description: | ADMIRALS COVE 7 LOTS 72 & 73 |
| Geographic ID: | S6010-07-00073-0 | Agent Code: | |
| Type: | Real | | |
| Tax Area: | 390 - APPRAISER-Cpvl Schl Dist, Special Dist, improved & less than 1 acre | Land Use Code | 11 |
| Open Space: | N | DFL | N |
| Historic Property: | N | Remodel Property: | N |
| Multi-Family Redevelopment: | N | | |
| Township: | | Section: | |
| Range: | |
Location |
| Address: | 1382 ADMIRALS DR COUPEVILLE, WA 98239 | Mapsco: | |
| Neighborhood: | Cycle 2 | Map ID: | 495 |
| Neighborhood CD: | 2 |
Owner |
| Name: | STONE, JOSHUA | Owner ID: | 9136 |
| Mailing Address: | EILEEN STONE 1382 ADMIRALS DR COUPEVILLE, WA 98239-9761 | % Ownership: | 100.0000000000% |
| | | Exemptions: | |
Taxes and Assessment Details
Values
| (+) Improvement Homesite Value: | + | $0 | |
| (+) Improvement Non-Homesite Value: | + | $360,080 | |
| (+) Land Homesite Value: | + | $0 | |
| (+) Land Non-Homesite Value: | + | $185,000 | |
| (+) Curr Use (HS): | + | $0 | $0 |
| (+) Curr Use (NHS): | + | $0 | $0 |
| | | -------------------------- | |
| (=) Market Value: | = | $545,080 | |
| (–) Productivity Loss: | – | $0 | |
| | | -------------------------- | |
| (=) Subtotal: | = | $545,080 | |
| (+) Senior Appraised Value: | + | $0 | |
| (+) Non-Senior Appraised Value: | + | $545,080 | |
| | | -------------------------- | |
| (=) Total Appraised Value: | = | $545,080 | |
| (–) Senior Exemption Loss: | – | $0 | |
| (–) Exemption Loss: | – | $0 | |
| | | -------------------------- | |
| (=) Taxable Value: | = | $545,080 | |
Taxing Jurisdiction
| Owner: | STONE, JOSHUA | | |
| % Ownership: | 100.0000000000% | | |
| Total Value: | $545,080 | | |
| Tax Area: | 390 - APPRAISER-Cpvl Schl Dist, Special Dist, improved & less than 1 acre |
| CF | Conservation Futures | 0.0316035091 | $545,080 | $545,080 | $17.23 | | |
| CEM2 | Cemetery #2 | 0.0095056933 | $545,080 | $545,080 | $5.18 | | |
| FIRE5 | Fire & Rescue Dist #5 C Whidbey GEN | 1.2008080668 | $545,080 | $545,080 | $654.54 | | |
| FIRE5BOND | Fire & Rescue Dist #5 C Whidbey BOND | 0.1400090713 | $545,080 | $545,080 | $76.32 | | |
| HOBOND | Hospital BOND | 0.1910887512 | $545,080 | $545,080 | $104.16 | | |
| HOGEN | Hospital GEN | 0.3902502903 | $545,080 | $545,080 | $212.72 | | |
| CE | County Current Expense | 0.3708482477 | $545,080 | $545,080 | $202.14 | | |
| CR | County Roads | 0.4584763726 | $545,080 | $545,080 | $249.91 | | |
| ISLANDEMS | Hospital GEN (EMS) | 0.5000000000 | $545,080 | $545,080 | $272.54 | | |
| LIB | Library Sno-Isle GEN | 0.3153421757 | $545,080 | $545,080 | $171.89 | | |
| LIBCAP | Library Sno-Isle BOND (Cap Fac Imp Area) | 0.0543427938 | $545,080 | $545,080 | $29.62 | | |
| POCOUP | Port of Coupeville GEN | 0.1093371703 | $545,080 | $545,080 | $59.60 | | |
| POCOUPIDD | Port of Coupeville IDD | 0.3409740022 | $545,080 | $545,080 | $185.86 | | |
| COUPSDTECH | School 204 CP (TECH) | 0.7545480007 | $545,080 | $545,080 | $411.29 | | |
| SCH204MO | School 204 Enrichment | 0.6716186034 | $545,080 | $545,080 | $366.09 | | |
| ST | State School | 1.3035497053 | $545,080 | $545,080 | $710.54 | | |
| ST2 | State School Part 2 | 0.8169543533 | $545,080 | $545,080 | $445.31 | | |
| | Total Tax Rate: | 7.6592568070 | | | | | |
| | | | | Taxes w/Current Exemptions: | $4,174.94 | | |
| | | | | Taxes w/o Exemptions: | $4,174.94 | | |
Improvement / Building
| Improvement #1: | RESIDENTIAL | State Code: | Y | 2200.1 sqft | Value: | $360,080 |
| Bathrooms: | 2.5 | Bedrooms: | 3 | | Ceiling: | DRYWALL PAINTED | Exterior Wall/Cover: | CEMENT FIBER | | Floor Covering: | COLORED CONCRETE | Floor Structure: | WOOD W/SUBFLOOR | | Foundation: | CONCRETE | Heating: | RADIANT FLOOR | | Interior Finish: | DRYWALL PAINT | Plumbing Fixture Cnt: | 14 | | Roof Slope: | 5" IN 12" | Roof Structure/Cover: | CJ ASPHALT |
|
| | Type | Description | Class CD | Sub Class CD | Year Built | Area |
| | BAS | BASE/MAIN FLOOR | 3 | 0 | 2006 | 1212.6 |
| | AGR | ATTACHED GARAGE | 3 | 0 | 2006 | 475.4 |
| | UPS | UPPER STORY | 3 | 0 | 2006 | 987.5 |
| | OWP | OPEN WOOD PORCH W/STEPS | 3 | 0 | 2006 | 400.0 |
| | OWC | OPEN WOOD PORCH W/STEPS/ROOF/C | 3 | 0 | 2006 | 132.0 |
Sketch
| No sketches available for this property. |
Property Image
Land
| 1 | 15 | SQ (12001-21780) | 0.4200 | 18295.20 | 0.00 | 0.00 | 1.00 | $185,000 | $0 |
Roll Value History
| 2026 | N/A | N/A | N/A | N/A | N/A |
| 2025 | $360,080 | $185,000 | $0 | $545,080 | $545,080 |
| 2024 | $355,857 | $175,000 | $0 | $530,857 | $530,857 |
| 2023 | $360,080 | $175,000 | $0 | $535,080 | $535,080 |
| 2022 | $329,874 | $160,000 | $0 | $489,874 | $489,874 |
| 2021 | $290,180 | $125,000 | $0 | $415,180 | $415,180 |
| 2020 | $282,371 | $100,000 | $0 | $382,371 | $382,371 |
| 2019 | $214,172 | $140,000 | $0 | $354,172 | $354,172 |
| 2018 | $217,085 | $115,000 | $0 | $332,085 | $332,085 |
| 2017 | $218,222 | $100,000 | $0 | $318,222 | $318,222 |
| 2016 | $220,646 | $65,000 | $0 | $285,646 | $285,646 |
| 2015 | $223,071 | $65,000 | $0 | $288,071 | $288,071 |
| 2014 | $225,494 | $50,000 | $0 | $275,494 | $275,494 |
| 2013 | $227,919 | $50,000 | $0 | $277,919 | $277,919 |
| 2012 | $254,365 | $52,932 | $0 | $307,297 | $307,297 |
| 2011 | $257,100 | $62,273 | $0 | $319,373 | $319,373 |
| 2010 | $262,890 | $79,537 | $0 | $342,427 | $342,427 |
| 2009 | $273,779 | $80,000 | $0 | $353,779 | $353,779 |
| 2008 | $276,756 | $80,000 | $0 | $356,756 | $356,756 |
| 2007 | $186,202 | $80,000 | $0 | $266,202 | $266,202 |
Deed and Sales History
| 1 | 03/22/2005 | WD | Warranty Deed | LOLAND, IRENE M | STONE, JOSHUA | | | $13,000.00 | 51335 | 4129972 |
| 2 | 01/01/1900 | OTHER | Other - Misc. Documents | Unknown | LOLAND, IRENE M | | | $0.00 | 0 | 0 |
Payout Agreement
| No payout information available.. |