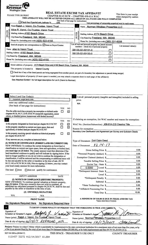
Property
Account |
| Property ID: | 17877 | Abbreviated Legal Description: | 111 - IN SWSE:BG SWCR FLOWERS HTS E293'S120'TPB E170'TO WLN BALDA RD S110'W170'M/L N110'TPB SUBJ TO EZ W15' |
| Geographic ID: | R13210-114-3850 | Agent Code: | |
| Type: | Real | | |
| Tax Area: | 100 - APPRAISER-OH Schl Dist, in OH | Land Use Code | 11 |
| Open Space: | N | DFL | N |
| Historic Property: | N | Remodel Property: | N |
| Multi-Family Redevelopment: | N | | |
| Township: | 32 | Section: | 10 |
| Range: | R1 |
Location |
| Address: | 3367 SW BALDA ST OAK HARBOR, WA 98277 | Mapsco: | |
| Neighborhood: | Cycle 1 | Map ID: | 117 |
| Neighborhood CD: | 1 |
Owner |
| Name: | YOUNG, WESTLEY L | Owner ID: | 281842 |
| Mailing Address: | 3367 SW BALDA ST OAK HARBOR, WA 98277 | % Ownership: | 100.0000000000% |
| | | Exemptions: | |
Taxes and Assessment Details
Values
| (+) Improvement Homesite Value: | + | $0 | |
| (+) Improvement Non-Homesite Value: | + | $194,982 | |
| (+) Land Homesite Value: | + | $0 | |
| (+) Land Non-Homesite Value: | + | $280,000 | |
| (+) Curr Use (HS): | + | $0 | $0 |
| (+) Curr Use (NHS): | + | $0 | $0 |
| | | -------------------------- | |
| (=) Market Value: | = | $474,982 | |
| (–) Productivity Loss: | – | $0 | |
| | | -------------------------- | |
| (=) Subtotal: | = | $474,982 | |
| (+) Senior Appraised Value: | + | $0 | |
| (+) Non-Senior Appraised Value: | + | $474,982 | |
| | | -------------------------- | |
| (=) Total Appraised Value: | = | $474,982 | |
| (–) Senior Exemption Loss: | – | $0 | |
| (–) Exemption Loss: | – | $0 | |
| | | -------------------------- | |
| (=) Taxable Value: | = | $474,982 | |
Taxing Jurisdiction
| Owner: | YOUNG, WESTLEY L | | |
| % Ownership: | 100.0000000000% | | |
| Total Value: | $474,982 | | |
| Tax Area: | 100 - APPRAISER-OH Schl Dist, in OH |
| CF | Conservation Futures | 0.0316035091 | $474,982 | $474,982 | $15.01 | | |
| CEM1 | Cemetery #1 | 0.0040320932 | $474,982 | $474,982 | $1.92 | | |
| COH | City of Oak Harbor | 2.3001546061 | $474,982 | $474,982 | $1,092.53 | | |
| OAKBOND | City of Oak Harbor BOND | 0.1926904192 | $474,982 | $474,982 | $91.52 | | |
| HOBOND | Hospital BOND | 0.1910887512 | $474,982 | $474,982 | $90.76 | | |
| HOGEN | Hospital GEN | 0.3902502903 | $474,982 | $474,982 | $185.36 | | |
| CE | County Current Expense | 0.3708482477 | $474,982 | $474,982 | $176.15 | | |
| ISLANDEMS | Hospital GEN (EMS) | 0.5000000000 | $474,982 | $474,982 | $237.49 | | |
| LIB | Library Sno-Isle GEN | 0.3153421757 | $474,982 | $474,982 | $149.78 | | |
| NWHIDPRMT | P & R N Whidbey GEN | 0.2004466701 | $474,982 | $474,982 | $95.21 | | |
| SCH201MO | School 201 Enrichment | 1.8559231640 | $474,982 | $474,982 | $881.53 | | |
| ST | State School | 1.3035497053 | $474,982 | $474,982 | $619.16 | | |
| ST2 | State School Part 2 | 0.8169543533 | $474,982 | $474,982 | $388.04 | | |
| | Total Tax Rate: | 8.4728839852 | | | | | |
| | | | | Taxes w/Current Exemptions: | $4,024.46 | | |
| | | | | Taxes w/o Exemptions: | $4,024.46 | | |
Improvement / Building
| Improvement #1: | RESIDENTIAL | State Code: | Y | 1450.0 sqft | Value: | $194,982 |
| Bathrooms: | 2 | Bedrooms: | 2 | | Ceiling: | BEAM PAINTED | Exterior Wall/Cover: | PLY/HARDBOARD T-111 | | Floor Covering: | CARPET/VINYL 60-40 | Floor Structure: | WOOD W/SUBFLOOR | | Foundation: | CONCRETE | Heating: | FHA ELECTRIC | | Interior Finish: | DRYWALL PAINT | Plumbing Fixture Cnt: | 9 | | Roof Slope: | 4" IN 12" | Roof Structure/Cover: | BEAM CONCRETE TILE |
|
| | Type | Description | Class CD | Sub Class CD | Year Built | Area |
| | BAS | BASE/MAIN FLOOR | 3 | 0 | 1971 | 1450.0 |
| | AGR | ATTACHED GARAGE | 3 | 0 | 1971 | 576.0 |
Sketch
Property Image
Land
| 1 | 15 | SQ (12001-21780) | 0.4300 | 18730.80 | 0.00 | 0.00 | 1.00 | $280,000 | $0 |
Roll Value History
| 2026 | N/A | N/A | N/A | N/A | N/A |
| 2025 | $194,982 | $280,000 | $0 | $474,982 | $474,982 |
| 2024 | $194,935 | $250,000 | $0 | $444,935 | $444,935 |
| 2023 | $194,935 | $250,000 | $0 | $444,935 | $444,935 |
| 2022 | $179,497 | $250,000 | $0 | $429,497 | $429,497 |
| 2021 | $158,679 | $185,000 | $0 | $343,679 | $343,679 |
| 2020 | $155,243 | $150,000 | $0 | $305,243 | $305,243 |
| 2019 | $113,136 | $200,000 | $0 | $313,136 | $313,136 |
| 2018 | $113,583 | $150,000 | $0 | $263,583 | $263,583 |
| 2017 | $113,590 | $150,000 | $0 | $263,590 | $263,590 |
| 2016 | $115,433 | $120,000 | $0 | $235,433 | $235,433 |
| 2015 | $117,276 | $120,000 | $0 | $237,276 | $237,276 |
| 2014 | $119,119 | $120,000 | $0 | $239,119 | $239,119 |
| 2013 | $120,962 | $123,250 | $0 | $244,212 | $244,212 |
| 2012 | $122,805 | $123,250 | $0 | $246,055 | $246,055 |
| 2011 | $130,906 | $145,000 | $0 | $275,906 | $275,906 |
| 2010 | $140,806 | $145,000 | $0 | $285,806 | $285,806 |
| 2009 | $146,892 | $179,080 | $0 | $325,972 | $325,972 |
| 2008 | $148,886 | $179,080 | $0 | $327,966 | $327,966 |
| 2007 | $150,886 | $179,080 | $0 | $329,966 | $329,966 |
Deed and Sales History
| 1 | 09/11/2017 | SPWARDEED | Special Warranty Deed | CAMBURN, DOROTHY M | YOUNG, WESTLEY L | | | $0.00 | 31011 | 4429809 |
| 2 | 11/13/2013 | TOD | Transfer On Death Deed | CAMBURN, DONALD R | CAMBURN, DOROTHY M | | | | 83806 | |
Payout Agreement
| No payout information available.. |