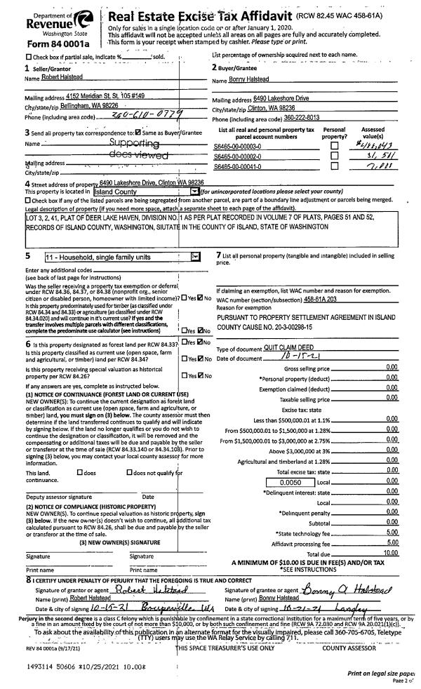
Property
Account |
| Property ID: | 178970 | Abbreviated Legal Description: | ADMIRALTY HTS LOT 36 EX N210' TGW N62.5' OF LOT 37 |
| Geographic ID: | S6015-00-00036-1 | Agent Code: | |
| Type: | Real | | |
| Tax Area: | 712 - APPRAISER-S Whid Schl Dist, outside Langley, improved, greater than 1 acre | Land Use Code | 11 |
| Open Space: | N | DFL | N |
| Historic Property: | N | Remodel Property: | N |
| Multi-Family Redevelopment: | N | | |
| Township: | | Section: | |
| Range: | |
Location |
| Address: | 6431 ADMIRALTY WAY FREELAND, WA 98249 | Mapsco: | |
| Neighborhood: | Cycle 3 | Map ID: | 348 |
| Neighborhood CD: | 3 |
Owner |
| Name: | TOMPT, TIM W | Owner ID: | 299386 |
| Mailing Address: | 6431 ADMIRALTY WAY FREELAND, WA 98249 | % Ownership: | 100.0000000000% |
| | | Exemptions: | |
Taxes and Assessment Details
Values
| (+) Improvement Homesite Value: | + | $0 | |
| (+) Improvement Non-Homesite Value: | + | $533,301 | |
| (+) Land Homesite Value: | + | $0 | |
| (+) Land Non-Homesite Value: | + | $410,000 | |
| (+) Curr Use (HS): | + | $0 | $0 |
| (+) Curr Use (NHS): | + | $0 | $0 |
| | | -------------------------- | |
| (=) Market Value: | = | $943,301 | |
| (–) Productivity Loss: | – | $0 | |
| | | -------------------------- | |
| (=) Subtotal: | = | $943,301 | |
| (+) Senior Appraised Value: | + | $0 | |
| (+) Non-Senior Appraised Value: | + | $943,301 | |
| | | -------------------------- | |
| (=) Total Appraised Value: | = | $943,301 | |
| (–) Senior Exemption Loss: | – | $0 | |
| (–) Exemption Loss: | – | $0 | |
| | | -------------------------- | |
| (=) Taxable Value: | = | $943,301 | |
Taxing Jurisdiction
| Owner: | TOMPT, TIM W | | |
| % Ownership: | 100.0000000000% | | |
| Total Value: | $943,301 | | |
| Tax Area: | 712 - APPRAISER-S Whid Schl Dist, outside Langley, improved, greater than 1 acre |
| CF | Conservation Futures | 0.0316035091 | $943,301 | $943,301 | $29.81 | | |
| FIRE3 | Fire & Rescue Dist #3 S Whidbey GEN | 1.2004855531 | $943,301 | $943,301 | $1,132.42 | | |
| HOBOND | Hospital BOND | 0.1910887512 | $943,301 | $943,301 | $180.25 | | |
| HOGEN | Hospital GEN | 0.3902502903 | $943,301 | $943,301 | $368.12 | | |
| CE | County Current Expense | 0.3708482477 | $943,301 | $943,301 | $349.82 | | |
| CR | County Roads | 0.4584763726 | $943,301 | $943,301 | $432.48 | | |
| ISLANDEMS | Hospital GEN (EMS) | 0.5000000000 | $943,301 | $943,301 | $471.65 | | |
| LIB | Library Sno-Isle GEN | 0.3153421757 | $943,301 | $943,301 | $297.46 | | |
| PORTWHID | Port of S Whidbey GEN | 0.1094540357 | $943,301 | $943,301 | $103.25 | | |
| SCH206BOND | School 206 BOND | 0.3161759235 | $943,301 | $943,301 | $298.25 | | |
| SCH206MO | School 206 Enrichment | 0.4547169547 | $943,301 | $943,301 | $428.93 | | |
| ST | State School | 1.3035497053 | $943,301 | $943,301 | $1,229.64 | | |
| ST2 | State School Part 2 | 0.8169543533 | $943,301 | $943,301 | $770.63 | | |
| SWHIDPRBD | P & R S Whidbey BOND | 0.0152817568 | $943,301 | $943,301 | $14.42 | | |
| SWHIDPRBD2 | P & R S Whidbey BOND2 | 0.0138911264 | $943,301 | $943,301 | $13.10 | | |
| SWHIDPRMT | P & R S Whidbey GEN | 0.2053334452 | $943,301 | $943,301 | $193.69 | | |
| | Total Tax Rate: | 6.6934522006 | | | | | |
| | | | | Taxes w/Current Exemptions: | $6,313.92 | | |
| | | | | Taxes w/o Exemptions: | $6,313.92 | | |
Improvement / Building
| Improvement #1: | RESIDENTIAL | State Code: | Y | 2224.0 sqft | Value: | $302,357 |
| Bathrooms: | 1 | Bedrooms: | 2 | | Ceiling: | DRYWALL PAINTED | Exterior Wall/Cover: | WOOD SIDING | | Floor Covering: | VINYL 100% | Floor Structure: | WOOD W/SUBFLOOR | | Foundation: | CONCRETE | Heating: | FHA ELECTRIC | | Interior Finish: | DRYWALL PAINT | Plumbing Fixture Cnt: | 6 | | Roof Slope: | 4" IN 12" | Roof Structure/Cover: | CJ ASPHALT |
|
| | Type | Description | Class CD | Sub Class CD | Year Built | Area |
| | BAS | BASE/MAIN FLOOR | 3 | 0 | 1998 | 910.0 |
| | DWN | DOWNSTAIRS LIVING AREA | 3 | 0 | 1998 | 1314.0 |
| | AGR | ATTACHED GARAGE | 3 | 0 | 1998 | 576.0 |
| | BAW | BALCONY WOOD RAIL | 3 | 0 | 1998 | 80.0 |
| | OWP | OPEN WOOD PORCH W/STEPS | 3 | 0 | 1998 | 204.0 |
| Improvement #2: | RESIDENTIAL | State Code: | Y | 1411.0 sqft | Value: | $230,944 |
| Bathrooms: | 1 | Bedrooms: | 1 | | Ceiling: | DRYWALL PAINTED | Exterior Wall/Cover: | WOOD SIDING | | Floor Covering: | CARPET/VINYL 80-20 | Floor Structure: | WOOD W/SUBFLOOR | | Foundation: | CONCRETE | Heating: | FHA ELECTRIC | | Interior Finish: | DRYWALL PAINT | Plumbing Fixture Cnt: | 6 | | Roof Slope: | 4" IN 12" | Roof Structure/Cover: | CJ ASPHALT |
|
| | Type | Description | Class CD | Sub Class CD | Year Built | Area |
| | BAS | BASE/MAIN FLOOR | 3 | 0 | 1976 | 1141.0 |
| | DWN | DOWNSTAIRS LIVING AREA | 3 | 0 | 1976 | 270.0 |
| | OP4 | OPEN PORCH W/CEILING-ROOF | 3 | 0 | 1976 | 120.0 |
| | BIG | BUILT IN GARAGE | 3 | 0 | 1976 | 875.0 |
| | BAW | BALCONY WOOD RAIL | 3 | 0 | 1976 | 64.0 |
| | OWP | OPEN WOOD PORCH W/STEPS | 3 | 0 | 1976 | 252.4 |
Sketch
Property Image
Land
| 1 | 32 | AC (03.01-09.99) | 3.8400 | 0.00 | 0.00 | 0.00 | 1.00 | $410,000 | $0 |
Roll Value History
| 2026 | N/A | N/A | N/A | N/A | N/A |
| 2025 | $533,301 | $410,000 | $0 | $943,301 | $943,301 |
| 2024 | $540,173 | $390,000 | $0 | $930,173 | $930,173 |
| 2023 | $547,048 | $330,000 | $0 | $877,048 | $877,048 |
| 2022 | $501,592 | $300,000 | $0 | $801,592 | $801,592 |
| 2021 | $441,553 | $230,000 | $0 | $671,553 | $671,553 |
| 2020 | $386,256 | $205,000 | $0 | $591,256 | $591,256 |
| 2019 | $261,361 | $230,000 | $0 | $491,361 | $491,361 |
| 2018 | $262,256 | $210,000 | $0 | $472,256 | $472,256 |
| 2017 | $263,947 | $190,000 | $0 | $453,947 | $453,947 |
| 2016 | $267,534 | $150,000 | $0 | $417,534 | $417,534 |
| 2015 | $271,118 | $135,000 | $0 | $406,118 | $406,118 |
| 2014 | $274,704 | $135,000 | $0 | $409,704 | $409,704 |
| 2013 | $284,987 | $126,720 | $0 | $411,707 | $411,707 |
| 2012 | $288,653 | $126,720 | $0 | $415,373 | $415,373 |
| 2011 | $292,318 | $126,720 | $0 | $419,038 | $419,038 |
| 2010 | $301,043 | $126,720 | $0 | $427,763 | $427,763 |
| 2009 | $314,050 | $149,760 | $0 | $463,810 | $463,810 |
| 2008 | $318,216 | $186,889 | $0 | $505,105 | $505,105 |
| 2007 | $320,397 | $188,928 | $0 | $509,325 | $509,325 |
Deed and Sales History
| 1 | 04/29/2021 | WD | Warranty Deed | ANDERSON, TREVOR R | TOMPT, TIM W | | | $815,000.00 | 48262 | 4519473 |
| 2 | 08/21/2013 | WD | Warranty Deed | JACKSON, WILLIAM A | ANDERSON, TREVOR R | | | $300,000.00 | 12482 | 4346734 |
Payout Agreement
| No payout information available.. |