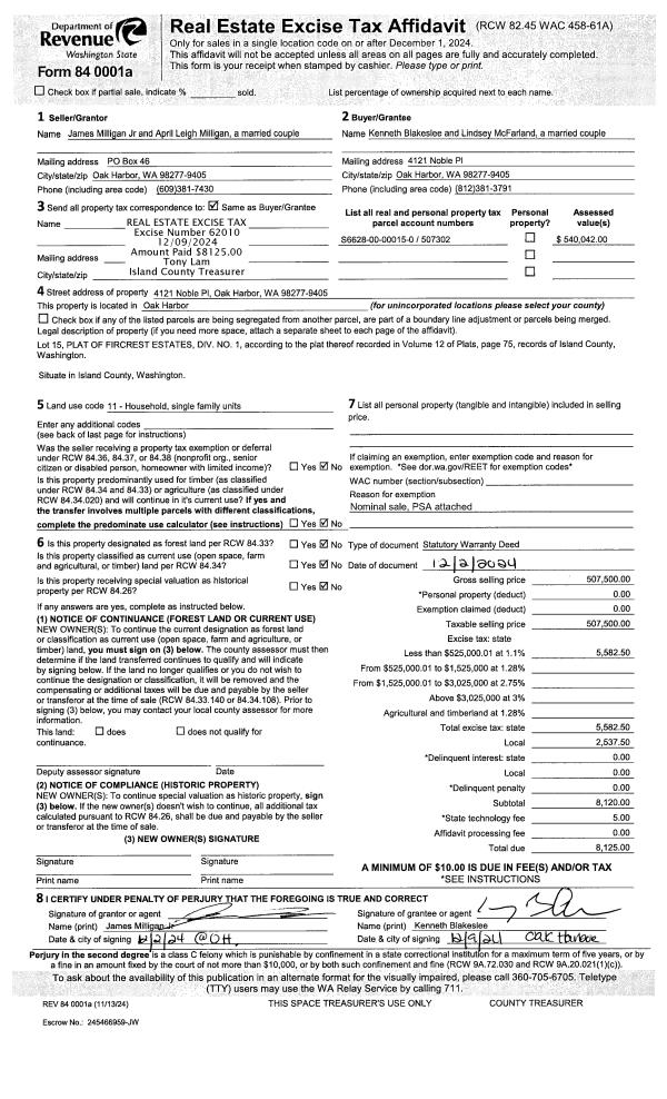
Property
Account |
| Property ID: | 179363 | Abbreviated Legal Description: | ADMRLTY IN LOT 35 |
| Geographic ID: | S6020-00-00035-0 | Agent Code: | |
| Type: | Real | | |
| Tax Area: | 710 - APPRAISER-S Whid Schl Dist, outside Langley, improved & 1 acre or less | Land Use Code | 11 |
| Open Space: | N | DFL | N |
| Historic Property: | N | Remodel Property: | N |
| Multi-Family Redevelopment: | N | | |
| Township: | | Section: | |
| Range: | |
Location |
| Address: | 6460 EBB TIDE LN FREELAND, WA 98249 | Mapsco: | |
| Neighborhood: | Cycle 3 | Map ID: | 348 |
| Neighborhood CD: | 3 |
Owner |
| Name: | PIERCE, BRITENAE | Owner ID: | 309473 |
| Mailing Address: | MATTHEW PIERCE 1823 9TH AVE W SEATTLE, WA 98119 | % Ownership: | 100.0000000000% |
| | | Exemptions: | |
Taxes and Assessment Details
Values
| (+) Improvement Homesite Value: | + | $0 | |
| (+) Improvement Non-Homesite Value: | + | $146,942 | |
| (+) Land Homesite Value: | + | $0 | |
| (+) Land Non-Homesite Value: | + | $900,000 | |
| (+) Curr Use (HS): | + | $0 | $0 |
| (+) Curr Use (NHS): | + | $0 | $0 |
| | | -------------------------- | |
| (=) Market Value: | = | $1,046,942 | |
| (–) Productivity Loss: | – | $0 | |
| | | -------------------------- | |
| (=) Subtotal: | = | $1,046,942 | |
| (+) Senior Appraised Value: | + | $0 | |
| (+) Non-Senior Appraised Value: | + | $1,046,942 | |
| | | -------------------------- | |
| (=) Total Appraised Value: | = | $1,046,942 | |
| (–) Senior Exemption Loss: | – | $0 | |
| (–) Exemption Loss: | – | $0 | |
| | | -------------------------- | |
| (=) Taxable Value: | = | $1,046,942 | |
Taxing Jurisdiction
| Owner: | PIERCE, BRITENAE | | |
| % Ownership: | 100.0000000000% | | |
| Total Value: | $1,046,942 | | |
| Tax Area: | 710 - APPRAISER-S Whid Schl Dist, outside Langley, improved & 1 acre or less |
| CF | Conservation Futures | 0.0316035091 | $1,046,942 | $1,046,942 | $33.09 | | |
| FIRE3 | Fire & Rescue Dist #3 S Whidbey GEN | 1.2004855531 | $1,046,942 | $1,046,942 | $1,256.84 | | |
| HOBOND | Hospital BOND | 0.1910887512 | $1,046,942 | $1,046,942 | $200.06 | | |
| HOGEN | Hospital GEN | 0.3902502903 | $1,046,942 | $1,046,942 | $408.57 | | |
| CE | County Current Expense | 0.3708482477 | $1,046,942 | $1,046,942 | $388.26 | | |
| CR | County Roads | 0.4584763726 | $1,046,942 | $1,046,942 | $480.00 | | |
| ISLANDEMS | Hospital GEN (EMS) | 0.5000000000 | $1,046,942 | $1,046,942 | $523.47 | | |
| LIB | Library Sno-Isle GEN | 0.3153421757 | $1,046,942 | $1,046,942 | $330.14 | | |
| PORTWHID | Port of S Whidbey GEN | 0.1094540357 | $1,046,942 | $1,046,942 | $114.59 | | |
| SCH206BOND | School 206 BOND | 0.3161759235 | $1,046,942 | $1,046,942 | $331.02 | | |
| SCH206MO | School 206 Enrichment | 0.4547169547 | $1,046,942 | $1,046,942 | $476.06 | | |
| ST | State School | 1.3035497053 | $1,046,942 | $1,046,942 | $1,364.74 | | |
| ST2 | State School Part 2 | 0.8169543533 | $1,046,942 | $1,046,942 | $855.30 | | |
| SWHIDPRBD | P & R S Whidbey BOND | 0.0152817568 | $1,046,942 | $1,046,942 | $16.00 | | |
| SWHIDPRBD2 | P & R S Whidbey BOND2 | 0.0138911264 | $1,046,942 | $1,046,942 | $14.54 | | |
| SWHIDPRMT | P & R S Whidbey GEN | 0.2053334452 | $1,046,942 | $1,046,942 | $214.97 | | |
| | Total Tax Rate: | 6.6934522006 | | | | | |
| | | | | Taxes w/Current Exemptions: | $7,007.65 | | |
| | | | | Taxes w/o Exemptions: | $7,007.65 | | |
Improvement / Building
| Improvement #1: | RESIDENTIAL | State Code: | Y | 1030.0 sqft | Value: | $146,942 |
| Bathrooms: | 1 | Bedrooms: | 3 | | Ceiling: | BEAM PAINTED | Exterior Wall/Cover: | WOOD SIDING | | Floor Covering: | CARPET/VINYL 80-20 | Floor Structure: | WOOD W/SUBFLOOR | | Foundation: | CONCRETE BLOCKS | Heating: | BASEBOARD ELECTRIC | | Interior Finish: | DRYWALL PAINT | Plumbing Fixture Cnt: | 5 | | Roof Slope: | 3" IN 12" | Roof Structure/Cover: | BEAM ALUMINUM HEAVY |
|
| | Type | Description | Class CD | Sub Class CD | Year Built | Area |
| | BAS | BASE/MAIN FLOOR | 3 | 0 | 1963 | 1030.0 |
| | OWP | OPEN WOOD PORCH W/STEPS | 3 | 0 | 1963 | 182.0 |
| | OWR | OPEN WOOD PORCH W/STEPS/ROOF | 3 | 0 | 1963 | 88.0 |
| | OWC | OPEN WOOD PORCH W/STEPS/ROOF/C | 3 | 0 | 1963 | 208.0 |
Sketch
Property Image
Land
| 1 | LB | LOW BANK | 0.1200 | 5227.20 | 30.00 | 0.00 | 1.00 | $900,000 | $0 |
Roll Value History
| 2026 | N/A | N/A | N/A | N/A | N/A |
| 2025 | $146,942 | $900,000 | $0 | $1,046,942 | $1,046,942 |
| 2024 | $149,589 | $800,000 | $0 | $949,589 | $949,589 |
| 2023 | $149,000 | $800,000 | $0 | $949,000 | $949,000 |
| 2022 | $136,927 | $750,000 | $0 | $886,927 | $886,927 |
| 2021 | $120,809 | $500,000 | $0 | $620,809 | $620,809 |
| 2020 | $118,162 | $400,000 | $0 | $518,162 | $518,162 |
| 2019 | $59,950 | $450,000 | $0 | $509,950 | $509,950 |
| 2018 | $60,249 | $400,000 | $0 | $460,249 | $460,249 |
| 2017 | $60,845 | $400,000 | $0 | $460,845 | $460,845 |
| 2016 | $62,038 | $400,000 | $0 | $462,038 | $462,038 |
| 2015 | $63,232 | $400,000 | $0 | $463,232 | $463,232 |
| 2014 | $64,424 | $500,000 | $0 | $564,424 | $564,424 |
| 2013 | $65,960 | $495,574 | $0 | $561,534 | $561,534 |
| 2012 | $67,153 | $495,574 | $0 | $562,727 | $562,727 |
| 2011 | $68,346 | $495,574 | $0 | $563,920 | $563,920 |
| 2010 | $75,250 | $495,574 | $0 | $570,824 | $570,824 |
| 2009 | $78,638 | $592,446 | $0 | $671,084 | $671,084 |
| 2008 | $79,810 | $651,588 | $0 | $731,398 | $731,398 |
| 2007 | $80,536 | $651,607 | $0 | $732,143 | $732,143 |
Deed and Sales History
| 1 | 07/20/2023 | WD | Warranty Deed | LANE, SUZANNE | PIERCE, BRITENAE | | | $1,335,000.00 | 57441 | 4562785 |
|   | |
| 2 | 08/03/2006 | WD | Warranty Deed | BRODERICK, ROBERT J | LANE, SUZANNE | | | $732,452.00 | 63401 | 4178367 |
| 3 | 01/01/1900 | OTHER | Other - Misc. Documents | Unknown | BRODERICK, ROBERT J | | | $0.00 | 0 | 0 |
Payout Agreement
| No payout information available.. |