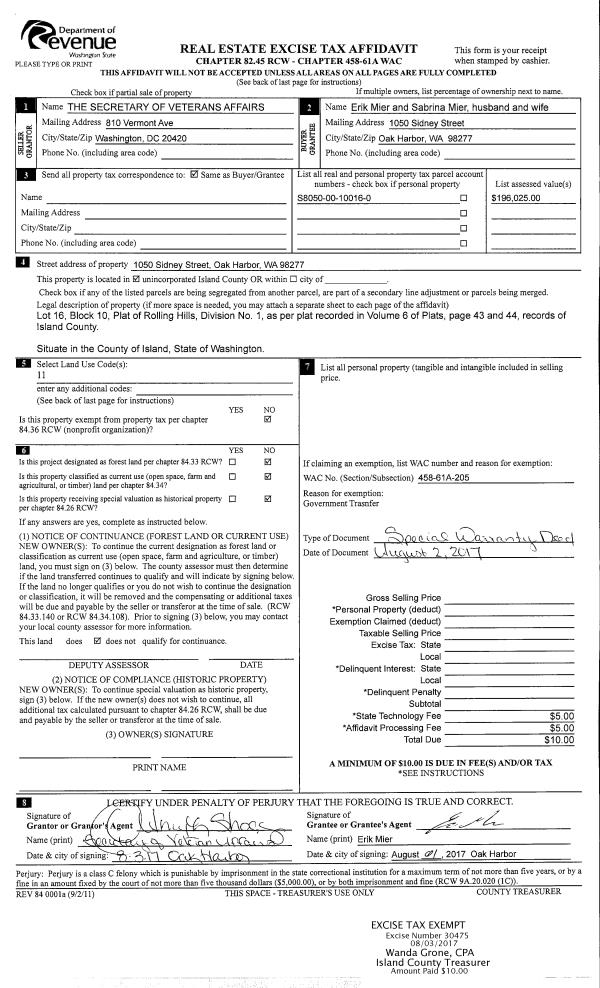
Property
Account |
| Property ID: | 179568 | Abbreviated Legal Description: | Alexanders Glenwood,s Lot 4 & 5,s Blk 7;s LOT 5 C-BLC AF#4428620s |
| Geographic ID: | S6025-00-07005-0 | Agent Code: | |
| Type: | Real | | |
| Tax Area: | 300 - APPRAISER-Cpvl Schl Dist, in Cpvl | Land Use Code | 59 |
| Open Space: | N | DFL | N |
| Historic Property: | N | Remodel Property: | N |
| Multi-Family Redevelopment: | N | | |
| Township: | | Section: | |
| Range: | |
Location |
| Address: | 17 NW FRONT ST COUPEVILLE, WA 98239 | Mapsco: | |
| Neighborhood: | 2 Front Street Comercial | Map ID: | 175 |
| Neighborhood CD: | 21cCPfront |
Owner |
| Name: | JL NORRIS LLC | Owner ID: | 278077 |
| Mailing Address: | 601 NW KRUEGER ST COUPEVILLE, WA 98239 | % Ownership: | 100.0000000000% |
| | | Exemptions: | |
Taxes and Assessment Details
Values
| (+) Improvement Homesite Value: | + | $0 | |
| (+) Improvement Non-Homesite Value: | + | $117,679 | |
| (+) Land Homesite Value: | + | $0 | |
| (+) Land Non-Homesite Value: | + | $289,674 | |
| (+) Curr Use (HS): | + | $0 | $0 |
| (+) Curr Use (NHS): | + | $0 | $0 |
| | | -------------------------- | |
| (=) Market Value: | = | $407,353 | |
| (–) Productivity Loss: | – | $0 | |
| | | -------------------------- | |
| (=) Subtotal: | = | $407,353 | |
| (+) Senior Appraised Value: | + | $0 | |
| (+) Non-Senior Appraised Value: | + | $407,353 | |
| | | -------------------------- | |
| (=) Total Appraised Value: | = | $407,353 | |
| (–) Senior Exemption Loss: | – | $0 | |
| (–) Exemption Loss: | – | $0 | |
| | | -------------------------- | |
| (=) Taxable Value: | = | $407,353 | |
Taxing Jurisdiction
| Owner: | JL NORRIS LLC | | |
| % Ownership: | 100.0000000000% | | |
| Total Value: | $407,353 | | |
| Tax Area: | 300 - APPRAISER-Cpvl Schl Dist, in Cpvl |
| CF | Conservation Futures | 0.0316035091 | $407,353 | $407,353 | $12.87 | | |
| CEM2 | Cemetery #2 | 0.0095056933 | $407,353 | $407,353 | $3.87 | | |
| COUP | City: Town of Coupeville | 0.8426414490 | $407,353 | $407,353 | $343.25 | | |
| FIRE5 | Fire & Rescue Dist #5 C Whidbey GEN | 1.2008080668 | $407,353 | $407,353 | $489.15 | | |
| FIRE5BOND | Fire & Rescue Dist #5 C Whidbey BOND | 0.1400090713 | $407,353 | $407,353 | $57.03 | | |
| HOBOND | Hospital BOND | 0.1910887512 | $407,353 | $407,353 | $77.84 | | |
| HOGEN | Hospital GEN | 0.3902502903 | $407,353 | $407,353 | $158.97 | | |
| CE | County Current Expense | 0.3708482477 | $407,353 | $407,353 | $151.07 | | |
| ISLANDEMS | Hospital GEN (EMS) | 0.5000000000 | $407,353 | $407,353 | $203.68 | | |
| LIB | Library Sno-Isle GEN | 0.3153421757 | $407,353 | $407,353 | $128.46 | | |
| LIBCAP | Library Sno-Isle BOND (Cap Fac Imp Area) | 0.0543427938 | $407,353 | $407,353 | $22.14 | | |
| POCOUP | Port of Coupeville GEN | 0.1093371703 | $407,353 | $407,353 | $44.54 | | |
| POCOUPIDD | Port of Coupeville IDD | 0.3409740022 | $407,353 | $407,353 | $138.90 | | |
| COUPSDTECH | School 204 CP (TECH) | 0.7545480007 | $407,353 | $407,353 | $307.37 | | |
| SCH204MO | School 204 Enrichment | 0.6716186034 | $407,353 | $407,353 | $273.59 | | |
| ST | State School | 1.3035497053 | $407,353 | $407,353 | $531.00 | | |
| ST2 | State School Part 2 | 0.8169543533 | $407,353 | $407,353 | $332.79 | | |
| | Total Tax Rate: | 8.0434218834 | | | | | |
| | | | | Taxes w/Current Exemptions: | $3,276.52 | | |
| | | | | Taxes w/o Exemptions: | $3,276.52 | | |
Improvement / Building
| Improvement #1: | COMMERCIAL | State Code: | F1 | 972.0 sqft | Value: | $117,679 |
| Bathrooms: | 0 | Bedrooms: | 0 | | Ceiling: | DRY WALL SPRAYED | Exterior Wall/Cover: | PLYWD/WD OR ST STUDS | | Floor Covering: | HARDWOOD 100% | Floor Structure: | WOOD ON WOOD JOIST | | Foundation: | CONCRETE | Heating: | ZONED AC/HEAT | | Interior Finish: | RETAIL | Plumbing Fixture Cnt: | 1 | | Roof Structure/Cover: | COMP OPEN WOOD |   |   |
|
| | Type | Description | Class CD | Sub Class CD | Year Built | Area |
| | BAS | BASE/MAIN FLOOR | 2 | 0 | 1909 | 486.0 |
| | OP1 | OPEN PORCH SLAB | 2 | 0 | 1909 | 216.0 |
| | OWP | OPEN WOOD PORCH W/STEPS | 2 | 0 | 1909 | 28.0 |
| | UPS | UPPER STORY | 2 | 0 | 1909 | 486.0 |
Sketch
Property Image
Land
| 1 | 68 | COMMERCIAL RETAIL | 0.0700 | 3049.20 | 0.00 | 0.00 | 1.00 | $289,674 | $0 |
Roll Value History
| 2026 | N/A | N/A | N/A | N/A | N/A |
| 2025 | $117,679 | $289,674 | $0 | $407,353 | $407,353 |
| 2024 | $124,465 | $289,674 | $0 | $414,139 | $414,139 |
| 2023 | $131,252 | $289,674 | $0 | $420,926 | $420,926 |
| 2022 | $104,805 | $289,674 | $0 | $394,479 | $394,479 |
| 2021 | $104,467 | $289,674 | $0 | $394,141 | $394,141 |
| 2020 | $104,425 | $289,674 | $0 | $394,099 | $394,099 |
| 2019 | $98,445 | $289,674 | $0 | $388,119 | $388,119 |
| 2018 | $100,774 | $251,189 | $0 | $351,963 | $351,963 |
| 2017 | $100,792 | $105,764 | $0 | $206,556 | $206,556 |
| 2016 | $100,830 | $105,764 | $0 | $206,594 | $206,594 |
| 2015 | $105,778 | $105,764 | $0 | $211,542 | $211,542 |
| 2014 | $105,853 | $105,764 | $0 | $211,617 | $211,617 |
| 2013 | $89,584 | $105,760 | $0 | $195,344 | $195,344 |
| 2012 | $95,856 | $162,262 | $0 | $258,118 | $258,118 |
| 2011 | $95,856 | $162,262 | $0 | $258,118 | $258,118 |
| 2010 | $71,329 | $162,262 | $0 | $233,591 | $233,591 |
| 2009 | $72,456 | $178,311 | $0 | $250,767 | $250,767 |
| 2008 | $76,848 | $178,311 | $0 | $255,159 | $255,159 |
| 2007 | $79,054 | $178,311 | $0 | $257,365 | $257,365 |
Deed and Sales History
| 1 | 05/24/2017 | | | JL NORRIS LLC | JL NORRIS LLC | | | $0.00 | 30742 | 4428620 |
| 2 | 05/24/2017 | QCD | Quit Claim Deed | JL NORRIS LLC | JL NORRIS LLC | | | $0.00 | 30740 | 4428620 |
| 3 | 12/29/2016 | WD | Warranty Deed | WHELAN, PAUL | JL NORRIS LLC | | | $270,000.00 | 27558 | 4414344 |
| 4 | 12/01/2005 | PRD | Personal Representatives Deed | WHELAN ADMIN, DIANE | WHELAN, PAUL | | | $0.00 | 56232 | 4157252 |
| 5 | 12/01/2005 | PRD | Personal Representatives Deed | WHELAN, PETER & | WHELAN ADMIN, DIANE | | | $0.00 | 56231 | 4157251 |
| 6 | 01/01/1963 | QCD | Quit Claim Deed | MCCORMICK, LAWRENCE P | WHELAN, PETER & | | | $0.00 | 13743 | 0 |
Payout Agreement
| No payout information available.. |