Property
Account |
| Property ID: | 179648 | Abbreviated Legal Description: | ALEX GLEN S50' OF E30' VAC FAY ST BTW BLKS 6 & 8 |
| Geographic ID: | S6025-00-08000-3 | Agent Code: | |
| Type: | Real | | |
| Tax Area: | 300 - APPRAISER-Cpvl Schl Dist, in Cpvl | Land Use Code | 79 |
| Open Space: | N | DFL | N |
| Historic Property: | N | Remodel Property: | N |
| Multi-Family Redevelopment: | N | | |
| Township: | | Section: | |
| Range: | |
Location |
| Address: | | Mapsco: | |
| Neighborhood: | Area 2 Commercial North West | Map ID: | 175 |
| Neighborhood CD: | 21cCPwest |
Owner |
| Name: | COREY TTEE, NATHAN DAVID | Owner ID: | 9175 |
| Mailing Address: | PO BOX 989 OAK HARBOR, WA 98277-0989 | % Ownership: | 100.0000000000% |
| | | Exemptions: | |
Taxes and Assessment Details
Values
| (+) Improvement Homesite Value: | + | $0 | |
| (+) Improvement Non-Homesite Value: | + | $10,733 | |
| (+) Land Homesite Value: | + | $0 | |
| (+) Land Non-Homesite Value: | + | $80,000 | |
| (+) Curr Use (HS): | + | $0 | $0 |
| (+) Curr Use (NHS): | + | $0 | $0 |
| | | -------------------------- | |
| (=) Market Value: | = | $90,733 | |
| (–) Productivity Loss: | – | $0 | |
| | | -------------------------- | |
| (=) Subtotal: | = | $90,733 | |
| (+) Senior Appraised Value: | + | $0 | |
| (+) Non-Senior Appraised Value: | + | $90,733 | |
| | | -------------------------- | |
| (=) Total Appraised Value: | = | $90,733 | |
| (–) Senior Exemption Loss: | – | $0 | |
| (–) Exemption Loss: | – | $0 | |
| | | -------------------------- | |
| (=) Taxable Value: | = | $90,733 | |
Taxing Jurisdiction
| Owner: | COREY TTEE, NATHAN DAVID | | |
| % Ownership: | 100.0000000000% | | |
| Total Value: | $90,733 | | |
| Tax Area: | 300 - APPRAISER-Cpvl Schl Dist, in Cpvl |
| CF | Conservation Futures | 0.0316035091 | $90,733 | $90,733 | $2.87 | | |
| CEM2 | Cemetery #2 | 0.0095056933 | $90,733 | $90,733 | $0.86 | | |
| COUP | City: Town of Coupeville | 0.8426414490 | $90,733 | $90,733 | $76.46 | | |
| FIRE5 | Fire & Rescue Dist #5 C Whidbey GEN | 1.2008080668 | $90,733 | $90,733 | $108.95 | | |
| FIRE5BOND | Fire & Rescue Dist #5 C Whidbey BOND | 0.1400090713 | $90,733 | $90,733 | $12.70 | | |
| HOBOND | Hospital BOND | 0.1910887512 | $90,733 | $90,733 | $17.34 | | |
| HOGEN | Hospital GEN | 0.3902502903 | $90,733 | $90,733 | $35.41 | | |
| CE | County Current Expense | 0.3708482477 | $90,733 | $90,733 | $33.65 | | |
| ISLANDEMS | Hospital GEN (EMS) | 0.5000000000 | $90,733 | $90,733 | $45.37 | | |
| LIB | Library Sno-Isle GEN | 0.3153421757 | $90,733 | $90,733 | $28.61 | | |
| LIBCAP | Library Sno-Isle BOND (Cap Fac Imp Area) | 0.0543427938 | $90,733 | $90,733 | $4.93 | | |
| POCOUP | Port of Coupeville GEN | 0.1093371703 | $90,733 | $90,733 | $9.92 | | |
| POCOUPIDD | Port of Coupeville IDD | 0.3409740022 | $90,733 | $90,733 | $30.94 | | |
| COUPSDTECH | School 204 CP (TECH) | 0.7545480007 | $90,733 | $90,733 | $68.46 | | |
| SCH204MO | School 204 Enrichment | 0.6716186034 | $90,733 | $90,733 | $60.94 | | |
| ST | State School | 1.3035497053 | $90,733 | $90,733 | $118.27 | | |
| ST2 | State School Part 2 | 0.8169543533 | $90,733 | $90,733 | $74.12 | | |
| | Total Tax Rate: | 8.0434218834 | | | | | |
| | | | | Taxes w/Current Exemptions: | $729.80 | | |
| | | | | Taxes w/o Exemptions: | $729.80 | | |
Improvement / Building
| Improvement #1: | COMMERCIAL | State Code: | F1 | 0.0 sqft | Value: | $10,733 |
Sketch
| No sketches available for this property. |
Property Image
Land
| 1 | 68 | COMMERCIAL RETAIL | 0.0344 | 1498.46 | 0.00 | 0.00 | 1.00 | $80,000 | $0 |
Roll Value History
| 2026 | N/A | N/A | N/A | N/A | N/A |
| 2025 | $10,733 | $80,000 | $0 | $90,733 | $90,733 |
| 2024 | $3,900 | $80,000 | $0 | $83,900 | $83,900 |
| 2023 | $3,900 | $80,000 | $0 | $83,900 | $83,900 |
| 2022 | $3,900 | $75,000 | $0 | $78,900 | $78,900 |
| 2021 | $3,900 | $75,000 | $0 | $78,900 | $78,900 |
| 2020 | $3,900 | $75,000 | $0 | $78,900 | $78,900 |
| 2019 | $3,900 | $75,000 | $0 | $78,900 | $78,900 |
| 2018 | $3,900 | $75,000 | $0 | $78,900 | $78,900 |
| 2017 | $3,900 | $23,601 | $0 | $27,501 | $27,501 |
| 2016 | $3,900 | $23,601 | $0 | $27,501 | $27,501 |
| 2015 | $3,900 | $23,601 | $0 | $27,501 | $27,501 |
| 2014 | $3,900 | $23,601 | $0 | $27,501 | $27,501 |
| 2013 | $3,900 | $23,625 | $0 | $27,525 | $27,525 |
| 2012 | $3,900 | $23,474 | $0 | $27,374 | $27,374 |
| 2011 | $3,900 | $23,474 | $0 | $27,374 | $27,374 |
| 2010 | $3,900 | $23,474 | $0 | $27,374 | $27,374 |
| 2009 | $3,900 | $28,350 | $0 | $32,250 | $32,250 |
| 2008 | $3,900 | $28,350 | $0 | $32,250 | $32,250 |
| 2007 | $3,900 | $28,875 | $0 | $32,775 | $32,775 |
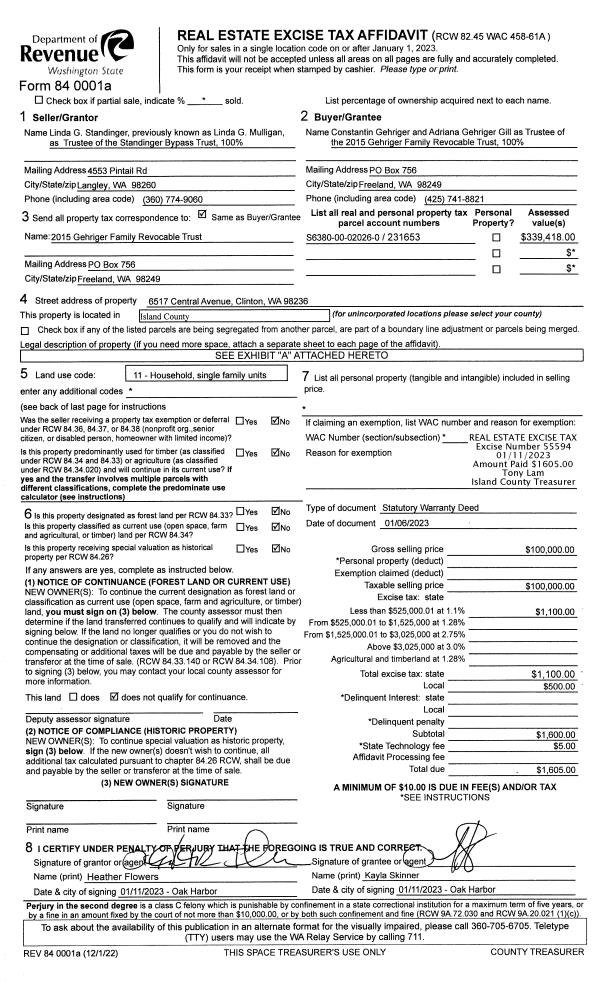
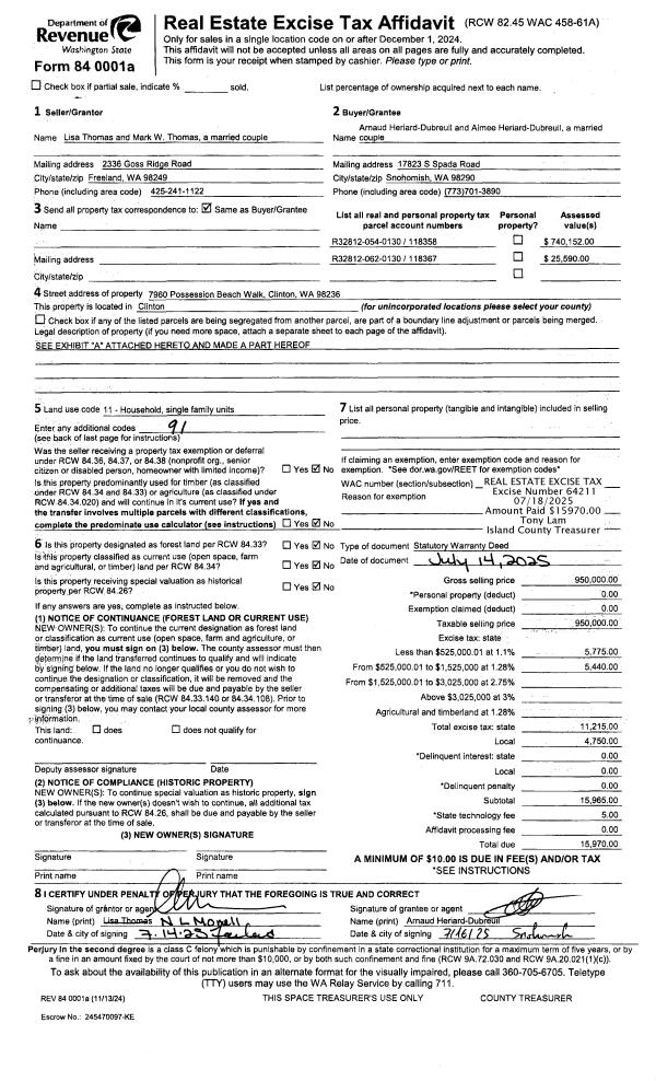
Deed and Sales History
| 1 | 12/19/2022 | TRUSTEED | Trustee's Deed | COREY TTEE, NATHAN DAVID | COREY TTEE, NATHAN DAVID | | | $0.00 | 55482 | 4555185 |
| 2 | 12/21/2006 | 5 | DNU - Marriage License/Name Change | COREY TTEE, NATHAN DAVID | COREY TTEE, NATHAN DAVID | | | $0.00 | 65308 | 4189848 |
| 3 | 12/21/2006 | ESTSEPPROP | Establish Separate Property | COREY, NATHAN DAVID | COREY TTEE, NATHAN DAVID | | | $0.00 | 65307 | 4189847 |
| 4 | 12/21/2006 | PRD | Personal Representatives Deed | COREY, STUART | COREY, NATHAN DAVID | | | $0.00 | 65306 | 4189846 |
| 5 | 05/01/1980 | CD | DNU - Correction Deed | EELKEMA, CHARLES | COREY, STUART | | | $9,000.00 | 1578 | 368565 |
| 6 | 01/01/1900 | OTHER | Other - Misc. Documents | Unknown | EELKEMA, CHARLES | | | $0.00 | 0 | 0 |
Payout Agreement
| No payout information available.. |