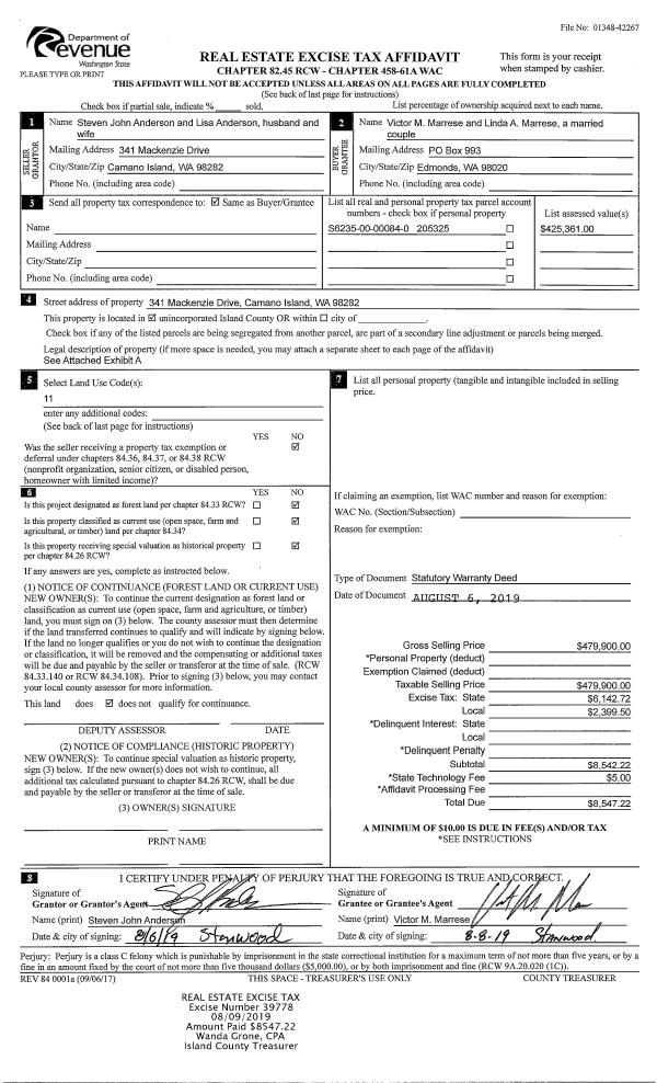
Property
Account |
| Property ID: | 180002 | Abbreviated Legal Description: | ANDER PK LOT 1 BLK 2 |
| Geographic ID: | S6030-00-02001-0 | Agent Code: | |
| Type: | Real | | |
| Tax Area: | 719 - APPRAISER-S Whid Schl Dist, outside Langley, vacant & 50 acres or less | Land Use Code | 99 |
| Open Space: | N | DFL | N |
| Historic Property: | N | Remodel Property: | N |
| Multi-Family Redevelopment: | N | | |
| Township: | | Section: | |
| Range: | |
Location |
| Address: | ANDER PARK RD FREELAND, WA 98249 | Mapsco: | |
| Neighborhood: | Cycle 3 | Map ID: | 412 |
| Neighborhood CD: | 3 |
Owner |
| Name: | REEVES RESIDENTIAL CONSTRUCTION, LLC | Owner ID: | 292651 |
| Mailing Address: | 3784 SARATOGA RD LANGLEY, WA 98260 | % Ownership: | 100.0000000000% |
| | | Exemptions: | |
Taxes and Assessment Details
Values
| (+) Improvement Homesite Value: | + | $0 | |
| (+) Improvement Non-Homesite Value: | + | $0 | |
| (+) Land Homesite Value: | + | $0 | |
| (+) Land Non-Homesite Value: | + | $12,000 | |
| (+) Curr Use (HS): | + | $0 | $0 |
| (+) Curr Use (NHS): | + | $0 | $0 |
| | | -------------------------- | |
| (=) Market Value: | = | $12,000 | |
| (–) Productivity Loss: | – | $0 | |
| | | -------------------------- | |
| (=) Subtotal: | = | $12,000 | |
| (+) Senior Appraised Value: | + | $0 | |
| (+) Non-Senior Appraised Value: | + | $12,000 | |
| | | -------------------------- | |
| (=) Total Appraised Value: | = | $12,000 | |
| (–) Senior Exemption Loss: | – | $0 | |
| (–) Exemption Loss: | – | $0 | |
| | | -------------------------- | |
| (=) Taxable Value: | = | $12,000 | |
Taxing Jurisdiction
| Owner: | REEVES RESIDENTIAL CONSTRUCTION, LLC | | |
| % Ownership: | 100.0000000000% | | |
| Total Value: | $12,000 | | |
| Tax Area: | 719 - APPRAISER-S Whid Schl Dist, outside Langley, vacant & 50 acres or less |
| CF | Conservation Futures | 0.0316035091 | $12,000 | $12,000 | $0.38 | | |
| HOBOND | Hospital BOND | 0.1910887512 | $12,000 | $12,000 | $2.29 | | |
| HOGEN | Hospital GEN | 0.3902502903 | $12,000 | $12,000 | $4.68 | | |
| CE | County Current Expense | 0.3708482477 | $12,000 | $12,000 | $4.45 | | |
| CR | County Roads | 0.4584763726 | $12,000 | $12,000 | $5.50 | | |
| ISLANDEMS | Hospital GEN (EMS) | 0.5000000000 | $12,000 | $12,000 | $6.00 | | |
| LIB | Library Sno-Isle GEN | 0.3153421757 | $12,000 | $12,000 | $3.78 | | |
| PORTWHID | Port of S Whidbey GEN | 0.1094540357 | $12,000 | $12,000 | $1.31 | | |
| SCH206BOND | School 206 BOND | 0.3161759235 | $12,000 | $12,000 | $3.79 | | |
| SCH206MO | School 206 Enrichment | 0.4547169547 | $12,000 | $12,000 | $5.46 | | |
| ST | State School | 1.3035497053 | $12,000 | $12,000 | $15.64 | | |
| ST2 | State School Part 2 | 0.8169543533 | $12,000 | $12,000 | $9.80 | | |
| SWHIDPRBD | P & R S Whidbey BOND | 0.0152817568 | $12,000 | $12,000 | $0.18 | | |
| SWHIDPRBD2 | P & R S Whidbey BOND2 | 0.0138911264 | $12,000 | $12,000 | $0.17 | | |
| SWHIDPRMT | P & R S Whidbey GEN | 0.2053334452 | $12,000 | $12,000 | $2.46 | | |
| | Total Tax Rate: | 5.4929666475 | | | | | |
| | | | | Taxes w/Current Exemptions: | $65.89 | | |
| | | | | Taxes w/o Exemptions: | $65.89 | | |
Improvement / Building
Sketch
| No sketches available for this property. |
Property Image
Land
| 1 | 13 | SQ (06001-08000) | 0.0000 | 0.00 | 0.00 | 0.00 | 1.00 | $12,000 | $0 |
Roll Value History
| 2026 | N/A | N/A | N/A | N/A | N/A |
| 2025 | $0 | $12,000 | $0 | $12,000 | $12,000 |
| 2024 | $0 | $12,000 | $0 | $12,000 | $12,000 |
| 2023 | $0 | $9,000 | $0 | $9,000 | $9,000 |
| 2022 | $0 | $9,000 | $0 | $9,000 | $9,000 |
| 2021 | $0 | $7,000 | $0 | $7,000 | $7,000 |
| 2020 | $0 | $7,000 | $0 | $7,000 | $7,000 |
| 2019 | $0 | $7,000 | $0 | $7,000 | $7,000 |
| 2018 | $0 | $7,000 | $0 | $7,000 | $7,000 |
| 2017 | $0 | $5,000 | $0 | $5,000 | $5,000 |
| 2016 | $0 | $5,000 | $0 | $5,000 | $5,000 |
| 2015 | $0 | $5,000 | $0 | $5,000 | $5,000 |
| 2014 | $0 | $5,000 | $0 | $5,000 | $5,000 |
| 2013 | $0 | $2,700 | $0 | $2,700 | $2,700 |
| 2012 | $0 | $2,700 | $0 | $2,700 | $2,700 |
| 2011 | $0 | $2,700 | $0 | $2,700 | $2,700 |
| 2010 | $0 | $3,000 | $0 | $3,000 | $3,000 |
| 2009 | $0 | $3,000 | $0 | $3,000 | $3,000 |
| 2008 | $0 | $3,000 | $0 | $3,000 | $3,000 |
| 2007 | $0 | $1,008 | $0 | $1,008 | $1,008 |
Deed and Sales History
| 1 | 11/18/2019 | WD | Warranty Deed | FRAGALE INVESTMENTS, LLC | REEVES RESIDENTIAL CONSTRUCTION, LLC | | | $6,000.00 | 41187 | 4476033 |
| 2 | 07/30/2019 | WD | Warranty Deed | PHOENIX UNITED PROPERTIES LLP | FRAGALE INVESTMENTS, LLC | | | $1,920.00 | 39782 | 4468997 |
|   | |
| 3 | 02/08/2011 | TTAXD | Treasurer's Tax Deed | MOORE, ARTHUR M & LORETTA M | PHOENIX UNITED PROPERTIES LLP | | | $0.00 | 3559 | 4290261 |
| 4 | 11/01/1979 | CD | DNU - Correction Deed | MOORE, JOHN A | MOORE, ARTHUR M | | | $0.00 | 95249 | 361621 |
| 5 | 06/01/1979 | EXECUTORD | Executor Deed | WALKER, JOHN B | MOORE, JOHN A | | | $2,750.00 | 934980 | 3557860 |
| 6 | 01/01/1900 | OTHER | Other - Misc. Documents | Unknown | WALKER, JOHN B | | | $0.00 | 0 | 0 |
Payout Agreement
| No payout information available.. |