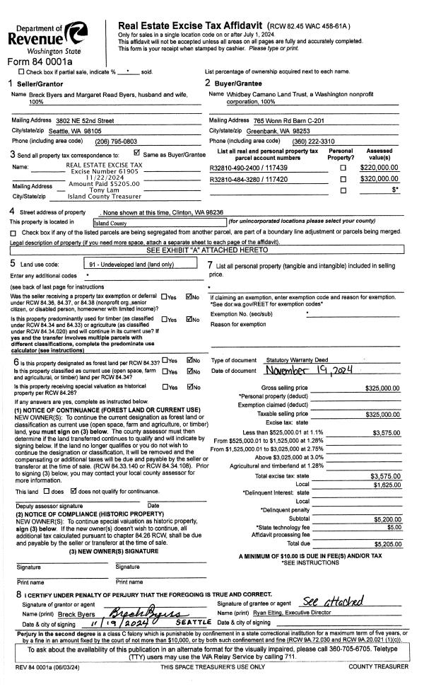
Property
Account |
| Property ID: | 18037 | Abbreviated Legal Description: | 4 - BG CM SLN LOT 1 FLOWERS HTS S89*E155.36' FR SWCR SD LOT 1 N22*W276.67' TPB N32*W92.99' N75*E70.82' N14*W6.07' N79*E246.17' TP ON ADJ ML S5*E143.70' ALG SD ML TP N88*E FR TPB S88*W271.54' TPB |
| Geographic ID: | R13210-164-4310 | Agent Code: | |
| Type: | Real | | |
| Tax Area: | 100 - APPRAISER-OH Schl Dist, in OH | Land Use Code | 11 |
| Open Space: | N | DFL | N |
| Historic Property: | N | Remodel Property: | N |
| Multi-Family Redevelopment: | N | | |
| Township: | 32 | Section: | 10 |
| Range: | R1 |
Location |
| Address: | 3224 SW SCENIC HEIGHTS ST OAK HARBOR, WA 98277 | Mapsco: | |
| Neighborhood: | Cycle 1 | Map ID: | 117 |
| Neighborhood CD: | 1 |
Owner |
| Name: | RUIZ, DAVID P | Owner ID: | 103702 |
| Mailing Address: | MARY I RUIZ 3224 SW SCENIC HEIGHTS ST OAK HARBOR, WA 98277-8193 | % Ownership: | 100.0000000000% |
| | | Exemptions: | |
Taxes and Assessment Details
Values
| (+) Improvement Homesite Value: | + | $0 | |
| (+) Improvement Non-Homesite Value: | + | $270,980 | |
| (+) Land Homesite Value: | + | $0 | |
| (+) Land Non-Homesite Value: | + | $525,000 | |
| (+) Curr Use (HS): | + | $0 | $0 |
| (+) Curr Use (NHS): | + | $0 | $0 |
| | | -------------------------- | |
| (=) Market Value: | = | $795,980 | |
| (–) Productivity Loss: | – | $0 | |
| | | -------------------------- | |
| (=) Subtotal: | = | $795,980 | |
| (+) Senior Appraised Value: | + | $0 | |
| (+) Non-Senior Appraised Value: | + | $795,980 | |
| | | -------------------------- | |
| (=) Total Appraised Value: | = | $795,980 | |
| (–) Senior Exemption Loss: | – | $0 | |
| (–) Exemption Loss: | – | $0 | |
| | | -------------------------- | |
| (=) Taxable Value: | = | $795,980 | |
Taxing Jurisdiction
| Owner: | RUIZ, DAVID P | | |
| % Ownership: | 100.0000000000% | | |
| Total Value: | $795,980 | | |
| Tax Area: | 100 - APPRAISER-OH Schl Dist, in OH |
| CF | Conservation Futures | 0.0316035091 | $795,980 | $795,980 | $25.16 | | |
| CEM1 | Cemetery #1 | 0.0040320932 | $795,980 | $795,980 | $3.21 | | |
| COH | City of Oak Harbor | 2.3001546061 | $795,980 | $795,980 | $1,830.88 | | |
| OAKBOND | City of Oak Harbor BOND | 0.1926904192 | $795,980 | $795,980 | $153.38 | | |
| HOBOND | Hospital BOND | 0.1910887512 | $795,980 | $795,980 | $152.10 | | |
| HOGEN | Hospital GEN | 0.3902502903 | $795,980 | $795,980 | $310.63 | | |
| CE | County Current Expense | 0.3708482477 | $795,980 | $795,980 | $295.19 | | |
| ISLANDEMS | Hospital GEN (EMS) | 0.5000000000 | $795,980 | $795,980 | $397.99 | | |
| LIB | Library Sno-Isle GEN | 0.3153421757 | $795,980 | $795,980 | $251.01 | | |
| NWHIDPRMT | P & R N Whidbey GEN | 0.2004466701 | $795,980 | $795,980 | $159.55 | | |
| SCH201MO | School 201 Enrichment | 1.8559231640 | $795,980 | $795,980 | $1,477.28 | | |
| ST | State School | 1.3035497053 | $795,980 | $795,980 | $1,037.60 | | |
| ST2 | State School Part 2 | 0.8169543533 | $795,980 | $795,980 | $650.28 | | |
| | Total Tax Rate: | 8.4728839852 | | | | | |
| | | | | Taxes w/Current Exemptions: | $6,744.26 | | |
| | | | | Taxes w/o Exemptions: | $6,744.26 | | |
Improvement / Building
| Improvement #1: | RESIDENTIAL | State Code: | Y | 3279.0 sqft | Value: | $270,980 |
| Bathrooms: | 2 | Bedrooms: | 3 | | Ceiling: | DRY WALL SPRAYED | Cooling: | HEAT PUMP/CONV/V | | Exterior Wall/Cover: | ASBESTOES/ASPHALT | Floor Covering: | CARPET/VINYL 80-20 | | Floor Structure: | WOOD W/SUBFLOOR | Foundation: | CONCRETE | | Interior Finish: | DRYWALL PAINT | Plumbing Fixture Cnt: | 9 | | Roof Slope: | 6" IN 12" | Roof Structure/Cover: | CJ ALUMINIUM HEAVY |
|
| | Type | Description | Class CD | Sub Class CD | Year Built | Area |
| | BAS | BASE/MAIN FLOOR | 3 | 0 | 1945 | 1571.0 |
| | OWP | OPEN WOOD PORCH W/STEPS | 3 | 0 | 1945 | 238.0 |
| | OWC | OPEN WOOD PORCH W/STEPS/ROOF/C | 3 | 0 | 1945 | 36.0 |
| | ENP | ENCLOSED PORCH | 3 | 0 | 1945 | 24.0 |
| | UPH | HALF STORY | 3 | 0 | 1945 | 558.0 |
| | UTY | STORAGE/UTILITY | 3 | 0 | 1945 | 168.0 |
| | DGR | DETACHED GARAGE | 3 | 0 | 1945 | 384.0 |
| | DWN | DOWNSTAIRS LIVING AREA | 3 | 0 | 1945 | 1150.0 |
Sketch
Property Image
Land
| 1 | HB | HIGH BLUFF | 0.0000 | 0.00 | 115.00 | 0.00 | 1.00 | $525,000 | $0 |
Roll Value History
| 2026 | N/A | N/A | N/A | N/A | N/A |
| 2025 | $270,980 | $525,000 | $0 | $795,980 | $795,980 |
| 2024 | $248,887 | $500,000 | $0 | $748,887 | $748,887 |
| 2023 | $244,856 | $500,000 | $0 | $744,856 | $744,856 |
| 2022 | $225,947 | $450,000 | $0 | $675,947 | $675,947 |
| 2021 | $200,421 | $300,000 | $0 | $500,421 | $500,421 |
| 2020 | $196,703 | $300,000 | $0 | $496,703 | $496,703 |
| 2019 | $152,295 | $250,000 | $0 | $402,295 | $402,295 |
| 2018 | $145,580 | $250,000 | $0 | $395,580 | $395,580 |
| 2017 | $108,761 | $250,000 | $0 | $358,761 | $358,761 |
| 2016 | $111,062 | $250,000 | $0 | $361,062 | $361,062 |
| 2015 | $113,365 | $250,000 | $0 | $363,365 | $363,365 |
| 2014 | $115,665 | $250,000 | $0 | $365,665 | $365,665 |
| 2013 | $117,966 | $281,330 | $0 | $399,296 | $399,296 |
| 2012 | $120,268 | $281,330 | $0 | $401,598 | $401,598 |
| 2011 | $124,067 | $281,330 | $0 | $405,397 | $405,397 |
| 2010 | $139,382 | $281,330 | $0 | $420,712 | $420,712 |
| 2009 | $145,488 | $351,663 | $0 | $497,151 | $497,151 |
| 2008 | $147,972 | $404,049 | $0 | $552,021 | $552,021 |
| 2007 | $150,461 | $404,049 | $0 | $554,510 | $554,510 |
Deed and Sales History
| 1 | 03/26/2003 | WD | Warranty Deed | ALDRIDGE, IVERS F/AUGUSTA S | RUIZ, DAVID P | | | $310,000.00 | 31310 | 4053241 |
| 2 | 08/17/1998 | BLA | DNU - Boundary Line Adjustment | ALDRIDGE, IVERS F | ALDRIDGE, IVERS F/AUGUSTA S | | | $0.00 | 67975 | 98007543 |
| 3 | 01/01/1993 | QCD | Quit Claim Deed | ALDRIDGE, TRUST | ALDRIDGE, IVERS F | | | $0.00 | 30085 | 93000318 |
| 4 | 06/01/1991 | QCD | Quit Claim Deed | ALDRIDGE, FRANK | ALDRIDGE, TRUST | | | $0.00 | 20043 | 92000104 |
| 5 | 02/01/1981 | WD | Warranty Deed | BERGLUND, ROBERT C | ALDRIDGE, FRANK | | | $93,000.00 | 10611 | 380037 |
| 6 | 01/01/1900 | OTHER | Other - Misc. Documents | Unknown | BERGLUND, ROBERT C | | | $0.00 | 0 | 0 |
Payout Agreement
| No payout information available.. |