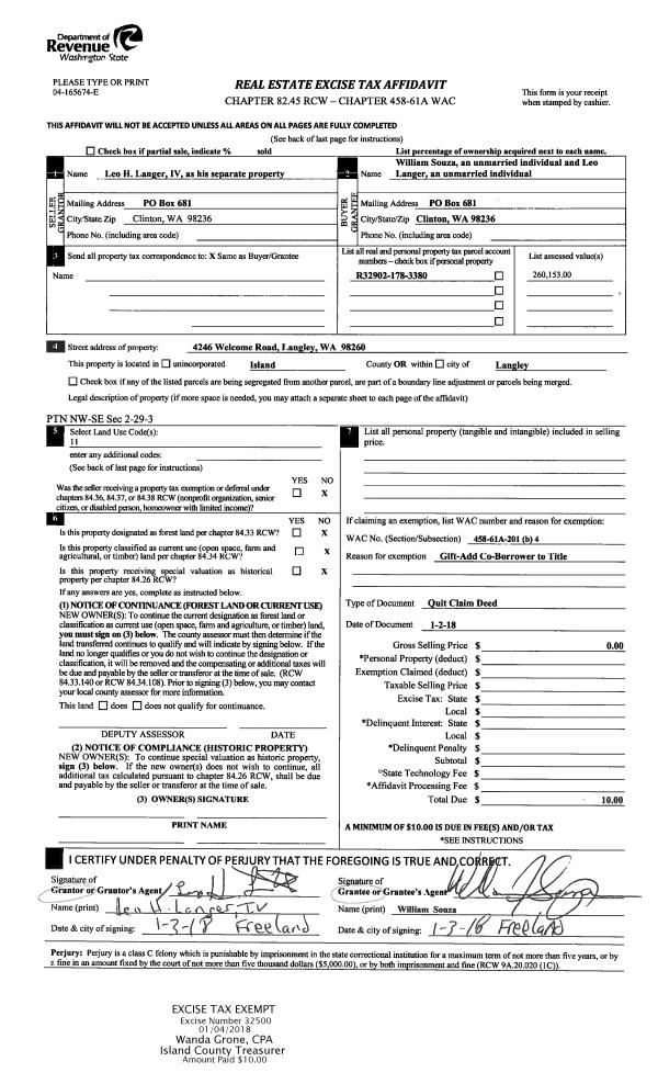
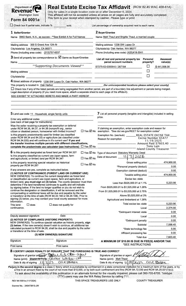
Property
Account |
| Property ID: | 180431 | Abbreviated Legal Description: | ANDER PK LOT 12 THRU 15 BLK 4 |
| Geographic ID: | S6030-00-04012-0 | Agent Code: | |
| Type: | Real | | |
| Tax Area: | 710 - APPRAISER-S Whid Schl Dist, outside Langley, improved & 1 acre or less | Land Use Code | 11 |
| Open Space: | N | DFL | N |
| Historic Property: | N | Remodel Property: | N |
| Multi-Family Redevelopment: | N | | |
| Township: | | Section: | |
| Range: | |
Location |
| Address: | 2166 ANDER PARK RD FREELAND, WA 98249 | Mapsco: | |
| Neighborhood: | Cycle 3 | Map ID: | 412 |
| Neighborhood CD: | 3 |
Owner |
| Name: | GOLLER, ALISON M | Owner ID: | 296328 |
| Mailing Address: | PO BOX 1535 FREELAND, WA 98249 | % Ownership: | 100.0000000000% |
| | | Exemptions: | |
Taxes and Assessment Details
Values
| (+) Improvement Homesite Value: | + | $0 | |
| (+) Improvement Non-Homesite Value: | + | $193,693 | |
| (+) Land Homesite Value: | + | $0 | |
| (+) Land Non-Homesite Value: | + | $240,000 | |
| (+) Curr Use (HS): | + | $0 | $0 |
| (+) Curr Use (NHS): | + | $0 | $0 |
| | | -------------------------- | |
| (=) Market Value: | = | $433,693 | |
| (–) Productivity Loss: | – | $0 | |
| | | -------------------------- | |
| (=) Subtotal: | = | $433,693 | |
| (+) Senior Appraised Value: | + | $0 | |
| (+) Non-Senior Appraised Value: | + | $433,693 | |
| | | -------------------------- | |
| (=) Total Appraised Value: | = | $433,693 | |
| (–) Senior Exemption Loss: | – | $0 | |
| (–) Exemption Loss: | – | $0 | |
| | | -------------------------- | |
| (=) Taxable Value: | = | $433,693 | |
Taxing Jurisdiction
| Owner: | GOLLER, ALISON M | | |
| % Ownership: | 100.0000000000% | | |
| Total Value: | $433,693 | | |
| Tax Area: | 710 - APPRAISER-S Whid Schl Dist, outside Langley, improved & 1 acre or less |
| CF | Conservation Futures | 0.0316035091 | $433,693 | $433,693 | $13.71 | | |
| FIRE3 | Fire & Rescue Dist #3 S Whidbey GEN | 1.2004855531 | $433,693 | $433,693 | $520.64 | | |
| HOBOND | Hospital BOND | 0.1910887512 | $433,693 | $433,693 | $82.87 | | |
| HOGEN | Hospital GEN | 0.3902502903 | $433,693 | $433,693 | $169.25 | | |
| CE | County Current Expense | 0.3708482477 | $433,693 | $433,693 | $160.83 | | |
| CR | County Roads | 0.4584763726 | $433,693 | $433,693 | $198.84 | | |
| ISLANDEMS | Hospital GEN (EMS) | 0.5000000000 | $433,693 | $433,693 | $216.85 | | |
| LIB | Library Sno-Isle GEN | 0.3153421757 | $433,693 | $433,693 | $136.76 | | |
| PORTWHID | Port of S Whidbey GEN | 0.1094540357 | $433,693 | $433,693 | $47.47 | | |
| SCH206BOND | School 206 BOND | 0.3161759235 | $433,693 | $433,693 | $137.12 | | |
| SCH206MO | School 206 Enrichment | 0.4547169547 | $433,693 | $433,693 | $197.21 | | |
| ST | State School | 1.3035497053 | $433,693 | $433,693 | $565.34 | | |
| ST2 | State School Part 2 | 0.8169543533 | $433,693 | $433,693 | $354.31 | | |
| SWHIDPRBD | P & R S Whidbey BOND | 0.0152817568 | $433,693 | $433,693 | $6.63 | | |
| SWHIDPRBD2 | P & R S Whidbey BOND2 | 0.0138911264 | $433,693 | $433,693 | $6.02 | | |
| SWHIDPRMT | P & R S Whidbey GEN | 0.2053334452 | $433,693 | $433,693 | $89.05 | | |
| | Total Tax Rate: | 6.6934522006 | | | | | |
| | | | | Taxes w/Current Exemptions: | $2,902.90 | | |
| | | | | Taxes w/o Exemptions: | $2,902.90 | | |
Improvement / Building
| Improvement #1: | RESIDENTIAL | State Code: | Y | 696.0 sqft | Value: | $193,693 |
| Bathrooms: | 1 | Bedrooms: | 1 | | Ceiling: | DRYWALL PAINTED | Cooling: | HEAT PUMP/CONV/V | | Exterior Wall/Cover: | CEMENT FIBER | Floor Covering: | CARPET/VINYL 20-80 | | Floor Structure: | WOOD W/SUBFLOOR | Foundation: | CONCRETE | | Interior Finish: | DRYWALL PAINT | Plumbing Fixture Cnt: | 6 | | Roof Slope: | 6" IN 12" | Roof Structure/Cover: | CJ ALUMINIUM HEAVY |
|
| | Type | Description | Class CD | Sub Class CD | Year Built | Area |
| | BAS | BASE/MAIN FLOOR | 3 | 0 | 2022 | 696.0 |
| | OWR | OPEN WOOD PORCH W/STEPS/ROOF | 3 | 0 | 2022 | 72.0 |
| | OWR | OPEN WOOD PORCH W/STEPS/ROOF | 3 | 0 | 2022 | 144.0 |
| | ATU | ATTIC UNFINISHED | 3 | 0 | 2022 | 696.0 |
Sketch
Property Image
Land
| 1 | 14 | SQ (08001-12000) | 0.0000 | 0.00 | 0.00 | 0.00 | 1.00 | $240,000 | $0 |
Roll Value History
| 2026 | N/A | N/A | N/A | N/A | N/A |
| 2025 | $193,693 | $240,000 | $0 | $433,693 | $433,693 |
| 2024 | $195,726 | $230,000 | $0 | $425,726 | $425,726 |
| 2023 | $85,450 | $70,000 | $0 | $155,450 | $155,450 |
| 2022 | $0 | $70,000 | $0 | $70,000 | $70,000 |
| 2021 | $0 | $7,000 | $0 | $7,000 | $7,000 |
| 2020 | $0 | $7,000 | $0 | $7,000 | $7,000 |
| 2019 | $0 | $7,000 | $0 | $7,000 | $7,000 |
| 2018 | $0 | $7,000 | $0 | $7,000 | $7,000 |
| 2017 | $0 | $5,000 | $0 | $5,000 | $5,000 |
| 2016 | $0 | $5,000 | $0 | $5,000 | $5,000 |
| 2015 | $0 | $5,000 | $0 | $5,000 | $5,000 |
| 2014 | $0 | $5,000 | $0 | $5,000 | $5,000 |
| 2013 | $0 | $5,000 | $0 | $5,000 | $5,000 |
| 2012 | $0 | $10,800 | $0 | $10,800 | $10,800 |
| 2011 | $0 | $10,800 | $0 | $10,800 | $10,800 |
| 2010 | $0 | $12,000 | $0 | $12,000 | $12,000 |
| 2009 | $0 | $12,000 | $0 | $12,000 | $12,000 |
| 2008 | $0 | $12,000 | $0 | $12,000 | $12,000 |
| 2007 | $0 | $4,320 | $0 | $4,320 | $4,320 |
Deed and Sales History
| 1 | 09/26/2020 | WD | Warranty Deed | HARTSUFF, RYAN MITCHELL | GOLLER, ALISON M | | | $40,000.00 | 44997 | 4498126 |
| 2 | 10/03/2017 | WD | Warranty Deed | JACOBS, MICHELLE ELAINE | HARTSUFF, RYAN MITCHELL | | | $39,000.00 | 31398 | 4431478 |
| 3 | 10/04/2016 | ESTSEPPROP | Establish Separate Property | JACOBS, MICHELLE ELAINE | JACOBS, MICHELLE ELAINE | | | $0.00 | 28005 | 4416686 |
| 4 | 01/26/2017 | WD | Warranty Deed | JACKSON, DONALD D | JACOBS, MICHELLE ELAINE | | | $25,000.00 | 28004 | 4416685 |
|   | |
| 5 | 09/26/2016 | QCD | Quit Claim Deed | JACKSON, DONALD D | JACKSON, DONALD D | | | $0.00 | 28006 | 4416684 |
Payout Agreement
| No payout information available.. |