Property
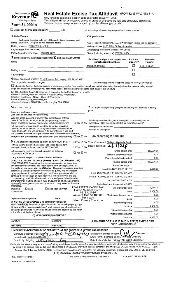
Account |
| Property ID: | 180869 | Abbreviated Legal Description: | AQUA VIEW LOT 8 BLK B FR 0B006-0 |
| Geographic ID: | S6040-00-0B008-0 | Agent Code: | |
| Type: | Real | | |
| Tax Area: | 310 - APPRAISER-Cpvl Schl Dist, outside Cpvl, improved & 1 acre or less | Land Use Code | 11 |
| Open Space: | N | DFL | N |
| Historic Property: | N | Remodel Property: | N |
| Multi-Family Redevelopment: | N | | |
| Township: | | Section: | |
| Range: | |
Location |
| Address: | | Mapsco: | |
| Neighborhood: | Cycle 3 | Map ID: | 381 |
| Neighborhood CD: | 3 |
Owner |
| Name: | ADAMS, DOUGLAS J | Owner ID: | 53520 |
| Mailing Address: | CARMEN L ADAMS 10021 E 4TH AVE SPOKANE VALLEY, WA 99206 | % Ownership: | 100.0000000000% |
| | | Exemptions: | |
Taxes and Assessment Details
Values
| (+) Improvement Homesite Value: | + | $0 | |
| (+) Improvement Non-Homesite Value: | + | $15,000 | |
| (+) Land Homesite Value: | + | $0 | |
| (+) Land Non-Homesite Value: | + | $12,000 | |
| (+) Curr Use (HS): | + | $0 | $0 |
| (+) Curr Use (NHS): | + | $0 | $0 |
| | | -------------------------- | |
| (=) Market Value: | = | $27,000 | |
| (–) Productivity Loss: | – | $0 | |
| | | -------------------------- | |
| (=) Subtotal: | = | $27,000 | |
| (+) Senior Appraised Value: | + | $0 | |
| (+) Non-Senior Appraised Value: | + | $27,000 | |
| | | -------------------------- | |
| (=) Total Appraised Value: | = | $27,000 | |
| (–) Senior Exemption Loss: | – | $0 | |
| (–) Exemption Loss: | – | $0 | |
| | | -------------------------- | |
| (=) Taxable Value: | = | $27,000 | |
Taxing Jurisdiction
| Owner: | ADAMS, DOUGLAS J | | |
| % Ownership: | 100.0000000000% | | |
| Total Value: | $27,000 | | |
| Tax Area: | 310 - APPRAISER-Cpvl Schl Dist, outside Cpvl, improved & 1 acre or less |
| CF | Conservation Futures | 0.0316035091 | $27,000 | $27,000 | $0.85 | | |
| CEM2 | Cemetery #2 | 0.0095056933 | $27,000 | $27,000 | $0.26 | | |
| FIRE5 | Fire & Rescue Dist #5 C Whidbey GEN | 1.2008080668 | $27,000 | $27,000 | $32.42 | | |
| FIRE5BOND | Fire & Rescue Dist #5 C Whidbey BOND | 0.1400090713 | $27,000 | $27,000 | $3.78 | | |
| HOBOND | Hospital BOND | 0.1910887512 | $27,000 | $27,000 | $5.16 | | |
| HOGEN | Hospital GEN | 0.3902502903 | $27,000 | $27,000 | $10.54 | | |
| CE | County Current Expense | 0.3708482477 | $27,000 | $27,000 | $10.01 | | |
| CR | County Roads | 0.4584763726 | $27,000 | $27,000 | $12.38 | | |
| ISLANDEMS | Hospital GEN (EMS) | 0.5000000000 | $27,000 | $27,000 | $13.50 | | |
| LIB | Library Sno-Isle GEN | 0.3153421757 | $27,000 | $27,000 | $8.51 | | |
| LIBCAP | Library Sno-Isle BOND (Cap Fac Imp Area) | 0.0543427938 | $27,000 | $27,000 | $1.47 | | |
| POCOUP | Port of Coupeville GEN | 0.1093371703 | $27,000 | $27,000 | $2.95 | | |
| POCOUPIDD | Port of Coupeville IDD | 0.3409740022 | $27,000 | $27,000 | $9.21 | | |
| COUPSDTECH | School 204 CP (TECH) | 0.7545480007 | $27,000 | $27,000 | $20.37 | | |
| SCH204MO | School 204 Enrichment | 0.6716186034 | $27,000 | $27,000 | $18.13 | | |
| ST | State School | 1.3035497053 | $27,000 | $27,000 | $35.20 | | |
| ST2 | State School Part 2 | 0.8169543533 | $27,000 | $27,000 | $22.06 | | |
| | Total Tax Rate: | 7.6592568070 | | | | | |
| | | | | Taxes w/Current Exemptions: | $206.80 | | |
| | | | | Taxes w/o Exemptions: | $206.80 | | |
Improvement / Building
| Improvement #1: | MISC | State Code: | Y | 0.0 sqft | Value: | $15,000 |
Sketch
Property Image
Land
| 1 | 14 | SQ (08001-12000) | 0.0000 | 0.00 | 0.00 | 0.00 | 1.00 | $12,000 | $0 |
Roll Value History
| 2026 | N/A | N/A | N/A | N/A | N/A |
| 2025 | $15,000 | $12,000 | $0 | $27,000 | $27,000 |
| 2024 | $15,000 | $12,000 | $0 | $27,000 | $27,000 |
| 2023 | $15,000 | $9,000 | $0 | $24,000 | $24,000 |
| 2022 | $15,000 | $9,000 | $0 | $24,000 | $24,000 |
| 2021 | $15,000 | $7,000 | $0 | $22,000 | $22,000 |
| 2020 | $15,000 | $7,000 | $0 | $22,000 | $22,000 |
| 2019 | $0 | $5,000 | $0 | $5,000 | $5,000 |
| 2018 | $0 | $5,000 | $0 | $5,000 | $5,000 |
| 2017 | $0 | $5,000 | $0 | $5,000 | $5,000 |
| 2016 | $0 | $5,000 | $0 | $5,000 | $5,000 |
| 2015 | $0 | $5,000 | $0 | $5,000 | $5,000 |
| 2014 | $0 | $6,000 | $0 | $6,000 | $6,000 |
| 2013 | $0 | $6,000 | $0 | $6,000 | $6,000 |
| 2012 | $0 | $6,000 | $0 | $6,000 | $6,000 |
| 2011 | $0 | $6,000 | $0 | $6,000 | $6,000 |
| 2010 | $0 | $6,000 | $0 | $6,000 | $6,000 |
| 2009 | $0 | $7,200 | $0 | $7,200 | $7,200 |
| 2008 | $0 | $7,200 | $0 | $7,200 | $7,200 |
| 2007 | $0 | $6,000 | $0 | $6,000 | $6,000 |
Deed and Sales History
| 1 | 04/01/1997 | SEG | DNU - Segregation | ADAMS, DOUGLAS J | ADAMS, DOUGLAS J | | | $0.00 | 67328 | 0 |
| 2 | 01/01/1900 | OTHER | Other - Misc. Documents | Unknown | ADAMS, DOUGLAS J | | | $0.00 | 41533 | 94009389 |
Payout Agreement
| No payout information available.. |