Property
Account |
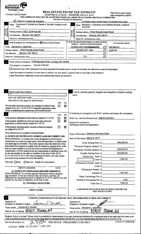
| Property ID: | 181083 | Abbreviated Legal Description: | AQUA VU LOTS 8, 11, 12, 15, 16 & 18 BLK C - COMB 1/16/03 |
| Geographic ID: | S6040-00-0C008-0 | Agent Code: | |
| Type: | Real | | |
| Tax Area: | 312 - APPRAISER-Cpvl Schl Dist, outside Cpvl, improved, greater than 1 acre | Land Use Code | 11 |
| Open Space: | N | DFL | N |
| Historic Property: | N | Remodel Property: | N |
| Multi-Family Redevelopment: | N | | |
| Township: | | Section: | |
| Range: | |
Location |
| Address: | 960 VASHON DR GREENBANK, WA 98253 | Mapsco: | |
| Neighborhood: | Cycle 3 | Map ID: | 381 |
| Neighborhood CD: | 3 |
Owner |
| Name: | JOHNSON, TREVOR A. | Owner ID: | 278857 |
| Mailing Address: | JULIE M MCLENDON 11318-8TH AVE NE UNIT F SEATTLE, WA 98125 | % Ownership: | 100.0000000000% |
| | | Exemptions: | |
Taxes and Assessment Details
Values
| (+) Improvement Homesite Value: | + | $0 | |
| (+) Improvement Non-Homesite Value: | + | $453,967 | |
| (+) Land Homesite Value: | + | $0 | |
| (+) Land Non-Homesite Value: | + | $330,000 | |
| (+) Curr Use (HS): | + | $0 | $0 |
| (+) Curr Use (NHS): | + | $0 | $0 |
| | | -------------------------- | |
| (=) Market Value: | = | $783,967 | |
| (–) Productivity Loss: | – | $0 | |
| | | -------------------------- | |
| (=) Subtotal: | = | $783,967 | |
| (+) Senior Appraised Value: | + | $0 | |
| (+) Non-Senior Appraised Value: | + | $783,967 | |
| | | -------------------------- | |
| (=) Total Appraised Value: | = | $783,967 | |
| (–) Senior Exemption Loss: | – | $0 | |
| (–) Exemption Loss: | – | $0 | |
| | | -------------------------- | |
| (=) Taxable Value: | = | $783,967 | |
Taxing Jurisdiction
| Owner: | JOHNSON, TREVOR A. | | |
| % Ownership: | 100.0000000000% | | |
| Total Value: | $783,967 | | |
| Tax Area: | 312 - APPRAISER-Cpvl Schl Dist, outside Cpvl, improved, greater than 1 acre |
| CF | Conservation Futures | 0.0316035091 | $783,967 | $783,967 | $24.78 | | |
| CEM2 | Cemetery #2 | 0.0095056933 | $783,967 | $783,967 | $7.45 | | |
| FIRE5 | Fire & Rescue Dist #5 C Whidbey GEN | 1.2008080668 | $783,967 | $783,967 | $941.39 | | |
| FIRE5BOND | Fire & Rescue Dist #5 C Whidbey BOND | 0.1400090713 | $783,967 | $783,967 | $109.76 | | |
| HOBOND | Hospital BOND | 0.1910887512 | $783,967 | $783,967 | $149.81 | | |
| HOGEN | Hospital GEN | 0.3902502903 | $783,967 | $783,967 | $305.94 | | |
| CE | County Current Expense | 0.3708482477 | $783,967 | $783,967 | $290.73 | | |
| CR | County Roads | 0.4584763726 | $783,967 | $783,967 | $359.43 | | |
| ISLANDEMS | Hospital GEN (EMS) | 0.5000000000 | $783,967 | $783,967 | $391.98 | | |
| LIB | Library Sno-Isle GEN | 0.3153421757 | $783,967 | $783,967 | $247.22 | | |
| LIBCAP | Library Sno-Isle BOND (Cap Fac Imp Area) | 0.0543427938 | $783,967 | $783,967 | $42.60 | | |
| POCOUP | Port of Coupeville GEN | 0.1093371703 | $783,967 | $783,967 | $85.72 | | |
| POCOUPIDD | Port of Coupeville IDD | 0.3409740022 | $783,967 | $783,967 | $267.31 | | |
| COUPSDTECH | School 204 CP (TECH) | 0.7545480007 | $783,967 | $783,967 | $591.54 | | |
| SCH204MO | School 204 Enrichment | 0.6716186034 | $783,967 | $783,967 | $526.53 | | |
| ST | State School | 1.3035497053 | $783,967 | $783,967 | $1,021.94 | | |
| ST2 | State School Part 2 | 0.8169543533 | $783,967 | $783,967 | $640.47 | | |
| | Total Tax Rate: | 7.6592568070 | | | | | |
| | | | | Taxes w/Current Exemptions: | $6,004.60 | | |
| | | | | Taxes w/o Exemptions: | $6,004.60 | | |
Improvement / Building
| Improvement #1: | RESIDENTIAL | State Code: | Y | 2300.7 sqft | Value: | $453,967 |
| Bathrooms: | 2.75 | Bedrooms: | 2 | | Ceiling: | BEAM PAINTED | Exterior Wall/Cover: | SHINGLE | | Floor Covering: | COLORED CONCRETE | Floor Structure: | SLAB ON GRADE | | Foundation: | SLAB | Heating: | RADIANT FLOOR | | Interior Finish: | DRYWALL PAINT | Plumbing Fixture Cnt: | 12 | | Roof Slope: | 12" IN 12" | Roof Structure/Cover: | STEEL TERNE |
|
| | Type | Description | Class CD | Sub Class CD | Year Built | Area |
| | BAS | BASE/MAIN FLOOR | 4 | 0 | 2011 | 952.0 |
| | UPS | UPPER STORY | 4 | 0 | 2011 | 753.7 |
| | LOF | LOFT | 4 | 0 | 2011 | 595.0 |
| | DGR | DETACHED GARAGE | 4 | 0 | 2011 | 474.8 |
| | OWC | OPEN WOOD PORCH W/STEPS/ROOF/C | 4 | 0 | 2011 | 85.0 |
| | OWC | OPEN WOOD PORCH W/STEPS/ROOF/C | 4 | 0 | 2011 | 35.0 |
| | OWC | OPEN WOOD PORCH W/STEPS/ROOF/C | 4 | 0 | 2011 | 108.4 |
| | OWP | OPEN WOOD PORCH W/STEPS | 4 | 0 | 2011 | 52.0 |
Sketch
| No sketches available for this property. |
Property Image
Land
| 1 | 17 | AC (01.01-02.00) | 0.0000 | 0.00 | 0.00 | 0.00 | 1.00 | $330,000 | $0 |
Roll Value History
| 2026 | N/A | N/A | N/A | N/A | N/A |
| 2025 | $453,967 | $330,000 | $0 | $783,967 | $783,967 |
| 2024 | $450,753 | $310,000 | $0 | $760,753 | $760,753 |
| 2023 | $454,144 | $290,000 | $0 | $744,144 | $744,144 |
| 2022 | $414,605 | $260,000 | $0 | $674,605 | $674,605 |
| 2021 | $363,452 | $250,000 | $0 | $613,452 | $613,452 |
| 2020 | $352,932 | $200,000 | $0 | $552,932 | $552,932 |
| 2019 | $238,444 | $260,000 | $0 | $498,444 | $498,444 |
| 2018 | $239,090 | $155,000 | $0 | $394,090 | $394,090 |
| 2017 | $240,383 | $115,000 | $0 | $355,383 | $355,383 |
| 2016 | $242,968 | $85,000 | $0 | $327,968 | $127,323 |
| 2015 | $245,552 | $90,000 | $0 | $335,552 | $127,323 |
| 2014 | $248,137 | $85,000 | $0 | $333,137 | $227,628 |
| 2013 | $250,721 | $85,000 | $0 | $335,721 | $227,628 |
| 2012 | $253,307 | $55,250 | $0 | $308,557 | $238,557 |
| 2011 | $232,628 | $65,000 | $0 | $297,628 | $119,051 |
| 2010 | $0 | $65,000 | $0 | $65,000 | $65,000 |
Deed and Sales History
| 1 | 03/06/2017 | WD | Warranty Deed | CHRISTIANSON, JEANNE | JOHNSON, TREVOR A. | | | $539,000.00 | 28388 | 4418638 |
|   | |
| 2 | 01/08/2009 | WD | Warranty Deed | KALLOCK JTWROS, CHARLES R | CHRISTIANSON, JEANNE | | | $75,592.00 | 94 | 4266960 |
| 3 | 07/08/2005 | WD | Warranty Deed | JOHNSON, JEANNE M | KALLOCK JTWROS, CHARLES R | | | $57,638.00 | 53216 | 4139904 |
| 4 | 01/16/2003 | BLA | DNU - Boundary Line Adjustment | JOHNSON, JEANNE M | JOHNSON, JEANNE M | | | $0.00 | 69660 | 4014487 |
| 5 | 06/05/2002 | WD | Warranty Deed | PEMBER, ANN MARIE | JOHNSON, JEANNE M | | | $57,000.00 | 22353 | 4023394 |
| 6 | 05/04/2001 | WD | Warranty Deed | TOWN, & C | PEMBER, ANN MARIE | | | $15,000.00 | 12045 | 20033982 |
| 7 | 02/01/1995 | OTHER | Other - Misc. Documents | TOWN, & C | TOWN, & C | | | $0.00 | 66212 | 94025569 |
| 8 | 03/01/1991 | OTHER | Other - Misc. Documents | TOWN, & C | TOWN, & C | | | $0.00 | 64290 | 91004217 |
| 9 | 11/01/1980 | CD | DNU - Correction Deed | BELLES, JOHN H | TOWN, & C | | | $0.00 | 10109 | 378355 |
| 10 | 11/01/1980 | REC | Real Estate Contract | SEAVIEW, INVESTMENTS, I | BELLES, JOHN H | | | $4,596.00 | 10112 | 378358 |
| 11 | 10/01/1978 | CD | DNU - Correction Deed | ECKLUND, DONZELLA M | SEAVIEW, INVESTMENTS, I | | | $0.00 | 10113 | 0 |
| 12 | 01/01/1900 | OTHER | Other - Misc. Documents | Unknown | ECKLUND, DONZELLA M | | | $0.00 | 0 | 0 |
Payout Agreement
| No payout information available.. |