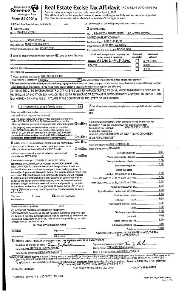
Property
Account |
| Property ID: | 181564 | Abbreviated Legal Description: | ARCADIA LOT 5 BLK 2 INCL ADJ TIDES |
| Geographic ID: | S6045-00-02005-0 | Agent Code: | |
| Type: | Real | | |
| Tax Area: | 310 - APPRAISER-Cpvl Schl Dist, outside Cpvl, improved & 1 acre or less | Land Use Code | 11 |
| Open Space: | N | DFL | N |
| Historic Property: | N | Remodel Property: | N |
| Multi-Family Redevelopment: | N | | |
| Township: | | Section: | |
| Range: | |
Location |
| Address: | 1276 DINES POINT RD GREENBANK, WA 98253 | Mapsco: | |
| Neighborhood: | Cycle 3 | Map ID: | 405 |
| Neighborhood CD: | 3 |
Owner |
| Name: | SHEPPARD TTEE, KATE G. | Owner ID: | 313225 |
| Mailing Address: | SIM C. SHEPPARD TTEE 1276 DINES POINT RD GREENBANK, WA 98253 | % Ownership: | 100.0000000000% |
| | | Exemptions: | |
Taxes and Assessment Details
Values
| (+) Improvement Homesite Value: | + | $0 | |
| (+) Improvement Non-Homesite Value: | + | $301,995 | |
| (+) Land Homesite Value: | + | $0 | |
| (+) Land Non-Homesite Value: | + | $625,630 | |
| (+) Curr Use (HS): | + | $0 | $0 |
| (+) Curr Use (NHS): | + | $0 | $0 |
| | | -------------------------- | |
| (=) Market Value: | = | $927,625 | |
| (–) Productivity Loss: | – | $0 | |
| | | -------------------------- | |
| (=) Subtotal: | = | $927,625 | |
| (+) Senior Appraised Value: | + | $0 | |
| (+) Non-Senior Appraised Value: | + | $927,625 | |
| | | -------------------------- | |
| (=) Total Appraised Value: | = | $927,625 | |
| (–) Senior Exemption Loss: | – | $0 | |
| (–) Exemption Loss: | – | $0 | |
| | | -------------------------- | |
| (=) Taxable Value: | = | $927,625 | |
Taxing Jurisdiction
| Owner: | SHEPPARD TTEE, KATE G. | | |
| % Ownership: | 100.0000000000% | | |
| Total Value: | $927,625 | | |
| Tax Area: | 310 - APPRAISER-Cpvl Schl Dist, outside Cpvl, improved & 1 acre or less |
| CF | Conservation Futures | 0.0316035091 | $927,625 | $927,625 | $29.32 | | |
| CEM2 | Cemetery #2 | 0.0095056933 | $927,625 | $927,625 | $8.82 | | |
| FIRE5 | Fire & Rescue Dist #5 C Whidbey GEN | 1.2008080668 | $927,625 | $927,625 | $1,113.90 | | |
| FIRE5BOND | Fire & Rescue Dist #5 C Whidbey BOND | 0.1400090713 | $927,625 | $927,625 | $129.88 | | |
| HOBOND | Hospital BOND | 0.1910887512 | $927,625 | $927,625 | $177.26 | | |
| HOGEN | Hospital GEN | 0.3902502903 | $927,625 | $927,625 | $362.01 | | |
| CE | County Current Expense | 0.3708482477 | $927,625 | $927,625 | $344.01 | | |
| CR | County Roads | 0.4584763726 | $927,625 | $927,625 | $425.29 | | |
| ISLANDEMS | Hospital GEN (EMS) | 0.5000000000 | $927,625 | $927,625 | $463.81 | | |
| LIB | Library Sno-Isle GEN | 0.3153421757 | $927,625 | $927,625 | $292.52 | | |
| LIBCAP | Library Sno-Isle BOND (Cap Fac Imp Area) | 0.0543427938 | $927,625 | $927,625 | $50.41 | | |
| POCOUP | Port of Coupeville GEN | 0.1093371703 | $927,625 | $927,625 | $101.42 | | |
| POCOUPIDD | Port of Coupeville IDD | 0.3409740022 | $927,625 | $927,625 | $316.30 | | |
| COUPSDTECH | School 204 CP (TECH) | 0.7545480007 | $927,625 | $927,625 | $699.94 | | |
| SCH204MO | School 204 Enrichment | 0.6716186034 | $927,625 | $927,625 | $623.01 | | |
| ST | State School | 1.3035497053 | $927,625 | $927,625 | $1,209.21 | | |
| ST2 | State School Part 2 | 0.8169543533 | $927,625 | $927,625 | $757.83 | | |
| | Total Tax Rate: | 7.6592568070 | | | | | |
| | | | | Taxes w/Current Exemptions: | $7,104.94 | | |
| | | | | Taxes w/o Exemptions: | $7,104.94 | | |
Improvement / Building
| Improvement #1: | RESIDENTIAL | State Code: | Y | 1173.2 sqft | Value: | $301,995 |
| Bathrooms: | 1.75 | Bedrooms: | 2 | | Ceiling: | TONGUE & GROOVE | Cooling: | HEAT PUMP/CONV/V | | Exterior Wall/Cover: | SHINGLE | Floor Covering: | VINYL/HARDWOOD 80-20 | | Floor Structure: | WOOD W/SUBFLOOR | Foundation: | CONCRETE | | Interior Finish: | DRYWALL PAINT | Plumbing Fixture Cnt: | 9 | | Roof Slope: | 4" IN 12" | Roof Structure/Cover: | CJ ALUMINIUM HEAVY |
|
| | Type | Description | Class CD | Sub Class CD | Year Built | Area |
| | BAS | BASE/MAIN FLOOR | 4 | 0 | 1979 | 540.6 |
| | BIG | BUILT IN GARAGE | 4 | 0 | 1979 | 336.0 |
| | UPS | UPPER STORY | 4 | 0 | 1979 | 352.6 |
| | BAW | BALCONY WOOD RAIL | 4 | 0 | 1979 | 44.0 |
| | OWP | OPEN WOOD PORCH W/STEPS | 4 | 0 | 1979 | 405.2 |
| | OWP | OPEN WOOD PORCH W/STEPS | 4 | 0 | 1979 | 433.6 |
| | ENP | ENCLOSED PORCH | 4 | 0 | 1979 | 135.9 |
| | UPS | UPPER STORY | 4 | 0 | 1979 | 280.0 |
Sketch
Property Image
Land
| 1 | HB | HIGH BLUFF | 0.4624 | 20142.14 | 63.00 | 0.00 | 1.00 | $625,000 | $0 |
| 2 | 55 | TIDES | 0.0000 | 0.00 | 63.00 | 0.00 | 1.00 | $630 | $0 |
Roll Value History
| 2026 | N/A | N/A | N/A | N/A | N/A |
| 2025 | $301,995 | $625,630 | $0 | $927,625 | $927,625 |
| 2024 | $259,302 | $600,630 | $0 | $859,932 | $859,932 |
| 2023 | $262,701 | $550,630 | $0 | $813,331 | $569,331 |
| 2022 | $240,966 | $550,630 | $0 | $791,596 | $791,596 |
| 2021 | $212,214 | $350,630 | $0 | $562,844 | $562,844 |
| 2020 | $203,393 | $300,630 | $0 | $504,023 | $504,023 |
| 2019 | $144,909 | $375,630 | $0 | $520,539 | $520,539 |
| 2018 | $135,863 | $300,630 | $0 | $436,493 | $436,493 |
| 2017 | $136,717 | $250,630 | $0 | $387,347 | $387,347 |
| 2016 | $138,468 | $250,630 | $0 | $389,098 | $389,098 |
| 2015 | $140,220 | $250,630 | $0 | $390,850 | $390,850 |
| 2014 | $141,975 | $250,630 | $0 | $392,605 | $392,605 |
| 2013 | $131,553 | $200,630 | $0 | $332,183 | $332,183 |
| 2012 | $133,244 | $201,325 | $0 | $334,569 | $334,569 |
| 2011 | $134,933 | $201,325 | $0 | $336,258 | $336,258 |
| 2010 | $140,558 | $201,325 | $0 | $341,883 | $341,883 |
| 2009 | $146,792 | $268,223 | $0 | $415,015 | $415,015 |
| 2008 | $148,872 | $268,223 | $0 | $417,095 | $417,095 |
| 2007 | $146,461 | $211,893 | $0 | $358,354 | $358,354 |
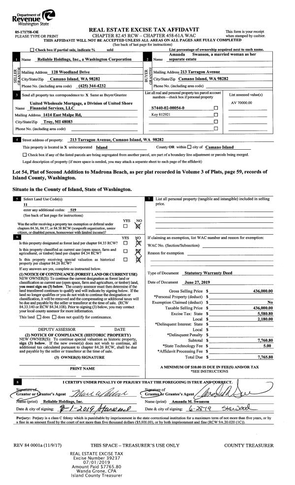
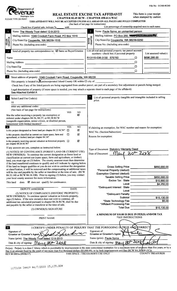
Deed and Sales History
| 1 | 07/09/2024 | WD | Warranty Deed | COWAN TTEE, DAVID W | SHEPPARD TTEE, KATE G. | | | $940,000.00 | 60636 | 4574550 |
| 2 | 06/13/2019 | QCD | Quit Claim Deed | COWAN JTWROS, DAVE W | COWAN TTEE, DAVID W | | | $0.00 | 38961 | 4465355 |
| 3 | 07/25/2018 | WD | Warranty Deed | PARISI, JERRY V | COWAN JTWROS, DAVE W | | | $625,000.00 | 35456 | 4449920 |
| 4 | 05/06/2002 | QCD | Quit Claim Deed | PARISI, JERRY V | PARISI, JERRY V | | | $0.00 | 21949 | 4020967 |
| 5 | 10/27/1998 | WD | Warranty Deed | ANDERSON, ERNEST L | PARISI, JERRY V | | | $128,602.00 | 84340 | 98023668 |
| 6 | 09/10/1998 | QCD | Quit Claim Deed | ANDERSON, ERNEST L | ANDERSON, ERNEST L | | | $0.00 | 83617 | 98018955 |
| 7 | 05/01/1993 | QCD | Quit Claim Deed | ANDERSON, ERNEST L | ANDERSON, ERNEST L | | | $0.00 | 31923 | 93010044 |
| 8 | 09/01/1989 | QCD | Quit Claim Deed | ANDERSON, ERNEST L | ANDERSON, ERNEST L | | | $0.00 | 93824 | 89012755 |
| 9 | 06/01/1983 | WD | Warranty Deed | OBRIEN, DAVID E | ANDERSON, ERNEST L | | | $71,500.00 | 31598 | 410858 |
| 10 | 01/01/1900 | OTHER | Other - Misc. Documents | Unknown | OBRIEN, DAVID E | | | $0.00 | 0 | 0 |
Payout Agreement
| No payout information available.. |