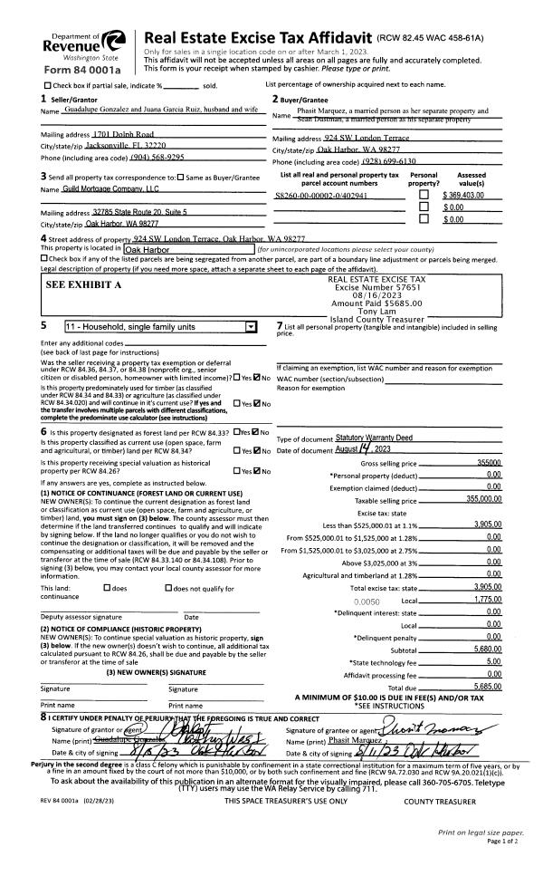
Property
Account |
| Property ID: | 181644 | Abbreviated Legal Description: | ARROWHD BCH LOT 1 BLK 1 |
| Geographic ID: | S6050-00-01001-0 | Agent Code: | |
| Type: | Real | | |
| Tax Area: | 510 - APPRAISER-Stan/Cam Schl Dist, improved & 1 acre or less | Land Use Code | 11 |
| Open Space: | N | DFL | N |
| Historic Property: | N | Remodel Property: | N |
| Multi-Family Redevelopment: | N | | |
| Township: | | Section: | |
| Range: | |
Location |
| Address: | 327 ARROWHEAD BEACH RD CAMANO ISLAND, WA 98282 | Mapsco: | |
| Neighborhood: | North Camano | Map ID: | 950 |
| Neighborhood CD: | 06-C |
Owner |
| Name: | PETER C & JANE C LAMB FAMILY LLC | Owner ID: | 260391 |
| Mailing Address: | 4921 NE 65TH ST SEATTLE, WA 98115 | % Ownership: | 100.0000000000% |
| | | Exemptions: | |
Taxes and Assessment Details
Values
| (+) Improvement Homesite Value: | + | $0 | |
| (+) Improvement Non-Homesite Value: | + | $311,880 | |
| (+) Land Homesite Value: | + | $0 | |
| (+) Land Non-Homesite Value: | + | $1,000,000 | |
| (+) Curr Use (HS): | + | $0 | $0 |
| (+) Curr Use (NHS): | + | $0 | $0 |
| | | -------------------------- | |
| (=) Market Value: | = | $1,311,880 | |
| (–) Productivity Loss: | – | $0 | |
| | | -------------------------- | |
| (=) Subtotal: | = | $1,311,880 | |
| (+) Senior Appraised Value: | + | $0 | |
| (+) Non-Senior Appraised Value: | + | $1,311,880 | |
| | | -------------------------- | |
| (=) Total Appraised Value: | = | $1,311,880 | |
| (–) Senior Exemption Loss: | – | $0 | |
| (–) Exemption Loss: | – | $0 | |
| | | -------------------------- | |
| (=) Taxable Value: | = | $1,311,880 | |
Taxing Jurisdiction
| Owner: | PETER C & JANE C LAMB FAMILY LLC | | |
| % Ownership: | 100.0000000000% | | |
| Total Value: | $1,311,880 | | |
| Tax Area: | 510 - APPRAISER-Stan/Cam Schl Dist, improved & 1 acre or less |
| CF | Conservation Futures | 0.0316035091 | $1,311,880 | $1,311,880 | $41.46 | | |
| EMS1 | Fire & Rescue Dist #1 Camano GEN (EMS) | 0.3677864386 | $1,311,880 | $1,311,880 | $482.49 | | |
| FIRE1 | Fire & Rescue Dist #1 Camano GEN | 1.2502910536 | $1,311,880 | $1,311,880 | $1,640.23 | | |
| FIRE1BOND | Fire & Rescue Dist #1 Camano BOND | 0.1570001679 | $1,311,880 | $1,311,880 | $205.97 | | |
| CE | County Current Expense | 0.3708482477 | $1,311,880 | $1,311,880 | $486.51 | | |
| CR | County Roads | 0.4584763726 | $1,311,880 | $1,311,880 | $601.47 | | |
| LCIB | Library Sno-Isle BOND (Camano Island) | 0.0396325772 | $1,311,880 | $1,311,880 | $51.99 | | |
| LIB | Library Sno-Isle GEN | 0.3153421757 | $1,311,880 | $1,311,880 | $413.69 | | |
| SCH205_401 | School 205-401 Enrichment | 1.2698420524 | $1,311,880 | $1,311,880 | $1,665.88 | | |
| SCH205BOND | School 205-401 BOND | 0.9396497583 | $1,311,880 | $1,311,880 | $1,232.71 | | |
| ST | State School | 1.3035497053 | $1,311,880 | $1,311,880 | $1,710.10 | | |
| ST2 | State School Part 2 | 0.8169543533 | $1,311,880 | $1,311,880 | $1,071.75 | | |
| | Total Tax Rate: | 7.3209764117 | | | | | |
| | | | | Taxes w/Current Exemptions: | $9,604.25 | | |
| | | | | Taxes w/o Exemptions: | $9,604.25 | | |
Improvement / Building
| Improvement #1: | RESIDENTIAL | State Code: | Y | 1940.0 sqft | Value: | $311,880 |
| Bathrooms: | 3 | Bedrooms: | 3 | | Ceiling: | BEAM PAINTED | Exterior Wall/Cover: | WOOD SIDING | | Floor Covering: | CARPET/VINYL 80-20 | Floor Structure: | WOOD W/SUBFLOOR | | Foundation: | CONCRETE | Heating: | FHA GAS | | Interior Finish: | DRYWALL PAINT | Plumbing Fixture Cnt: | 11 | | Roof Slope: | 4" IN 12" | Roof Structure/Cover: | BEAM ASPHALT |
|
| | Type | Description | Class CD | Sub Class CD | Year Built | Area |
| | BAS | BASE/MAIN FLOOR | 3 | 0 | 1968 | 1524.0 |
| | OP1 | OPEN PORCH SLAB | 3 | 0 | 1968 | 522.5 |
| | OP3 | OPEN PORCH W/ROOF | 3 | 0 | 1968 | 93.0 |
| | OP4 | OPEN PORCH W/CEILING-ROOF | 3 | 0 | 1968 | 92.0 |
| | AGR | ATTACHED GARAGE | 3 | 0 | 1968 | 528.0 |
| | UPS | UPPER STORY | 3 | 0 | 1968 | 416.0 |
| | OWP | OPEN WOOD PORCH W/STEPS | 3 | 0 | 1968 | 680.0 |
| | OWR | OPEN WOOD PORCH W/STEPS/ROOF | 3 | 0 | 1968 | 28.0 |
Sketch
Property Image
Land
| 1 | LB | LOW BANK | 0.0000 | 0.00 | 57.00 | 0.00 | 1.00 | $1,000,000 | $0 |
Roll Value History
| 2026 | N/A | N/A | N/A | N/A | N/A |
| 2025 | $311,880 | $1,000,000 | $0 | $1,311,880 | $1,311,880 |
| 2024 | $310,685 | $925,000 | $0 | $1,235,685 | $1,235,685 |
| 2023 | $314,985 | $850,000 | $0 | $1,164,985 | $1,164,985 |
| 2022 | $281,334 | $775,000 | $0 | $1,056,334 | $1,056,334 |
| 2021 | $248,094 | $525,000 | $0 | $773,094 | $773,094 |
| 2020 | $242,219 | $475,000 | $0 | $717,219 | $717,219 |
| 2019 | $183,209 | $475,000 | $0 | $658,209 | $658,209 |
| 2018 | $183,819 | $450,000 | $0 | $633,819 | $633,819 |
| 2017 | $185,035 | $450,000 | $0 | $635,035 | $635,035 |
| 2016 | $180,128 | $450,000 | $0 | $630,128 | $630,128 |
| 2015 | $182,595 | $450,000 | $0 | $632,595 | $632,595 |
| 2014 | $185,063 | $450,000 | $0 | $635,063 | $635,063 |
| 2013 | $187,528 | $450,000 | $0 | $637,528 | $637,528 |
| 2012 | $189,997 | $506,990 | $0 | $696,987 | $696,987 |
| 2011 | $192,464 | $533,674 | $0 | $726,138 | $726,138 |
| 2010 | $181,867 | $533,674 | $0 | $715,541 | $715,541 |
| 2009 | $189,796 | $726,686 | $0 | $916,482 | $916,482 |
| 2008 | $192,297 | $726,686 | $0 | $918,983 | $918,983 |
| 2007 | $194,796 | $604,830 | $0 | $799,626 | $799,626 |
Deed and Sales History
| 1 | 12/17/2012 | CHGOFIDENT | DNU - Change In Identity | LAMB, PETER C & JANE C | PETER C & JANE C LAMB FAMILY LLC | | | $0.00 | 9867 | 4329893 |
| 2 | 11/01/1990 | WD | Warranty Deed | HOGENSON, GALEN R | LAMB, PETER C | | | $370,000.00 | 6461 | 90022378 |
| 3 | 06/01/1984 | WD | Warranty Deed | HOGENSON, OSCAR A | HOGENSON, GALEN R | | | $0.00 | 41668 | 425696 |
| 4 | 01/01/1900 | OTHER | Other - Misc. Documents | Unknown | HOGENSON, OSCAR A | | | $0.00 | 0 | 0 |
Payout Agreement
| No payout information available.. |