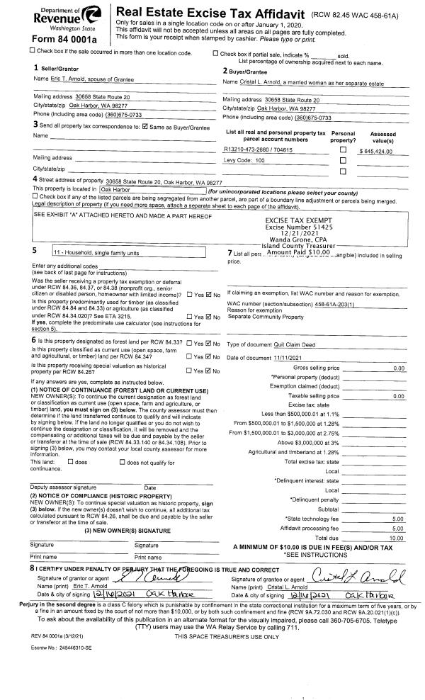
Property
Account |
| Property ID: | 181662 | Abbreviated Legal Description: | ARROWHD BCH LOT 3 BLK 1 |
| Geographic ID: | S6050-00-01003-0 | Agent Code: | |
| Type: | Real | | |
| Tax Area: | 510 - APPRAISER-Stan/Cam Schl Dist, improved & 1 acre or less | Land Use Code | 11 |
| Open Space: | N | DFL | N |
| Historic Property: | N | Remodel Property: | N |
| Multi-Family Redevelopment: | N | | |
| Township: | | Section: | |
| Range: | |
Location |
| Address: | 335 ARROWHEAD BEACH RD CAMANO ISLAND, WA 98282 | Mapsco: | |
| Neighborhood: | North Camano | Map ID: | 950 |
| Neighborhood CD: | 06-C |
Owner |
| Name: | MASHKOFTSEFF TTEE, ADELAIDE M | Owner ID: | 300444 |
| Mailing Address: | 335 ARROWHEAD BEACH RD CAMANO ISLAND, WA 98282 | % Ownership: | 100.0000000000% |
| | | Exemptions: | |
Taxes and Assessment Details
Values
| (+) Improvement Homesite Value: | + | $0 | |
| (+) Improvement Non-Homesite Value: | + | $262,381 | |
| (+) Land Homesite Value: | + | $0 | |
| (+) Land Non-Homesite Value: | + | $1,000,000 | |
| (+) Curr Use (HS): | + | $0 | $0 |
| (+) Curr Use (NHS): | + | $0 | $0 |
| | | -------------------------- | |
| (=) Market Value: | = | $1,262,381 | |
| (–) Productivity Loss: | – | $0 | |
| | | -------------------------- | |
| (=) Subtotal: | = | $1,262,381 | |
| (+) Senior Appraised Value: | + | $0 | |
| (+) Non-Senior Appraised Value: | + | $1,262,381 | |
| | | -------------------------- | |
| (=) Total Appraised Value: | = | $1,262,381 | |
| (–) Senior Exemption Loss: | – | $0 | |
| (–) Exemption Loss: | – | $0 | |
| | | -------------------------- | |
| (=) Taxable Value: | = | $1,262,381 | |
Taxing Jurisdiction
| Owner: | MASHKOFTSEFF TTEE, ADELAIDE M | | |
| % Ownership: | 100.0000000000% | | |
| Total Value: | $1,262,381 | | |
| Tax Area: | 510 - APPRAISER-Stan/Cam Schl Dist, improved & 1 acre or less |
| CF | Conservation Futures | 0.0316035091 | $1,262,381 | $1,262,381 | $39.90 | | |
| EMS1 | Fire & Rescue Dist #1 Camano GEN (EMS) | 0.3677864386 | $1,262,381 | $1,262,381 | $464.29 | | |
| FIRE1 | Fire & Rescue Dist #1 Camano GEN | 1.2502910536 | $1,262,381 | $1,262,381 | $1,578.34 | | |
| FIRE1BOND | Fire & Rescue Dist #1 Camano BOND | 0.1570001679 | $1,262,381 | $1,262,381 | $198.19 | | |
| CE | County Current Expense | 0.3708482477 | $1,262,381 | $1,262,381 | $468.15 | | |
| CR | County Roads | 0.4584763726 | $1,262,381 | $1,262,381 | $578.77 | | |
| LCIB | Library Sno-Isle BOND (Camano Island) | 0.0396325772 | $1,262,381 | $1,262,381 | $50.03 | | |
| LIB | Library Sno-Isle GEN | 0.3153421757 | $1,262,381 | $1,262,381 | $398.08 | | |
| SCH205_401 | School 205-401 Enrichment | 1.2698420524 | $1,262,381 | $1,262,381 | $1,603.02 | | |
| SCH205BOND | School 205-401 BOND | 0.9396497583 | $1,262,381 | $1,262,381 | $1,186.20 | | |
| ST | State School | 1.3035497053 | $1,262,381 | $1,262,381 | $1,645.58 | | |
| ST2 | State School Part 2 | 0.8169543533 | $1,262,381 | $1,262,381 | $1,031.31 | | |
| | Total Tax Rate: | 7.3209764117 | | | | | |
| | | | | Taxes w/Current Exemptions: | $9,241.86 | | |
| | | | | Taxes w/o Exemptions: | $9,241.86 | | |
Improvement / Building
| Improvement #1: | RESIDENTIAL | State Code: | Y | 1627.0 sqft | Value: | $262,381 |
| Bathrooms: | 2 | Bedrooms: | 3 | | Ceiling: | DRYWALL PAINTED | Exterior Wall/Cover: | WOOD SIDING | | Floor Covering: | CARPET/VINYL 80-20 | Floor Structure: | WOOD W/SUBFLOOR | | Foundation: | CONCRETE | Heating: | FHA ELECTRIC | | Interior Finish: | DRYWALL PAINT | Plumbing Fixture Cnt: | 9 | | Roof Slope: | FLAT | Roof Structure/Cover: | CJ BUILT-UP ROCK |
|
| | Type | Description | Class CD | Sub Class CD | Year Built | Area |
| | BAS | BASE/MAIN FLOOR | 3 | 0 | 1963 | 1627.0 |
| | OP1 | OPEN PORCH SLAB | 3 | 0 | 1963 | 207.0 |
| | OP3 | OPEN PORCH W/ROOF | 3 | 0 | 1963 | 296.0 |
| | OP3 | OPEN PORCH W/ROOF | 3 | 0 | 1963 | 140.0 |
| | DGR | DETACHED GARAGE | 3 | 0 | 1963 | 483.0 |
| | OP1 | OPEN PORCH SLAB | 3 | 0 | 1963 | 573.5 |
Sketch
Property Image
Land
| 1 | LB | LOW BANK | 0.0000 | 0.00 | 57.00 | 0.00 | 1.00 | $1,000,000 | $0 |
Roll Value History
| 2026 | N/A | N/A | N/A | N/A | N/A |
| 2025 | $262,381 | $1,000,000 | $0 | $1,262,381 | $1,262,381 |
| 2024 | $266,062 | $925,000 | $0 | $1,191,062 | $1,191,062 |
| 2023 | $269,745 | $850,000 | $0 | $1,119,745 | $1,119,745 |
| 2022 | $240,922 | $775,000 | $0 | $1,015,922 | $1,015,922 |
| 2021 | $212,931 | $525,000 | $0 | $737,931 | $737,931 |
| 2020 | $207,919 | $475,000 | $0 | $682,919 | $682,919 |
| 2019 | $152,596 | $475,000 | $0 | $627,596 | $627,596 |
| 2018 | $153,101 | $450,000 | $0 | $603,101 | $603,101 |
| 2017 | $154,117 | $450,000 | $0 | $604,117 | $604,117 |
| 2016 | $148,392 | $450,000 | $0 | $598,392 | $598,392 |
| 2015 | $150,424 | $450,000 | $0 | $600,424 | $600,424 |
| 2014 | $152,458 | $450,000 | $0 | $602,458 | $602,458 |
| 2013 | $154,491 | $450,000 | $0 | $604,491 | $604,491 |
| 2012 | $156,522 | $506,990 | $0 | $663,512 | $663,512 |
| 2011 | $158,556 | $533,674 | $0 | $692,230 | $692,230 |
| 2010 | $176,796 | $533,674 | $0 | $710,470 | $710,470 |
| 2009 | $184,913 | $726,686 | $0 | $911,599 | $911,599 |
| 2008 | $187,966 | $726,686 | $0 | $914,652 | $914,652 |
| 2007 | $190,924 | $604,830 | $0 | $795,754 | $795,754 |
Deed and Sales History
| 1 | 07/26/2021 | QCD | Quit Claim Deed | MASHKOFTSEFF, ADELAIDE M | MASHKOFTSEFF TTEE, ADELAIDE M | | | $0.00 | 49429 | 4525831 |
| 2 | 07/26/2021 | QCD | Quit Claim Deed | MASHKOFTSEFF TRUSTEE, CHARLES K | MASHKOFTSEFF, ADELAIDE M | | | $0.00 | 49428 | 4525829 |
| 3 | 03/31/2008 | QCD | Quit Claim Deed | MASHKOFTSEFF, CHARLES | MASHKOFTSEFF TTEE, CHARLES K | | | $0.00 | 80820 | 4225464 |
| 4 | 10/12/2000 | WD | Warranty Deed | ERICKSON, JOSEPH N | MASHKOFTSEFF, CHARLES | | | $599,488.00 | 3988 | 20018301 |
| 5 | 10/01/1990 | QCD | Quit Claim Deed | ERICKSON, LOLA G | ERICKSON, JOSEPH N | | | $0.00 | 5666 | 90019035 |
| 6 | 01/01/1900 | OTHER | Other - Misc. Documents | Unknown | ERICKSON, LOLA G | | | $0.00 | 0 | 0 |
Payout Agreement
| No payout information available.. |