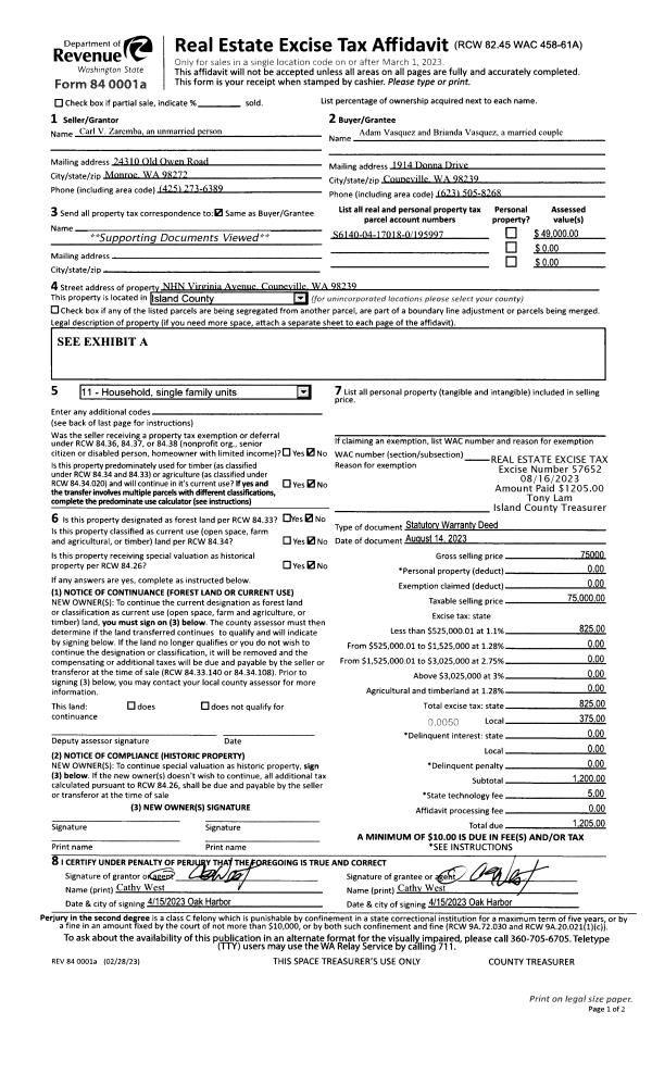
Property
Account |
| Property ID: | 181671 | Abbreviated Legal Description: | ARROWHD BCH LOT 4 BLK 1 |
| Geographic ID: | S6050-00-01004-0 | Agent Code: | |
| Type: | Real | | |
| Tax Area: | 510 - APPRAISER-Stan/Cam Schl Dist, improved & 1 acre or less | Land Use Code | 11 |
| Open Space: | N | DFL | N |
| Historic Property: | N | Remodel Property: | N |
| Multi-Family Redevelopment: | N | | |
| Township: | | Section: | |
| Range: | |
Location |
| Address: | 339 ARROWHEAD BEACH RD CAMANO ISLAND, WA 98282 | Mapsco: | |
| Neighborhood: | North Camano | Map ID: | 950 |
| Neighborhood CD: | 06-C |
Owner |
| Name: | PATTERSON TTEE, PATRICK | Owner ID: | 301306 |
| Mailing Address: | 7 HARLEQUIN ST LADERA RANCH, CA 92694 | % Ownership: | 100.0000000000% |
| | | Exemptions: | |
Taxes and Assessment Details
Values
| (+) Improvement Homesite Value: | + | $0 | |
| (+) Improvement Non-Homesite Value: | + | $578,079 | |
| (+) Land Homesite Value: | + | $0 | |
| (+) Land Non-Homesite Value: | + | $1,000,000 | |
| (+) Curr Use (HS): | + | $0 | $0 |
| (+) Curr Use (NHS): | + | $0 | $0 |
| | | -------------------------- | |
| (=) Market Value: | = | $1,578,079 | |
| (–) Productivity Loss: | – | $0 | |
| | | -------------------------- | |
| (=) Subtotal: | = | $1,578,079 | |
| (+) Senior Appraised Value: | + | $0 | |
| (+) Non-Senior Appraised Value: | + | $1,578,079 | |
| | | -------------------------- | |
| (=) Total Appraised Value: | = | $1,578,079 | |
| (–) Senior Exemption Loss: | – | $0 | |
| (–) Exemption Loss: | – | $0 | |
| | | -------------------------- | |
| (=) Taxable Value: | = | $1,578,079 | |
Taxing Jurisdiction
| Owner: | PATTERSON TTEE, PATRICK | | |
| % Ownership: | 100.0000000000% | | |
| Total Value: | $1,578,079 | | |
| Tax Area: | 510 - APPRAISER-Stan/Cam Schl Dist, improved & 1 acre or less |
| CF | Conservation Futures | 0.0316035091 | $1,578,079 | $1,578,079 | $49.87 | | |
| EMS1 | Fire & Rescue Dist #1 Camano GEN (EMS) | 0.3677864386 | $1,578,079 | $1,578,079 | $580.40 | | |
| FIRE1 | Fire & Rescue Dist #1 Camano GEN | 1.2502910536 | $1,578,079 | $1,578,079 | $1,973.06 | | |
| FIRE1BOND | Fire & Rescue Dist #1 Camano BOND | 0.1570001679 | $1,578,079 | $1,578,079 | $247.76 | | |
| CE | County Current Expense | 0.3708482477 | $1,578,079 | $1,578,079 | $585.23 | | |
| CR | County Roads | 0.4584763726 | $1,578,079 | $1,578,079 | $723.51 | | |
| LCIB | Library Sno-Isle BOND (Camano Island) | 0.0396325772 | $1,578,079 | $1,578,079 | $62.54 | | |
| LIB | Library Sno-Isle GEN | 0.3153421757 | $1,578,079 | $1,578,079 | $497.63 | | |
| SCH205_401 | School 205-401 Enrichment | 1.2698420524 | $1,578,079 | $1,578,079 | $2,003.91 | | |
| SCH205BOND | School 205-401 BOND | 0.9396497583 | $1,578,079 | $1,578,079 | $1,482.84 | | |
| ST | State School | 1.3035497053 | $1,578,079 | $1,578,079 | $2,057.10 | | |
| ST2 | State School Part 2 | 0.8169543533 | $1,578,079 | $1,578,079 | $1,289.22 | | |
| | Total Tax Rate: | 7.3209764117 | | | | | |
| | | | | Taxes w/Current Exemptions: | $11,553.07 | | |
| | | | | Taxes w/o Exemptions: | $11,553.07 | | |
Improvement / Building
| Improvement #1: | RESIDENTIAL | State Code: | Y | 2859.7 sqft | Value: | $578,079 |
| Bathrooms: | 2 | Bedrooms: | 4 | | Ceiling: | DRYWALL PAINTED | Exterior Wall/Cover: | SHINGLE | | Floor Covering: | HARDWOOD/CARP 60-40 | Floor Structure: | SLAB ON GRADE | | Foundation: | CONCRETE | Heating: | FHA GAS | | Interior Finish: | DRYWALL PAINT | Plumbing Fixture Cnt: | 13 | | Roof Slope: | 4" IN 12" | Roof Structure/Cover: | CJ WOOD SHINGLE |
|
| | Type | Description | Class CD | Sub Class CD | Year Built | Area |
| | BAS | BASE/MAIN FLOOR | 5 | 0 | 1966 | 1598.4 |
| | OP4 | OPEN PORCH W/CEILING-ROOF | 5 | 0 | 1966 | 99.8 |
| | UPS | UPPER STORY | 5 | 0 | 1966 | 1261.3 |
| | OWC | OPEN WOOD PORCH W/STEPS/ROOF/C | 5 | 0 | 1966 | 143.5 |
Sketch
Property Image
Land
| 1 | LB | LOW BANK | 0.1376 | 5993.86 | 57.00 | 0.00 | 1.00 | $1,000,000 | $0 |
Roll Value History
| 2026 | N/A | N/A | N/A | N/A | N/A |
| 2025 | $578,079 | $1,000,000 | $0 | $1,578,079 | $1,578,079 |
| 2024 | $582,938 | $925,000 | $0 | $1,507,938 | $1,507,938 |
| 2023 | $588,119 | $850,000 | $0 | $1,438,119 | $1,438,119 |
| 2022 | $527,859 | $775,000 | $0 | $1,302,859 | $1,302,859 |
| 2021 | $336,313 | $525,000 | $0 | $861,313 | $861,313 |
| 2020 | $328,833 | $475,000 | $0 | $803,833 | $803,833 |
| 2019 | $256,372 | $475,000 | $0 | $731,372 | $731,372 |
| 2018 | $257,133 | $450,000 | $0 | $707,133 | $707,133 |
| 2017 | $258,671 | $450,000 | $0 | $708,671 | $708,671 |
| 2016 | $258,490 | $450,000 | $0 | $708,490 | $708,490 |
| 2015 | $261,605 | $450,000 | $0 | $711,605 | $711,605 |
| 2014 | $264,719 | $450,000 | $0 | $714,719 | $714,719 |
| 2013 | $267,833 | $450,000 | $0 | $717,833 | $717,833 |
| 2012 | $270,948 | $506,990 | $0 | $777,938 | $777,938 |
| 2011 | $274,062 | $533,674 | $0 | $807,736 | $807,736 |
| 2010 | $293,064 | $533,674 | $0 | $826,738 | $826,738 |
| 2009 | $305,456 | $726,686 | $0 | $1,032,142 | $1,032,142 |
| 2008 | $308,950 | $726,686 | $0 | $1,035,636 | $1,035,636 |
| 2007 | $309,214 | $604,830 | $0 | $914,044 | $914,044 |
Deed and Sales History
| 1 | 09/21/2021 | WD | Warranty Deed | SANDERS, GREGORY S | PATTERSON TTEE, PATRICK | | | $1,825,000.00 | 50177 | 4529924 |
| 2 | 12/26/2002 | ESTSEPPROP | Establish Separate Property | SANDERS, GREGORY S | SANDERS, GREGORY S | | | $0.00 | 30013 | 4042924 |
| 3 | 07/01/1995 | WD | Warranty Deed | TELQUIST, CLARK V | SANDERS, GREGORY S | | | $424,000.00 | 52868 | 95013225 |
| 4 | 05/01/1995 | WD | Warranty Deed | TELQUIST, CLARK V | TELQUIST, CLARK V | | | $0.00 | 51751 | 95008240 |
| 5 | 01/01/1900 | OTHER | Other - Misc. Documents | Unknown | TELQUIST, CLARK V | | | $0.00 | 0 | 0 |
Payout Agreement
| No payout information available.. |