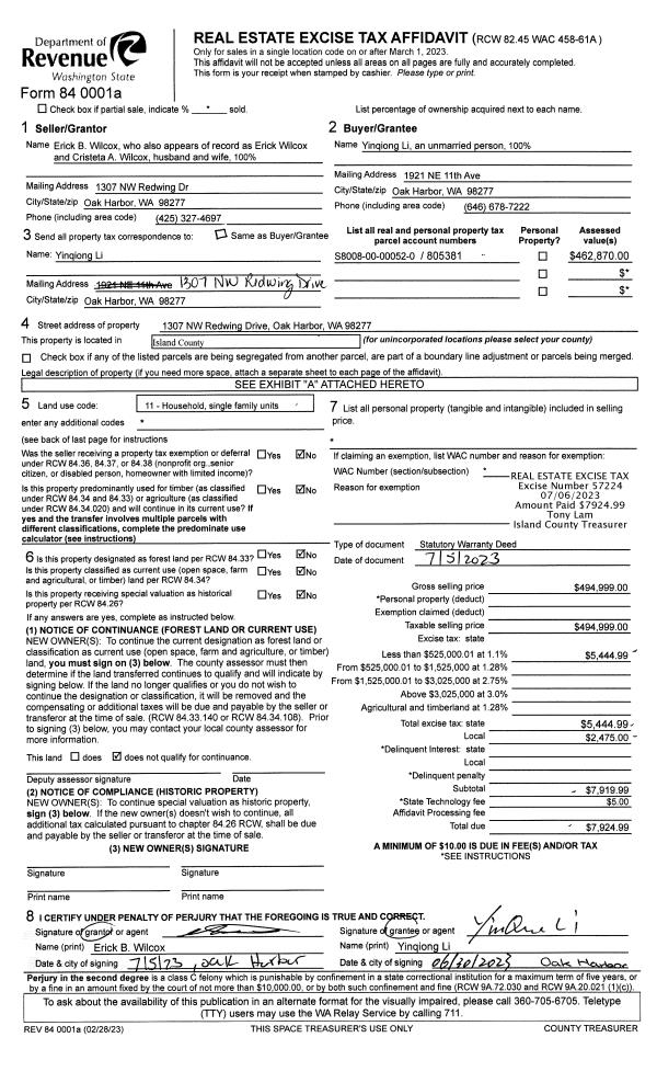
Property
Account |
| Property ID: | 181699 | Abbreviated Legal Description: | ARROWHD BCH LOT 6 BLK 1 |
| Geographic ID: | S6050-00-01006-0 | Agent Code: | |
| Type: | Real | | |
| Tax Area: | 510 - APPRAISER-Stan/Cam Schl Dist, improved & 1 acre or less | Land Use Code | 11 |
| Open Space: | N | DFL | N |
| Historic Property: | N | Remodel Property: | N |
| Multi-Family Redevelopment: | N | | |
| Township: | | Section: | |
| Range: | |
Location |
| Address: | 345 ARROWHEAD BEACH RD CAMANO ISLAND, WA 98282 | Mapsco: | |
| Neighborhood: | North Camano | Map ID: | 950 |
| Neighborhood CD: | 06-C |
Owner |
| Name: | LINDBECK, SANDRA K | Owner ID: | 279503 |
| Mailing Address: | 705 VESPER WAY CAMANO ISLAND, WA 98282 | % Ownership: | 100.0000000000% |
| | | Exemptions: | |
Taxes and Assessment Details
Values
| (+) Improvement Homesite Value: | + | $0 | |
| (+) Improvement Non-Homesite Value: | + | $173,047 | |
| (+) Land Homesite Value: | + | $0 | |
| (+) Land Non-Homesite Value: | + | $1,000,000 | |
| (+) Curr Use (HS): | + | $0 | $0 |
| (+) Curr Use (NHS): | + | $0 | $0 |
| | | -------------------------- | |
| (=) Market Value: | = | $1,173,047 | |
| (–) Productivity Loss: | – | $0 | |
| | | -------------------------- | |
| (=) Subtotal: | = | $1,173,047 | |
| (+) Senior Appraised Value: | + | $0 | |
| (+) Non-Senior Appraised Value: | + | $1,173,047 | |
| | | -------------------------- | |
| (=) Total Appraised Value: | = | $1,173,047 | |
| (–) Senior Exemption Loss: | – | $0 | |
| (–) Exemption Loss: | – | $0 | |
| | | -------------------------- | |
| (=) Taxable Value: | = | $1,173,047 | |
Taxing Jurisdiction
| Owner: | LINDBECK, SANDRA K | | |
| % Ownership: | 100.0000000000% | | |
| Total Value: | $1,173,047 | | |
| Tax Area: | 510 - APPRAISER-Stan/Cam Schl Dist, improved & 1 acre or less |
| CF | Conservation Futures | 0.0316035091 | $1,173,047 | $1,173,047 | $37.07 | | |
| EMS1 | Fire & Rescue Dist #1 Camano GEN (EMS) | 0.3677864386 | $1,173,047 | $1,173,047 | $431.43 | | |
| FIRE1 | Fire & Rescue Dist #1 Camano GEN | 1.2502910536 | $1,173,047 | $1,173,047 | $1,466.65 | | |
| FIRE1BOND | Fire & Rescue Dist #1 Camano BOND | 0.1570001679 | $1,173,047 | $1,173,047 | $184.17 | | |
| CE | County Current Expense | 0.3708482477 | $1,173,047 | $1,173,047 | $435.02 | | |
| CR | County Roads | 0.4584763726 | $1,173,047 | $1,173,047 | $537.81 | | |
| LCIB | Library Sno-Isle BOND (Camano Island) | 0.0396325772 | $1,173,047 | $1,173,047 | $46.49 | | |
| LIB | Library Sno-Isle GEN | 0.3153421757 | $1,173,047 | $1,173,047 | $369.91 | | |
| SCH205_401 | School 205-401 Enrichment | 1.2698420524 | $1,173,047 | $1,173,047 | $1,489.58 | | |
| SCH205BOND | School 205-401 BOND | 0.9396497583 | $1,173,047 | $1,173,047 | $1,102.25 | | |
| ST | State School | 1.3035497053 | $1,173,047 | $1,173,047 | $1,529.13 | | |
| ST2 | State School Part 2 | 0.8169543533 | $1,173,047 | $1,173,047 | $958.33 | | |
| | Total Tax Rate: | 7.3209764117 | | | | | |
| | | | | Taxes w/Current Exemptions: | $8,587.84 | | |
| | | | | Taxes w/o Exemptions: | $8,587.84 | | |
Improvement / Building
| Improvement #1: | RESIDENTIAL | State Code: | Y | 1342.0 sqft | Value: | $173,047 |
| Bathrooms: | 1 | Bedrooms: | 2 | | Ceiling: | TONGUE & GROOVE | Exterior Wall/Cover: | WOOD SIDING | | Floor Covering: | CARPET/VINYL 80-20 | Floor Structure: | WOOD W/SUBFLOOR | | Foundation: | CONCRETE | Heating: | WALL HEAT ELECTRIC | | Interior Finish: | DRYWALL PAINT | Plumbing Fixture Cnt: | 6 | | Roof Slope: | FLAT | Roof Structure/Cover: | BEAM BUILT-UP ROCK |
|
| | Type | Description | Class CD | Sub Class CD | Year Built | Area |
| | BAS | BASE/MAIN FLOOR | 3 | 0 | 1950 | 1342.0 |
| | OP4 | OPEN PORCH W/CEILING-ROOF | 3 | 0 | 1950 | 48.0 |
| | OCP | OPEN CARPORT | 3 | 0 | 1950 | 297.0 |
| | UTY | STORAGE/UTILITY | 3 | 0 | 1950 | 30.0 |
| | UTY | STORAGE/UTILITY | 3 | 0 | 1950 | 39.0 |
| | OWP | OPEN WOOD PORCH W/STEPS | 3 | 0 | 1950 | 1163.0 |
Sketch
Property Image
Land
| 1 | LB | LOW BANK | 0.0000 | 0.00 | 60.00 | 0.00 | 1.00 | $1,000,000 | $0 |
Roll Value History
| 2026 | N/A | N/A | N/A | N/A | N/A |
| 2025 | $173,047 | $1,000,000 | $0 | $1,173,047 | $1,173,047 |
| 2024 | $175,871 | $925,000 | $0 | $1,100,871 | $1,100,871 |
| 2023 | $178,697 | $850,000 | $0 | $1,028,697 | $1,028,697 |
| 2022 | $149,019 | $775,000 | $0 | $924,019 | $924,019 |
| 2021 | $131,810 | $525,000 | $0 | $656,810 | $656,810 |
| 2020 | $129,288 | $475,000 | $0 | $604,288 | $604,288 |
| 2019 | $93,988 | $475,000 | $0 | $568,988 | $568,988 |
| 2018 | $94,372 | $450,000 | $0 | $544,372 | $544,372 |
| 2017 | $95,139 | $450,000 | $0 | $545,139 | $545,139 |
| 2016 | $91,190 | $450,000 | $0 | $541,190 | $541,190 |
| 2015 | $92,764 | $450,000 | $0 | $542,764 | $542,764 |
| 2014 | $94,336 | $450,000 | $0 | $544,336 | $544,336 |
| 2013 | $95,906 | $450,000 | $0 | $545,906 | $144,335 |
| 2012 | $97,479 | $528,390 | $0 | $625,869 | $144,335 |
| 2011 | $99,051 | $556,200 | $0 | $655,251 | $144,335 |
| 2010 | $99,734 | $556,200 | $0 | $655,934 | $360,838 |
| 2009 | $102,826 | $626,652 | $0 | $729,478 | $144,335 |
| 2008 | $104,600 | $757,359 | $0 | $861,959 | $144,335 |
| 2007 | $103,143 | $633,591 | $0 | $736,734 | $144,335 |
Deed and Sales History
| 1 | 04/11/2017 | QCD | Quit Claim Deed | BROWN TRUSTEE, SHARRON A | LINDBECK, SANDRA K | | | $0.00 | 28925 | 4420921 |
| 2 | 01/06/2017 | TOD | Transfer On Death Deed | LINDBECK, HARRY L | BROWN TRUSTEE, SHARRON A | | | | 87485 | |
| 3 | 07/01/1991 | QCD | Quit Claim Deed | LINDBECK, HARRY | LINDBECK, HARRY L | | | $0.00 | 20383 | 92001756 |
Payout Agreement
| No payout information available.. |