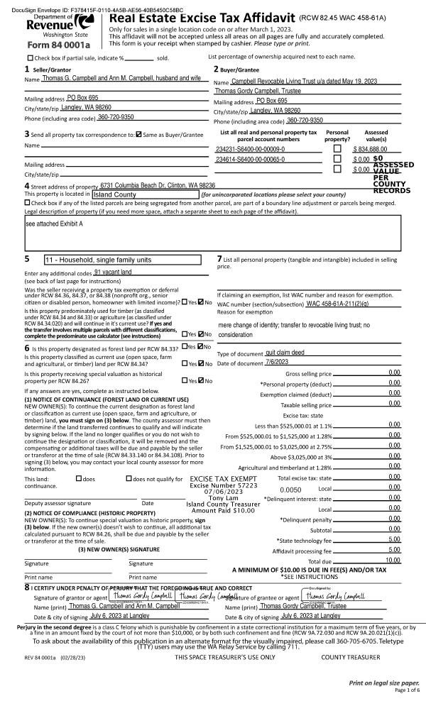
Property
Account |
| Property ID: | 181706 | Abbreviated Legal Description: | ARROWHD BCH LOT 7 BLK 1 |
| Geographic ID: | S6050-00-01007-0 | Agent Code: | |
| Type: | Real | | |
| Tax Area: | 510 - APPRAISER-Stan/Cam Schl Dist, improved & 1 acre or less | Land Use Code | 11 |
| Open Space: | N | DFL | N |
| Historic Property: | N | Remodel Property: | N |
| Multi-Family Redevelopment: | N | | |
| Township: | | Section: | |
| Range: | |
Location |
| Address: | 353 ARROWHEAD BEACH RD CAMANO ISLAND, WA 98282 | Mapsco: | |
| Neighborhood: | North Camano | Map ID: | 950 |
| Neighborhood CD: | 06-C |
Owner |
| Name: | UDOMRITTHITUIJ, KAMPHOL | Owner ID: | 259304 |
| Mailing Address: | SIRI UDOMRITTIRUIJ 10608 165TH PLACE NE REDMOND, WA 98252 | % Ownership: | 100.0000000000% |
| | | Exemptions: | |
Taxes and Assessment Details
Values
| (+) Improvement Homesite Value: | + | $0 | |
| (+) Improvement Non-Homesite Value: | + | $517,084 | |
| (+) Land Homesite Value: | + | $0 | |
| (+) Land Non-Homesite Value: | + | $1,000,000 | |
| (+) Curr Use (HS): | + | $0 | $0 |
| (+) Curr Use (NHS): | + | $0 | $0 |
| | | -------------------------- | |
| (=) Market Value: | = | $1,517,084 | |
| (–) Productivity Loss: | – | $0 | |
| | | -------------------------- | |
| (=) Subtotal: | = | $1,517,084 | |
| (+) Senior Appraised Value: | + | $0 | |
| (+) Non-Senior Appraised Value: | + | $1,517,084 | |
| | | -------------------------- | |
| (=) Total Appraised Value: | = | $1,517,084 | |
| (–) Senior Exemption Loss: | – | $0 | |
| (–) Exemption Loss: | – | $0 | |
| | | -------------------------- | |
| (=) Taxable Value: | = | $1,517,084 | |
Taxing Jurisdiction
| Owner: | UDOMRITTHITUIJ, KAMPHOL | | |
| % Ownership: | 100.0000000000% | | |
| Total Value: | $1,517,084 | | |
| Tax Area: | 510 - APPRAISER-Stan/Cam Schl Dist, improved & 1 acre or less |
| CF | Conservation Futures | 0.0316035091 | $1,517,084 | $1,517,084 | $47.95 | | |
| EMS1 | Fire & Rescue Dist #1 Camano GEN (EMS) | 0.3677864386 | $1,517,084 | $1,517,084 | $557.96 | | |
| FIRE1 | Fire & Rescue Dist #1 Camano GEN | 1.2502910536 | $1,517,084 | $1,517,084 | $1,896.80 | | |
| FIRE1BOND | Fire & Rescue Dist #1 Camano BOND | 0.1570001679 | $1,517,084 | $1,517,084 | $238.18 | | |
| CE | County Current Expense | 0.3708482477 | $1,517,084 | $1,517,084 | $562.61 | | |
| CR | County Roads | 0.4584763726 | $1,517,084 | $1,517,084 | $695.55 | | |
| LCIB | Library Sno-Isle BOND (Camano Island) | 0.0396325772 | $1,517,084 | $1,517,084 | $60.13 | | |
| LIB | Library Sno-Isle GEN | 0.3153421757 | $1,517,084 | $1,517,084 | $478.40 | | |
| SCH205_401 | School 205-401 Enrichment | 1.2698420524 | $1,517,084 | $1,517,084 | $1,926.46 | | |
| SCH205BOND | School 205-401 BOND | 0.9396497583 | $1,517,084 | $1,517,084 | $1,425.53 | | |
| ST | State School | 1.3035497053 | $1,517,084 | $1,517,084 | $1,977.59 | | |
| ST2 | State School Part 2 | 0.8169543533 | $1,517,084 | $1,517,084 | $1,239.39 | | |
| | Total Tax Rate: | 7.3209764117 | | | | | |
| | | | | Taxes w/Current Exemptions: | $11,106.55 | | |
| | | | | Taxes w/o Exemptions: | $11,106.55 | | |
Improvement / Building
| Improvement #1: | RESIDENTIAL | State Code: | Y | 2163.0 sqft | Value: | $517,084 |
| Bathrooms: | 3 | Bedrooms: | 3 | | Ceiling: | DRYWALL PAINTED | Exterior Wall/Cover: | CEMENT FIBER | | Floor Covering: | HARDWOOD/CARP 80-20 | Floor Structure: | SLAB ABOVE GRADE | | Foundation: | CONCRETE | Heating: | RADIANT FLOOR | | Interior Finish: | DRYWALL PAINT | Plumbing Fixture Cnt: | 14 | | Roof Slope: | 4" IN 12" | Roof Structure/Cover: | CJ ALUMINIUM HEAVY |
|
| | Type | Description | Class CD | Sub Class CD | Year Built | Area |
| | BAS | BASE/MAIN FLOOR | 4 | 0 | 1950 | 1281.0 |
| | LOF | LOFT | 4 | 0 | 1950 | 324.0 |
| | UPS | UPPER STORY | 4 | 0 | 1950 | 558.0 |
| | OWP | OPEN WOOD PORCH W/STEPS | 4 | 0 | 1950 | 88.0 |
| | OWP | OPEN WOOD PORCH W/STEPS | 4 | 0 | 1950 | 1093.0 |
| | OWP | OPEN WOOD PORCH W/STEPS | 4 | 0 | 1950 | 288.0 |
Sketch
Property Image
Land
| 1 | LB | LOW BANK | 0.0000 | 0.00 | 60.00 | 0.00 | 1.00 | $1,000,000 | $0 |
Roll Value History
| 2026 | N/A | N/A | N/A | N/A | N/A |
| 2025 | $517,084 | $1,000,000 | $0 | $1,517,084 | $1,517,084 |
| 2024 | $523,011 | $925,000 | $0 | $1,448,011 | $1,448,011 |
| 2023 | $528,935 | $850,000 | $0 | $1,378,935 | $1,378,935 |
| 2022 | $473,590 | $775,000 | $0 | $1,248,590 | $1,248,590 |
| 2021 | $416,487 | $525,000 | $0 | $941,487 | $941,487 |
| 2020 | $404,323 | $475,000 | $0 | $879,323 | $879,323 |
| 2019 | $303,354 | $475,000 | $0 | $778,354 | $778,354 |
| 2018 | $304,184 | $450,000 | $0 | $754,184 | $754,184 |
| 2017 | $305,846 | $450,000 | $0 | $755,846 | $755,846 |
| 2016 | $312,147 | $450,000 | $0 | $762,147 | $762,147 |
| 2015 | $275,701 | $450,000 | $0 | $725,701 | $725,701 |
| 2014 | $157,796 | $450,000 | $0 | $607,796 | $607,796 |
| 2013 | $160,050 | $450,000 | $0 | $610,050 | $610,050 |
| 2012 | $162,304 | $528,390 | $0 | $690,694 | $690,694 |
| 2011 | $164,558 | $556,200 | $0 | $720,758 | $720,758 |
| 2010 | $157,137 | $556,200 | $0 | $713,337 | $713,337 |
| 2009 | $164,108 | $626,652 | $0 | $790,760 | $790,760 |
| 2008 | $166,380 | $757,359 | $0 | $923,739 | $923,739 |
| 2007 | $168,652 | $630,360 | $0 | $799,012 | $799,012 |
Deed and Sales History
| 1 | 08/24/2012 | WD | Warranty Deed | BORESON, BARBARA J | UDOMRITTHITUIJ, KAMPHOL | | | $625,000.00 | 8733 | 4322365 |
| 2 | 12/01/1998 | QCD | Quit Claim Deed | BORESON, BARBARA J | BORESON, BARBARA J | | | $0.00 | 84839 | 98026677 |
| 3 | 12/01/1998 | ESTSEPPROP | Establish Separate Property | BARBARA, J B | BORESON, BARBARA J | | | $0.00 | 84840 | 98026676 |
| 4 | 02/01/1997 | QCD | Quit Claim Deed | BORESON, BARBARA J | BARBARA, J B | | | $0.00 | 70617 | 97002852 |
| 5 | 11/01/1996 | QCD | Quit Claim Deed | BARBARA, J B | BORESON, BARBARA J | | | $0.00 | 64157 | 96020224 |
| 6 | 07/01/1993 | WD | Warranty Deed | HILL, HAROLD W | BARBARA, J B | | | $140,000.00 | 32851 | 93014672 |
| 7 | 12/01/1986 | WD | Warranty Deed | BORESON, STANLEY | HILL, HAROLD W | | | $140,000.00 | 63863 | 86017014 |
| 8 | 01/01/1900 | OTHER | Other - Misc. Documents | Unknown | BORESON, STANLEY | | | $0.00 | 0 | 0 |
Payout Agreement
| No payout information available.. |